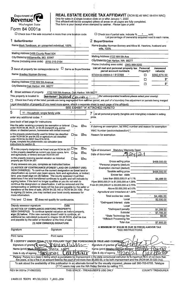
Property
Account |
| Property ID: | 231993 | Abbreviated Legal Description: | CLINTON LOTS 9 & 10 BLK 6 & E/2 ADJ VAC ALLEY AF#344420 |
| Geographic ID: | S6380-00-06009-0 | Agent Code: | |
| Type: | Real | | |
| Tax Area: | 720 - APPRAISER-S Whid Schl Dist, Special District, improved & less than 1 acre | Land Use Code | 46 |
| Open Space: | N | DFL | N |
| Historic Property: | N | Remodel Property: | N |
| Multi-Family Redevelopment: | N | | |
| Township: | | Section: | |
| Range: | |
Location |
| Address: | CENTRAL AVE CLINTON, WA 98236 | Mapsco: | |
| Neighborhood: | 44cCL-central ave | Map ID: | 815 |
| Neighborhood CD: | 44cCLcentr |
Owner |
| Name: | YALE, LANCE T | Owner ID: | 190494 |
| Mailing Address: | SHANNON R YALE PO BOX 332 CLINTON, WA 98236-0332 | % Ownership: | 100.0000000000% |
| | | Exemptions: | |
Taxes and Assessment Details
Values
| (+) Improvement Homesite Value: | + | $0 | |
| (+) Improvement Non-Homesite Value: | + | $3,840 | |
| (+) Land Homesite Value: | + | $0 | |
| (+) Land Non-Homesite Value: | + | $80,000 | |
| (+) Curr Use (HS): | + | $0 | $0 |
| (+) Curr Use (NHS): | + | $0 | $0 |
| | | -------------------------- | |
| (=) Market Value: | = | $83,840 | |
| (–) Productivity Loss: | – | $0 | |
| | | -------------------------- | |
| (=) Subtotal: | = | $83,840 | |
| (+) Senior Appraised Value: | + | $0 | |
| (+) Non-Senior Appraised Value: | + | $83,840 | |
| | | -------------------------- | |
| (=) Total Appraised Value: | = | $83,840 | |
| (–) Senior Exemption Loss: | – | $0 | |
| (–) Exemption Loss: | – | $0 | |
| | | -------------------------- | |
| (=) Taxable Value: | = | $83,840 | |
Taxing Jurisdiction
| Owner: | YALE, LANCE T | | |
| % Ownership: | 100.0000000000% | | |
| Total Value: | $83,840 | | |
| Tax Area: | 720 - APPRAISER-S Whid Schl Dist, Special District, improved & less than 1 acre |
| CF | Conservation Futures | 0.0316035091 | $83,840 | $83,840 | $2.65 | | |
| FIRE3 | Fire & Rescue Dist #3 S Whidbey GEN | 1.2004855531 | $83,840 | $83,840 | $100.65 | | |
| HOBOND | Hospital BOND | 0.1910887512 | $83,840 | $83,840 | $16.02 | | |
| HOGEN | Hospital GEN | 0.3902502903 | $83,840 | $83,840 | $32.72 | | |
| CE | County Current Expense | 0.3708482477 | $83,840 | $83,840 | $31.09 | | |
| CR | County Roads | 0.4584763726 | $83,840 | $83,840 | $38.44 | | |
| ISLANDEMS | Hospital GEN (EMS) | 0.5000000000 | $83,840 | $83,840 | $41.92 | | |
| LIB | Library Sno-Isle GEN | 0.3153421757 | $83,840 | $83,840 | $26.44 | | |
| PORTWHID | Port of S Whidbey GEN | 0.1094540357 | $83,840 | $83,840 | $9.18 | | |
| SCH206BOND | School 206 BOND | 0.3161759235 | $83,840 | $83,840 | $26.51 | | |
| SCH206MO | School 206 Enrichment | 0.4547169547 | $83,840 | $83,840 | $38.12 | | |
| ST | State School | 1.3035497053 | $83,840 | $83,840 | $109.29 | | |
| ST2 | State School Part 2 | 0.8169543533 | $83,840 | $83,840 | $68.49 | | |
| SWHIDPRBD | P & R S Whidbey BOND | 0.0152817568 | $83,840 | $83,840 | $1.28 | | |
| SWHIDPRBD2 | P & R S Whidbey BOND2 | 0.0138911264 | $83,840 | $83,840 | $1.16 | | |
| SWHIDPRMT | P & R S Whidbey GEN | 0.2053334452 | $83,840 | $83,840 | $17.22 | | |
| | Total Tax Rate: | 6.6934522006 | | | | | |
| | | | | Taxes w/Current Exemptions: | $561.18 | | |
| | | | | Taxes w/o Exemptions: | $561.18 | | |
Improvement / Building
| Improvement #1: | MISC | State Code: | F1 | 0.0 sqft | Value: | $3,840 |
Sketch
| No sketches available for this property. |
Property Image
Land
| 1 | 68 | COMMERCIAL RETAIL | 0.1788 | 15681.60 | 0.00 | 0.00 | 1.00 | $80,000 | $0 |
Roll Value History
| 2026 | N/A | N/A | N/A | N/A | N/A |
| 2025 | $3,840 | $80,000 | $0 | $83,840 | $83,840 |
| 2024 | $3,840 | $80,000 | $0 | $83,840 | $83,840 |
| 2023 | $3,840 | $70,000 | $0 | $73,840 | $73,840 |
| 2022 | $3,840 | $130,000 | $0 | $133,840 | $133,840 |
| 2021 | $3,840 | $130,000 | $0 | $133,840 | $133,840 |
| 2020 | $3,840 | $130,000 | $0 | $133,840 | $133,840 |
| 2019 | $3,840 | $150,000 | $0 | $153,840 | $153,840 |
| 2018 | $3,840 | $130,000 | $0 | $133,840 | $133,840 |
| 2017 | $3,840 | $155,378 | $0 | $159,218 | $159,218 |
| 2016 | $3,840 | $155,378 | $0 | $159,218 | $159,218 |
| 2015 | $3,840 | $155,378 | $0 | $159,218 | $159,218 |
| 2014 | $3,840 | $280,800 | $0 | $284,640 | $284,640 |
| 2013 | $3,840 | $280,800 | $0 | $284,640 | $284,640 |
| 2012 | $3,840 | $280,800 | $0 | $284,640 | $284,640 |
| 2011 | $3,840 | $280,800 | $0 | $284,640 | $284,640 |
| 2010 | $3,840 | $280,800 | $0 | $284,640 | $284,640 |
| 2009 | $3,840 | $280,800 | $0 | $284,640 | $284,640 |
| 2008 | $3,840 | $280,800 | $0 | $284,640 | $284,640 |
| 2007 | $3,840 | $280,800 | $0 | $284,640 | $284,640 |
Deed and Sales History
| 1 | 06/10/2003 | QCD | Quit Claim Deed | YALE, LANCE T | YALE, LANCE T | | | $0.00 | 32618 | 4063493 |
| 2 | 08/06/2002 | QCD | Quit Claim Deed | YALE, TOM | YALE, LANCE T | | | $0.00 | 30323 | 4045754 |
| 3 | 04/01/1989 | DECREE | Divorce Decree/Legal Separation | YALE, THOMAS F | YALE, TOM | | | $0.00 | 91437 | 89005057 |
| 4 | 04/01/1989 | QCD | Quit Claim Deed | YALE, TOM | YALE, THOMAS F | | | $0.00 | 91438 | 89005059 |
| 5 | 01/01/1900 | OTHER | Other - Misc. Documents | Unknown | YALE, TOM | | | $0.00 | 0 | 0 |
Payout Agreement
| No payout information available.. |