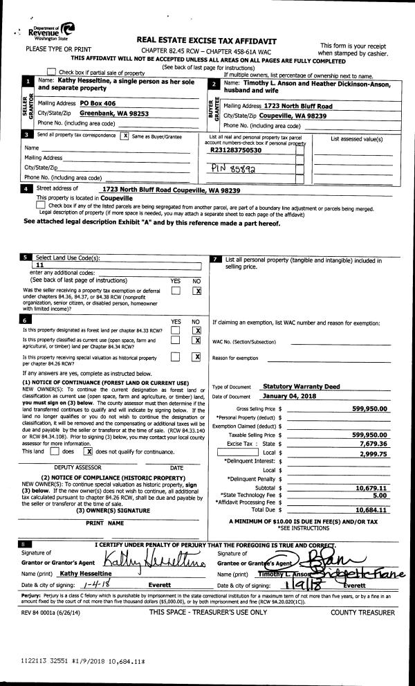
Property
Account |
| Property ID: | 232377 | Abbreviated Legal Description: | CLINTON SL-2: PT LOTS 3 & 4 BLK 9 LY N OF HWY: BG ELN LOT 3 & NLN OF HWY N ON WLN HARDING AVE 200'TPB N TO NECR LOT 4 SWLY 436.97' SELY TO NLN HWY PT 283.80'W OF WLN HARDING AVE NELY TP LY 170' W OF WLN HARDING AVE N PARA /TO & 170'W OF WLN HARDING AVE 11 |
| Geographic ID: | S6380-00-09003-2 | Agent Code: | |
| Type: | Real | | |
| Tax Area: | 722 - APPRAISER-S Whid Schl Dist, Special District, improved, greater than 1 acre | Land Use Code | 69 |
| Open Space: | N | DFL | N |
| Historic Property: | N | Remodel Property: | N |
| Multi-Family Redevelopment: | N | | |
| Township: | | Section: | |
| Range: | |
Location |
| Address: | 9000 SR525 CLINTON, WA 98236 | Mapsco: | |
| Neighborhood: | 44cCL-highway 525 | Map ID: | 808 |
| Neighborhood CD: | 44cCLhw525 |
Owner |
| Name: | HANSON, JEFF | Owner ID: | 291241 |
| Mailing Address: | 11645 SR 525 LANGLEY, WA 98260 | % Ownership: | 100.0000000000% |
| | | Exemptions: | |
Taxes and Assessment Details
Values
| (+) Improvement Homesite Value: | + | $0 | |
| (+) Improvement Non-Homesite Value: | + | $100,921 | |
| (+) Land Homesite Value: | + | $0 | |
| (+) Land Non-Homesite Value: | + | $290,000 | |
| (+) Curr Use (HS): | + | $0 | $0 |
| (+) Curr Use (NHS): | + | $0 | $0 |
| | | -------------------------- | |
| (=) Market Value: | = | $390,921 | |
| (–) Productivity Loss: | – | $0 | |
| | | -------------------------- | |
| (=) Subtotal: | = | $390,921 | |
| (+) Senior Appraised Value: | + | $0 | |
| (+) Non-Senior Appraised Value: | + | $390,921 | |
| | | -------------------------- | |
| (=) Total Appraised Value: | = | $390,921 | |
| (–) Senior Exemption Loss: | – | $0 | |
| (–) Exemption Loss: | – | $0 | |
| | | -------------------------- | |
| (=) Taxable Value: | = | $390,921 | |
Taxing Jurisdiction
| Owner: | HANSON, JEFF | | |
| % Ownership: | 100.0000000000% | | |
| Total Value: | $390,921 | | |
| Tax Area: | 722 - APPRAISER-S Whid Schl Dist, Special District, improved, greater than 1 acre |
| CF | Conservation Futures | 0.0316035091 | $390,921 | $390,921 | $12.35 | | |
| FIRE3 | Fire & Rescue Dist #3 S Whidbey GEN | 1.2004855531 | $390,921 | $390,921 | $469.30 | | |
| HOBOND | Hospital BOND | 0.1910887512 | $390,921 | $390,921 | $74.70 | | |
| HOGEN | Hospital GEN | 0.3902502903 | $390,921 | $390,921 | $152.56 | | |
| CE | County Current Expense | 0.3708482477 | $390,921 | $390,921 | $144.97 | | |
| CR | County Roads | 0.4584763726 | $390,921 | $390,921 | $179.23 | | |
| ISLANDEMS | Hospital GEN (EMS) | 0.5000000000 | $390,921 | $390,921 | $195.46 | | |
| LIB | Library Sno-Isle GEN | 0.3153421757 | $390,921 | $390,921 | $123.27 | | |
| PORTWHID | Port of S Whidbey GEN | 0.1094540357 | $390,921 | $390,921 | $42.79 | | |
| SCH206BOND | School 206 BOND | 0.3161759235 | $390,921 | $390,921 | $123.60 | | |
| SCH206MO | School 206 Enrichment | 0.4547169547 | $390,921 | $390,921 | $177.76 | | |
| ST | State School | 1.3035497053 | $390,921 | $390,921 | $509.58 | | |
| ST2 | State School Part 2 | 0.8169543533 | $390,921 | $390,921 | $319.36 | | |
| SWHIDPRBD | P & R S Whidbey BOND | 0.0152817568 | $390,921 | $390,921 | $5.97 | | |
| SWHIDPRBD2 | P & R S Whidbey BOND2 | 0.0138911264 | $390,921 | $390,921 | $5.43 | | |
| SWHIDPRMT | P & R S Whidbey GEN | 0.2053334452 | $390,921 | $390,921 | $80.27 | | |
| | Total Tax Rate: | 6.6934522006 | | | | | |
| | | | | Taxes w/Current Exemptions: | $2,616.60 | | |
| | | | | Taxes w/o Exemptions: | $2,616.60 | | |
Improvement / Building
| Improvement #1: | COMMERCIAL | State Code: | F1 | 728.0 sqft | Value: | $100,921 |
| Bathrooms: | 0 | Bedrooms: | 0 | | Ceiling: | DRYWALL PAINTED | Exterior Wall/Cover: | PLYWD/WD OR ST STUDS | | Floor Covering: | CARPET 100% | Floor Structure: | WOOD ON WOOD JOIST | | Foundation: | CONCRETE | Heating: | WALL HEAT ELECTRIC | | Interior Finish: | OFFICE | Plumbing Fixture Cnt: | 1 | | Roof Structure/Cover: | COMP OPEN WOOD |   |   |
|
| | Type | Description | Class CD | Sub Class CD | Year Built | Area |
| | BAS | BASE/MAIN FLOOR | 3 | 0 | 1986 | 728.0 |
| | oLIT | LITE POLE | 3 | 0 | 1986 | 0.0 |
| | OP1 | OPEN PORCH SLAB | 3 | 0 | 1986 | 616.0 |
| | UTY | STORAGE/UTILITY | 3 | 0 | 1986 | 160.0 |
| | OP3 | OPEN PORCH W/ROOF | 3 | 0 | 1986 | 836.0 |
| | OP1 | OPEN PORCH SLAB | 3 | 0 | 1986 | 288.0 |
Sketch
Property Image
Land
| 1 | 68 | COMMERCIAL RETAIL | 1.0749 | 46822.64 | 0.00 | 0.00 | 1.00 | $290,000 | $0 |
Roll Value History
| 2026 | N/A | N/A | N/A | N/A | N/A |
| 2025 | $100,921 | $290,000 | $0 | $390,921 | $390,921 |
| 2024 | $105,227 | $280,936 | $0 | $386,163 | $386,163 |
| 2023 | $109,530 | $334,541 | $0 | $444,071 | $444,071 |
| 2022 | $78,649 | $334,541 | $0 | $413,190 | $413,190 |
| 2021 | $45,201 | $334,541 | $0 | $379,742 | $379,742 |
| 2020 | $15,464 | $334,541 | $0 | $350,005 | $350,005 |
| 2019 | $15,785 | $334,541 | $0 | $350,326 | $350,326 |
| 2018 | $15,802 | $334,541 | $0 | $350,343 | $350,343 |
| 2017 | $15,833 | $248,964 | $0 | $264,797 | $264,797 |
| 2016 | $15,898 | $248,964 | $0 | $264,862 | $264,862 |
| 2015 | $16,979 | $248,964 | $0 | $265,943 | $265,943 |
| 2014 | $12,799 | $172,360 | $0 | $185,159 | $185,159 |
| 2013 | $12,845 | $172,360 | $0 | $185,205 | $185,205 |
| 2012 | $34,931 | $172,360 | $0 | $207,291 | $207,291 |
| 2011 | $34,931 | $172,360 | $0 | $207,291 | $207,291 |
| 2010 | $26,119 | $172,360 | $0 | $198,479 | $198,479 |
| 2009 | $32,666 | $189,596 | $0 | $222,262 | $222,262 |
| 2008 | $35,461 | $482,052 | $0 | $517,513 | $517,513 |
| 2007 | $36,433 | $482,052 | $0 | $518,485 | $518,485 |
Deed and Sales History
| 1 | 08/05/2019 | WD | Warranty Deed | CLAUSEN, DOUGLAS | HANSON, JEFF | | | $299,000.00 | 39737 | 4468798 |
| 2 | 07/14/2019 | QCD | Quit Claim Deed | CLAUSEN, DOUGLAS | CLAUSEN, DOUGLAS | | | $0.00 | 39736 | 4468797 |
| 3 | 01/08/2018 | WD | Warranty Deed | CLAUSEN, DOUGLAS & | CLAUSEN, DOUGLAS | | | $60,000.00 | 32588 | 4437356 |
| 4 | 06/30/2017 | QCD | Quit Claim Deed | CLAUSEN, DOUGLAS & | CLAUSEN, DOUGLAS & | | | $0.00 | 30073 | 4425650 |
| 5 | 09/06/2012 | WD | Warranty Deed | CLAUSEN, DOUGLAS | CLAUSEN, DOUGLAS & | | | $122,000.00 | 8896 | 4323341 |
| 6 | 01/13/2005 | WD | Warranty Deed | DEMCO, JOHN W | CLAUSEN, DOUGLAS | | | $128,000.00 | 50253 | 4123714 |
| 7 | 12/01/1993 | EZ | Easement | KIEBURTZ, STEVEN J | DEMCO, JOHN W | | | $0.00 | 34876 | 93025491 |
| 8 | 09/01/1993 | OTHER | Other - Misc. Documents | DEMCO, JOHN W | KIEBURTZ, STEVEN J | | | $0.00 | 65578 | 93018328 |
| 9 | 03/01/1993 | QCD | Quit Claim Deed | KIEBURTZ, STEVEN J | DEMCO, JOHN W | | | $0.00 | 34527 | 93023633 |
| 10 | 01/01/1993 | WD | Warranty Deed | KIEBURTZ, STEVEN J | KIEBURTZ, STEVEN J | | | $251,500.00 | 30113 | 93000515 |
| 11 | 01/01/1993 | QCD | Quit Claim Deed | COOLEY, LARRY L | KIEBURTZ, STEVEN J | | | $0.00 | 30112 | 93000514 |
| 12 | 05/01/1986 | WD | Warranty Deed | BARDWELL, ROBERT L | COOLEY, LARRY L | | | $70,000.00 | 61214 | 86005693 |
| 13 | 06/01/1983 | REC | Real Estate Contract | ORR, CONRAD W | BARDWELL, ROBERT L | | | $43,500.00 | 31509 | 410497 |
| 14 | 01/01/1900 | OTHER | Other - Misc. Documents | Unknown | ORR, CONRAD W | | | $0.00 | 0 | 0 |
Payout Agreement
| No payout information available.. |