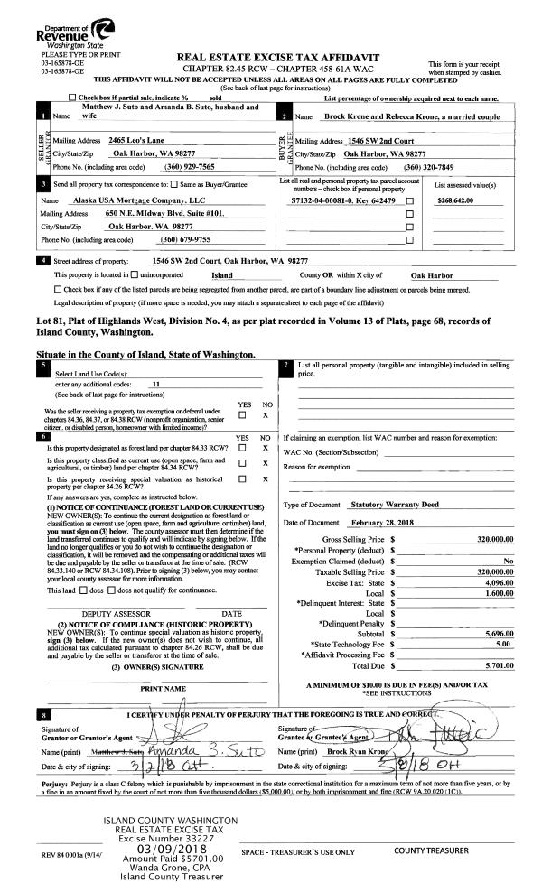
Property
Account |
| Property ID: | 232420 | Abbreviated Legal Description: | CLINTON 1ST LOT 4 |
| Geographic ID: | S6380-01-00004-0 | Agent Code: | |
| Type: | Real | | |
| Tax Area: | 720 - APPRAISER-S Whid Schl Dist, Special District, improved & less than 1 acre | Land Use Code | 11 |
| Open Space: | N | DFL | N |
| Historic Property: | N | Remodel Property: | N |
| Multi-Family Redevelopment: | N | | |
| Township: | | Section: | |
| Range: | |
Location |
| Address: | 6550 HUMPHREY RD CLINTON, WA 98236 | Mapsco: | |
| Neighborhood: | Cycle 4 | Map ID: | 815 |
| Neighborhood CD: | 4 |
Owner |
| Name: | BOENISH, DIANE | Owner ID: | 283643 |
| Mailing Address: | 6550 HUMPHREY RD CLINTON, WA 98236 | % Ownership: | 100.0000000000% |
| | | Exemptions: | SNR/DSBL |
Taxes and Assessment Details
Values
| (+) Improvement Homesite Value: | + | $300,317 | |
| (+) Improvement Non-Homesite Value: | + | $48,524 | |
| (+) Land Homesite Value: | + | $240,000 | |
| (+) Land Non-Homesite Value: | + | $0 | |
| (+) Curr Use (HS): | + | $0 | $0 |
| (+) Curr Use (NHS): | + | $0 | $0 |
| | | -------------------------- | |
| (=) Market Value: | = | $588,841 | |
| (–) Productivity Loss: | – | $0 | |
| | | -------------------------- | |
| (=) Subtotal: | = | $588,841 | |
| (+) Senior Appraised Value: | + | $350,649 | |
| (+) Non-Senior Appraised Value: | + | $48,524 | |
| | | -------------------------- | |
| (=) Total Appraised Value: | = | $399,173 | |
| (–) Senior Exemption Loss: | – | $210,389 | |
| (–) Exemption Loss: | – | $0 | |
| | | -------------------------- | |
| (=) Taxable Value: | = | $188,784 | |
Taxing Jurisdiction
| Owner: | BOENISH, DIANE | | |
| % Ownership: | 100.0000000000% | | |
| Total Value: | $588,841 | | |
| Tax Area: | 720 - APPRAISER-S Whid Schl Dist, Special District, improved & less than 1 acre |
| CF | Conservation Futures | 0.0316035091 | $588,841 | $188,784 | $5.97 | | |
| FIRE3 | Fire & Rescue Dist #3 S Whidbey GEN | 1.2004855531 | $588,841 | $188,784 | $226.63 | | |
| HOBOND | Hospital BOND | 0.0000000000 | $588,841 | $48,524 | $9.27 | | |
| HOGEN | Hospital GEN | 0.3902502903 | $588,841 | $188,784 | $73.67 | | |
| CE | County Current Expense | 0.3708482477 | $588,841 | $188,784 | $70.01 | | |
| CR | County Roads | 0.4584763726 | $588,841 | $188,784 | $86.55 | | |
| ISLANDEMS | Hospital GEN (EMS) | 0.5000000000 | $588,841 | $188,784 | $94.39 | | |
| LIB | Library Sno-Isle GEN | 0.3153421757 | $588,841 | $188,784 | $59.53 | | |
| PORTWHID | Port of S Whidbey GEN | 0.1094540357 | $588,841 | $188,784 | $20.66 | | |
| SCH206BOND | School 206 BOND | 0.3161759235 | $588,841 | $188,784 | $59.69 | | |
| SCH206MO | School 206 Enrichment | 0.0000000000 | $588,841 | $48,524 | $22.06 | | |
| ST | State School | 1.3035497053 | $588,841 | $188,784 | $246.09 | | |
| ST2 | State School Part 2 | 0.0000000000 | $588,841 | $48,524 | $39.64 | | |
| SWHIDPRBD | P & R S Whidbey BOND | 0.0000000000 | $588,841 | $48,524 | $0.74 | | |
| SWHIDPRBD2 | P & R S Whidbey BOND2 | 0.0000000000 | $588,841 | $48,524 | $0.67 | | |
| SWHIDPRMT | P & R S Whidbey GEN | 0.2053334452 | $588,841 | $188,784 | $38.76 | | |
| | Total Tax Rate: | 5.2015192582 | | | | | |
| | | | | Taxes w/Current Exemptions: | $1,054.33 | | |
| | | | | Taxes w/o Exemptions: | $3,941.40 | | |
Improvement / Building
| Improvement #1: | RESIDENTIAL | State Code: | Y | 2082.0 sqft | Value: | $348,841 |
| Bathrooms: | 2 | Bedrooms: | 2 | | Ceiling: | DRYWALL PAINTED | Cooling: | HEAT PUMP/CONV/V | | Exterior Wall/Cover: | CEMENT FIBER | Floor Covering: | VINYL 100% | | Floor Structure: | WOOD W/SUBFLOOR | Foundation: | CONCRETE | | Interior Finish: | DRYWALL PAINT | Plumbing Fixture Cnt: | 10 | | Roof Slope: | 5" IN 12" | Roof Structure/Cover: | CJ ASPHALT |
|
| | Type | Description | Class CD | Sub Class CD | Year Built | Area |
| | BAS | BASE/MAIN FLOOR | 3 | 0 | 2017 | 1066.0 |
| | DWN | DOWNSTAIRS LIVING AREA | 3 | 0 | 2017 | 1016.0 |
| | OWC | OPEN WOOD PORCH W/STEPS/ROOF/C | 3 | 0 | 2017 | 90.0 |
| | DGR | DETACHED GARAGE | 3 | 0 | 2017 | 576.0 |
Sketch
Property Image
Land
| 1 | 15 | SQ (12001-21780) | 0.0000 | 0.00 | 0.00 | 0.00 | 1.00 | $240,000 | $0 |
Roll Value History
| 2026 | N/A | N/A | N/A | N/A | N/A |
| 2025 | $348,841 | $240,000 | $0 | $588,841 | $188,784 |
| 2024 | $351,700 | $230,000 | $0 | $581,700 | $189,181 |
| 2023 | $354,559 | $230,000 | $0 | $584,559 | $189,579 |
| 2022 | $323,662 | $210,000 | $0 | $533,662 | $533,662 |
| 2021 | $311,396 | $150,000 | $0 | $461,396 | $323,964 |
| 2020 | $256,300 | $130,000 | $0 | $386,300 | $386,300 |
| 2019 | $183,493 | $150,000 | $0 | $333,493 | $333,493 |
| 2018 | $183,959 | $130,000 | $0 | $313,959 | $313,959 |
| 2017 | $67,071 | $110,000 | $0 | $177,071 | $177,071 |
| 2016 | $2,000 | $85,000 | $0 | $87,000 | $87,000 |
| 2015 | $2,000 | $85,000 | $0 | $87,000 | $87,000 |
| 2014 | $2,000 | $85,000 | $0 | $87,000 | $87,000 |
| 2013 | $2,000 | $85,000 | $0 | $87,000 | $87,000 |
| 2012 | $5,200 | $76,000 | $0 | $81,200 | $81,200 |
| 2011 | $5,200 | $85,000 | $0 | $90,200 | $90,200 |
| 2010 | $5,200 | $85,000 | $0 | $90,200 | $90,200 |
| 2009 | $5,200 | $100,000 | $0 | $105,200 | $105,200 |
| 2008 | $5,200 | $125,000 | $0 | $130,200 | $130,200 |
| 2007 | $5,460 | $125,000 | $0 | $130,460 | $130,460 |
Deed and Sales History
| 1 | 01/18/2018 | QCD | Quit Claim Deed | BOENISH, ROBERT | BOENISH, DIANE | | | $0.00 | 32668 | 4437795 |
| 2 | 11/30/2012 | WD | Warranty Deed | GEDDIS, MICHAEL R | BOENISH, ROBERT | | | $83,000.00 | 9789 | 4329416 |
| 3 | 06/01/1994 | WD | Warranty Deed | GALLION, C H | GEDDIS, MICHAEL R | | | $35,600.00 | 42501 | 94013977 |
| 4 | 01/01/1900 | OTHER | Other - Misc. Documents | Unknown | GALLION, C H | | | $0.00 | 0 | 0 |
Payout Agreement
| No payout information available.. |