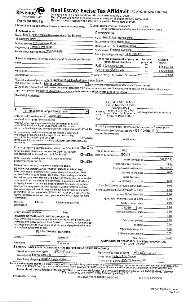
Property
Account |
| Property ID: | 232527 | Abbreviated Legal Description: | CLINTON 1ST WLY 156.86'OF LOT 13 AS MEAS PERP TO W LN SD LOT TGW WLY 81.91'OF LOT 12 & ELY 74.95'OF LOT 13 AS MEAS PERP TO LN COMM TO SD LOTS |
| Geographic ID: | S6380-01-00013-0 | Agent Code: | |
| Type: | Real | | |
| Tax Area: | 720 - APPRAISER-S Whid Schl Dist, Special District, improved & less than 1 acre | Land Use Code | 11 |
| Open Space: | N | DFL | N |
| Historic Property: | N | Remodel Property: | N |
| Multi-Family Redevelopment: | N | | |
| Township: | | Section: | |
| Range: | |
Location |
| Address: | 6599 SIMMONS DR CLINTON, WA 98236 | Mapsco: | |
| Neighborhood: | Cycle 4 | Map ID: | 815 |
| Neighborhood CD: | 4 |
Owner |
| Name: | DAVIS, STEVEN TODD | Owner ID: | 263462 |
| Mailing Address: | MEGHAN EILEEN KENNEY 6599 SIMMONS DR CLINTON, WA 98236 | % Ownership: | 100.0000000000% |
| | | Exemptions: | |
Taxes and Assessment Details
Values
| (+) Improvement Homesite Value: | + | $0 | |
| (+) Improvement Non-Homesite Value: | + | $285,252 | |
| (+) Land Homesite Value: | + | $0 | |
| (+) Land Non-Homesite Value: | + | $340,000 | |
| (+) Curr Use (HS): | + | $0 | $0 |
| (+) Curr Use (NHS): | + | $0 | $0 |
| | | -------------------------- | |
| (=) Market Value: | = | $625,252 | |
| (–) Productivity Loss: | – | $0 | |
| | | -------------------------- | |
| (=) Subtotal: | = | $625,252 | |
| (+) Senior Appraised Value: | + | $0 | |
| (+) Non-Senior Appraised Value: | + | $625,252 | |
| | | -------------------------- | |
| (=) Total Appraised Value: | = | $625,252 | |
| (–) Senior Exemption Loss: | – | $0 | |
| (–) Exemption Loss: | – | $0 | |
| | | -------------------------- | |
| (=) Taxable Value: | = | $625,252 | |
Taxing Jurisdiction
| Owner: | DAVIS, STEVEN TODD | | |
| % Ownership: | 100.0000000000% | | |
| Total Value: | $625,252 | | |
| Tax Area: | 720 - APPRAISER-S Whid Schl Dist, Special District, improved & less than 1 acre |
| CF | Conservation Futures | 0.0316035091 | $625,252 | $625,252 | $19.76 | | |
| FIRE3 | Fire & Rescue Dist #3 S Whidbey GEN | 1.2004855531 | $625,252 | $625,252 | $750.61 | | |
| HOBOND | Hospital BOND | 0.1910887512 | $625,252 | $625,252 | $119.48 | | |
| HOGEN | Hospital GEN | 0.3902502903 | $625,252 | $625,252 | $244.00 | | |
| CE | County Current Expense | 0.3708482477 | $625,252 | $625,252 | $231.87 | | |
| CR | County Roads | 0.4584763726 | $625,252 | $625,252 | $286.66 | | |
| ISLANDEMS | Hospital GEN (EMS) | 0.5000000000 | $625,252 | $625,252 | $312.63 | | |
| LIB | Library Sno-Isle GEN | 0.3153421757 | $625,252 | $625,252 | $197.17 | | |
| PORTWHID | Port of S Whidbey GEN | 0.1094540357 | $625,252 | $625,252 | $68.44 | | |
| SCH206BOND | School 206 BOND | 0.3161759235 | $625,252 | $625,252 | $197.69 | | |
| SCH206MO | School 206 Enrichment | 0.4547169547 | $625,252 | $625,252 | $284.31 | | |
| ST | State School | 1.3035497053 | $625,252 | $625,252 | $815.05 | | |
| ST2 | State School Part 2 | 0.8169543533 | $625,252 | $625,252 | $510.80 | | |
| SWHIDPRBD | P & R S Whidbey BOND | 0.0152817568 | $625,252 | $625,252 | $9.55 | | |
| SWHIDPRBD2 | P & R S Whidbey BOND2 | 0.0138911264 | $625,252 | $625,252 | $8.69 | | |
| SWHIDPRMT | P & R S Whidbey GEN | 0.2053334452 | $625,252 | $625,252 | $128.39 | | |
| | Total Tax Rate: | 6.6934522006 | | | | | |
| | | | | Taxes w/Current Exemptions: | $4,185.10 | | |
| | | | | Taxes w/o Exemptions: | $4,185.10 | | |
Improvement / Building
| Improvement #1: | RESIDENTIAL | State Code: | Y | 2784.0 sqft | Value: | $285,252 |
| Bathrooms: | 2.5 | Bedrooms: | 3 | | Ceiling: | TONGUE & GROOVE | Exterior Wall/Cover: | PLY/HARDBOARD T-111 | | Floor Covering: | CARPET/VINYL 20-80 | Floor Structure: | WOOD W/SUBFLOOR | | Foundation: | CONCRETE | Heating: | BASEBOARD ELECTRIC | | Interior Finish: | DRYWALL PAINT | Plumbing Fixture Cnt: | 13 | | Roof Slope: | 12" IN 12" | Roof Structure/Cover: | BEAM ASPHALT |
|
| | Type | Description | Class CD | Sub Class CD | Year Built | Area |
| | BAS | BASE/MAIN FLOOR | 3 | 0 | 1976 | 1152.0 |
| | DWN | DOWNSTAIRS LIVING AREA | 3 | 0 | 1976 | 1152.0 |
| | OP1 | OPEN PORCH SLAB | 3 | 0 | 1976 | 242.0 |
| | OWP | OPEN WOOD PORCH W/STEPS | 3 | 0 | 1976 | 152.0 |
| | OWP | OPEN WOOD PORCH W/STEPS | 3 | 0 | 1976 | 192.0 |
| | ENP | ENCLOSED PORCH | 3 | 0 | 1976 | 40.0 |
| | UPH | HALF STORY | 3 | 0 | 1976 | 480.0 |
| | oOBD | Out Buildings | 3 | 0 | 1976 | 0.0 |
Sketch
Property Image
Land
| 1 | 15 | SQ (12001-21780) | 0.0000 | 0.00 | 0.00 | 0.00 | 1.00 | $340,000 | $0 |
Roll Value History
| 2026 | N/A | N/A | N/A | N/A | N/A |
| 2025 | $285,252 | $340,000 | $0 | $625,252 | $625,252 |
| 2024 | $295,106 | $300,000 | $0 | $595,106 | $595,106 |
| 2023 | $299,371 | $300,000 | $0 | $599,371 | $599,371 |
| 2022 | $276,128 | $280,000 | $0 | $556,128 | $556,128 |
| 2021 | $260,039 | $230,000 | $0 | $490,039 | $490,039 |
| 2020 | $246,379 | $180,000 | $0 | $426,379 | $426,379 |
| 2019 | $179,683 | $240,000 | $0 | $419,683 | $419,683 |
| 2018 | $180,297 | $200,000 | $0 | $380,297 | $380,297 |
| 2017 | $181,523 | $150,000 | $0 | $331,523 | $331,523 |
| 2016 | $183,973 | $125,000 | $0 | $308,973 | $308,973 |
| 2015 | $186,426 | $125,000 | $0 | $311,426 | $311,426 |
| 2014 | $173,503 | $125,000 | $0 | $298,503 | $298,503 |
| 2013 | $206,825 | $125,000 | $0 | $331,825 | $331,825 |
| 2012 | $209,539 | $85,000 | $0 | $294,539 | $294,539 |
| 2011 | $212,252 | $100,000 | $0 | $312,252 | $312,252 |
| 2010 | $226,279 | $100,000 | $0 | $326,279 | $326,279 |
| 2009 | $236,216 | $125,000 | $0 | $361,216 | $361,216 |
| 2008 | $223,035 | $125,000 | $0 | $348,035 | $348,035 |
| 2007 | $227,211 | $125,000 | $0 | $352,211 | $352,211 |
Deed and Sales History
| 1 | 08/13/2013 | BARGSLD | Bargain And Sale Deed | US BANK NATIONAL ASSOCIATION | DAVIS, STEVEN TODD | | | $232,000.00 | 12484 | 4346747 |
| 2 | 01/10/2013 | TRUSTEED | Trustee's Deed | CARROLL, PAULA J | US BANK NATIONAL ASSOCIATION | | | $233,750.00 | 10130 | 4331359 |
| 3 | 03/03/2006 | WD | Warranty Deed | GABELEIN, SHARON | CARROLL, PAULA J | | | $358,000.00 | 60993 | 4164194 |
| 4 | 04/28/2003 | BLA | DNU - Boundary Line Adjustment | GABELEIN, SHARON | GABELEIN, SHARON | | | $0.00 | 69843 | 4036618 |
| 5 | 03/18/2002 | WD | Warranty Deed | Unknown | GABELEIN, SHARON | | | $231,000.00 | 21086 | 4014963 |
Payout Agreement
| No payout information available.. |