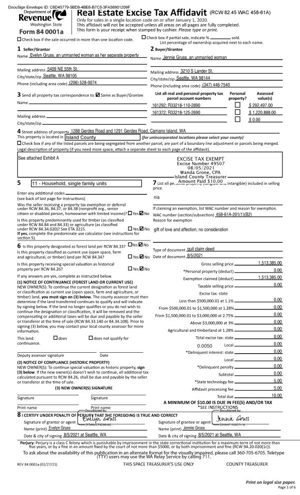
Property
Account |
| Property ID: | 232536 | Abbreviated Legal Description: | CLINTON 1ST LOT 14 |
| Geographic ID: | S6380-01-00014-0 | Agent Code: | |
| Type: | Real | | |
| Tax Area: | 720 - APPRAISER-S Whid Schl Dist, Special District, improved & less than 1 acre | Land Use Code | 11 |
| Open Space: | N | DFL | N |
| Historic Property: | N | Remodel Property: | N |
| Multi-Family Redevelopment: | N | | |
| Township: | | Section: | |
| Range: | |
Location |
| Address: | 6591 SIMMONS DR CLINTON, WA 98236 | Mapsco: | |
| Neighborhood: | Cycle 4 | Map ID: | 815 |
| Neighborhood CD: | 4 |
Owner |
| Name: | MULCAHY, FRANCIS J | Owner ID: | 19740 |
| Mailing Address: | 6591 SIMMONS DR CLINTON, WA 98236-9636 | % Ownership: | 100.0000000000% |
| | | Exemptions: | |
Taxes and Assessment Details
Values
| (+) Improvement Homesite Value: | + | $0 | |
| (+) Improvement Non-Homesite Value: | + | $318,672 | |
| (+) Land Homesite Value: | + | $0 | |
| (+) Land Non-Homesite Value: | + | $340,000 | |
| (+) Curr Use (HS): | + | $0 | $0 |
| (+) Curr Use (NHS): | + | $0 | $0 |
| | | -------------------------- | |
| (=) Market Value: | = | $658,672 | |
| (–) Productivity Loss: | – | $0 | |
| | | -------------------------- | |
| (=) Subtotal: | = | $658,672 | |
| (+) Senior Appraised Value: | + | $0 | |
| (+) Non-Senior Appraised Value: | + | $658,672 | |
| | | -------------------------- | |
| (=) Total Appraised Value: | = | $658,672 | |
| (–) Senior Exemption Loss: | – | $0 | |
| (–) Exemption Loss: | – | $0 | |
| | | -------------------------- | |
| (=) Taxable Value: | = | $658,672 | |
Taxing Jurisdiction
| Owner: | MULCAHY, FRANCIS J | | |
| % Ownership: | 100.0000000000% | | |
| Total Value: | $658,672 | | |
| Tax Area: | 720 - APPRAISER-S Whid Schl Dist, Special District, improved & less than 1 acre |
| CF | Conservation Futures | 0.0316035091 | $658,672 | $658,672 | $20.82 | | |
| FIRE3 | Fire & Rescue Dist #3 S Whidbey GEN | 1.2004855531 | $658,672 | $658,672 | $790.73 | | |
| HOBOND | Hospital BOND | 0.1910887512 | $658,672 | $658,672 | $125.86 | | |
| HOGEN | Hospital GEN | 0.3902502903 | $658,672 | $658,672 | $257.05 | | |
| CE | County Current Expense | 0.3708482477 | $658,672 | $658,672 | $244.27 | | |
| CR | County Roads | 0.4584763726 | $658,672 | $658,672 | $301.99 | | |
| ISLANDEMS | Hospital GEN (EMS) | 0.5000000000 | $658,672 | $658,672 | $329.34 | | |
| LIB | Library Sno-Isle GEN | 0.3153421757 | $658,672 | $658,672 | $207.71 | | |
| PORTWHID | Port of S Whidbey GEN | 0.1094540357 | $658,672 | $658,672 | $72.09 | | |
| SCH206BOND | School 206 BOND | 0.3161759235 | $658,672 | $658,672 | $208.26 | | |
| SCH206MO | School 206 Enrichment | 0.4547169547 | $658,672 | $658,672 | $299.51 | | |
| ST | State School | 1.3035497053 | $658,672 | $658,672 | $858.61 | | |
| ST2 | State School Part 2 | 0.8169543533 | $658,672 | $658,672 | $538.10 | | |
| SWHIDPRBD | P & R S Whidbey BOND | 0.0152817568 | $658,672 | $658,672 | $10.07 | | |
| SWHIDPRBD2 | P & R S Whidbey BOND2 | 0.0138911264 | $658,672 | $658,672 | $9.15 | | |
| SWHIDPRMT | P & R S Whidbey GEN | 0.2053334452 | $658,672 | $658,672 | $135.25 | | |
| | Total Tax Rate: | 6.6934522006 | | | | | |
| | | | | Taxes w/Current Exemptions: | $4,408.81 | | |
| | | | | Taxes w/o Exemptions: | $4,408.81 | | |
Improvement / Building
| Improvement #1: | RESIDENTIAL | State Code: | Y | 2332.0 sqft | Value: | $318,672 |
| Bathrooms: | 2.5 | Bedrooms: | 5 | | Ceiling: | DRYWALL PAINTED | Exterior Wall/Cover: | WOOD SIDING | | Floor Covering: | CARPET/VINYL 20-80 | Floor Structure: | WOOD W/SUBFLOOR | | Foundation: | CONCRETE | Heating: | FHA OIL | | Interior Finish: | DRYWALL PAINT | Plumbing Fixture Cnt: | 12 | | Roof Slope: | 4" IN 12" | Roof Structure/Cover: | CJ ASPHALT |
|
| | Type | Description | Class CD | Sub Class CD | Year Built | Area |
| | BAS | BASE/MAIN FLOOR | 3 | 0 | 1972 | 1534.0 |
| | UB8 | BASEMENT UNFINISHED 8" | 3 | 0 | 1972 | 696.0 |
| | DWN | DOWNSTAIRS LIVING AREA | 3 | 0 | 1972 | 798.0 |
| | OP2 | OPEN PORCH W/STEPS | 3 | 0 | 1972 | 42.0 |
| | OP4 | OPEN PORCH W/CEILING-ROOF | 3 | 0 | 1972 | 109.0 |
| | DGR | DETACHED GARAGE | 3 | 0 | 1972 | 483.0 |
| | OWP | OPEN WOOD PORCH W/STEPS | 3 | 0 | 1972 | 765.0 |
Sketch
Property Image
Land
| 1 | 15 | SQ (12001-21780) | 0.0000 | 0.00 | 0.00 | 0.00 | 1.00 | $340,000 | $0 |
Roll Value History
| 2026 | N/A | N/A | N/A | N/A | N/A |
| 2025 | $318,672 | $340,000 | $0 | $658,672 | $658,672 |
| 2024 | $323,144 | $300,000 | $0 | $623,144 | $623,144 |
| 2023 | $327,616 | $300,000 | $0 | $627,616 | $627,616 |
| 2022 | $300,721 | $280,000 | $0 | $580,721 | $580,721 |
| 2021 | $284,129 | $230,000 | $0 | $514,129 | $514,129 |
| 2020 | $262,622 | $180,000 | $0 | $442,622 | $442,622 |
| 2019 | $189,540 | $240,000 | $0 | $429,540 | $429,540 |
| 2018 | $190,204 | $200,000 | $0 | $390,204 | $390,204 |
| 2017 | $191,535 | $150,000 | $0 | $341,535 | $341,535 |
| 2016 | $194,195 | $125,000 | $0 | $319,195 | $319,195 |
| 2015 | $196,855 | $125,000 | $0 | $321,855 | $321,855 |
| 2014 | $195,851 | $125,000 | $0 | $320,851 | $320,851 |
| 2013 | $198,532 | $125,000 | $0 | $323,532 | $323,532 |
| 2012 | $201,213 | $85,000 | $0 | $286,213 | $286,213 |
| 2011 | $203,891 | $100,000 | $0 | $303,891 | $303,891 |
| 2010 | $215,883 | $100,000 | $0 | $315,883 | $315,883 |
| 2009 | $225,153 | $125,000 | $0 | $350,153 | $350,153 |
| 2008 | $199,806 | $125,000 | $0 | $324,806 | $324,806 |
| 2007 | $202,517 | $125,000 | $0 | $327,517 | $327,517 |
Deed and Sales History
| 1 | 07/01/1985 | WD | Warranty Deed | MARBLE, DON B | MULCAHY, FRANCIS J | | | $86,500.00 | 52055 | 85008108 |
| 2 | 01/01/1900 | OTHER | Other - Misc. Documents | Unknown | MARBLE, DON B | | | $0.00 | 0 | 0 |
Payout Agreement
| No payout information available.. |