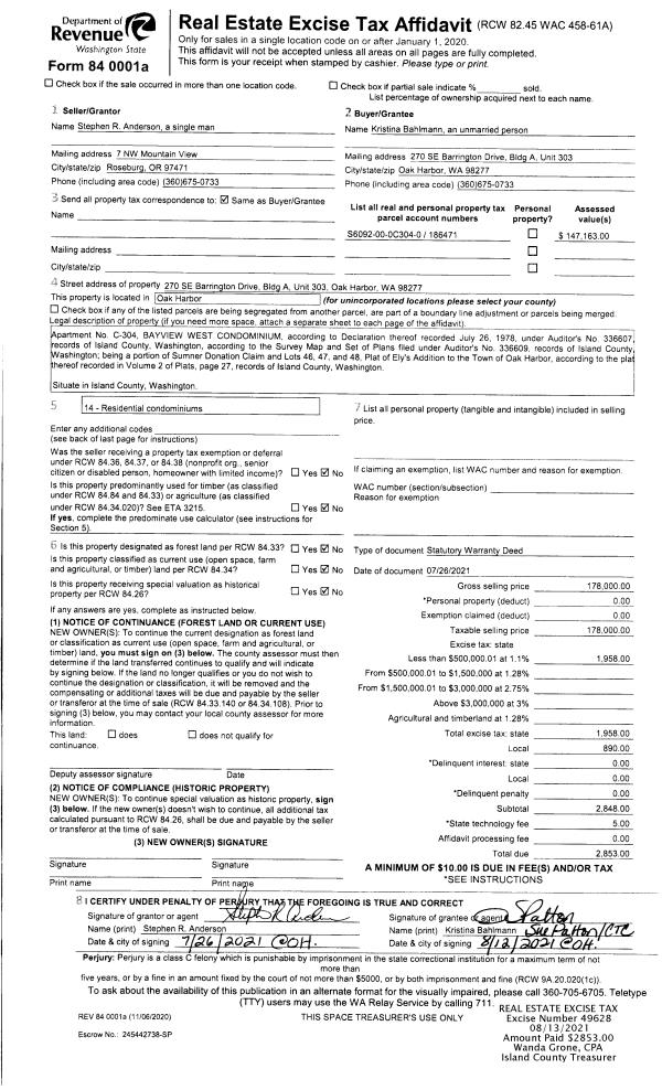
Property
Account |
| Property ID: | 232652 | Abbreviated Legal Description: | CLINTON 1ST LOT 26 |
| Geographic ID: | S6380-01-00026-0 | Agent Code: | |
| Type: | Real | | |
| Tax Area: | 720 - APPRAISER-S Whid Schl Dist, Special District, improved & less than 1 acre | Land Use Code | 11 |
| Open Space: | N | DFL | N |
| Historic Property: | N | Remodel Property: | N |
| Multi-Family Redevelopment: | N | | |
| Township: | | Section: | |
| Range: | |
Location |
| Address: | 6548 SIMMONS DR CLINTON, WA 98236 | Mapsco: | |
| Neighborhood: | Cycle 4 | Map ID: | 815 |
| Neighborhood CD: | 4 |
Owner |
| Name: | PERKINS, SCOTT MATTHEW | Owner ID: | 271797 |
| Mailing Address: | MIN HYE PARK 8860 RENDON DR ANCHORAGE, AK 99507-3973 | % Ownership: | 100.0000000000% |
| | | Exemptions: | |
Taxes and Assessment Details
Values
| (+) Improvement Homesite Value: | + | $0 | |
| (+) Improvement Non-Homesite Value: | + | $395,111 | |
| (+) Land Homesite Value: | + | $0 | |
| (+) Land Non-Homesite Value: | + | $240,000 | |
| (+) Curr Use (HS): | + | $0 | $0 |
| (+) Curr Use (NHS): | + | $0 | $0 |
| | | -------------------------- | |
| (=) Market Value: | = | $635,111 | |
| (–) Productivity Loss: | – | $0 | |
| | | -------------------------- | |
| (=) Subtotal: | = | $635,111 | |
| (+) Senior Appraised Value: | + | $0 | |
| (+) Non-Senior Appraised Value: | + | $635,111 | |
| | | -------------------------- | |
| (=) Total Appraised Value: | = | $635,111 | |
| (–) Senior Exemption Loss: | – | $0 | |
| (–) Exemption Loss: | – | $0 | |
| | | -------------------------- | |
| (=) Taxable Value: | = | $635,111 | |
Taxing Jurisdiction
| Owner: | PERKINS, SCOTT MATTHEW | | |
| % Ownership: | 100.0000000000% | | |
| Total Value: | $635,111 | | |
| Tax Area: | 720 - APPRAISER-S Whid Schl Dist, Special District, improved & less than 1 acre |
| CF | Conservation Futures | 0.0316035091 | $635,111 | $635,111 | $20.07 | | |
| FIRE3 | Fire & Rescue Dist #3 S Whidbey GEN | 1.2004855531 | $635,111 | $635,111 | $762.44 | | |
| HOBOND | Hospital BOND | 0.1910887512 | $635,111 | $635,111 | $121.36 | | |
| HOGEN | Hospital GEN | 0.3902502903 | $635,111 | $635,111 | $247.85 | | |
| CE | County Current Expense | 0.3708482477 | $635,111 | $635,111 | $235.53 | | |
| CR | County Roads | 0.4584763726 | $635,111 | $635,111 | $291.18 | | |
| ISLANDEMS | Hospital GEN (EMS) | 0.5000000000 | $635,111 | $635,111 | $317.56 | | |
| LIB | Library Sno-Isle GEN | 0.3153421757 | $635,111 | $635,111 | $200.28 | | |
| PORTWHID | Port of S Whidbey GEN | 0.1094540357 | $635,111 | $635,111 | $69.52 | | |
| SCH206BOND | School 206 BOND | 0.3161759235 | $635,111 | $635,111 | $200.81 | | |
| SCH206MO | School 206 Enrichment | 0.4547169547 | $635,111 | $635,111 | $288.80 | | |
| ST | State School | 1.3035497053 | $635,111 | $635,111 | $827.90 | | |
| ST2 | State School Part 2 | 0.8169543533 | $635,111 | $635,111 | $518.86 | | |
| SWHIDPRBD | P & R S Whidbey BOND | 0.0152817568 | $635,111 | $635,111 | $9.71 | | |
| SWHIDPRBD2 | P & R S Whidbey BOND2 | 0.0138911264 | $635,111 | $635,111 | $8.82 | | |
| SWHIDPRMT | P & R S Whidbey GEN | 0.2053334452 | $635,111 | $635,111 | $130.41 | | |
| | Total Tax Rate: | 6.6934522006 | | | | | |
| | | | | Taxes w/Current Exemptions: | $4,251.10 | | |
| | | | | Taxes w/o Exemptions: | $4,251.10 | | |
Improvement / Building
| Improvement #1: | RESIDENTIAL | State Code: | Y | 2807.5 sqft | Value: | $395,111 |
| Bathrooms: | 3 | Bedrooms: | 4 | | Ceiling: | DRYWALL PAINTED | Exterior Wall/Cover: | WOOD SIDING | | Floor Covering: | HARDWOOD/CARP 60-40 | Floor Structure: | WOOD W/SUBFLOOR | | Foundation: | CONCRETE | Heating: | FHA GAS | | Interior Finish: | DRYWALL PAINT | Plumbing Fixture Cnt: | 12 | | Roof Slope: | 3" IN 12" | Roof Structure/Cover: | BEAM ALUMINUM HEAVY |
|
| | Type | Description | Class CD | Sub Class CD | Year Built | Area |
| | BAS | BASE/MAIN FLOOR | 3 | 0 | 1964 | 2029.5 |
| | UB6 | BASEMENT UNFINISHED 6" | 3 | 0 | 1964 | 242.0 |
| | DWN | DOWNSTAIRS LIVING AREA | 3 | 0 | 1964 | 778.0 |
| | OP4 | OPEN PORCH W/CEILING-ROOF | 3 | 0 | 1964 | 43.5 |
| | BAW | BALCONY WOOD RAIL | 3 | 0 | 1964 | 287.0 |
| | DGR | DETACHED GARAGE | 3 | 0 | 1964 | 750.0 |
| | OWR | OPEN WOOD PORCH W/STEPS/ROOF | 3 | 0 | 1964 | 304.0 |
Sketch
Property Image
Land
| 1 | 15 | SQ (12001-21780) | 0.0000 | 0.00 | 0.00 | 0.00 | 1.00 | $240,000 | $0 |
Roll Value History
| 2026 | N/A | N/A | N/A | N/A | N/A |
| 2025 | $395,111 | $240,000 | $0 | $635,111 | $635,111 |
| 2024 | $400,505 | $230,000 | $0 | $630,505 | $630,505 |
| 2023 | $405,900 | $230,000 | $0 | $635,900 | $635,900 |
| 2022 | $372,437 | $210,000 | $0 | $582,437 | $582,437 |
| 2021 | $328,086 | $150,000 | $0 | $478,086 | $478,086 |
| 2020 | $308,539 | $130,000 | $0 | $438,539 | $438,539 |
| 2019 | $245,567 | $150,000 | $0 | $395,567 | $395,567 |
| 2018 | $246,372 | $130,000 | $0 | $376,372 | $376,372 |
| 2017 | $247,932 | $110,000 | $0 | $357,932 | $357,932 |
| 2016 | $251,152 | $100,000 | $0 | $351,152 | $351,152 |
| 2015 | $254,372 | $100,000 | $0 | $354,372 | $354,372 |
| 2014 | $205,535 | $85,000 | $0 | $290,535 | $290,535 |
| 2013 | $208,283 | $85,000 | $0 | $293,283 | $293,283 |
| 2012 | $211,031 | $76,000 | $0 | $287,031 | $287,031 |
| 2011 | $213,779 | $85,000 | $0 | $298,779 | $298,779 |
| 2010 | $229,875 | $85,000 | $0 | $314,875 | $314,875 |
| 2009 | $236,993 | $100,000 | $0 | $336,993 | $336,993 |
| 2008 | $186,922 | $125,000 | $0 | $311,922 | $311,922 |
| 2007 | $189,663 | $125,000 | $0 | $314,663 | $314,663 |
Deed and Sales History
| 1 | 08/05/2015 | SPWARDEED | Special Warranty Deed | SIMMONS, CARL | PERKINS, SCOTT MATTHEW | | | $299,000.00 | 20961 | 4384249 |
Payout Agreement
| No payout information available.. |