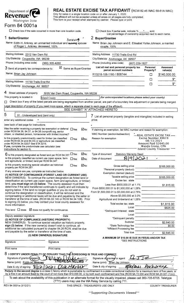
Property
Account |
| Property ID: | 232705 | Abbreviated Legal Description: | CLINTON 1ST LOTS 31, 32, 33 & 34 EX E175' |
| Geographic ID: | S6380-01-00031-1 | Agent Code: | |
| Type: | Real | | |
| Tax Area: | 720 - APPRAISER-S Whid Schl Dist, Special District, improved & less than 1 acre | Land Use Code | 11 |
| Open Space: | N | DFL | N |
| Historic Property: | N | Remodel Property: | N |
| Multi-Family Redevelopment: | N | | |
| Township: | | Section: | |
| Range: | |
Location |
| Address: | 4729 OLIVE DR CLINTON, WA 98236 | Mapsco: | |
| Neighborhood: | Cycle 4 | Map ID: | 815 |
| Neighborhood CD: | 4 |
Owner |
| Name: | MACARRO, JOHN LAWRENCE | Owner ID: | 294051 |
| Mailing Address: | KRISTINA CONRELL AQUINA MACARRO 4729 OLIVE DR CLINTON, WA 98236 | % Ownership: | 100.0000000000% |
| | | Exemptions: | |
Taxes and Assessment Details
Values
| (+) Improvement Homesite Value: | + | $0 | |
| (+) Improvement Non-Homesite Value: | + | $384,963 | |
| (+) Land Homesite Value: | + | $0 | |
| (+) Land Non-Homesite Value: | + | $340,000 | |
| (+) Curr Use (HS): | + | $0 | $0 |
| (+) Curr Use (NHS): | + | $0 | $0 |
| | | -------------------------- | |
| (=) Market Value: | = | $724,963 | |
| (–) Productivity Loss: | – | $0 | |
| | | -------------------------- | |
| (=) Subtotal: | = | $724,963 | |
| (+) Senior Appraised Value: | + | $0 | |
| (+) Non-Senior Appraised Value: | + | $724,963 | |
| | | -------------------------- | |
| (=) Total Appraised Value: | = | $724,963 | |
| (–) Senior Exemption Loss: | – | $0 | |
| (–) Exemption Loss: | – | $0 | |
| | | -------------------------- | |
| (=) Taxable Value: | = | $724,963 | |
Taxing Jurisdiction
| Owner: | MACARRO, JOHN LAWRENCE | | |
| % Ownership: | 100.0000000000% | | |
| Total Value: | $724,963 | | |
| Tax Area: | 720 - APPRAISER-S Whid Schl Dist, Special District, improved & less than 1 acre |
| CF | Conservation Futures | 0.0316035091 | $724,963 | $724,963 | $22.91 | | |
| FIRE3 | Fire & Rescue Dist #3 S Whidbey GEN | 1.2004855531 | $724,963 | $724,963 | $870.31 | | |
| HOBOND | Hospital BOND | 0.1910887512 | $724,963 | $724,963 | $138.53 | | |
| HOGEN | Hospital GEN | 0.3902502903 | $724,963 | $724,963 | $282.92 | | |
| CE | County Current Expense | 0.3708482477 | $724,963 | $724,963 | $268.85 | | |
| CR | County Roads | 0.4584763726 | $724,963 | $724,963 | $332.38 | | |
| ISLANDEMS | Hospital GEN (EMS) | 0.5000000000 | $724,963 | $724,963 | $362.48 | | |
| LIB | Library Sno-Isle GEN | 0.3153421757 | $724,963 | $724,963 | $228.61 | | |
| PORTWHID | Port of S Whidbey GEN | 0.1094540357 | $724,963 | $724,963 | $79.35 | | |
| SCH206BOND | School 206 BOND | 0.3161759235 | $724,963 | $724,963 | $229.22 | | |
| SCH206MO | School 206 Enrichment | 0.4547169547 | $724,963 | $724,963 | $329.65 | | |
| ST | State School | 1.3035497053 | $724,963 | $724,963 | $945.03 | | |
| ST2 | State School Part 2 | 0.8169543533 | $724,963 | $724,963 | $592.26 | | |
| SWHIDPRBD | P & R S Whidbey BOND | 0.0152817568 | $724,963 | $724,963 | $11.08 | | |
| SWHIDPRBD2 | P & R S Whidbey BOND2 | 0.0138911264 | $724,963 | $724,963 | $10.07 | | |
| SWHIDPRMT | P & R S Whidbey GEN | 0.2053334452 | $724,963 | $724,963 | $148.86 | | |
| | Total Tax Rate: | 6.6934522006 | | | | | |
| | | | | Taxes w/Current Exemptions: | $4,852.51 | | |
| | | | | Taxes w/o Exemptions: | $4,852.51 | | |
Improvement / Building
| Improvement #1: | RESIDENTIAL | State Code: | Y | 2570.0 sqft | Value: | $384,963 |
| Bathrooms: | 2 | Bedrooms: | 4 | | Ceiling: | DRYWALL PAINTED | Cooling: | HEAT PUMP/CONV/V | | Exterior Wall/Cover: | VINYL | Floor Covering: | CERAMIC TILE/CPT 40-60 | | Floor Structure: | WOOD W/SUBFLOOR | Foundation: | CONCRETE | | Interior Finish: | DRYWALL PAINT | Plumbing Fixture Cnt: | 10 | | Roof Slope: | 5" IN 12" | Roof Structure/Cover: | BEAM ALUMINUM HEAVY |
|
| | Type | Description | Class CD | Sub Class CD | Year Built | Area |
| | BAS | BASE/MAIN FLOOR | 3 | 0 | 1962 | 1530.0 |
| | UB6 | BASEMENT UNFINISHED 6" | 3 | 0 | 1962 | 490.0 |
| | DWN | DOWNSTAIRS LIVING AREA | 3 | 0 | 1962 | 1040.0 |
| | OP1 | OPEN PORCH SLAB | 3 | 0 | 1962 | 1000.0 |
| | OP4 | OPEN PORCH W/CEILING-ROOF | 3 | 0 | 1962 | 120.0 |
| | OP4 | OPEN PORCH W/CEILING-ROOF | 3 | 0 | 1962 | 132.0 |
| | OCP | OPEN CARPORT | 3 | 0 | 1962 | 500.0 |
| | OWP | OPEN WOOD PORCH W/STEPS | 3 | 0 | 1962 | 674.0 |
Sketch
Property Image
Land
| 1 | 17 | AC (01.01-02.00) | 1.7700 | 77101.20 | 0.00 | 0.00 | 1.00 | $340,000 | $0 |
Roll Value History
| 2026 | N/A | N/A | N/A | N/A | N/A |
| 2025 | $384,963 | $340,000 | $0 | $724,963 | $724,963 |
| 2024 | $389,882 | $300,000 | $0 | $689,882 | $689,882 |
| 2023 | $394,801 | $300,000 | $0 | $694,801 | $694,801 |
| 2022 | $361,964 | $280,000 | $0 | $641,964 | $641,964 |
| 2021 | $338,681 | $230,000 | $0 | $568,681 | $568,681 |
| 2020 | $314,376 | $180,000 | $0 | $494,376 | $494,376 |
| 2019 | $229,030 | $260,000 | $0 | $489,030 | $489,030 |
| 2018 | $229,735 | $200,000 | $0 | $429,735 | $429,735 |
| 2017 | $231,144 | $200,000 | $0 | $431,144 | $431,144 |
| 2016 | $233,961 | $200,000 | $0 | $433,961 | $433,961 |
| 2015 | $235,740 | $150,000 | $0 | $385,740 | $385,740 |
| 2014 | $209,334 | $150,000 | $0 | $359,334 | $359,334 |
| 2013 | $212,172 | $150,000 | $0 | $362,172 | $362,172 |
| 2012 | $215,012 | $150,000 | $0 | $365,012 | $365,012 |
| 2011 | $217,847 | $150,000 | $0 | $367,847 | $367,847 |
| 2010 | $233,539 | $150,000 | $0 | $383,539 | $383,539 |
| 2009 | $243,852 | $175,000 | $0 | $418,852 | $418,852 |
| 2008 | $223,903 | $200,000 | $0 | $423,903 | $423,903 |
| 2007 | $226,971 | $200,000 | $0 | $426,971 | $426,971 |
Deed and Sales History
| 1 | 04/28/2020 | WD | Warranty Deed | AQUINO, VICENTE FERRER | MACARRO, JOHN LAWRENCE | | | $239,166.00 | 42871 | 4485776 |
| 2 | 12/18/2015 | WD | Warranty Deed | BENJAMIN, WILLIAM H / MELINDA | AQUINO, VICENTE FERRER | | | $440,000.00 | 22711 | 4391946 |
| 3 | 11/01/1991 | WD | Warranty Deed | ORR, STEPHEN C | BENJAMIN, WILLIAM H | | | $203,000.00 | 22675 | 92012866 |
| 4 | 04/01/1988 | QCD | Quit Claim Deed | ORR, STEPHEN C | ORR, STEPHEN C | | | $0.00 | 81045 | 88004002 |
| 5 | 03/01/1988 | PRD | Personal Representatives Deed | ORR, MARTIN | ORR, STEPHEN C | | | $0.00 | 81044 | 88004001 |
| 6 | 01/01/1900 | OTHER | Other - Misc. Documents | Unknown | ORR, MARTIN | | | $0.00 | 0 | 0 |
Payout Agreement
| No payout information available.. |