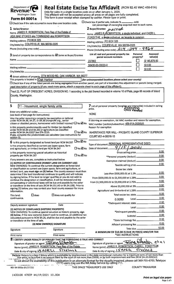
Property
Account |
| Property ID: | 232849 | Abbreviated Legal Description: | CLINTON BCH 1 LOT 9 INCL INT IN COMM BCH |
| Geographic ID: | S6385-00-00009-0 | Agent Code: | |
| Type: | Real | | |
| Tax Area: | 729 - APPRAISER-S Whid Schl Dist, Special District, vacant & 50 acres or less | Land Use Code | 99 |
| Open Space: | N | DFL | N |
| Historic Property: | N | Remodel Property: | N |
| Multi-Family Redevelopment: | N | | |
| Township: | | Section: | |
| Range: | |
Location |
| Address: | | Mapsco: | |
| Neighborhood: | Cycle 4 | Map ID: | 808 |
| Neighborhood CD: | 4 |
Owner |
| Name: | COX, ANNETTE C | Owner ID: | 281189 |
| Mailing Address: | GREGORY P COX KATHRYN M COX 1204 KIRKLAND AVE KIRKLAND, WA 98033 | % Ownership: | 100.0000000000% |
| | | Exemptions: | |
Taxes and Assessment Details
Values
| (+) Improvement Homesite Value: | + | $0 | |
| (+) Improvement Non-Homesite Value: | + | $0 | |
| (+) Land Homesite Value: | + | $0 | |
| (+) Land Non-Homesite Value: | + | $7,000 | |
| (+) Curr Use (HS): | + | $0 | $0 |
| (+) Curr Use (NHS): | + | $0 | $0 |
| | | -------------------------- | |
| (=) Market Value: | = | $7,000 | |
| (–) Productivity Loss: | – | $0 | |
| | | -------------------------- | |
| (=) Subtotal: | = | $7,000 | |
| (+) Senior Appraised Value: | + | $0 | |
| (+) Non-Senior Appraised Value: | + | $7,000 | |
| | | -------------------------- | |
| (=) Total Appraised Value: | = | $7,000 | |
| (–) Senior Exemption Loss: | – | $0 | |
| (–) Exemption Loss: | – | $0 | |
| | | -------------------------- | |
| (=) Taxable Value: | = | $7,000 | |
Taxing Jurisdiction
| Owner: | COX, ANNETTE C | | |
| % Ownership: | 100.0000000000% | | |
| Total Value: | $7,000 | | |
| Tax Area: | 729 - APPRAISER-S Whid Schl Dist, Special District, vacant & 50 acres or less |
| CF | Conservation Futures | 0.0316035091 | $7,000 | $7,000 | $0.22 | | |
| HOBOND | Hospital BOND | 0.1910887512 | $7,000 | $7,000 | $1.34 | | |
| HOGEN | Hospital GEN | 0.3902502903 | $7,000 | $7,000 | $2.73 | | |
| CE | County Current Expense | 0.3708482477 | $7,000 | $7,000 | $2.60 | | |
| CR | County Roads | 0.4584763726 | $7,000 | $7,000 | $3.21 | | |
| ISLANDEMS | Hospital GEN (EMS) | 0.5000000000 | $7,000 | $7,000 | $3.50 | | |
| LIB | Library Sno-Isle GEN | 0.3153421757 | $7,000 | $7,000 | $2.21 | | |
| PORTWHID | Port of S Whidbey GEN | 0.1094540357 | $7,000 | $7,000 | $0.77 | | |
| SCH206BOND | School 206 BOND | 0.3161759235 | $7,000 | $7,000 | $2.21 | | |
| SCH206MO | School 206 Enrichment | 0.4547169547 | $7,000 | $7,000 | $3.18 | | |
| ST | State School | 1.3035497053 | $7,000 | $7,000 | $9.12 | | |
| ST2 | State School Part 2 | 0.8169543533 | $7,000 | $7,000 | $5.72 | | |
| SWHIDPRBD | P & R S Whidbey BOND | 0.0152817568 | $7,000 | $7,000 | $0.11 | | |
| SWHIDPRBD2 | P & R S Whidbey BOND2 | 0.0138911264 | $7,000 | $7,000 | $0.10 | | |
| SWHIDPRMT | P & R S Whidbey GEN | 0.2053334452 | $7,000 | $7,000 | $1.44 | | |
| | Total Tax Rate: | 5.4929666475 | | | | | |
| | | | | Taxes w/Current Exemptions: | $38.46 | | |
| | | | | Taxes w/o Exemptions: | $38.46 | | |
Improvement / Building
Sketch
| No sketches available for this property. |
Property Image
Land
| 1 | 54 | WASTE LAND | 0.0000 | 0.00 | 0.00 | 0.00 | 1.00 | $7,000 | $0 |
Roll Value History
| 2026 | N/A | N/A | N/A | N/A | N/A |
| 2025 | $0 | $7,000 | $0 | $7,000 | $7,000 |
| 2024 | $0 | $14,000 | $0 | $14,000 | $14,000 |
| 2023 | $0 | $14,000 | $0 | $14,000 | $14,000 |
| 2022 | $0 | $14,000 | $0 | $14,000 | $14,000 |
| 2021 | $0 | $14,000 | $0 | $14,000 | $14,000 |
| 2020 | $0 | $7,000 | $0 | $7,000 | $7,000 |
| 2019 | $0 | $5,000 | $0 | $5,000 | $5,000 |
| 2018 | $0 | $5,000 | $0 | $5,000 | $5,000 |
| 2017 | $0 | $5,000 | $0 | $5,000 | $5,000 |
| 2016 | $0 | $5,000 | $0 | $5,000 | $5,000 |
| 2015 | $0 | $5,000 | $0 | $5,000 | $5,000 |
| 2014 | $0 | $30,000 | $0 | $30,000 | $30,000 |
| 2013 | $0 | $30,000 | $0 | $30,000 | $30,000 |
| 2012 | $0 | $30,000 | $0 | $30,000 | $30,000 |
| 2011 | $0 | $30,000 | $0 | $30,000 | $30,000 |
| 2010 | $0 | $30,000 | $0 | $30,000 | $30,000 |
| 2009 | $0 | $30,000 | $0 | $30,000 | $30,000 |
| 2008 | $0 | $30,000 | $0 | $30,000 | $30,000 |
| 2007 | $0 | $30,000 | $0 | $30,000 | $30,000 |
Deed and Sales History
| 1 | 07/13/2017 | WD | Warranty Deed | LAMBERT TRUSTEE, WAYNE A | COX, ANNETTE C | | | $5,000.00 | 30405 | 4427173 |
| 2 | 04/12/2016 | WD | Warranty Deed | LAMBERT, WAYNE A | LAMBERT TRUSTEE, WAYNE A | | | $0.00 | 24251 | |
| 3 | 11/01/1989 | WD | Warranty Deed | CHASE, JOE L | LAMBERT, WAYNE A | | | $22,000.00 | 95388 | 89017239 |
| 4 | 01/01/1900 | OTHER | Other - Misc. Documents | Unknown | CHASE, JOE L | | | $0.00 | 0 | 0 |
Payout Agreement
| No payout information available.. |