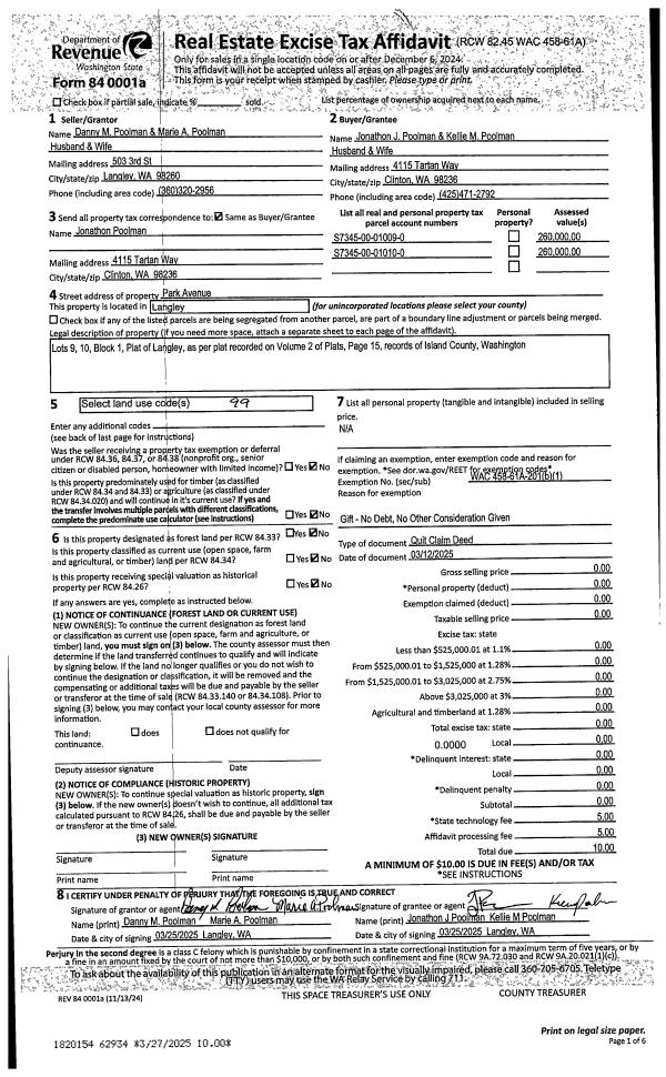
Property
Account |
| Property ID: | 233 | Abbreviated Legal Description: | 26 - IN GL3: BG NECR GL3 S01*W667.01' N88*W1182.92' TO CM WLN WEST BEACH RD N13*E318.77' TPB N13*E111 .19' N88*W171.97' S23*E93 .68' SLY ALG CUR/R 24.37' S88*E105.07' TPB (LOT 2 BLK 1 UNREC OCEAN VU GARDENS) |
| Geographic ID: | R03213-235-4100 | Agent Code: | |
| Type: | Real | | |
| Tax Area: | 110 - APPRAISER-OH Schl Dist, outside OH, improved & 1 acre or less | Land Use Code | 11 |
| Open Space: | N | DFL | N |
| Historic Property: | N | Remodel Property: | N |
| Multi-Family Redevelopment: | N | | |
| Township: | 32 | Section: | 13 |
| Range: | R0 |
Location |
| Address: | 1379 WEST BEACH RD OAK HARBOR, WA 98277 | Mapsco: | |
| Neighborhood: | Area 2 Waterfront Westside Res | Map ID: | 1 |
| Neighborhood CD: | 2WFTW01R |
Owner |
| Name: | BARBER, WILLIAM C | Owner ID: | 5346 |
| Mailing Address: | 1379 WEST BEACH RD OAK HARBOR, WA 98277-8573 | % Ownership: | 100.0000000000% |
| | | Exemptions: | |
Taxes and Assessment Details
Values
| (+) Improvement Homesite Value: | + | $0 | |
| (+) Improvement Non-Homesite Value: | + | $299,434 | |
| (+) Land Homesite Value: | + | $0 | |
| (+) Land Non-Homesite Value: | + | $500,000 | |
| (+) Curr Use (HS): | + | $0 | $0 |
| (+) Curr Use (NHS): | + | $0 | $0 |
| | | -------------------------- | |
| (=) Market Value: | = | $799,434 | |
| (–) Productivity Loss: | – | $0 | |
| | | -------------------------- | |
| (=) Subtotal: | = | $799,434 | |
| (+) Senior Appraised Value: | + | $0 | |
| (+) Non-Senior Appraised Value: | + | $799,434 | |
| | | -------------------------- | |
| (=) Total Appraised Value: | = | $799,434 | |
| (–) Senior Exemption Loss: | – | $0 | |
| (–) Exemption Loss: | – | $0 | |
| | | -------------------------- | |
| (=) Taxable Value: | = | $799,434 | |
Taxing Jurisdiction
| Owner: | BARBER, WILLIAM C | | |
| % Ownership: | 100.0000000000% | | |
| Total Value: | $799,434 | | |
| Tax Area: | 110 - APPRAISER-OH Schl Dist, outside OH, improved & 1 acre or less |
| CF | Conservation Futures | 0.0316035091 | $799,434 | $799,434 | $25.26 | | |
| CEM1 | Cemetery #1 | 0.0040320932 | $799,434 | $799,434 | $3.22 | | |
| FIRE2 | Fire & Rescue Dist #2 N Whidbey GEN | 0.5475949600 | $799,434 | $799,434 | $437.77 | | |
| HOBOND | Hospital BOND | 0.1910887512 | $799,434 | $799,434 | $152.76 | | |
| HOGEN | Hospital GEN | 0.3902502903 | $799,434 | $799,434 | $311.98 | | |
| CE | County Current Expense | 0.3708482477 | $799,434 | $799,434 | $296.47 | | |
| CR | County Roads | 0.4584763726 | $799,434 | $799,434 | $366.52 | | |
| ISLANDEMS | Hospital GEN (EMS) | 0.5000000000 | $799,434 | $799,434 | $399.72 | | |
| LIB | Library Sno-Isle GEN | 0.3153421757 | $799,434 | $799,434 | $252.10 | | |
| NWHIDPRMT | P & R N Whidbey GEN | 0.2004466701 | $799,434 | $799,434 | $160.24 | | |
| SCH201MO | School 201 Enrichment | 1.8559231640 | $799,434 | $799,434 | $1,483.69 | | |
| ST | State School | 1.3035497053 | $799,434 | $799,434 | $1,042.10 | | |
| ST2 | State School Part 2 | 0.8169543533 | $799,434 | $799,434 | $653.10 | | |
| | Total Tax Rate: | 6.9861102925 | | | | | |
| | | | | Taxes w/Current Exemptions: | $5,584.93 | | |
| | | | | Taxes w/o Exemptions: | $5,584.93 | | |
Improvement / Building
| Improvement #1: | RESIDENTIAL | State Code: | Y | 2563.4 sqft | Value: | $299,434 |
| Bathrooms: | 1 | Bedrooms: | 1 | | Ceiling: | DRYWALL PAINTED | Exterior Wall/Cover: | WOOD SIDING | | Floor Covering: | CARPET/VINYL 80-20 | Floor Structure: | WOOD W/SUBFLOOR | | Foundation: | CONCRETE BLOCKS | Heating: | BASEBOARD ELECTRIC | | Interior Finish: | DRYWALL PAINT | Plumbing Fixture Cnt: | 5 | | Roof Slope: | FLAT | Roof Structure/Cover: | CJ BUILT-UP ROCK |
|
| | Type | Description | Class CD | Sub Class CD | Year Built | Area |
| | BAS | BASE/MAIN FLOOR | 3 | 0 | 1967 | 998.1 |
| | AGR | ATTACHED GARAGE | 3 | 0 | 1967 | 265.5 |
| | OP1 | OPEN PORCH SLAB | 3 | 0 | 1967 | 884.2 |
| | ENP | ENCLOSED PORCH | 3 | 0 | 1967 | 274.5 |
| | DWN | DOWNSTAIRS LIVING AREA | 3 | 0 | 1967 | 998.1 |
| | BAS | BASE/MAIN FLOOR | 3 | 0 | 1967 | 299.2 |
| | OWP | OPEN WOOD PORCH W/STEPS | 3 | 0 | 1967 | 593.3 |
| | LOF | LOFT | 3 | 0 | 1967 | 268.0 |
| | BAW | BALCONY WOOD RAIL | 3 | 0 | 1967 | 54.0 |
Sketch
Property Image
Land
| 1 | HB | HIGH BLUFF | 0.3700 | 16117.20 | 100.00 | 0.00 | 1.00 | $500,000 | $0 |
Roll Value History
| 2026 | N/A | N/A | N/A | N/A | N/A |
| 2025 | $299,434 | $500,000 | $0 | $799,434 | $799,434 |
| 2024 | $256,987 | $500,000 | $0 | $756,987 | $756,987 |
| 2023 | $261,050 | $300,000 | $0 | $561,050 | $561,050 |
| 2022 | $240,059 | $300,000 | $0 | $540,059 | $540,059 |
| 2021 | $211,932 | $225,000 | $0 | $436,932 | $436,932 |
| 2020 | $208,222 | $220,000 | $0 | $428,222 | $428,222 |
| 2019 | $166,367 | $240,000 | $0 | $406,367 | $406,367 |
| 2018 | $152,778 | $190,000 | $0 | $342,778 | $342,778 |
| 2017 | $154,083 | $150,000 | $0 | $304,083 | $304,083 |
| 2016 | $156,810 | $150,000 | $0 | $306,810 | $306,810 |
| 2015 | $159,538 | $150,000 | $0 | $309,538 | $309,538 |
| 2014 | $162,267 | $150,000 | $0 | $312,267 | $312,267 |
| 2013 | $164,992 | $113,050 | $0 | $278,042 | $278,042 |
| 2012 | $169,243 | $113,050 | $0 | $282,293 | $282,293 |
| 2011 | $171,996 | $133,000 | $0 | $304,996 | $304,996 |
| 2010 | $182,150 | $133,000 | $0 | $315,150 | $315,150 |
| 2009 | $188,465 | $155,000 | $0 | $343,465 | $343,465 |
| 2008 | $191,217 | $155,000 | $0 | $346,217 | $346,217 |
| 2007 | $193,291 | $155,000 | $0 | $348,291 | $348,291 |
Deed and Sales History
| 1 | 09/01/1991 | REC | Real Estate Contract | SCOTT, WM N | BARBER, WILLIAM C | | | $90,000.00 | 13102 | 91013210 |
| 2 | 04/01/1987 | OTHER | Other - Misc. Documents | SCOTT, WM N | SCOTT, WM N | | | $0.00 | 62137 | 85013922 |
| 3 | 09/01/1974 | TRUSTEED | Trustee's Deed | Unknown | SCOTT, WM N | | | $48,000.00 | 52589 | 0 |
Payout Agreement
| No payout information available.. |