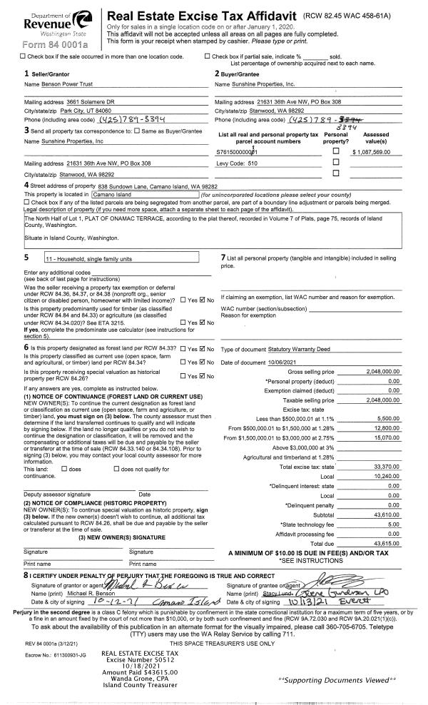
Property
Account |
| Property ID: | 233018 | Abbreviated Legal Description: | CLINTON HTS 1 LOT 11 |
| Geographic ID: | S6390-00-00011-0 | Agent Code: | |
| Type: | Real | | |
| Tax Area: | 720 - APPRAISER-S Whid Schl Dist, Special District, improved & less than 1 acre | Land Use Code | 11 |
| Open Space: | N | DFL | N |
| Historic Property: | N | Remodel Property: | N |
| Multi-Family Redevelopment: | N | | |
| Township: | | Section: | |
| Range: | |
Location |
| Address: | 6295 HINMAN DR CLINTON, WA 98236 | Mapsco: | |
| Neighborhood: | Cycle 4 | Map ID: | 808 |
| Neighborhood CD: | 4 |
Owner |
| Name: | BYINGTON, DAVID ALAN | Owner ID: | 295629 |
| Mailing Address: | 6295 HINMAN DR CLINTON, WA 98236 | % Ownership: | 100.0000000000% |
| | | Exemptions: | |
Taxes and Assessment Details
Values
| (+) Improvement Homesite Value: | + | $0 | |
| (+) Improvement Non-Homesite Value: | + | $266,226 | |
| (+) Land Homesite Value: | + | $0 | |
| (+) Land Non-Homesite Value: | + | $350,000 | |
| (+) Curr Use (HS): | + | $0 | $0 |
| (+) Curr Use (NHS): | + | $0 | $0 |
| | | -------------------------- | |
| (=) Market Value: | = | $616,226 | |
| (–) Productivity Loss: | – | $0 | |
| | | -------------------------- | |
| (=) Subtotal: | = | $616,226 | |
| (+) Senior Appraised Value: | + | $0 | |
| (+) Non-Senior Appraised Value: | + | $616,226 | |
| | | -------------------------- | |
| (=) Total Appraised Value: | = | $616,226 | |
| (–) Senior Exemption Loss: | – | $0 | |
| (–) Exemption Loss: | – | $0 | |
| | | -------------------------- | |
| (=) Taxable Value: | = | $616,226 | |
Taxing Jurisdiction
| Owner: | BYINGTON, DAVID ALAN | | |
| % Ownership: | 100.0000000000% | | |
| Total Value: | $616,226 | | |
| Tax Area: | 720 - APPRAISER-S Whid Schl Dist, Special District, improved & less than 1 acre |
| CF | Conservation Futures | 0.0316035091 | $616,226 | $616,226 | $19.47 | | |
| FIRE3 | Fire & Rescue Dist #3 S Whidbey GEN | 1.2004855531 | $616,226 | $616,226 | $739.77 | | |
| HOBOND | Hospital BOND | 0.1910887512 | $616,226 | $616,226 | $117.75 | | |
| HOGEN | Hospital GEN | 0.3902502903 | $616,226 | $616,226 | $240.48 | | |
| CE | County Current Expense | 0.3708482477 | $616,226 | $616,226 | $228.53 | | |
| CR | County Roads | 0.4584763726 | $616,226 | $616,226 | $282.53 | | |
| ISLANDEMS | Hospital GEN (EMS) | 0.5000000000 | $616,226 | $616,226 | $308.11 | | |
| LIB | Library Sno-Isle GEN | 0.3153421757 | $616,226 | $616,226 | $194.32 | | |
| PORTWHID | Port of S Whidbey GEN | 0.1094540357 | $616,226 | $616,226 | $67.45 | | |
| SCH206BOND | School 206 BOND | 0.3161759235 | $616,226 | $616,226 | $194.84 | | |
| SCH206MO | School 206 Enrichment | 0.4547169547 | $616,226 | $616,226 | $280.21 | | |
| ST | State School | 1.3035497053 | $616,226 | $616,226 | $803.28 | | |
| ST2 | State School Part 2 | 0.8169543533 | $616,226 | $616,226 | $503.43 | | |
| SWHIDPRBD | P & R S Whidbey BOND | 0.0152817568 | $616,226 | $616,226 | $9.42 | | |
| SWHIDPRBD2 | P & R S Whidbey BOND2 | 0.0138911264 | $616,226 | $616,226 | $8.56 | | |
| SWHIDPRMT | P & R S Whidbey GEN | 0.2053334452 | $616,226 | $616,226 | $126.53 | | |
| | Total Tax Rate: | 6.6934522006 | | | | | |
| | | | | Taxes w/Current Exemptions: | $4,124.68 | | |
| | | | | Taxes w/o Exemptions: | $4,124.68 | | |
Improvement / Building
| Improvement #1: | RESIDENTIAL | State Code: | Y | 2259.0 sqft | Value: | $266,226 |
| Bathrooms: | 2 | Bedrooms: | 3 | | Ceiling: | DRY WALL SPRAYED | Exterior Wall/Cover: | WOOD SIDING | | Floor Covering: | CARPET/VINYL 80-20 | Floor Structure: | WOOD W/SUBFLOOR | | Foundation: | CONCRETE | Heating: | FHA ELECTRIC | | Interior Finish: | DRYWALL PAINT | Plumbing Fixture Cnt: | 9 | | Roof Slope: | 4" IN 12" | Roof Structure/Cover: | CJ ASPHALT |
|
| | Type | Description | Class CD | Sub Class CD | Year Built | Area |
| | BAS | BASE/MAIN FLOOR | 3 | 0 | 1977 | 1119.0 |
| | DWN | DOWNSTAIRS LIVING AREA | 3 | 0 | 1977 | 1140.0 |
| | OP4 | OPEN PORCH W/CEILING-ROOF | 3 | 0 | 1977 | 21.0 |
| | AGR | ATTACHED GARAGE | 3 | 0 | 1977 | 480.0 |
| | OWP | OPEN WOOD PORCH W/STEPS | 3 | 0 | 1977 | 492.0 |
Sketch
Property Image
Land
| 1 | 14 | SQ (08001-12000) | 0.0000 | 0.00 | 0.00 | 0.00 | 1.00 | $350,000 | $0 |
Roll Value History
| 2026 | N/A | N/A | N/A | N/A | N/A |
| 2025 | $266,226 | $350,000 | $0 | $616,226 | $616,226 |
| 2024 | $269,862 | $330,000 | $0 | $599,862 | $599,862 |
| 2023 | $273,497 | $300,000 | $0 | $573,497 | $573,497 |
| 2022 | $250,927 | $280,000 | $0 | $530,927 | $530,927 |
| 2021 | $240,857 | $230,000 | $0 | $470,857 | $470,857 |
| 2020 | $225,362 | $180,000 | $0 | $405,362 | $405,362 |
| 2019 | $159,527 | $210,000 | $0 | $369,527 | $369,527 |
| 2018 | $160,049 | $200,000 | $0 | $360,049 | $360,049 |
| 2017 | $161,096 | $200,000 | $0 | $361,096 | $361,096 |
| 2016 | $163,188 | $150,000 | $0 | $313,188 | $313,188 |
| 2015 | $165,281 | $100,000 | $0 | $265,281 | $265,281 |
| 2014 | $148,391 | $100,000 | $0 | $248,391 | $248,391 |
| 2013 | $150,602 | $100,000 | $0 | $250,602 | $250,602 |
| 2012 | $152,813 | $106,250 | $0 | $259,063 | $259,063 |
| 2011 | $155,023 | $125,000 | $0 | $280,023 | $280,023 |
| 2010 | $165,460 | $125,000 | $0 | $290,460 | $116,184 |
| 2009 | $172,790 | $150,000 | $0 | $322,790 | $129,116 |
| 2008 | $168,309 | $175,178 | $0 | $343,487 | $137,395 |
| 2007 | $170,635 | $175,000 | $0 | $345,635 | $345,635 |
Deed and Sales History
| 1 | 07/29/2020 | WD | Warranty Deed | ALEXANDER, LINDA JEAN | BYINGTON, DAVID ALAN | | | $490,000.00 | 44232 | 4493826 |
| 2 | 06/18/2012 | OTHER | Other - Misc. Documents | WALDOW, EVELYN M | ALEXANDER, LINDA JEAN | | | | 82478 | |
| 3 | 10/05/2008 | CD | DNU - Correction Deed | WALDOW, OREN C | WALDOW, EVELYN M | | | $0.00 | 81146 | 0 |
| 4 | 01/01/1900 | OTHER | Other - Misc. Documents | Unknown | WALDOW, OREN C | | | $0.00 | 0 | 0 |
Payout Agreement
| No payout information available.. |