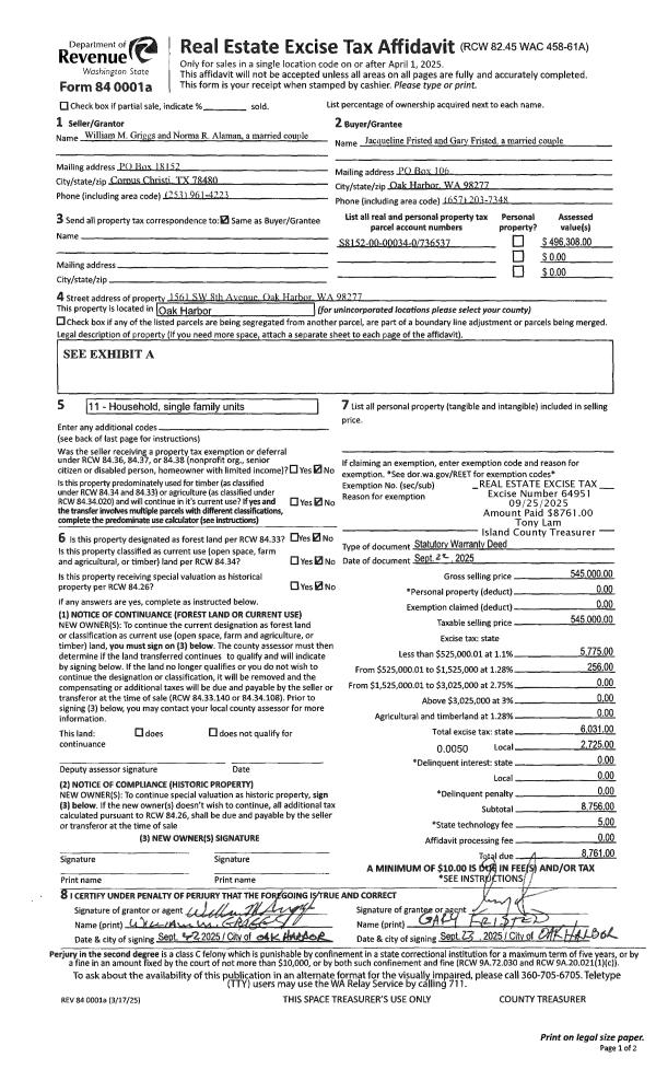
Property
Account |
| Property ID: | 23307 | Abbreviated Legal Description: | 43 - IN GL2 LY N OF CO RD: BG SWCR GL2 S88*E104.96' TO NWCR LOT 7 PENNS COVE MANOR S88*E15.05' N2*E300.02' N88*W20' N2*E16.06' N88*W 100' TO WLN GL2 N2*E360.02' TPB N2*E660' S88*E300' S2*W 660' N88*W300' TPB INCL EZ |
| Geographic ID: | R13221-100-2800 | Agent Code: | |
| Type: | Real | | |
| Tax Area: | 332 - APPRAISER-Cpvl Schl Dist, Special Dist, improved, greater than 1 acre | Land Use Code | 11 |
| Open Space: | N | DFL | N |
| Historic Property: | N | Remodel Property: | N |
| Multi-Family Redevelopment: | N | | |
| Township: | 32 | Section: | 21 |
| Range: | R1 |
Location |
| Address: | 853 SKYLARK PLACE OAK HARBOR, WA 98277 | Mapsco: | |
| Neighborhood: | Cycle 2 | Map ID: | 150 |
| Neighborhood CD: | 2 |
Owner |
| Name: | ELLSWORTH, GLENN A | Owner ID: | 183061 |
| Mailing Address: | 853 SKYLARK PLACE OAK HARBOR, WA 98277-8290 | % Ownership: | 100.0000000000% |
| | | Exemptions: | |
Taxes and Assessment Details
Values
| (+) Improvement Homesite Value: | + | $0 | |
| (+) Improvement Non-Homesite Value: | + | $100,016 | |
| (+) Land Homesite Value: | + | $0 | |
| (+) Land Non-Homesite Value: | + | $335,819 | |
| (+) Curr Use (HS): | + | $0 | $0 |
| (+) Curr Use (NHS): | + | $0 | $0 |
| | | -------------------------- | |
| (=) Market Value: | = | $435,835 | |
| (–) Productivity Loss: | – | $0 | |
| | | -------------------------- | |
| (=) Subtotal: | = | $435,835 | |
| (+) Senior Appraised Value: | + | $0 | |
| (+) Non-Senior Appraised Value: | + | $435,835 | |
| | | -------------------------- | |
| (=) Total Appraised Value: | = | $435,835 | |
| (–) Senior Exemption Loss: | – | $0 | |
| (–) Exemption Loss: | – | $0 | |
| | | -------------------------- | |
| (=) Taxable Value: | = | $435,835 | |
Taxing Jurisdiction
| Owner: | ELLSWORTH, GLENN A | | |
| % Ownership: | 100.0000000000% | | |
| Total Value: | $435,835 | | |
| Tax Area: | 332 - APPRAISER-Cpvl Schl Dist, Special Dist, improved, greater than 1 acre |
| CF | Conservation Futures | 0.0316035091 | $435,835 | $435,835 | $13.77 | | |
| CEM2 | Cemetery #2 | 0.0095056933 | $435,835 | $435,835 | $4.14 | | |
| FIRE2 | Fire & Rescue Dist #2 N Whidbey GEN | 0.5475949600 | $435,835 | $435,835 | $238.66 | | |
| HOBOND | Hospital BOND | 0.1910887512 | $435,835 | $435,835 | $83.28 | | |
| HOGEN | Hospital GEN | 0.3902502903 | $435,835 | $435,835 | $170.08 | | |
| CE | County Current Expense | 0.3708482477 | $435,835 | $435,835 | $161.63 | | |
| CR | County Roads | 0.4584763726 | $435,835 | $435,835 | $199.82 | | |
| ISLANDEMS | Hospital GEN (EMS) | 0.5000000000 | $435,835 | $435,835 | $217.92 | | |
| LIB | Library Sno-Isle GEN | 0.3153421757 | $435,835 | $435,835 | $137.44 | | |
| LIBCAP | Library Sno-Isle BOND (Cap Fac Imp Area) | 0.0543427938 | $435,835 | $435,835 | $23.68 | | |
| POCOUP | Port of Coupeville GEN | 0.1093371703 | $435,835 | $435,835 | $47.65 | | |
| POCOUPIDD | Port of Coupeville IDD | 0.3409740022 | $435,835 | $435,835 | $148.61 | | |
| COUPSDTECH | School 204 CP (TECH) | 0.7545480007 | $435,835 | $435,835 | $328.86 | | |
| SCH204MO | School 204 Enrichment | 0.6716186034 | $435,835 | $435,835 | $292.71 | | |
| ST | State School | 1.3035497053 | $435,835 | $435,835 | $568.13 | | |
| ST2 | State School Part 2 | 0.8169543533 | $435,835 | $435,835 | $356.06 | | |
| | Total Tax Rate: | 6.8660346289 | | | | | |
| | | | | Taxes w/Current Exemptions: | $2,992.44 | | |
| | | | | Taxes w/o Exemptions: | $2,992.44 | | |
Improvement / Building
| Improvement #1: | MANUFACTURED HOME | State Code: | Y | 1296.0 sqft | Value: | $100,016 |
| Bathrooms: | 0 | Bedrooms: | 0 | | Ceiling: | PLASTER PAINTED | Cooling: | EVAP NO DUCT | | Exterior Wall/Cover: | VINYL | Floor Covering: | CARPET 100% | | Floor Structure: | SLAB ON GRADE | Foundation: | SLAB | | Heating: | FHA ELECTRIC | Interior Finish: | PLASTER | | Plumbing Fixture Cnt: | 1 | Roof Slope: | FLAT | | Roof Structure/Cover: | CJ ALUMINIUM HEAVY |   |   |
|
| | Type | Description | Class CD | Sub Class CD | Year Built | Area |
| | BAS | BASE/MAIN FLOOR | 4 | 0 | 1992 | 1296.0 |
| | oPOL | POLE BARN | 4 | 0 | 1992 | 1008.0 |
Sketch
Property Image
Land
| 1 | 91 | UNDEVELOPED LAND-METES AND BOUNDS | 3.5500 | 154638.00 | 0.00 | 0.00 | 1.00 | $115,819 | $0 |
| 2 | HS | HOMESITE | 1.0000 | 43560.00 | 0.00 | 0.00 | 1.00 | $220,000 | $0 |
Roll Value History
| 2026 | N/A | N/A | N/A | N/A | N/A |
| 2025 | $100,016 | $335,819 | $0 | $435,835 | $435,835 |
| 2024 | $76,080 | $300,000 | $0 | $376,080 | $376,080 |
| 2023 | $80,835 | $280,000 | $0 | $360,835 | $360,835 |
| 2022 | $76,068 | $260,000 | $0 | $336,068 | $336,068 |
| 2021 | $68,635 | $170,000 | $0 | $238,635 | $238,635 |
| 2020 | $69,061 | $170,000 | $0 | $239,061 | $239,061 |
| 2019 | $57,269 | $230,000 | $0 | $287,269 | $287,269 |
| 2018 | $52,638 | $170,000 | $0 | $222,638 | $222,638 |
| 2017 | $54,550 | $170,000 | $0 | $224,550 | $224,550 |
| 2016 | $55,823 | $160,000 | $0 | $215,823 | $215,823 |
| 2015 | $57,099 | $135,000 | $0 | $192,099 | $192,099 |
| 2014 | $58,372 | $135,000 | $0 | $193,372 | $193,372 |
| 2013 | $59,647 | $110,565 | $0 | $170,212 | $170,212 |
| 2012 | $65,171 | $110,565 | $0 | $175,736 | $175,736 |
| 2011 | $66,434 | $122,850 | $0 | $189,284 | $189,284 |
| 2010 | $63,175 | $122,850 | $0 | $186,025 | $186,025 |
| 2009 | $66,647 | $145,600 | $0 | $212,247 | $212,247 |
| 2008 | $69,090 | $165,991 | $0 | $235,081 | $235,081 |
| 2007 | $70,692 | $150,901 | $0 | $221,593 | $221,593 |
Deed and Sales History
| 1 | 04/06/2000 | WD | Warranty Deed | ELLSWORTH, GLENN A | ELLSWORTH, GLENN A | | | $0.00 | 1280 | 20006374 |
| 2 | 04/06/2000 | WD | Warranty Deed | WELLINS, SHELLY J | ELLSWORTH, GLENN A | | | $129,500.00 | 1275 | 20006321 |
| 3 | 03/01/1990 | QCD | Quit Claim Deed | WELLINS, SHELLY J | WELLINS, SHELLY J | | | $0.00 | 1761 | 90005670 |
| 4 | 03/01/1990 | QCD | Quit Claim Deed | WELLINS, SHELLY J | WELLINS, SHELLY J | | | $0.00 | 1762 | 90005671 |
| 5 | 03/01/1990 | QCD | Quit Claim Deed | GIBBONS, TIMOTHY J | WELLINS, SHELLY J | | | $0.00 | 1763 | 90005672 |
| 6 | 03/01/1990 | WD | Warranty Deed | WELLINS, SHELLY J | GIBBONS, TIMOTHY J | | | $29,400.00 | 1764 | 90005673 |
| 7 | 10/01/1987 | PRD | Personal Representatives Deed | BERNARD, BARBARA J | WELLINS, SHELLY J | | | $0.00 | 73304 | 87014459 |
| 8 | 04/01/1978 | REC | Real Estate Contract | BERNARD, BARBARA J | BERNARD, BARBARA J | | | $0.00 | 81611 | 0 |
| 9 | 11/01/1972 | EZ | Easement | JANSMA, HARVEY A | BERNARD, BARBARA J | | | $0.00 | 45925 | 0 |
| 10 | 01/01/1900 | OTHER | Other - Misc. Documents | Unknown | JANSMA, HARVEY A | | | $0.00 | 0 | 0 |
Payout Agreement
| No payout information available.. |