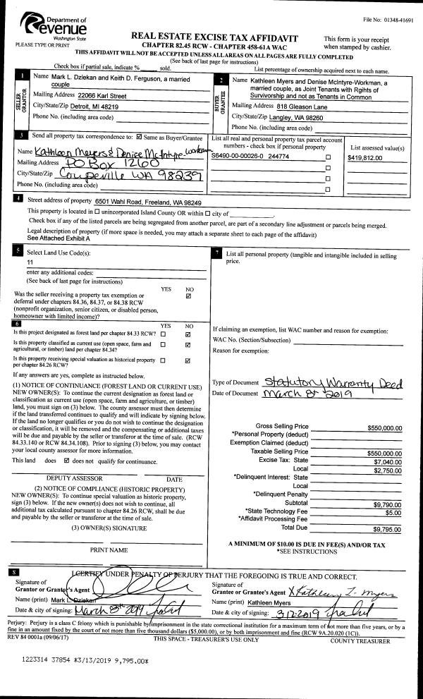
Property
Account |
| Property ID: | 233214 | Abbreviated Legal Description: | CLINTON HTS 2 LOT 13 |
| Geographic ID: | S6390-02-00013-0 | Agent Code: | |
| Type: | Real | | |
| Tax Area: | 720 - APPRAISER-S Whid Schl Dist, Special District, improved & less than 1 acre | Land Use Code | 11 |
| Open Space: | N | DFL | N |
| Historic Property: | N | Remodel Property: | N |
| Multi-Family Redevelopment: | N | | |
| Township: | | Section: | |
| Range: | |
Location |
| Address: | 4656 GRAVEL WAY CLINTON, WA 98236 | Mapsco: | |
| Neighborhood: | Cycle 4 | Map ID: | 810 |
| Neighborhood CD: | 4 |
Owner |
| Name: | KARNO, VICTORIA | Owner ID: | 294634 |
| Mailing Address: | 4656 GRAVEL WAY CLINTON, WA 98236 | % Ownership: | 100.0000000000% |
| | | Exemptions: | |
Taxes and Assessment Details
Values
| (+) Improvement Homesite Value: | + | $0 | |
| (+) Improvement Non-Homesite Value: | + | $381,046 | |
| (+) Land Homesite Value: | + | $0 | |
| (+) Land Non-Homesite Value: | + | $350,000 | |
| (+) Curr Use (HS): | + | $0 | $0 |
| (+) Curr Use (NHS): | + | $0 | $0 |
| | | -------------------------- | |
| (=) Market Value: | = | $731,046 | |
| (–) Productivity Loss: | – | $0 | |
| | | -------------------------- | |
| (=) Subtotal: | = | $731,046 | |
| (+) Senior Appraised Value: | + | $0 | |
| (+) Non-Senior Appraised Value: | + | $731,046 | |
| | | -------------------------- | |
| (=) Total Appraised Value: | = | $731,046 | |
| (–) Senior Exemption Loss: | – | $0 | |
| (–) Exemption Loss: | – | $0 | |
| | | -------------------------- | |
| (=) Taxable Value: | = | $731,046 | |
Taxing Jurisdiction
| Owner: | KARNO, VICTORIA | | |
| % Ownership: | 100.0000000000% | | |
| Total Value: | $731,046 | | |
| Tax Area: | 720 - APPRAISER-S Whid Schl Dist, Special District, improved & less than 1 acre |
| CF | Conservation Futures | 0.0316035091 | $731,046 | $731,046 | $23.10 | | |
| FIRE3 | Fire & Rescue Dist #3 S Whidbey GEN | 1.2004855531 | $731,046 | $731,046 | $877.61 | | |
| HOBOND | Hospital BOND | 0.1910887512 | $731,046 | $731,046 | $139.69 | | |
| HOGEN | Hospital GEN | 0.3902502903 | $731,046 | $731,046 | $285.29 | | |
| CE | County Current Expense | 0.3708482477 | $731,046 | $731,046 | $271.11 | | |
| CR | County Roads | 0.4584763726 | $731,046 | $731,046 | $335.17 | | |
| ISLANDEMS | Hospital GEN (EMS) | 0.5000000000 | $731,046 | $731,046 | $365.52 | | |
| LIB | Library Sno-Isle GEN | 0.3153421757 | $731,046 | $731,046 | $230.53 | | |
| PORTWHID | Port of S Whidbey GEN | 0.1094540357 | $731,046 | $731,046 | $80.02 | | |
| SCH206BOND | School 206 BOND | 0.3161759235 | $731,046 | $731,046 | $231.14 | | |
| SCH206MO | School 206 Enrichment | 0.4547169547 | $731,046 | $731,046 | $332.42 | | |
| ST | State School | 1.3035497053 | $731,046 | $731,046 | $952.95 | | |
| ST2 | State School Part 2 | 0.8169543533 | $731,046 | $731,046 | $597.23 | | |
| SWHIDPRBD | P & R S Whidbey BOND | 0.0152817568 | $731,046 | $731,046 | $11.17 | | |
| SWHIDPRBD2 | P & R S Whidbey BOND2 | 0.0138911264 | $731,046 | $731,046 | $10.16 | | |
| SWHIDPRMT | P & R S Whidbey GEN | 0.2053334452 | $731,046 | $731,046 | $150.11 | | |
| | Total Tax Rate: | 6.6934522006 | | | | | |
| | | | | Taxes w/Current Exemptions: | $4,893.22 | | |
| | | | | Taxes w/o Exemptions: | $4,893.22 | | |
Improvement / Building
| Improvement #1: | RESIDENTIAL | State Code: | Y | 2054.0 sqft | Value: | $381,046 |
| Bathrooms: | 3 | Bedrooms: | 3 | | Ceiling: | DRYWALL PAINTED | Cooling: | HEAT PUMP/CONV/V | | Exterior Wall/Cover: | WOOD SIDING | Floor Covering: | HARDWOOD/CARP 60-40 | | Floor Structure: | WOOD W/SUBFLOOR | Foundation: | CONCRETE | | Interior Finish: | DRYWALL PAINT | Plumbing Fixture Cnt: | 14 | | Roof Slope: | 4" IN 12" | Roof Structure/Cover: | CJ ASPHALT |
|
| | Type | Description | Class CD | Sub Class CD | Year Built | Area |
| | BAS | BASE/MAIN FLOOR | 3 | 0 | 1978 | 1378.0 |
| | DWN | DOWNSTAIRS LIVING AREA | 3 | 0 | 1978 | 676.0 |
| | BGR | BASEMENT GARAGE | 3 | 0 | 1978 | 624.0 |
| | OWP | OPEN WOOD PORCH W/STEPS | 3 | 0 | 1978 | 721.0 |
| | OWP | OPEN WOOD PORCH W/STEPS | 3 | 0 | 1978 | 126.0 |
| | OWR | OPEN WOOD PORCH W/STEPS/ROOF | 3 | 0 | 1978 | 28.0 |
Sketch
Property Image
Land
| 1 | 14 | SQ (08001-12000) | 0.0000 | 0.00 | 0.00 | 0.00 | 1.00 | $350,000 | $0 |
Roll Value History
| 2026 | N/A | N/A | N/A | N/A | N/A |
| 2025 | $381,046 | $350,000 | $0 | $731,046 | $731,046 |
| 2024 | $385,516 | $330,000 | $0 | $715,516 | $715,516 |
| 2023 | $389,985 | $300,000 | $0 | $689,985 | $689,985 |
| 2022 | $357,191 | $280,000 | $0 | $637,191 | $637,191 |
| 2021 | $314,121 | $230,000 | $0 | $544,121 | $544,121 |
| 2020 | $295,490 | $180,000 | $0 | $475,490 | $475,490 |
| 2019 | $199,743 | $210,000 | $0 | $409,743 | $409,743 |
| 2018 | $200,342 | $200,000 | $0 | $400,342 | $400,342 |
| 2017 | $201,542 | $200,000 | $0 | $401,542 | $401,542 |
| 2016 | $203,942 | $150,000 | $0 | $353,942 | $353,942 |
| 2015 | $206,341 | $100,000 | $0 | $306,341 | $306,341 |
| 2014 | $206,235 | $100,000 | $0 | $306,235 | $306,235 |
| 2013 | $208,768 | $100,000 | $0 | $308,768 | $308,768 |
| 2012 | $211,299 | $106,250 | $0 | $317,549 | $317,549 |
| 2011 | $213,831 | $125,000 | $0 | $338,831 | $338,831 |
| 2010 | $224,749 | $125,000 | $0 | $349,749 | $349,749 |
| 2009 | $234,683 | $150,000 | $0 | $384,683 | $384,683 |
| 2008 | $203,150 | $175,000 | $0 | $378,150 | $378,150 |
| 2007 | $205,822 | $175,000 | $0 | $380,822 | $380,822 |
Deed and Sales History
| 1 | 06/11/2020 | QCD | Quit Claim Deed | CASSIDY TTEE, MARK S | KARNO, VICTORIA | | | $0.00 | 43394 | 4489011 |
| 2 | 05/29/2019 | WD | Warranty Deed | SKAGGS, ROCKY E | CASSIDY TTEE, MARK S | | | $532,000.00 | 38786 | 4464563 |
| 3 | 09/26/2011 | WD | Warranty Deed | MIKKELSON, LARRY | SKAGGS, ROCKY E | | | $330,000.00 | 5685 | 4302070 |
| 4 | 07/10/1998 | WD | Warranty Deed | GAGE, LARRY T | MIKKELSON, LARRY | | | $156,000.00 | 82888 | 98015065 |
| 5 | 04/01/1993 | DECREE | Divorce Decree/Legal Separation | GAGE, LARRY T | GAGE, LARRY T | | | $0.00 | 31365 | 93007034 |
| 6 | 01/01/1900 | OTHER | Other - Misc. Documents | Unknown | MIKKELSON, LARRY & | | | $0.00 | 82888 | 98015065 |
| 7 | 01/01/1900 | OTHER | Other - Misc. Documents | MIKKELSON, LARRY & | GAGE, LARRY T | | | $0.00 | 0 | 0 |
Payout Agreement
| No payout information available.. |