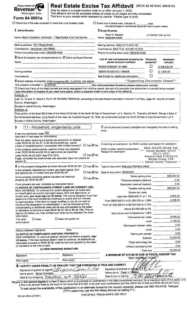
Property
Account |
| Property ID: | 233358 | Abbreviated Legal Description: | CLINTON HTS 2 LOT 27 |
| Geographic ID: | S6390-02-00027-0 | Agent Code: | |
| Type: | Real | | |
| Tax Area: | 720 - APPRAISER-S Whid Schl Dist, Special District, improved & less than 1 acre | Land Use Code | 11 |
| Open Space: | N | DFL | N |
| Historic Property: | N | Remodel Property: | N |
| Multi-Family Redevelopment: | N | | |
| Township: | | Section: | |
| Range: | |
Location |
| Address: | 6225 HINMAN DR CLINTON, WA 98236 | Mapsco: | |
| Neighborhood: | Cycle 4 | Map ID: | 808 |
| Neighborhood CD: | 4 |
Owner |
| Name: | JACKMAN JTWROS, NICHOLAS P | Owner ID: | 300198 |
| Mailing Address: | RUBEN RIVERA-JACKMAN JTWROS 6225 HINMAN DR CLINTON, WA 98236 | % Ownership: | 100.0000000000% |
| | | Exemptions: | |
Taxes and Assessment Details
Values
| (+) Improvement Homesite Value: | + | $0 | |
| (+) Improvement Non-Homesite Value: | + | $289,156 | |
| (+) Land Homesite Value: | + | $0 | |
| (+) Land Non-Homesite Value: | + | $350,000 | |
| (+) Curr Use (HS): | + | $0 | $0 |
| (+) Curr Use (NHS): | + | $0 | $0 |
| | | -------------------------- | |
| (=) Market Value: | = | $639,156 | |
| (–) Productivity Loss: | – | $0 | |
| | | -------------------------- | |
| (=) Subtotal: | = | $639,156 | |
| (+) Senior Appraised Value: | + | $0 | |
| (+) Non-Senior Appraised Value: | + | $639,156 | |
| | | -------------------------- | |
| (=) Total Appraised Value: | = | $639,156 | |
| (–) Senior Exemption Loss: | – | $0 | |
| (–) Exemption Loss: | – | $0 | |
| | | -------------------------- | |
| (=) Taxable Value: | = | $639,156 | |
Taxing Jurisdiction
| Owner: | JACKMAN JTWROS, NICHOLAS P | | |
| % Ownership: | 100.0000000000% | | |
| Total Value: | $639,156 | | |
| Tax Area: | 720 - APPRAISER-S Whid Schl Dist, Special District, improved & less than 1 acre |
| CF | Conservation Futures | 0.0316035091 | $639,156 | $639,156 | $20.20 | | |
| FIRE3 | Fire & Rescue Dist #3 S Whidbey GEN | 1.2004855531 | $639,156 | $639,156 | $767.30 | | |
| HOBOND | Hospital BOND | 0.1910887512 | $639,156 | $639,156 | $122.14 | | |
| HOGEN | Hospital GEN | 0.3902502903 | $639,156 | $639,156 | $249.43 | | |
| CE | County Current Expense | 0.3708482477 | $639,156 | $639,156 | $237.03 | | |
| CR | County Roads | 0.4584763726 | $639,156 | $639,156 | $293.04 | | |
| ISLANDEMS | Hospital GEN (EMS) | 0.5000000000 | $639,156 | $639,156 | $319.58 | | |
| LIB | Library Sno-Isle GEN | 0.3153421757 | $639,156 | $639,156 | $201.55 | | |
| PORTWHID | Port of S Whidbey GEN | 0.1094540357 | $639,156 | $639,156 | $69.96 | | |
| SCH206BOND | School 206 BOND | 0.3161759235 | $639,156 | $639,156 | $202.09 | | |
| SCH206MO | School 206 Enrichment | 0.4547169547 | $639,156 | $639,156 | $290.64 | | |
| ST | State School | 1.3035497053 | $639,156 | $639,156 | $833.17 | | |
| ST2 | State School Part 2 | 0.8169543533 | $639,156 | $639,156 | $522.16 | | |
| SWHIDPRBD | P & R S Whidbey BOND | 0.0152817568 | $639,156 | $639,156 | $9.77 | | |
| SWHIDPRBD2 | P & R S Whidbey BOND2 | 0.0138911264 | $639,156 | $639,156 | $8.88 | | |
| SWHIDPRMT | P & R S Whidbey GEN | 0.2053334452 | $639,156 | $639,156 | $131.24 | | |
| | Total Tax Rate: | 6.6934522006 | | | | | |
| | | | | Taxes w/Current Exemptions: | $4,278.18 | | |
| | | | | Taxes w/o Exemptions: | $4,278.18 | | |
Improvement / Building
| Improvement #1: | RESIDENTIAL | State Code: | Y | 2084.0 sqft | Value: | $289,156 |
| Bathrooms: | 1.5 | Bedrooms: | 3 | | Ceiling: | DRYWALL PAINTED | Cooling: | HEAT PUMP/CONV/V | | Exterior Wall/Cover: | PLY/HARDBOARD T-111 | Floor Covering: | HARDWOOD/CARP 60-40 | | Floor Structure: | WOOD W/SUBFLOOR | Foundation: | CONCRETE | | Interior Finish: | DRYWALL PAINT | Plumbing Fixture Cnt: | 8 | | Roof Slope: | 4" IN 12" | Roof Structure/Cover: | CJ ASPHALT |
|
| | Type | Description | Class CD | Sub Class CD | Year Built | Area |
| | BAS | BASE/MAIN FLOOR | 3 | 0 | 1977 | 1058.0 |
| | DWN | DOWNSTAIRS LIVING AREA | 3 | 0 | 1977 | 1026.0 |
| | UTY | STORAGE/UTILITY | 3 | 0 | 1977 | 322.0 |
| | OWP | OPEN WOOD PORCH W/STEPS | 3 | 0 | 1977 | 48.0 |
| | OWP | OPEN WOOD PORCH W/STEPS | 3 | 0 | 1977 | 360.0 |
Sketch
Property Image
Land
| 1 | 15 | SQ (12001-21780) | 0.0000 | 0.00 | 0.00 | 0.00 | 1.00 | $350,000 | $0 |
Roll Value History
| 2026 | N/A | N/A | N/A | N/A | N/A |
| 2025 | $289,156 | $350,000 | $0 | $639,156 | $639,156 |
| 2024 | $292,629 | $330,000 | $0 | $622,629 | $622,629 |
| 2023 | $296,103 | $300,000 | $0 | $596,103 | $596,103 |
| 2022 | $271,272 | $280,000 | $0 | $551,272 | $551,272 |
| 2021 | $234,378 | $230,000 | $0 | $464,378 | $464,378 |
| 2020 | $213,299 | $180,000 | $0 | $393,299 | $393,299 |
| 2019 | $165,092 | $210,000 | $0 | $375,092 | $375,092 |
| 2018 | $161,104 | $200,000 | $0 | $361,104 | $361,104 |
| 2017 | $157,878 | $200,000 | $0 | $357,878 | $357,878 |
| 2016 | $159,852 | $150,000 | $0 | $309,852 | $309,852 |
| 2015 | $161,826 | $100,000 | $0 | $261,826 | $261,826 |
| 2014 | $156,659 | $100,000 | $0 | $256,659 | $256,659 |
| 2013 | $158,746 | $100,000 | $0 | $258,746 | $258,746 |
| 2012 | $160,834 | $106,250 | $0 | $267,084 | $267,084 |
| 2011 | $162,924 | $125,000 | $0 | $287,924 | $287,924 |
| 2010 | $171,729 | $125,000 | $0 | $296,729 | $296,729 |
| 2009 | $179,227 | $150,000 | $0 | $329,227 | $329,227 |
| 2008 | $169,056 | $175,000 | $0 | $344,056 | $344,056 |
| 2007 | $171,190 | $175,000 | $0 | $346,190 | $346,190 |
Deed and Sales History
| 1 | 07/14/2021 | QCD | Quit Claim Deed | JACKMAN, NICHOLAS P | JACKMAN JTWROS, NICHOLAS P | | | $0.00 | 49147 | 4524361 |
| 2 | 11/20/2018 | WD | Warranty Deed | HURD, BRUCE E | JACKMAN, NICHOLAS P | | | $449,000.00 | 36865 | 4455921 |
| 3 | 12/30/2004 | WD | Warranty Deed | DORSH, JOHN M | HURD, BRUCE E | | | $319,500.00 | 50165 | 4123284 |
| 4 | 03/01/1985 | WD | Warranty Deed | WILLIAMS, RICHARD E | DORSH, JOHN M | | | $55,000.00 | 50681 | 85002926 |
| 5 | 01/01/1900 | OTHER | Other - Misc. Documents | Unknown | WILLIAMS, RICHARD E | | | $0.00 | 0 | 0 |
Payout Agreement
| No payout information available.. |