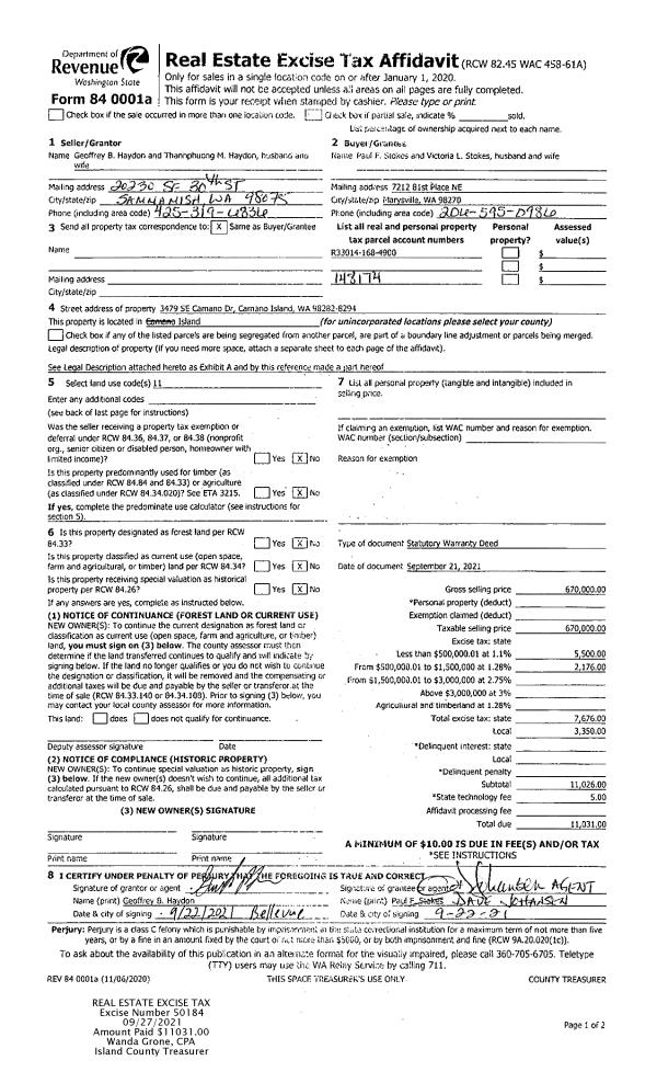
Property
Account |
| Property ID: | 233410 | Abbreviated Legal Description: | CLINTON PK LOT 4 INCL 1/45 INT TDLS AS DESC 317D149 A56174 |
| Geographic ID: | S6395-00-00004-0 | Agent Code: | |
| Type: | Real | | |
| Tax Area: | 720 - APPRAISER-S Whid Schl Dist, Special District, improved & less than 1 acre | Land Use Code | 11 |
| Open Space: | N | DFL | N |
| Historic Property: | N | Remodel Property: | N |
| Multi-Family Redevelopment: | N | | |
| Township: | | Section: | |
| Range: | |
Location |
| Address: | 4741 DURHAM WAY CLINTON, WA 98236 | Mapsco: | |
| Neighborhood: | Cycle 4 | Map ID: | 808 |
| Neighborhood CD: | 4 |
Owner |
| Name: | HERN, CHARLES B | Owner ID: | 134067 |
| Mailing Address: | NANCY L HERN 4741 DURHAM WAY CLINTON, WA 98236-9511 | % Ownership: | 100.0000000000% |
| | | Exemptions: | SNR/DSBL |
Taxes and Assessment Details
Values
| (+) Improvement Homesite Value: | + | $218,434 | |
| (+) Improvement Non-Homesite Value: | + | $0 | |
| (+) Land Homesite Value: | + | $240,000 | |
| (+) Land Non-Homesite Value: | + | $0 | |
| (+) Curr Use (HS): | + | $0 | $0 |
| (+) Curr Use (NHS): | + | $0 | $0 |
| | | -------------------------- | |
| (=) Market Value: | = | $458,434 | |
| (–) Productivity Loss: | – | $0 | |
| | | -------------------------- | |
| (=) Subtotal: | = | $458,434 | |
| (+) Senior Appraised Value: | + | $252,234 | |
| (+) Non-Senior Appraised Value: | + | $0 | |
| | | -------------------------- | |
| (=) Total Appraised Value: | = | $252,234 | |
| (–) Senior Exemption Loss: | – | $151,340 | |
| (–) Exemption Loss: | – | $0 | |
| | | -------------------------- | |
| (=) Taxable Value: | = | $100,894 | |
Taxing Jurisdiction
| Owner: | HERN, CHARLES B | | |
| % Ownership: | 100.0000000000% | | |
| Total Value: | $458,434 | | |
| Tax Area: | 720 - APPRAISER-S Whid Schl Dist, Special District, improved & less than 1 acre |
| CF | Conservation Futures | 0.0316035091 | $458,434 | $100,894 | $3.19 | | |
| FIRE3 | Fire & Rescue Dist #3 S Whidbey GEN | 1.2004855531 | $458,434 | $100,894 | $121.12 | | |
| HOBOND | Hospital BOND | 0.0000000000 | $458,434 | $0 | $0.00 | | |
| HOGEN | Hospital GEN | 0.3902502903 | $458,434 | $100,894 | $39.37 | | |
| CE | County Current Expense | 0.3708482477 | $458,434 | $100,894 | $37.42 | | |
| CR | County Roads | 0.4584763726 | $458,434 | $100,894 | $46.26 | | |
| ISLANDEMS | Hospital GEN (EMS) | 0.5000000000 | $458,434 | $100,894 | $50.45 | | |
| LIB | Library Sno-Isle GEN | 0.3153421757 | $458,434 | $100,894 | $31.82 | | |
| PORTWHID | Port of S Whidbey GEN | 0.1094540357 | $458,434 | $100,894 | $11.04 | | |
| SCH206BOND | School 206 BOND | 0.3161759235 | $458,434 | $100,894 | $31.90 | | |
| SCH206MO | School 206 Enrichment | 0.0000000000 | $458,434 | $0 | $0.00 | | |
| ST | State School | 1.3035497053 | $458,434 | $100,894 | $131.52 | | |
| ST2 | State School Part 2 | 0.0000000000 | $458,434 | $0 | $0.00 | | |
| SWHIDPRBD | P & R S Whidbey BOND | 0.0000000000 | $458,434 | $0 | $0.00 | | |
| SWHIDPRBD2 | P & R S Whidbey BOND2 | 0.0000000000 | $458,434 | $0 | $0.00 | | |
| SWHIDPRMT | P & R S Whidbey GEN | 0.2053334452 | $458,434 | $100,894 | $20.72 | | |
| | Total Tax Rate: | 5.2015192582 | | | | | |
| | | | | Taxes w/Current Exemptions: | $524.81 | | |
| | | | | Taxes w/o Exemptions: | $3,068.51 | | |
Improvement / Building
| Improvement #1: | RESIDENTIAL | State Code: | Y | 1716.0 sqft | Value: | $218,434 |
| Bathrooms: | 2 | Bedrooms: | 3 | | Ceiling: | DRY WALL SPRAYED | Cooling: | HEAT PUMP/CONV/V | | Exterior Wall/Cover: | PLY/HARDBOARD T-111 | Floor Covering: | CARPET/VINYL 20-80 | | Floor Structure: | WOOD W/SUBFLOOR | Foundation: | CONCRETE | | Interior Finish: | DRYWALL PAINT | Plumbing Fixture Cnt: | 9 | | Roof Slope: | 8" IN 12" | Roof Structure/Cover: | CJ ALUMINIUM HEAVY |
|
| | Type | Description | Class CD | Sub Class CD | Year Built | Area |
| | BAS | BASE/MAIN FLOOR | 3 | 0 | 1971 | 1204.0 |
| | UTY | STORAGE/UTILITY | 3 | 0 | 1971 | 84.0 |
| | OWP | OPEN WOOD PORCH W/STEPS | 3 | 0 | 1971 | 652.0 |
| | UPH | HALF STORY | 3 | 0 | 1971 | 512.0 |
Sketch
Property Image
Land
| 1 | 14 | SQ (08001-12000) | 0.0000 | 0.00 | 0.00 | 0.00 | 1.00 | $240,000 | $0 |
Roll Value History
| 2026 | N/A | N/A | N/A | N/A | N/A |
| 2025 | $218,434 | $240,000 | $0 | $458,434 | $100,894 |
| 2024 | $221,888 | $230,000 | $0 | $451,888 | $100,894 |
| 2023 | $225,341 | $230,000 | $0 | $455,341 | $100,894 |
| 2022 | $207,183 | $200,000 | $0 | $407,183 | $100,894 |
| 2021 | $179,776 | $140,000 | $0 | $319,776 | $99,491 |
| 2020 | $166,779 | $120,000 | $0 | $286,779 | $99,491 |
| 2019 | $123,637 | $140,000 | $0 | $263,637 | $99,491 |
| 2018 | $124,102 | $130,000 | $0 | $254,102 | $99,491 |
| 2017 | $125,036 | $110,000 | $0 | $235,036 | $94,014 |
| 2016 | $126,902 | $85,000 | $0 | $211,902 | $84,761 |
| 2015 | $128,769 | $65,000 | $0 | $193,769 | $77,508 |
| 2014 | $129,134 | $65,000 | $0 | $194,134 | $77,654 |
| 2013 | $131,000 | $65,000 | $0 | $196,000 | $78,400 |
| 2012 | $132,867 | $65,000 | $0 | $197,867 | $79,147 |
| 2011 | $134,733 | $85,000 | $0 | $219,733 | $87,893 |
| 2010 | $142,385 | $85,000 | $0 | $227,385 | $90,954 |
| 2009 | $148,728 | $100,000 | $0 | $248,728 | $178,728 |
| 2008 | $129,538 | $120,000 | $0 | $249,538 | $249,538 |
| 2007 | $131,386 | $74,000 | $0 | $205,386 | $205,386 |
Deed and Sales History
| 1 | 06/06/2006 | QCD | Quit Claim Deed | HERN, CHARLES L | HERN, CHARLES B | | | $0.00 | 61261 | 4165873 |
| 2 | 12/01/1986 | QCD | Quit Claim Deed | VOLZ, NANCY L | HERN, CHARLES L | | | $0.00 | 63474 | 86015679 |
| 3 | 01/01/1900 | OTHER | Other - Misc. Documents | HERN, NANCY L | VOLZ, NANCY L | | | $0.00 | 0 | 0 |
| 4 | 01/01/1900 | OTHER | Other - Misc. Documents | Unknown | HERN, NANCY L | | | $0.00 | 58712 | 0 |
Payout Agreement
| No payout information available.. |