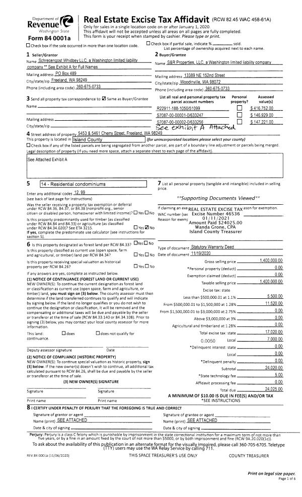
Property
Account |
| Property ID: | 233786 | Abbreviated Legal Description: | COLUMBIA BCH TRACT A DESC: BG SWCR TR A N 246.29'TPB N241.40'TO NW CR TR A E752.89' S10*E131 .43' S84*W39.12' S55*W190 .58' S66*W227.20' S63*W177' TP INTER/W N RIM OF CANYON ALG N RIM CANYON N51*E85.41 N48*E111.98' N57*E44.93' N53*E25.12' N89*W424.05 TPB |
| Geographic ID: | S6400-00-00A01-0 | Agent Code: | |
| Type: | Real | | |
| Tax Area: | 722 - APPRAISER-S Whid Schl Dist, Special District, improved, greater than 1 acre | Land Use Code | 11 |
| Open Space: | N | DFL | N |
| Historic Property: | N | Remodel Property: | N |
| Multi-Family Redevelopment: | N | | |
| Township: | | Section: | |
| Range: | |
Location |
| Address: | 6757 HUMPHREY RD CLINTON, WA 98236 | Mapsco: | |
| Neighborhood: | Cycle 4 | Map ID: | 1001 |
| Neighborhood CD: | 4 |
Owner |
| Name: | GARDNER, JIM R | Owner ID: | 20964 |
| Mailing Address: | PO BOX 465 CLINTON, WA 98236-0465 | % Ownership: | 100.0000000000% |
| | | Exemptions: | |
Taxes and Assessment Details
Values
| (+) Improvement Homesite Value: | + | $0 | |
| (+) Improvement Non-Homesite Value: | + | $439,632 | |
| (+) Land Homesite Value: | + | $0 | |
| (+) Land Non-Homesite Value: | + | $450,000 | |
| (+) Curr Use (HS): | + | $0 | $0 |
| (+) Curr Use (NHS): | + | $0 | $0 |
| | | -------------------------- | |
| (=) Market Value: | = | $889,632 | |
| (–) Productivity Loss: | – | $0 | |
| | | -------------------------- | |
| (=) Subtotal: | = | $889,632 | |
| (+) Senior Appraised Value: | + | $0 | |
| (+) Non-Senior Appraised Value: | + | $889,632 | |
| | | -------------------------- | |
| (=) Total Appraised Value: | = | $889,632 | |
| (–) Senior Exemption Loss: | – | $0 | |
| (–) Exemption Loss: | – | $0 | |
| | | -------------------------- | |
| (=) Taxable Value: | = | $889,632 | |
Taxing Jurisdiction
| Owner: | GARDNER, JIM R | | |
| % Ownership: | 100.0000000000% | | |
| Total Value: | $889,632 | | |
| Tax Area: | 722 - APPRAISER-S Whid Schl Dist, Special District, improved, greater than 1 acre |
| CF | Conservation Futures | 0.0316035091 | $889,632 | $889,632 | $28.12 | | |
| FIRE3 | Fire & Rescue Dist #3 S Whidbey GEN | 1.2004855531 | $889,632 | $889,632 | $1,067.99 | | |
| HOBOND | Hospital BOND | 0.1910887512 | $889,632 | $889,632 | $170.00 | | |
| HOGEN | Hospital GEN | 0.3902502903 | $889,632 | $889,632 | $347.18 | | |
| CE | County Current Expense | 0.3708482477 | $889,632 | $889,632 | $329.92 | | |
| CR | County Roads | 0.4584763726 | $889,632 | $889,632 | $407.88 | | |
| ISLANDEMS | Hospital GEN (EMS) | 0.5000000000 | $889,632 | $889,632 | $444.82 | | |
| LIB | Library Sno-Isle GEN | 0.3153421757 | $889,632 | $889,632 | $280.54 | | |
| PORTWHID | Port of S Whidbey GEN | 0.1094540357 | $889,632 | $889,632 | $97.37 | | |
| SCH206BOND | School 206 BOND | 0.3161759235 | $889,632 | $889,632 | $281.28 | | |
| SCH206MO | School 206 Enrichment | 0.4547169547 | $889,632 | $889,632 | $404.53 | | |
| ST | State School | 1.3035497053 | $889,632 | $889,632 | $1,159.68 | | |
| ST2 | State School Part 2 | 0.8169543533 | $889,632 | $889,632 | $726.79 | | |
| SWHIDPRBD | P & R S Whidbey BOND | 0.0152817568 | $889,632 | $889,632 | $13.60 | | |
| SWHIDPRBD2 | P & R S Whidbey BOND2 | 0.0138911264 | $889,632 | $889,632 | $12.36 | | |
| SWHIDPRMT | P & R S Whidbey GEN | 0.2053334452 | $889,632 | $889,632 | $182.67 | | |
| | Total Tax Rate: | 6.6934522006 | | | | | |
| | | | | Taxes w/Current Exemptions: | $5,954.73 | | |
| | | | | Taxes w/o Exemptions: | $5,954.73 | | |
Improvement / Building
| Improvement #1: | RESIDENTIAL | State Code: | Y | 2212.0 sqft | Value: | $439,632 |
| Bathrooms: | 2.5 | Bedrooms: | 3 | | Ceiling: | DRYWALL PAINTED | Exterior Wall/Cover: | WOOD SIDING | | Floor Covering: | HARDWOOD/CARP 60-40 | Floor Structure: | WOOD W/SUBFLOOR | | Foundation: | CONCRETE | Heating: | FHA ELECTRIC | | Interior Finish: | DRYWALL PAINT | Plumbing Fixture Cnt: | 12 | | Roof Slope: | 8" IN 12" | Roof Structure/Cover: | CJ ALUMINIUM HEAVY |
|
| | Type | Description | Class CD | Sub Class CD | Year Built | Area |
| | BAS | BASE/MAIN FLOOR | 4 | 0 | 1989 | 1116.0 |
| | AGR | ATTACHED GARAGE | 4 | 0 | 1989 | 581.1 |
| | UPS | UPPER STORY | 4 | 0 | 1989 | 1096.0 |
| | OWP | OPEN WOOD PORCH W/STEPS | 4 | 0 | 1989 | 1072.5 |
| | oOBD | Out Buildings | 4 | 0 | 1989 | 0.0 |
Sketch
Property Image
Land
| 1 | 32 | AC (03.01-09.99) | 4.6600 | 0.00 | 0.00 | 0.00 | 1.00 | $450,000 | $0 |
Roll Value History
| 2026 | N/A | N/A | N/A | N/A | N/A |
| 2025 | $439,632 | $450,000 | $0 | $889,632 | $889,632 |
| 2024 | $445,341 | $420,000 | $0 | $865,341 | $865,341 |
| 2023 | $451,051 | $420,000 | $0 | $871,051 | $871,051 |
| 2022 | $414,550 | $400,000 | $0 | $814,550 | $814,550 |
| 2021 | $366,266 | $360,000 | $0 | $726,266 | $726,266 |
| 2020 | $358,129 | $340,000 | $0 | $698,129 | $698,129 |
| 2019 | $269,676 | $370,000 | $0 | $639,676 | $639,676 |
| 2018 | $270,475 | $250,000 | $0 | $520,475 | $520,475 |
| 2017 | $272,003 | $250,000 | $0 | $522,003 | $522,003 |
| 2016 | $275,199 | $250,000 | $0 | $525,199 | $525,199 |
| 2015 | $278,395 | $250,000 | $0 | $528,395 | $528,395 |
| 2014 | $254,502 | $250,000 | $0 | $504,502 | $504,502 |
| 2013 | $257,664 | $256,300 | $0 | $513,964 | $513,964 |
| 2012 | $260,828 | $256,300 | $0 | $517,128 | $517,128 |
| 2011 | $263,991 | $256,300 | $0 | $520,291 | $520,291 |
| 2010 | $276,461 | $256,300 | $0 | $532,761 | $532,761 |
| 2009 | $288,062 | $279,600 | $0 | $567,662 | $567,662 |
| 2008 | $268,327 | $349,500 | $0 | $617,827 | $617,827 |
| 2007 | $271,594 | $233,000 | $0 | $504,594 | $504,594 |
Deed and Sales History
| 1 | 08/28/2019 | EZ | Easement | GARDNER, JIM R | PUGET SOUND ENERGY | | | $6,460.00 | 40558 | 4472718 |
| 2 | 11/01/1995 | OTHER | Other - Misc. Documents | GARDNER, JIMMY R | GARDNER, JIMMY R | | | $0.00 | 66098 | 94022815 |
| 3 | 11/01/1995 | QCD | Quit Claim Deed | GARDNER, JIMMY R | GARDNER, JIMMY R | | | $0.00 | 53921 | 95017944 |
| 4 | 06/01/1995 | OTHER | Other - Misc. Documents | GARDNER, JIMMY R | GARDNER, JIMMY R | | | $0.00 | 66445 | 95008561 |
| 5 | 03/01/1982 | EXECUTORD | Executor Deed | HOILAND, ORAN | GARDNER, JIMMY R | | | $40,000.00 | 20605 | 394133 |
| 6 | 01/01/1900 | OTHER | Other - Misc. Documents | Unknown | HOILAND, ORAN | | | $0.00 | 0 | 0 |
Payout Agreement
| No payout information available.. |