Property
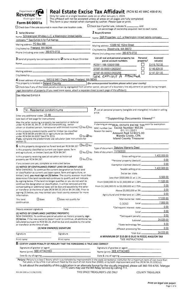
Account |
| Property ID: | 233795 | Abbreviated Legal Description: | COLUMBIA BCH PT TR A & RESERVE #1 DESC: BG SWCR TRACT A N246.29' S89*E424.05'TP ON N RIM OF CANYON ALG N RIM OF CANYON S53*W25.12' S57*W44.93' S48*W111.98' S51*W85.41' S59*W51.35' S55*W31.07' S53*W20.91' S71*W31.95' N88*W42.08' S62*W64'TP WLN RESERVE #1 N |
| Geographic ID: | S6400-00-00A02-0 | Agent Code: | |
| Type: | Real | | |
| Tax Area: | 720 - APPRAISER-S Whid Schl Dist, Special District, improved & less than 1 acre | Land Use Code | 11 |
| Open Space: | N | DFL | N |
| Historic Property: | N | Remodel Property: | N |
| Multi-Family Redevelopment: | N | | |
| Township: | | Section: | |
| Range: | |
Location |
| Address: | 6787 HUMPHREY RD CLINTON, WA 98236 | Mapsco: | |
| Neighborhood: | Cycle 4 | Map ID: | 1001 |
| Neighborhood CD: | 4 |
Owner |
| Name: | POSZ, MARY A | Owner ID: | 96589 |
| Mailing Address: | EUGENE M KEGLEY 6787 HUMPHREY RD CLINTON, WA 98236-9602 | % Ownership: | 100.0000000000% |
| | | Exemptions: | |
Taxes and Assessment Details
Values
| (+) Improvement Homesite Value: | + | $0 | |
| (+) Improvement Non-Homesite Value: | + | $343,662 | |
| (+) Land Homesite Value: | + | $0 | |
| (+) Land Non-Homesite Value: | + | $240,000 | |
| (+) Curr Use (HS): | + | $0 | $0 |
| (+) Curr Use (NHS): | + | $0 | $0 |
| | | -------------------------- | |
| (=) Market Value: | = | $583,662 | |
| (–) Productivity Loss: | – | $0 | |
| | | -------------------------- | |
| (=) Subtotal: | = | $583,662 | |
| (+) Senior Appraised Value: | + | $0 | |
| (+) Non-Senior Appraised Value: | + | $583,662 | |
| | | -------------------------- | |
| (=) Total Appraised Value: | = | $583,662 | |
| (–) Senior Exemption Loss: | – | $0 | |
| (–) Exemption Loss: | – | $0 | |
| | | -------------------------- | |
| (=) Taxable Value: | = | $583,662 | |
Taxing Jurisdiction
| Owner: | POSZ, MARY A | | |
| % Ownership: | 100.0000000000% | | |
| Total Value: | $583,662 | | |
| Tax Area: | 720 - APPRAISER-S Whid Schl Dist, Special District, improved & less than 1 acre |
| CF | Conservation Futures | 0.0316035091 | $583,662 | $583,662 | $18.45 | | |
| FIRE3 | Fire & Rescue Dist #3 S Whidbey GEN | 1.2004855531 | $583,662 | $583,662 | $700.68 | | |
| HOBOND | Hospital BOND | 0.1910887512 | $583,662 | $583,662 | $111.53 | | |
| HOGEN | Hospital GEN | 0.3902502903 | $583,662 | $583,662 | $227.77 | | |
| CE | County Current Expense | 0.3708482477 | $583,662 | $583,662 | $216.45 | | |
| CR | County Roads | 0.4584763726 | $583,662 | $583,662 | $267.60 | | |
| ISLANDEMS | Hospital GEN (EMS) | 0.5000000000 | $583,662 | $583,662 | $291.83 | | |
| LIB | Library Sno-Isle GEN | 0.3153421757 | $583,662 | $583,662 | $184.05 | | |
| PORTWHID | Port of S Whidbey GEN | 0.1094540357 | $583,662 | $583,662 | $63.88 | | |
| SCH206BOND | School 206 BOND | 0.3161759235 | $583,662 | $583,662 | $184.54 | | |
| SCH206MO | School 206 Enrichment | 0.4547169547 | $583,662 | $583,662 | $265.40 | | |
| ST | State School | 1.3035497053 | $583,662 | $583,662 | $760.83 | | |
| ST2 | State School Part 2 | 0.8169543533 | $583,662 | $583,662 | $476.83 | | |
| SWHIDPRBD | P & R S Whidbey BOND | 0.0152817568 | $583,662 | $583,662 | $8.92 | | |
| SWHIDPRBD2 | P & R S Whidbey BOND2 | 0.0138911264 | $583,662 | $583,662 | $8.11 | | |
| SWHIDPRMT | P & R S Whidbey GEN | 0.2053334452 | $583,662 | $583,662 | $119.85 | | |
| | Total Tax Rate: | 6.6934522006 | | | | | |
| | | | | Taxes w/Current Exemptions: | $3,906.72 | | |
| | | | | Taxes w/o Exemptions: | $3,906.72 | | |
Improvement / Building
| Improvement #1: | RESIDENTIAL | State Code: | Y | 1760.0 sqft | Value: | $343,662 |
| Bathrooms: | 2 | Bedrooms: | 3 | | Ceiling: | DRYWALL PAINTED | Exterior Wall/Cover: | WOOD SIDING | | Floor Covering: | HARDWOOD/CARP 60-40 | Floor Structure: | WOOD W/SUBFLOOR | | Foundation: | CONCRETE BLOCKS | Heating: | BASEBOARD ELECTRIC | | Interior Finish: | DRYWALL PAINT | Plumbing Fixture Cnt: | 9 | | Roof Slope: | 4" IN 12" | Roof Structure/Cover: | CJ ASPHALT |
|
| | Type | Description | Class CD | Sub Class CD | Year Built | Area |
| | BAS | BASE/MAIN FLOOR | 3 | 0 | 1921 | 1760.0 |
| | OP4 | OPEN PORCH W/CEILING-ROOF | 3 | 0 | 1921 | 60.0 |
| | AGR | ATTACHED GARAGE | 3 | 0 | 1921 | 462.0 |
| | OP4 | OPEN PORCH W/CEILING-ROOF | 3 | 0 | 1921 | 210.0 |
| | OWP | OPEN WOOD PORCH W/STEPS | 3 | 0 | 1921 | 340.0 |
| | oOBD | Out Buildings | 3 | 0 | 1921 | 0.0 |
| | OP3 | OPEN PORCH W/ROOF | 3 | 0 | 1921 | 168.0 |
| | UB6 | BASEMENT UNFINISHED 6" | 3 | 0 | 1921 | 1088.0 |
Sketch
Property Image
Land
| 1 | 17 | AC (01.01-02.00) | 0.0000 | 0.00 | 0.00 | 0.00 | 1.00 | $240,000 | $0 |
Roll Value History
| 2026 | N/A | N/A | N/A | N/A | N/A |
| 2025 | $343,662 | $240,000 | $0 | $583,662 | $583,662 |
| 2024 | $354,804 | $230,000 | $0 | $584,804 | $584,804 |
| 2023 | $359,194 | $230,000 | $0 | $589,194 | $589,194 |
| 2022 | $331,129 | $210,000 | $0 | $541,129 | $541,129 |
| 2021 | $294,004 | $150,000 | $0 | $444,004 | $444,004 |
| 2020 | $288,899 | $130,000 | $0 | $418,899 | $418,899 |
| 2019 | $219,988 | $150,000 | $0 | $369,988 | $369,988 |
| 2018 | $220,601 | $150,000 | $0 | $370,601 | $370,601 |
| 2017 | $221,833 | $150,000 | $0 | $371,833 | $371,833 |
| 2016 | $224,294 | $150,000 | $0 | $374,294 | $374,294 |
| 2015 | $226,756 | $150,000 | $0 | $376,756 | $376,756 |
| 2014 | $224,596 | $125,000 | $0 | $349,596 | $349,596 |
| 2013 | $226,895 | $125,000 | $0 | $351,895 | $351,895 |
| 2012 | $229,193 | $125,000 | $0 | $354,193 | $354,193 |
| 2011 | $231,492 | $125,000 | $0 | $356,492 | $356,492 |
| 2010 | $187,935 | $125,000 | $0 | $312,935 | $312,935 |
| 2009 | $194,212 | $155,000 | $0 | $349,212 | $349,212 |
| 2008 | $145,735 | $165,000 | $0 | $310,735 | $310,735 |
| 2007 | $148,776 | $165,000 | $0 | $313,776 | $313,776 |
Deed and Sales History
| 1 | 09/07/2019 | EZ | Easement | POSZ, MARY A | PUGET SOUND ENERGY | | | $8,000.00 | 40793 | 4473905 |
| 2 | 05/29/2001 | WD | Warranty Deed | MORTGAGE ASSOCIATION, FEDERAL | POSZ, MARY A | | | $187,000.00 | 11881 | 2003330 |
| 3 | 12/11/2000 | TRUSTEED | Trustee's Deed | MERSMAN, MICHAEL G | MORTGAGE ASSOCIATION, FEDERAL | | | $134,679.00 | 4713 | 20021857 |
| 4 | 02/01/1997 | WD | Warranty Deed | KRONBERG, ROBERT J | MERSMAN, MICHAEL G | | | $168,000.00 | 70669 | 97003027 |
| 5 | 11/01/1995 | OTHER | Other - Misc. Documents | KRONBERG, ROBERT J | KRONBERG, ROBERT J | | | $0.00 | 66098 | 94022815 |
| 6 | 11/01/1995 | QCD | Quit Claim Deed | KRONBERG, ROBERT J | KRONBERG, ROBERT J | | | $0.00 | 53922 | 95017945 |
| 7 | 06/01/1995 | OTHER | Other - Misc. Documents | KRONBERG, ROBERT J | KRONBERG, ROBERT J | | | $0.00 | 66445 | 95008561 |
| 8 | 10/01/1986 | PACD | Purchaser's Assignment | HEBERT, HOWARD A | KRONBERG, ROBERT J | | | $65,000.00 | 62948 | 86013279 |
| 9 | 01/01/1900 | OTHER | Other - Misc. Documents | Unknown | HEBERT, HOWARD A | | | $0.00 | 0 | 0 |
Payout Agreement
| No payout information available.. |