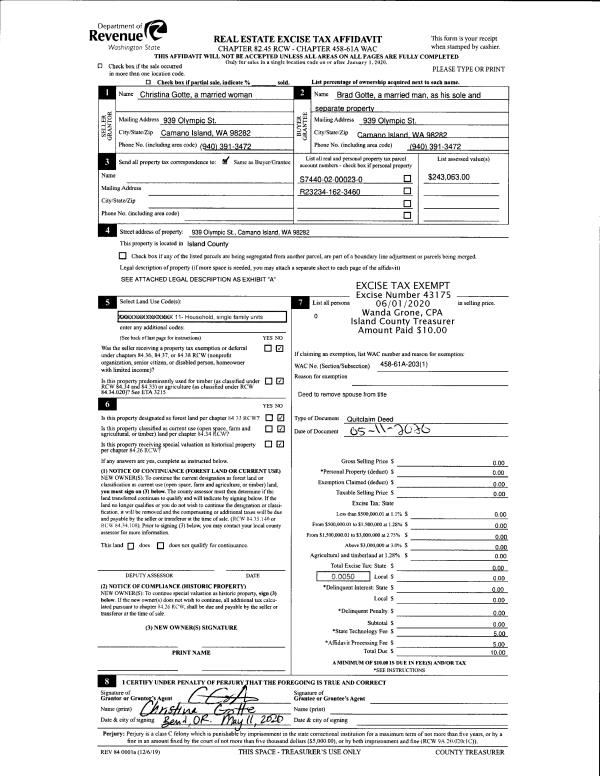
Property
Account |
| Property ID: | 233848 | Abbreviated Legal Description: | Columbia Beach,s Lot D10 & PT RESERVE 2,s Blk 0;s LOT A BLA 249-17 AF#4433514s |
| Geographic ID: | S6400-00-00D10-0 | Agent Code: | |
| Type: | Real | | |
| Tax Area: | 722 - APPRAISER-S Whid Schl Dist, Special District, improved, greater than 1 acre | Land Use Code | 11 |
| Open Space: | N | DFL | N |
| Historic Property: | N | Remodel Property: | N |
| Multi-Family Redevelopment: | N | | |
| Township: | | Section: | |
| Range: | |
Location |
| Address: | 4847 HELLAND VIEW LN CLINTON, WA 98236 | Mapsco: | |
| Neighborhood: | Cycle 4 | Map ID: | 1001 |
| Neighborhood CD: | 4 |
Owner |
| Name: | CORLETT, THOMAS | Owner ID: | 306919 |
| Mailing Address: | DORIS CORLETT 4847 HELLAND VIEW LN CLINTON, WA 98236 | % Ownership: | 100.0000000000% |
| | | Exemptions: | |
Taxes and Assessment Details
Values
| (+) Improvement Homesite Value: | + | $0 | |
| (+) Improvement Non-Homesite Value: | + | $299,133 | |
| (+) Land Homesite Value: | + | $0 | |
| (+) Land Non-Homesite Value: | + | $450,000 | |
| (+) Curr Use (HS): | + | $0 | $0 |
| (+) Curr Use (NHS): | + | $0 | $0 |
| | | -------------------------- | |
| (=) Market Value: | = | $749,133 | |
| (–) Productivity Loss: | – | $0 | |
| | | -------------------------- | |
| (=) Subtotal: | = | $749,133 | |
| (+) Senior Appraised Value: | + | $0 | |
| (+) Non-Senior Appraised Value: | + | $749,133 | |
| | | -------------------------- | |
| (=) Total Appraised Value: | = | $749,133 | |
| (–) Senior Exemption Loss: | – | $0 | |
| (–) Exemption Loss: | – | $0 | |
| | | -------------------------- | |
| (=) Taxable Value: | = | $749,133 | |
Taxing Jurisdiction
| Owner: | CORLETT, THOMAS | | |
| % Ownership: | 100.0000000000% | | |
| Total Value: | $749,133 | | |
| Tax Area: | 722 - APPRAISER-S Whid Schl Dist, Special District, improved, greater than 1 acre |
| CF | Conservation Futures | 0.0316035091 | $749,133 | $749,133 | $23.68 | | |
| FIRE3 | Fire & Rescue Dist #3 S Whidbey GEN | 1.2004855531 | $749,133 | $749,133 | $899.32 | | |
| HOBOND | Hospital BOND | 0.1910887512 | $749,133 | $749,133 | $143.15 | | |
| HOGEN | Hospital GEN | 0.3902502903 | $749,133 | $749,133 | $292.35 | | |
| CE | County Current Expense | 0.3708482477 | $749,133 | $749,133 | $277.81 | | |
| CR | County Roads | 0.4584763726 | $749,133 | $749,133 | $343.46 | | |
| ISLANDEMS | Hospital GEN (EMS) | 0.5000000000 | $749,133 | $749,133 | $374.57 | | |
| LIB | Library Sno-Isle GEN | 0.3153421757 | $749,133 | $749,133 | $236.23 | | |
| PORTWHID | Port of S Whidbey GEN | 0.1094540357 | $749,133 | $749,133 | $82.00 | | |
| SCH206BOND | School 206 BOND | 0.3161759235 | $749,133 | $749,133 | $236.86 | | |
| SCH206MO | School 206 Enrichment | 0.4547169547 | $749,133 | $749,133 | $340.64 | | |
| ST | State School | 1.3035497053 | $749,133 | $749,133 | $976.53 | | |
| ST2 | State School Part 2 | 0.8169543533 | $749,133 | $749,133 | $612.01 | | |
| SWHIDPRBD | P & R S Whidbey BOND | 0.0152817568 | $749,133 | $749,133 | $11.45 | | |
| SWHIDPRBD2 | P & R S Whidbey BOND2 | 0.0138911264 | $749,133 | $749,133 | $10.41 | | |
| SWHIDPRMT | P & R S Whidbey GEN | 0.2053334452 | $749,133 | $749,133 | $153.82 | | |
| | Total Tax Rate: | 6.6934522006 | | | | | |
| | | | | Taxes w/Current Exemptions: | $5,014.29 | | |
| | | | | Taxes w/o Exemptions: | $5,014.29 | | |
Improvement / Building
| Improvement #1: | RESIDENTIAL | State Code: | Y | 2272.0 sqft | Value: | $299,133 |
| Bathrooms: | 2 | Bedrooms: | 3 | | Ceiling: | DRYWALL PAINTED | Cooling: | HEAT PUMP/CONV/V | | Exterior Wall/Cover: | WOOD SIDING | Floor Covering: | SOFTWOOD/VINYL 80-20 | | Floor Structure: | WOOD W/SUBFLOOR | Foundation: | CONCRETE | | Interior Finish: | DRYWALL PAINT | Plumbing Fixture Cnt: | 9 | | Roof Slope: | 4" IN 12" | Roof Structure/Cover: | CJ ASPHALT |
|
| | Type | Description | Class CD | Sub Class CD | Year Built | Area |
| | BAS | BASE/MAIN FLOOR | 3 | 0 | 1978 | 1072.0 |
| | DWN | DOWNSTAIRS LIVING AREA | 3 | 0 | 1978 | 1200.0 |
| | OP3 | OPEN PORCH W/ROOF | 3 | 0 | 1978 | 36.0 |
| | OWP | OPEN WOOD PORCH W/STEPS | 3 | 0 | 1978 | 312.0 |
| | OWR | OPEN WOOD PORCH W/STEPS/ROOF | 3 | 0 | 1978 | 128.0 |
Sketch
Property Image
Land
| 1 | 32 | AC (03.01-09.99) | 7.1700 | 312325.20 | 0.00 | 0.00 | 1.00 | $450,000 | $0 |
Roll Value History
| 2026 | N/A | N/A | N/A | N/A | N/A |
| 2025 | $299,133 | $450,000 | $0 | $749,133 | $749,133 |
| 2024 | $219,766 | $420,000 | $0 | $639,766 | $639,766 |
| 2023 | $175,774 | $420,000 | $0 | $595,774 | $595,774 |
| 2022 | $225,947 | $400,000 | $0 | $625,947 | $625,947 |
| 2021 | $199,165 | $360,000 | $0 | $559,165 | $559,165 |
| 2020 | $194,273 | $340,000 | $0 | $534,273 | $534,273 |
| 2019 | $139,796 | $370,000 | $0 | $509,796 | $509,796 |
| 2018 | $140,255 | $300,000 | $0 | $440,255 | $440,255 |
| 2017 | $141,170 | $300,000 | $0 | $441,170 | $441,170 |
| 2016 | $143,006 | $300,000 | $0 | $443,006 | $443,006 |
| 2015 | $144,837 | $300,000 | $0 | $444,837 | $444,837 |
| 2014 | $126,521 | $300,000 | $0 | $426,521 | $426,521 |
| 2013 | $128,327 | $342,650 | $0 | $470,977 | $470,977 |
| 2012 | $130,130 | $342,650 | $0 | $472,780 | $472,780 |
| 2011 | $131,936 | $342,650 | $0 | $474,586 | $474,586 |
| 2010 | $140,974 | $342,650 | $0 | $483,624 | $483,624 |
| 2009 | $122,678 | $467,250 | $0 | $589,928 | $589,928 |
| 2008 | $112,534 | $467,250 | $0 | $579,784 | $579,784 |
| 2007 | $113,917 | $311,500 | $0 | $425,417 | $425,417 |
Deed and Sales History
| 1 | 08/08/2022 | WD | Warranty Deed | HELLAND, GALEN | CORLETT, THOMAS | | | $852,850.00 | 54105 | 4549455 |
|   | |
| 2 | 08/07/2019 | EZ | Easement | HELLAND, GALEN | PUGET SOUND ENERGY | | | $5,150.00 | 40426 | 4472091 |
| 3 | 08/31/2018 | QCD | Quit Claim Deed | DOLGOFF, TODD | HELLAND, GALEN | | | $0.00 | 39066 | 4465780 |
| 4 | 06/21/2011 | QCD | Quit Claim Deed | HELLAND, GALEN | HELLAND, GALEN | | | $0.00 | 4761 | 4297074 |
| 5 | 06/18/2008 | BLA | DNU - Boundary Line Adjustment | HELLAND, GALEN | HELLAND, GALEN | | | $0.00 | 80782 | 4216428 |
| 6 | 02/19/2002 | ESTSEPPROP | Establish Separate Property | HELLAND, GALEN | HELLAND, GALEN | | | $0.00 | 20596 | 4011538 |
| 7 | 01/22/2002 | QCD | Quit Claim Deed | HELLAND, GALEN M | HELLAND, GALEN | | | $0.00 | 20320 | 4009475 |
| 8 | 01/11/2002 | BLA | DNU - Boundary Line Adjustment | HELLAND, GALEN M | HELLAND, GALEN M | | | $0.00 | 69284 | 20026816 |
| 9 | 05/06/1999 | PRD | Personal Representatives Deed | HELLAND, MILLER | HELLAND, GALEN M | | | $0.00 | 91805 | 99011378 |
| 10 | 01/01/1900 | OTHER | Other - Misc. Documents | Unknown | HELLAND, MILLER | | | $0.00 | 0 | 0 |
Payout Agreement
| No payout information available.. |