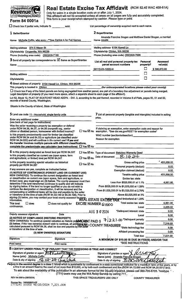
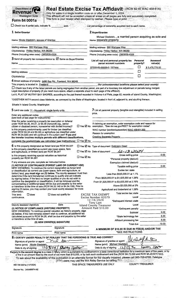
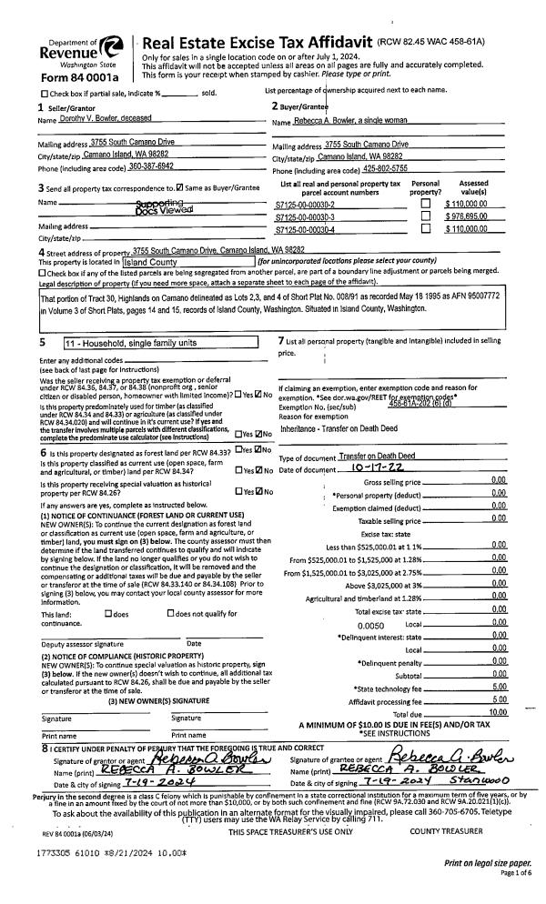
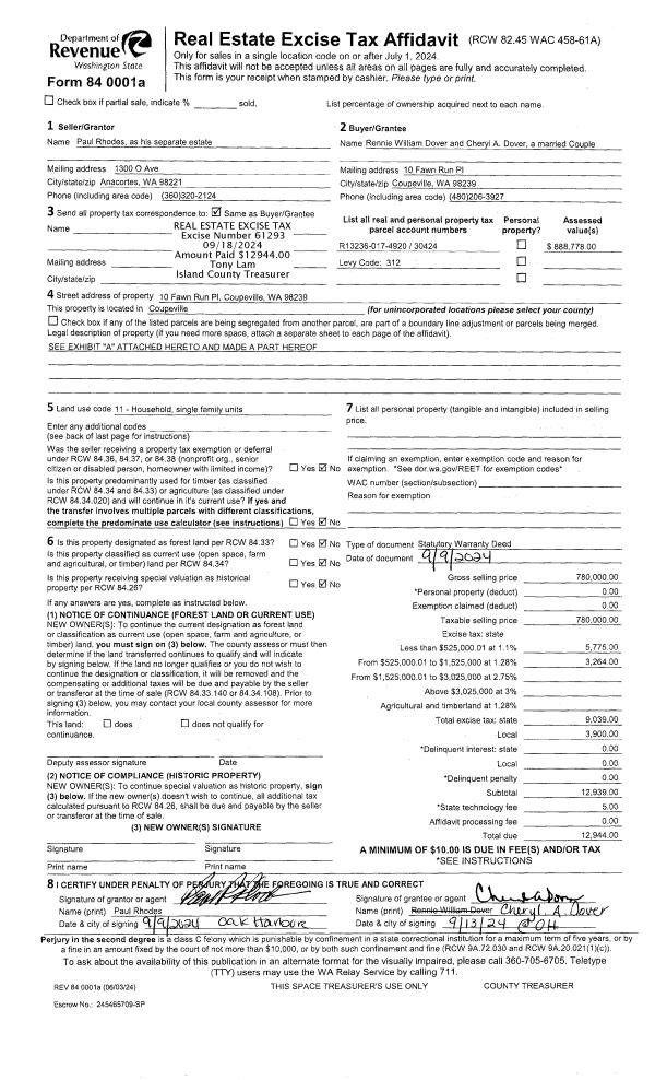
Property
Account |
| Property ID: | 233857 | Abbreviated Legal Description: | COLUMBIA BCH SL 8 IN TR E & RES 2: BG W/4 CR SEC 30-29-4E S685' E683' TPB W322' S214' W56' S342' W305' TO WLN TR E S TO CREEK ELY ALG NLN CREEK TP S FR TPB N TPB EX N10' OF TR E TGW & SUB TO EZ |
| Geographic ID: | S6400-00-00E08-0 | Agent Code: | |
| Type: | Real | | |
| Tax Area: | 729 - APPRAISER-S Whid Schl Dist, Special District, vacant & 50 acres or less | Land Use Code | 99 |
| Open Space: | N | DFL | N |
| Historic Property: | N | Remodel Property: | N |
| Multi-Family Redevelopment: | N | | |
| Township: | | Section: | |
| Range: | |
Location |
| Address: | | Mapsco: | |
| Neighborhood: | Cycle 4 | Map ID: | 1001 |
| Neighborhood CD: | 4 |
Owner |
| Name: | SILENT OWL LLC | Owner ID: | 316489 |
| Mailing Address: | PO BOX 6356 BELLEVUE, WA 98008 | % Ownership: | 100.0000000000% |
| | | Exemptions: | |
Taxes and Assessment Details
Values
| (+) Improvement Homesite Value: | + | $0 | |
| (+) Improvement Non-Homesite Value: | + | $0 | |
| (+) Land Homesite Value: | + | $0 | |
| (+) Land Non-Homesite Value: | + | $330,000 | |
| (+) Curr Use (HS): | + | $0 | $0 |
| (+) Curr Use (NHS): | + | $0 | $0 |
| | | -------------------------- | |
| (=) Market Value: | = | $330,000 | |
| (–) Productivity Loss: | – | $0 | |
| | | -------------------------- | |
| (=) Subtotal: | = | $330,000 | |
| (+) Senior Appraised Value: | + | $0 | |
| (+) Non-Senior Appraised Value: | + | $330,000 | |
| | | -------------------------- | |
| (=) Total Appraised Value: | = | $330,000 | |
| (–) Senior Exemption Loss: | – | $0 | |
| (–) Exemption Loss: | – | $0 | |
| | | -------------------------- | |
| (=) Taxable Value: | = | $330,000 | |
Taxing Jurisdiction
| Owner: | SILENT OWL LLC | | |
| % Ownership: | 100.0000000000% | | |
| Total Value: | $330,000 | | |
| Tax Area: | 729 - APPRAISER-S Whid Schl Dist, Special District, vacant & 50 acres or less |
| CF | Conservation Futures | 0.0316035091 | $330,000 | $330,000 | $10.43 | | |
| HOBOND | Hospital BOND | 0.1910887512 | $330,000 | $330,000 | $63.06 | | |
| HOGEN | Hospital GEN | 0.3902502903 | $330,000 | $330,000 | $128.78 | | |
| CE | County Current Expense | 0.3708482477 | $330,000 | $330,000 | $122.38 | | |
| CR | County Roads | 0.4584763726 | $330,000 | $330,000 | $151.30 | | |
| ISLANDEMS | Hospital GEN (EMS) | 0.5000000000 | $330,000 | $330,000 | $165.00 | | |
| LIB | Library Sno-Isle GEN | 0.3153421757 | $330,000 | $330,000 | $104.06 | | |
| PORTWHID | Port of S Whidbey GEN | 0.1094540357 | $330,000 | $330,000 | $36.12 | | |
| SCH206BOND | School 206 BOND | 0.3161759235 | $330,000 | $330,000 | $104.34 | | |
| SCH206MO | School 206 Enrichment | 0.4547169547 | $330,000 | $330,000 | $150.06 | | |
| ST | State School | 1.3035497053 | $330,000 | $330,000 | $430.17 | | |
| ST2 | State School Part 2 | 0.8169543533 | $330,000 | $330,000 | $269.59 | | |
| SWHIDPRBD | P & R S Whidbey BOND | 0.0152817568 | $330,000 | $330,000 | $5.04 | | |
| SWHIDPRBD2 | P & R S Whidbey BOND2 | 0.0138911264 | $330,000 | $330,000 | $4.58 | | |
| SWHIDPRMT | P & R S Whidbey GEN | 0.2053334452 | $330,000 | $330,000 | $67.76 | | |
| | Total Tax Rate: | 5.4929666475 | | | | | |
| | | | | Taxes w/Current Exemptions: | $1,812.67 | | |
| | | | | Taxes w/o Exemptions: | $1,812.67 | | |
Improvement / Building
Sketch
| No sketches available for this property. |
Property Image
Land
| 1 | 32 | AC (03.01-09.99) | 6.2500 | 0.00 | 0.00 | 0.00 | 1.00 | $330,000 | $0 |
Roll Value History
| 2026 | N/A | N/A | N/A | N/A | N/A |
| 2025 | $0 | $330,000 | $0 | $330,000 | $330,000 |
| 2024 | $0 | $340,000 | $0 | $340,000 | $340,000 |
| 2023 | $0 | $340,000 | $0 | $340,000 | $340,000 |
| 2022 | $0 | $340,000 | $0 | $340,000 | $340,000 |
| 2021 | $0 | $340,000 | $0 | $340,000 | $340,000 |
| 2020 | $0 | $340,000 | $0 | $340,000 | $340,000 |
| 2019 | $0 | $370,000 | $0 | $370,000 | $370,000 |
| 2018 | $0 | $300,000 | $0 | $300,000 | $300,000 |
| 2017 | $0 | $300,000 | $0 | $300,000 | $300,000 |
| 2016 | $0 | $300,000 | $0 | $300,000 | $300,000 |
| 2015 | $0 | $300,000 | $0 | $300,000 | $300,000 |
| 2014 | $0 | $300,000 | $0 | $300,000 | $300,000 |
| 2013 | $0 | $309,375 | $0 | $309,375 | $309,375 |
| 2012 | $0 | $309,375 | $0 | $309,375 | $309,375 |
| 2011 | $0 | $343,750 | $0 | $343,750 | $343,750 |
| 2010 | $0 | $343,750 | $0 | $343,750 | $343,750 |
| 2009 | $0 | $468,750 | $0 | $468,750 | $468,750 |
| 2008 | $0 | $468,750 | $0 | $468,750 | $468,750 |
| 2007 | $0 | $281,250 | $0 | $281,250 | $281,250 |
Deed and Sales History
| 1 | 05/15/2025 | WD | Warranty Deed | OPDYCKE TTEE, THOMAS C | SILENT OWL LLC | | | $0.00 | 63465 | 4585844 |
| 2 | 05/15/2025 | WD | Warranty Deed | NANCY BEACH LLC | OPDYCKE TTEE, THOMAS C | | | $0.00 | 63457 | 4585808 |
| 3 | 02/18/2022 | WD | Warranty Deed | CORBIN, NANCY L | NANCY BEACH LLC | | | $0.00 | 58997 | 4568534 |
| 4 | 02/18/2022 | WD | Warranty Deed | PIONEER SPIRIT, LLC | CORBIN, NANCY L | | | $0.00 | 58990 | 4568504 |
| 5 | 04/29/2020 | WD | Warranty Deed | CORBIN, NANCY L | PIONEER SPIRIT, LLC | | | $0.00 | 58972 | 4568422 |
| 6 | 06/21/2022 | WD | Warranty Deed | OPDYCKE, LINDA LOUISE | CORBIN, NANCY L | | | $0.00 | 58953 | 4568364 |
| 7 | 06/21/2022 | WD | Warranty Deed | OPDYCKE, LINDA LOUISE | NANCY BEACH LLC | | | $0.00 | 54195 | 4549867 |
| 8 | 02/18/2022 | WD | Warranty Deed | CORBIN, NANCY L | NANCY BEACH LLC | | | $0.00 | 52137 | 4540718 |
| 9 | 02/18/2022 | WD | Warranty Deed | PIONEER SPIRIT, LLC | CORBIN, NANCY L | | | $0.00 | 52088 | 4540491 |
| 10 | 04/29/2020 | WD | Warranty Deed | CORBIN TRUSTEE, NANCY L | PIONEER SPIRIT, LLC | | | $0.00 | 42899 | 4485923 |
| 11 | 08/19/2019 | EZ | Easement | CORBIN TRUSTEE, NANCY L | PUGET SOUND ENERGY | | | $3,400.00 | 40559 | 4472717 |
| 12 | 12/18/2003 | 5 | DNU - Marriage License/Name Change | CORBIN, NANCY L | CORBIN TRUSTEE, NANCY L | | | $0.00 | 40052 | 4088427 |
| 13 | 01/01/1990 | WD | Warranty Deed | PHILLIPS, CHARLES B | CORBIN, NANCY L | | | $170,000.00 | 133 | 90000377 |
| 14 | 06/01/1979 | TRUSTEED | Trustee's Deed | NIEDERHAUSER, THOMAS S | PHILLIPS, CHARLES B | | | $70,000.00 | 95293 | 361156 |
| 15 | 01/01/1900 | OTHER | Other - Misc. Documents | Unknown | NIEDERHAUSER, THOMAS S | | | $0.00 | 0 | 0 |
Payout Agreement
| No payout information available.. |