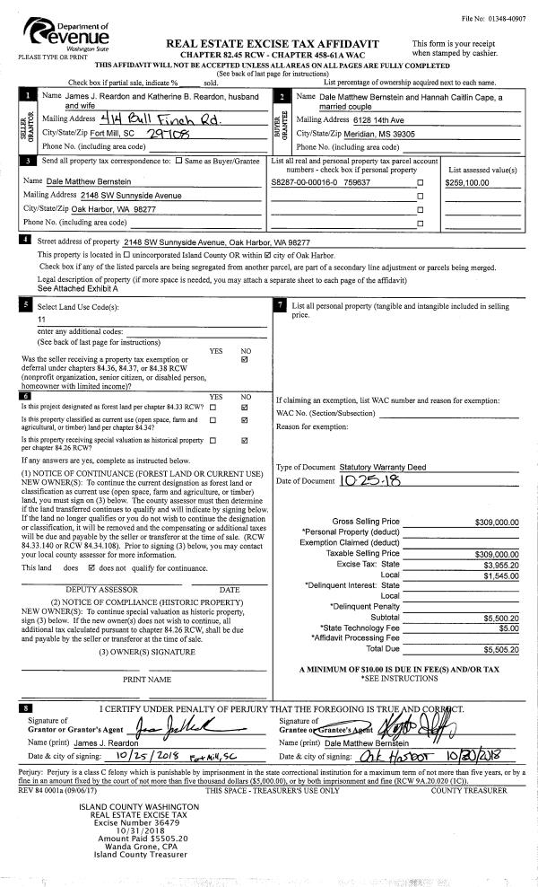
Property
Account |
| Property ID: | 233875 | Abbreviated Legal Description: | COLUMBIA BCH - SL17 IN TR E F & RES 2:BG W/4 CR SEC 30- S ALG WLN 685' E683'TPB N56*E150.02' S71*E15.12' S26*E236'TO NLN CREEK WLY TP S FR TPB N TO TPB TGW EZ |
| Geographic ID: | S6400-00-00E17-0 | Agent Code: | |
| Type: | Real | | |
| Tax Area: | 722 - APPRAISER-S Whid Schl Dist, Special District, improved, greater than 1 acre | Land Use Code | 11 |
| Open Space: | N | DFL | N |
| Historic Property: | N | Remodel Property: | N |
| Multi-Family Redevelopment: | N | | |
| Township: | | Section: | |
| Range: | |
Location |
| Address: | 4854 GEDNEY VIEW LN CLINTON, WA 98236 | Mapsco: | |
| Neighborhood: | Cycle 4 | Map ID: | 1001 |
| Neighborhood CD: | 4 |
Owner |
| Name: | THOMPSON, MAUREEN | Owner ID: | 304152 |
| Mailing Address: | 4854 GEDNEY VIEW LN CLINTON, WA 98236 | % Ownership: | 100.0000000000% |
| | | Exemptions: | |
Taxes and Assessment Details
Values
| (+) Improvement Homesite Value: | + | $0 | |
| (+) Improvement Non-Homesite Value: | + | $432,188 | |
| (+) Land Homesite Value: | + | $0 | |
| (+) Land Non-Homesite Value: | + | $340,000 | |
| (+) Curr Use (HS): | + | $0 | $0 |
| (+) Curr Use (NHS): | + | $0 | $0 |
| | | -------------------------- | |
| (=) Market Value: | = | $772,188 | |
| (–) Productivity Loss: | – | $0 | |
| | | -------------------------- | |
| (=) Subtotal: | = | $772,188 | |
| (+) Senior Appraised Value: | + | $0 | |
| (+) Non-Senior Appraised Value: | + | $772,188 | |
| | | -------------------------- | |
| (=) Total Appraised Value: | = | $772,188 | |
| (–) Senior Exemption Loss: | – | $0 | |
| (–) Exemption Loss: | – | $0 | |
| | | -------------------------- | |
| (=) Taxable Value: | = | $772,188 | |
Taxing Jurisdiction
| Owner: | THOMPSON, MAUREEN | | |
| % Ownership: | 100.0000000000% | | |
| Total Value: | $772,188 | | |
| Tax Area: | 722 - APPRAISER-S Whid Schl Dist, Special District, improved, greater than 1 acre |
| CF | Conservation Futures | 0.0316035091 | $772,188 | $772,188 | $24.40 | | |
| FIRE3 | Fire & Rescue Dist #3 S Whidbey GEN | 1.2004855531 | $772,188 | $772,188 | $927.00 | | |
| HOBOND | Hospital BOND | 0.1910887512 | $772,188 | $772,188 | $147.56 | | |
| HOGEN | Hospital GEN | 0.3902502903 | $772,188 | $772,188 | $301.35 | | |
| CE | County Current Expense | 0.3708482477 | $772,188 | $772,188 | $286.36 | | |
| CR | County Roads | 0.4584763726 | $772,188 | $772,188 | $354.03 | | |
| ISLANDEMS | Hospital GEN (EMS) | 0.5000000000 | $772,188 | $772,188 | $386.09 | | |
| LIB | Library Sno-Isle GEN | 0.3153421757 | $772,188 | $772,188 | $243.50 | | |
| PORTWHID | Port of S Whidbey GEN | 0.1094540357 | $772,188 | $772,188 | $84.52 | | |
| SCH206BOND | School 206 BOND | 0.3161759235 | $772,188 | $772,188 | $244.15 | | |
| SCH206MO | School 206 Enrichment | 0.4547169547 | $772,188 | $772,188 | $351.13 | | |
| ST | State School | 1.3035497053 | $772,188 | $772,188 | $1,006.59 | | |
| ST2 | State School Part 2 | 0.8169543533 | $772,188 | $772,188 | $630.84 | | |
| SWHIDPRBD | P & R S Whidbey BOND | 0.0152817568 | $772,188 | $772,188 | $11.80 | | |
| SWHIDPRBD2 | P & R S Whidbey BOND2 | 0.0138911264 | $772,188 | $772,188 | $10.73 | | |
| SWHIDPRMT | P & R S Whidbey GEN | 0.2053334452 | $772,188 | $772,188 | $158.56 | | |
| | Total Tax Rate: | 6.6934522006 | | | | | |
| | | | | Taxes w/Current Exemptions: | $5,168.61 | | |
| | | | | Taxes w/o Exemptions: | $5,168.61 | | |
Improvement / Building
| Improvement #1: | RESIDENTIAL | State Code: | Y | 3008.0 sqft | Value: | $432,188 |
| Bathrooms: | 3 | Bedrooms: | 3 | | Ceiling: | BEAM PAINTED | Cooling: | HEAT PUMP/CONV/V | | Exterior Wall/Cover: | WOOD SIDING | Floor Covering: | VINYL TILE/CARP 20-80 | | Floor Structure: | WOOD W/SUBFLOOR | Foundation: | CONCRETE | | Interior Finish: | DRYWALL PAINT | Plumbing Fixture Cnt: | 14 | | Roof Slope: | 4" IN 12" | Roof Structure/Cover: | BEAM ASPHALT |
|
| | Type | Description | Class CD | Sub Class CD | Year Built | Area |
| | BAS | BASE/MAIN FLOOR | 3 | 0 | 1973 | 1568.0 |
| | DWN | DOWNSTAIRS LIVING AREA | 3 | 0 | 1973 | 1440.0 |
| | OP2 | OPEN PORCH W/STEPS | 3 | 0 | 1973 | 49.0 |
| | AGR | ATTACHED GARAGE | 3 | 0 | 1973 | 594.0 |
| | OWP | OPEN WOOD PORCH W/STEPS | 3 | 0 | 1973 | 510.0 |
| | OWC | OPEN WOOD PORCH W/STEPS/ROOF/C | 3 | 0 | 1973 | 192.0 |
Sketch
Property Image
Land
| 1 | 17 | AC (01.01-02.00) | 0.0000 | 0.00 | 0.00 | 0.00 | 1.00 | $340,000 | $0 |
Roll Value History
| 2026 | N/A | N/A | N/A | N/A | N/A |
| 2025 | $432,188 | $340,000 | $0 | $772,188 | $772,188 |
| 2024 | $429,795 | $300,000 | $0 | $729,795 | $729,795 |
| 2023 | $435,022 | $300,000 | $0 | $735,022 | $735,022 |
| 2022 | $371,393 | $280,000 | $0 | $651,393 | $651,393 |
| 2021 | $327,094 | $230,000 | $0 | $557,094 | $557,094 |
| 2020 | $312,785 | $180,000 | $0 | $492,785 | $492,785 |
| 2019 | $250,555 | $240,000 | $0 | $490,555 | $490,555 |
| 2018 | $247,633 | $200,000 | $0 | $447,633 | $447,633 |
| 2017 | $249,250 | $200,000 | $0 | $449,250 | $449,250 |
| 2016 | $252,488 | $150,000 | $0 | $402,488 | $402,488 |
| 2015 | $255,724 | $150,000 | $0 | $405,724 | $405,724 |
| 2014 | $229,742 | $200,000 | $0 | $429,742 | $429,742 |
| 2013 | $232,965 | $200,000 | $0 | $432,965 | $432,965 |
| 2012 | $236,188 | $185,000 | $0 | $421,188 | $421,188 |
| 2011 | $239,411 | $200,000 | $0 | $439,411 | $439,411 |
| 2010 | $256,233 | $200,000 | $0 | $456,233 | $456,233 |
| 2009 | $264,301 | $250,000 | $0 | $514,301 | $514,301 |
| 2008 | $228,817 | $225,000 | $0 | $453,817 | $453,817 |
| 2007 | $232,588 | $225,000 | $0 | $457,588 | $457,588 |
Deed and Sales History
| 1 | 04/26/2022 | WD | Warranty Deed | DIETZ, ANDREW M | THOMPSON, MAUREEN | | | $975,000.00 | 53024 | 4544795 |
| 2 | 01/08/2019 | WD | Warranty Deed | BRAATHEN TR, DAVID | DIETZ, ANDREW M | | | $569,000.00 | 37295 | 4457795 |
| 3 | 08/16/2000 | QCD | Quit Claim Deed | BRAATHEN TR, DAVID | BRAATHEN TR, DAVID | | | $0.00 | 35974 | 4452036 |
| 4 | 08/08/2000 | WD | Warranty Deed | BRAATHEN TR, DAVID | BRAATHEN TR, DAVID | | | $0.00 | 35973 | 4452035 |
| 5 | 08/16/2000 | QCD | Quit Claim Deed | BRAATHEN, DAVID | BRAATHEN TR, DAVID | | | $0.00 | 3111 | 20015953 |
| 6 | 08/08/2000 | WD | Warranty Deed | PHILLIPS, CHARLES B | BRAATHEN, DAVID | | | $253,800.00 | 3049 | 20014331 |
| 7 | 08/01/1977 | TRUSTEED | Trustee's Deed | NIEDERHAUSER, THOMAS S | PHILLIPS, CHARLES B | | | $0.00 | 73394 | 0 |
| 8 | 01/01/1900 | OTHER | Other - Misc. Documents | Unknown | NIEDERHAUSER, THOMAS S | | | $0.00 | 0 | 0 |
Payout Agreement
| No payout information available.. |