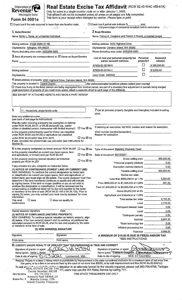
Property
Account |
| Property ID: | 234017 | Abbreviated Legal Description: | COLUMBIA BCH SL-15 TR F: BG SWCR TR F 20'E OF WLN SEC 30 E ON SLN TR F 587.13' N225' TO NLN TR F E240.9' TPB S6*E100' S52*W222.37' N20' W10' N100 NELY TPB EX: BG W/4 CR SEC 30 S675' E683' S10' TPB N52*E222.37' SWLY TP 15'N OF TPB S TPB EX: BG 165'W OF N |
| Geographic ID: | S6400-00-00F15-0 | Agent Code: | |
| Type: | Real | | |
| Tax Area: | 720 - APPRAISER-S Whid Schl Dist, Special District, improved & less than 1 acre | Land Use Code | 11 |
| Open Space: | N | DFL | N |
| Historic Property: | N | Remodel Property: | N |
| Multi-Family Redevelopment: | N | | |
| Township: | | Section: | |
| Range: | |
Location |
| Address: | 4855 GEDNEY VIEW LN CLINTON, WA 98236 | Mapsco: | |
| Neighborhood: | Cycle 4 | Map ID: | 1001 |
| Neighborhood CD: | 4 |
Owner |
| Name: | ST GEORGE, CHRIS A | Owner ID: | 273220 |
| Mailing Address: | WENDELIN E ST GEORGE 4855 GEDNEY VIEW LN CLINTON, WA 98236-9614 | % Ownership: | 100.0000000000% |
| | | Exemptions: | |
Taxes and Assessment Details
Values
| (+) Improvement Homesite Value: | + | $0 | |
| (+) Improvement Non-Homesite Value: | + | $451,820 | |
| (+) Land Homesite Value: | + | $0 | |
| (+) Land Non-Homesite Value: | + | $340,000 | |
| (+) Curr Use (HS): | + | $0 | $0 |
| (+) Curr Use (NHS): | + | $0 | $0 |
| | | -------------------------- | |
| (=) Market Value: | = | $791,820 | |
| (–) Productivity Loss: | – | $0 | |
| | | -------------------------- | |
| (=) Subtotal: | = | $791,820 | |
| (+) Senior Appraised Value: | + | $0 | |
| (+) Non-Senior Appraised Value: | + | $791,820 | |
| | | -------------------------- | |
| (=) Total Appraised Value: | = | $791,820 | |
| (–) Senior Exemption Loss: | – | $0 | |
| (–) Exemption Loss: | – | $0 | |
| | | -------------------------- | |
| (=) Taxable Value: | = | $791,820 | |
Taxing Jurisdiction
| Owner: | ST GEORGE, CHRIS A | | |
| % Ownership: | 100.0000000000% | | |
| Total Value: | $791,820 | | |
| Tax Area: | 720 - APPRAISER-S Whid Schl Dist, Special District, improved & less than 1 acre |
| CF | Conservation Futures | 0.0316035091 | $791,820 | $791,820 | $25.02 | | |
| FIRE3 | Fire & Rescue Dist #3 S Whidbey GEN | 1.2004855531 | $791,820 | $791,820 | $950.57 | | |
| HOBOND | Hospital BOND | 0.1910887512 | $791,820 | $791,820 | $151.31 | | |
| HOGEN | Hospital GEN | 0.3902502903 | $791,820 | $791,820 | $309.01 | | |
| CE | County Current Expense | 0.3708482477 | $791,820 | $791,820 | $293.65 | | |
| CR | County Roads | 0.4584763726 | $791,820 | $791,820 | $363.03 | | |
| ISLANDEMS | Hospital GEN (EMS) | 0.5000000000 | $791,820 | $791,820 | $395.91 | | |
| LIB | Library Sno-Isle GEN | 0.3153421757 | $791,820 | $791,820 | $249.69 | | |
| PORTWHID | Port of S Whidbey GEN | 0.1094540357 | $791,820 | $791,820 | $86.67 | | |
| SCH206BOND | School 206 BOND | 0.3161759235 | $791,820 | $791,820 | $250.35 | | |
| SCH206MO | School 206 Enrichment | 0.4547169547 | $791,820 | $791,820 | $360.05 | | |
| ST | State School | 1.3035497053 | $791,820 | $791,820 | $1,032.18 | | |
| ST2 | State School Part 2 | 0.8169543533 | $791,820 | $791,820 | $646.88 | | |
| SWHIDPRBD | P & R S Whidbey BOND | 0.0152817568 | $791,820 | $791,820 | $12.10 | | |
| SWHIDPRBD2 | P & R S Whidbey BOND2 | 0.0138911264 | $791,820 | $791,820 | $11.00 | | |
| SWHIDPRMT | P & R S Whidbey GEN | 0.2053334452 | $791,820 | $791,820 | $162.59 | | |
| | Total Tax Rate: | 6.6934522006 | | | | | |
| | | | | Taxes w/Current Exemptions: | $5,300.01 | | |
| | | | | Taxes w/o Exemptions: | $5,300.01 | | |
Improvement / Building
| Improvement #1: | RESIDENTIAL | State Code: | Y | 3261.5 sqft | Value: | $451,820 |
| Bathrooms: | 3 | Bedrooms: | 3 | | Ceiling: | TONGUE & GROOVE | Exterior Wall/Cover: | WOOD SIDING | | Floor Covering: | CARPET/VINYL 20-80 | Floor Structure: | WOOD W/SUBFLOOR | | Foundation: | CONCRETE | Heating: | B/B HOT WATER-GAS | | Interior Finish: | DRYWALL PAINT | Plumbing Fixture Cnt: | 14 | | Roof Slope: | 4" IN 12" | Roof Structure/Cover: | BEAM ASPHALT |
|
| | Type | Description | Class CD | Sub Class CD | Year Built | Area |
| | BAS | BASE/MAIN FLOOR | 3 | 0 | 1975 | 1631.2 |
| | DWN | DOWNSTAIRS LIVING AREA | 3 | 0 | 1975 | 1630.3 |
| | OP4 | OPEN PORCH W/CEILING-ROOF | 3 | 0 | 1975 | 48.4 |
| | AGR | ATTACHED GARAGE | 3 | 0 | 1975 | 600.0 |
| | OWP | OPEN WOOD PORCH W/STEPS | 3 | 0 | 1975 | 421.1 |
| | OWC | OPEN WOOD PORCH W/STEPS/ROOF/C | 3 | 0 | 1975 | 264.1 |
Sketch
Property Image
Land
| 1 | 15 | SQ (12001-21780) | 0.0000 | 0.00 | 0.00 | 0.00 | 1.00 | $340,000 | $0 |
Roll Value History
| 2026 | N/A | N/A | N/A | N/A | N/A |
| 2025 | $451,820 | $340,000 | $0 | $791,820 | $791,820 |
| 2024 | $457,380 | $300,000 | $0 | $757,380 | $757,380 |
| 2023 | $462,942 | $300,000 | $0 | $762,942 | $762,942 |
| 2022 | $424,226 | $280,000 | $0 | $704,226 | $704,226 |
| 2021 | $373,274 | $230,000 | $0 | $603,274 | $603,274 |
| 2020 | $354,674 | $180,000 | $0 | $534,674 | $534,674 |
| 2019 | $288,621 | $240,000 | $0 | $528,621 | $528,621 |
| 2018 | $289,509 | $150,000 | $0 | $439,509 | $439,509 |
| 2017 | $291,238 | $150,000 | $0 | $441,238 | $441,238 |
| 2016 | $294,790 | $150,000 | $0 | $444,790 | $444,790 |
| 2015 | $298,341 | $125,000 | $0 | $423,341 | $423,341 |
| 2014 | $272,317 | $100,000 | $0 | $372,317 | $372,317 |
| 2013 | $275,910 | $100,000 | $0 | $375,910 | $375,910 |
| 2012 | $279,502 | $106,250 | $0 | $385,752 | $385,752 |
| 2011 | $283,095 | $125,000 | $0 | $408,095 | $408,095 |
| 2010 | $292,099 | $125,000 | $0 | $417,099 | $417,099 |
| 2009 | $304,778 | $150,000 | $0 | $454,778 | $454,778 |
| 2008 | $263,604 | $150,000 | $0 | $413,604 | $413,604 |
| 2007 | $267,172 | $150,000 | $0 | $417,172 | $417,172 |
Deed and Sales History
| 1 | 12/11/2015 | WD | Warranty Deed | UHL, MONICA M | ST GEORGE, CHRIS A | | | $439,000.00 | 22578 | 4391407 |
| 2 | 09/27/2010 | ESTSEPPROP | Establish Separate Property | UHL, MONICA M | UHL, MONICA M | | | $0.00 | 2407 | 4281750 |
| 3 | 08/06/2002 | WD | Warranty Deed | ILES, CHARLES W | UHL, MONICA M | | | $310,000.00 | 23193 | 4028497 |
| 4 | 07/30/2001 | WD | Warranty Deed | Unknown | FEARN, SHIRLEY | | | $244,500.00 | 12868 | 20038630 |
| 5 | 05/01/1994 | WD | Warranty Deed | HATCH, WILLIAM A | ILES, CHARLES W | | | $220,000.00 | 42145 | 94012386 |
| 6 | 10/01/1993 | OTHER | Other - Misc. Documents | HATCH, WILLIAM A | HATCH, WILLIAM A | | | $0.00 | 65633 | 93021186 |
| 7 | 10/01/1988 | EZ | Easement | HATCH, WILLIAM A | HATCH, WILLIAM A | | | $0.00 | 83932 | 88014747 |
| 8 | 02/01/1987 | QCD | Quit Claim Deed | HATCH, WILLIAM A | HATCH, WILLIAM A | | | $0.00 | 70325 | 87002137 |
| 9 | 03/01/1986 | OTHER | Other - Misc. Documents | HATCH, WILLIAM A | HATCH, WILLIAM A | | | $0.00 | 61526 | 85006941 |
| 10 | 10/01/1977 | CD | DNU - Correction Deed | HATCH, WILLIAM A | HATCH, WILLIAM A | | | $0.00 | 74453 | 0 |
| 11 | 01/01/1900 | OTHER | Other - Misc. Documents | FEARN, SHIRLEY | HATCH, WILLIAM A | | | $0.00 | 0 | 0 |
Payout Agreement
| No payout information available.. |