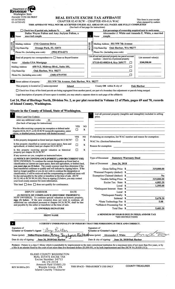
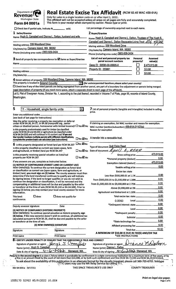
Property
Account |
| Property ID: | 234179 | Abbreviated Legal Description: | COLUMBIA BCH LOT 4 INCL ADJ TIDES |
| Geographic ID: | S6400-00-00004-0 | Agent Code: | |
| Type: | Real | | |
| Tax Area: | 720 - APPRAISER-S Whid Schl Dist, Special District, improved & less than 1 acre | Land Use Code | 11 |
| Open Space: | N | DFL | N |
| Historic Property: | N | Remodel Property: | N |
| Multi-Family Redevelopment: | N | | |
| Township: | | Section: | |
| Range: | |
Location |
| Address: | 6751 COLUMBIA BEACH DR CLINTON, WA 98236 | Mapsco: | |
| Neighborhood: | Cycle 4 | Map ID: | 1001 |
| Neighborhood CD: | 4 |
Owner |
| Name: | ROBINSON, MYRON E | Owner ID: | 302793 |
| Mailing Address: | KATHERINE E ROBINSON 12537 15TH AVE NE STE 204 SEATTLE, WA 98125 | % Ownership: | 100.0000000000% |
| | | Exemptions: | |
Taxes and Assessment Details
Values
| (+) Improvement Homesite Value: | + | $0 | |
| (+) Improvement Non-Homesite Value: | + | $324,540 | |
| (+) Land Homesite Value: | + | $0 | |
| (+) Land Non-Homesite Value: | + | $850,500 | |
| (+) Curr Use (HS): | + | $0 | $0 |
| (+) Curr Use (NHS): | + | $0 | $0 |
| | | -------------------------- | |
| (=) Market Value: | = | $1,175,040 | |
| (–) Productivity Loss: | – | $0 | |
| | | -------------------------- | |
| (=) Subtotal: | = | $1,175,040 | |
| (+) Senior Appraised Value: | + | $0 | |
| (+) Non-Senior Appraised Value: | + | $1,175,040 | |
| | | -------------------------- | |
| (=) Total Appraised Value: | = | $1,175,040 | |
| (–) Senior Exemption Loss: | – | $0 | |
| (–) Exemption Loss: | – | $0 | |
| | | -------------------------- | |
| (=) Taxable Value: | = | $1,175,040 | |
Taxing Jurisdiction
| Owner: | ROBINSON, MYRON E | | |
| % Ownership: | 100.0000000000% | | |
| Total Value: | $1,175,040 | | |
| Tax Area: | 720 - APPRAISER-S Whid Schl Dist, Special District, improved & less than 1 acre |
| CF | Conservation Futures | 0.0316035091 | $1,175,040 | $1,175,040 | $37.14 | | |
| FIRE3 | Fire & Rescue Dist #3 S Whidbey GEN | 1.2004855531 | $1,175,040 | $1,175,040 | $1,410.62 | | |
| HOBOND | Hospital BOND | 0.1910887512 | $1,175,040 | $1,175,040 | $224.54 | | |
| HOGEN | Hospital GEN | 0.3902502903 | $1,175,040 | $1,175,040 | $458.56 | | |
| CE | County Current Expense | 0.3708482477 | $1,175,040 | $1,175,040 | $435.76 | | |
| CR | County Roads | 0.4584763726 | $1,175,040 | $1,175,040 | $538.73 | | |
| ISLANDEMS | Hospital GEN (EMS) | 0.5000000000 | $1,175,040 | $1,175,040 | $587.52 | | |
| LIB | Library Sno-Isle GEN | 0.3153421757 | $1,175,040 | $1,175,040 | $370.54 | | |
| PORTWHID | Port of S Whidbey GEN | 0.1094540357 | $1,175,040 | $1,175,040 | $128.61 | | |
| SCH206BOND | School 206 BOND | 0.3161759235 | $1,175,040 | $1,175,040 | $371.52 | | |
| SCH206MO | School 206 Enrichment | 0.4547169547 | $1,175,040 | $1,175,040 | $534.31 | | |
| ST | State School | 1.3035497053 | $1,175,040 | $1,175,040 | $1,531.72 | | |
| ST2 | State School Part 2 | 0.8169543533 | $1,175,040 | $1,175,040 | $959.95 | | |
| SWHIDPRBD | P & R S Whidbey BOND | 0.0152817568 | $1,175,040 | $1,175,040 | $17.96 | | |
| SWHIDPRBD2 | P & R S Whidbey BOND2 | 0.0138911264 | $1,175,040 | $1,175,040 | $16.32 | | |
| SWHIDPRMT | P & R S Whidbey GEN | 0.2053334452 | $1,175,040 | $1,175,040 | $241.28 | | |
| | Total Tax Rate: | 6.6934522006 | | | | | |
| | | | | Taxes w/Current Exemptions: | $7,865.08 | | |
| | | | | Taxes w/o Exemptions: | $7,865.08 | | |
Improvement / Building
| Improvement #1: | RESIDENTIAL | State Code: | Y | 2816.0 sqft | Value: | $324,540 |
| Bathrooms: | 2 | Bedrooms: | 2 | | Ceiling: | DRYWALL PAINTED | Cooling: | HEAT PUMP/CONV/V | | Exterior Wall/Cover: | PLY/HARDBOARD T-111 | Floor Covering: | CARPET/VINYL 80-20 | | Floor Structure: | WOOD W/SUBFLOOR | Foundation: | CONCRETE | | Interior Finish: | DRYWALL PAINT | Plumbing Fixture Cnt: | 11 | | Roof Slope: | 4" IN 12" | Roof Structure/Cover: | CJ ASPHALT |
|
| | Type | Description | Class CD | Sub Class CD | Year Built | Area |
| | BAS | BASE/MAIN FLOOR | 3 | 0 | 1981 | 1408.0 |
| | DWN | DOWNSTAIRS LIVING AREA | 3 | 0 | 1981 | 1408.0 |
| | DGR | DETACHED GARAGE | 3 | 0 | 1981 | 576.0 |
| | OWP | OPEN WOOD PORCH W/STEPS | 3 | 0 | 1981 | 448.0 |
Sketch
Property Image
Land
| 1 | LB | LOW BANK | 0.0000 | 0.00 | 50.00 | 0.00 | 1.00 | $850,000 | $0 |
| 2 | 55 | TIDES | 0.0000 | 0.00 | 50.00 | 0.00 | 1.00 | $500 | $0 |
Roll Value History
| 2026 | N/A | N/A | N/A | N/A | N/A |
| 2025 | $324,540 | $850,500 | $0 | $1,175,040 | $1,175,040 |
| 2024 | $328,742 | $800,500 | $0 | $1,129,242 | $1,129,242 |
| 2023 | $332,944 | $800,500 | $0 | $1,133,444 | $1,133,444 |
| 2022 | $305,289 | $750,500 | $0 | $1,055,789 | $1,055,789 |
| 2021 | $268,774 | $675,500 | $0 | $944,274 | $944,274 |
| 2020 | $264,412 | $600,500 | $0 | $864,912 | $864,912 |
| 2019 | $210,126 | $550,500 | $0 | $760,626 | $760,626 |
| 2018 | $194,774 | $450,500 | $0 | $645,274 | $645,274 |
| 2017 | $195,999 | $400,500 | $0 | $596,499 | $596,499 |
| 2016 | $198,448 | $400,500 | $0 | $598,948 | $598,948 |
| 2015 | $200,899 | $400,500 | $0 | $601,399 | $601,399 |
| 2014 | $210,168 | $400,500 | $0 | $610,668 | $610,668 |
| 2013 | $212,786 | $400,500 | $0 | $613,286 | $613,286 |
| 2012 | $215,403 | $440,110 | $0 | $655,513 | $655,513 |
| 2011 | $218,022 | $517,688 | $0 | $735,710 | $735,710 |
| 2010 | $225,807 | $517,688 | $0 | $743,495 | $743,495 |
| 2009 | $235,350 | $644,997 | $0 | $880,347 | $880,347 |
| 2008 | $191,936 | $644,997 | $0 | $836,933 | $836,933 |
| 2007 | $192,029 | $644,647 | $0 | $836,676 | $836,676 |
Deed and Sales History
| 1 | 12/30/2021 | QCD | Quit Claim Deed | COLUMBIA BEACHHOUSE LLC | ROBINSON, MYRON E | | | $0.00 | 51733 | 4538344 |
| 2 | 09/04/2018 | WD | Warranty Deed | NORMILE, PATRICK J | COLUMBIA BEACHHOUSE LLC | | | $880,000.00 | 35792 | 4451269 |
|   | |
| 3 | 03/01/1990 | WD | Warranty Deed | AUVIL, DOUGLAS W | NORMILE, PATRICK J | | | $296,100.00 | 1355 | 90004365 |
| 4 | 01/01/1900 | OTHER | Other - Misc. Documents | Unknown | AUVIL, DOUGLAS W | | | $0.00 | 0 | 0 |
Payout Agreement
| No payout information available.. |