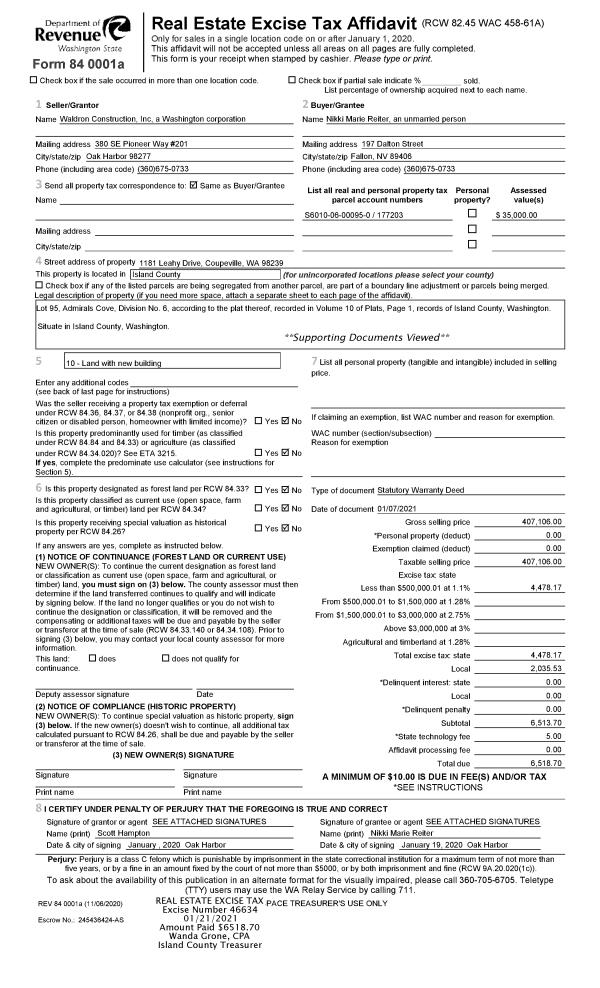
Property
Account |
| Property ID: | 234188 | Abbreviated Legal Description: | COLUMBIA BCH LOT 5 INCL ADJ TIDES |
| Geographic ID: | S6400-00-00005-0 | Agent Code: | |
| Type: | Real | | |
| Tax Area: | 720 - APPRAISER-S Whid Schl Dist, Special District, improved & less than 1 acre | Land Use Code | 11 |
| Open Space: | N | DFL | N |
| Historic Property: | N | Remodel Property: | N |
| Multi-Family Redevelopment: | N | | |
| Township: | | Section: | |
| Range: | |
Location |
| Address: | 6745 COLUMBIA BEACH DR CLINTON, WA 98236 | Mapsco: | |
| Neighborhood: | Cycle 4 | Map ID: | 1001 |
| Neighborhood CD: | 4 |
Owner |
| Name: | VARNER, LINDA A | Owner ID: | 269635 |
| Mailing Address: | KARIN JEAN MORRISON KARLA MARIE BUNNELL 1348 SE 15TH ST NORTH BEND, WA 98045 | % Ownership: | 100.0000000000% |
| | | Exemptions: | |
Taxes and Assessment Details
Values
| (+) Improvement Homesite Value: | + | $0 | |
| (+) Improvement Non-Homesite Value: | + | $156,785 | |
| (+) Land Homesite Value: | + | $0 | |
| (+) Land Non-Homesite Value: | + | $850,500 | |
| (+) Curr Use (HS): | + | $0 | $0 |
| (+) Curr Use (NHS): | + | $0 | $0 |
| | | -------------------------- | |
| (=) Market Value: | = | $1,007,285 | |
| (–) Productivity Loss: | – | $0 | |
| | | -------------------------- | |
| (=) Subtotal: | = | $1,007,285 | |
| (+) Senior Appraised Value: | + | $0 | |
| (+) Non-Senior Appraised Value: | + | $1,007,285 | |
| | | -------------------------- | |
| (=) Total Appraised Value: | = | $1,007,285 | |
| (–) Senior Exemption Loss: | – | $0 | |
| (–) Exemption Loss: | – | $0 | |
| | | -------------------------- | |
| (=) Taxable Value: | = | $1,007,285 | |
Taxing Jurisdiction
| Owner: | VARNER, LINDA A | | |
| % Ownership: | 100.0000000000% | | |
| Total Value: | $1,007,285 | | |
| Tax Area: | 720 - APPRAISER-S Whid Schl Dist, Special District, improved & less than 1 acre |
| CF | Conservation Futures | 0.0316035091 | $1,007,285 | $1,007,285 | $31.83 | | |
| FIRE3 | Fire & Rescue Dist #3 S Whidbey GEN | 1.2004855531 | $1,007,285 | $1,007,285 | $1,209.23 | | |
| HOBOND | Hospital BOND | 0.1910887512 | $1,007,285 | $1,007,285 | $192.48 | | |
| HOGEN | Hospital GEN | 0.3902502903 | $1,007,285 | $1,007,285 | $393.09 | | |
| CE | County Current Expense | 0.3708482477 | $1,007,285 | $1,007,285 | $373.55 | | |
| CR | County Roads | 0.4584763726 | $1,007,285 | $1,007,285 | $461.82 | | |
| ISLANDEMS | Hospital GEN (EMS) | 0.5000000000 | $1,007,285 | $1,007,285 | $503.64 | | |
| LIB | Library Sno-Isle GEN | 0.3153421757 | $1,007,285 | $1,007,285 | $317.64 | | |
| PORTWHID | Port of S Whidbey GEN | 0.1094540357 | $1,007,285 | $1,007,285 | $110.25 | | |
| SCH206BOND | School 206 BOND | 0.3161759235 | $1,007,285 | $1,007,285 | $318.48 | | |
| SCH206MO | School 206 Enrichment | 0.4547169547 | $1,007,285 | $1,007,285 | $458.03 | | |
| ST | State School | 1.3035497053 | $1,007,285 | $1,007,285 | $1,313.05 | | |
| ST2 | State School Part 2 | 0.8169543533 | $1,007,285 | $1,007,285 | $822.91 | | |
| SWHIDPRBD | P & R S Whidbey BOND | 0.0152817568 | $1,007,285 | $1,007,285 | $15.39 | | |
| SWHIDPRBD2 | P & R S Whidbey BOND2 | 0.0138911264 | $1,007,285 | $1,007,285 | $13.99 | | |
| SWHIDPRMT | P & R S Whidbey GEN | 0.2053334452 | $1,007,285 | $1,007,285 | $206.83 | | |
| | Total Tax Rate: | 6.6934522006 | | | | | |
| | | | | Taxes w/Current Exemptions: | $6,742.21 | | |
| | | | | Taxes w/o Exemptions: | $6,742.21 | | |
Improvement / Building
| Improvement #1: | RESIDENTIAL | State Code: | Y | 912.0 sqft | Value: | $156,785 |
| Bathrooms: | 1 | Bedrooms: | 2 | | Ceiling: | DRYWALL PAINTED | Exterior Wall/Cover: | WOOD SIDING | | Floor Covering: | CARPET/VINYL 80-20 | Floor Structure: | WOOD W/SUBFLOOR | | Foundation: | CONCRETE BLOCKS | Heating: | BASEBOARD ELECTRIC | | Interior Finish: | DRYWALL PAINT | Plumbing Fixture Cnt: | 6 | | Roof Slope: | 5" IN 12" | Roof Structure/Cover: | CJ ASPHALT |
|
| | Type | Description | Class CD | Sub Class CD | Year Built | Area |
| | BAS | BASE/MAIN FLOOR | 3 | 0 | 1928 | 912.0 |
| | OWR | OPEN WOOD PORCH W/STEPS/ROOF | 3 | 0 | 1928 | 30.0 |
| | OWR | OPEN WOOD PORCH W/STEPS/ROOF | 3 | 0 | 1928 | 28.0 |
| | DGR | DETACHED GARAGE | 3 | 0 | 1928 | 304.0 |
Sketch
Property Image
Land
| 1 | LB | LOW BANK | 0.0000 | 0.00 | 50.00 | 0.00 | 1.00 | $850,000 | $0 |
| 2 | 55 | TIDES | 0.0000 | 0.00 | 50.00 | 0.00 | 1.00 | $500 | $0 |
Roll Value History
| 2026 | N/A | N/A | N/A | N/A | N/A |
| 2025 | $156,785 | $850,500 | $0 | $1,007,285 | $1,007,285 |
| 2024 | $162,275 | $800,500 | $0 | $962,775 | $962,775 |
| 2023 | $164,462 | $800,500 | $0 | $964,962 | $964,962 |
| 2022 | $150,896 | $750,500 | $0 | $901,396 | $901,396 |
| 2021 | $132,933 | $675,500 | $0 | $808,433 | $808,433 |
| 2020 | $108,023 | $600,500 | $0 | $708,523 | $708,523 |
| 2019 | $77,236 | $550,500 | $0 | $627,736 | $627,736 |
| 2018 | $77,528 | $450,500 | $0 | $528,028 | $528,028 |
| 2017 | $78,110 | $400,500 | $0 | $478,610 | $478,610 |
| 2016 | $79,277 | $400,500 | $0 | $479,777 | $479,777 |
| 2015 | $80,442 | $400,500 | $0 | $480,942 | $480,942 |
| 2014 | $57,682 | $400,500 | $0 | $458,182 | $458,182 |
| 2013 | $58,746 | $400,500 | $0 | $459,246 | $459,246 |
| 2012 | $59,810 | $440,110 | $0 | $499,920 | $499,920 |
| 2011 | $60,875 | $517,688 | $0 | $578,563 | $578,563 |
| 2010 | $68,655 | $517,688 | $0 | $586,343 | $586,343 |
| 2009 | $70,670 | $644,997 | $0 | $715,667 | $715,667 |
| 2008 | $64,402 | $644,997 | $0 | $709,399 | $709,399 |
| 2007 | $65,515 | $644,647 | $0 | $710,162 | $710,162 |
Deed and Sales History
| 1 | 11/18/2014 | QCD | Quit Claim Deed | VARNER, LINDA A | VARNER, LINDA A | | | $0.00 | 18945 | 4375579 |
| 2 | 12/29/2014 | WD | Warranty Deed | VARNER, LINDA A | VARNER, LINDA A | | | $140,000.00 | 18075 | 4371001 |
| 3 | 06/27/2013 | QCD | Quit Claim Deed | HOSSFELD ET AL, W E JR & H R | ARMSTRONG CO TRUSTEE, ARTHUR | | | $0.00 | 11805 | 4342783 |
| 4 | 06/26/2013 | QCD | Quit Claim Deed | ARMSTRONG CO TRUSTEE, ARTHUR | HOSSFELD, HERBERT R | | | $0.00 | 11959 | 4343709 |
| 5 | 06/10/2013 | QCD | Quit Claim Deed | HOSSFELD, HERBERT R | VARNER, LINDA A | | | $0.00 | 11583 | 4341603 |
| 6 | 09/27/2007 | QCD | Quit Claim Deed | HOSSFELD, W E JR & H R | HOSSFELD ET AL, W E JR & H R | | | $0.00 | 73346 | 4213470 |
| 7 | 05/19/2005 | QCD | Quit Claim Deed | HOSSFELD, W E | HOSSFELD, W E JR & H R | | | $0.00 | 52365 | 4135498 |
| 8 | 06/01/1995 | PRD | Personal Representatives Deed | HOSSFELD, W E | HOSSFELD, W E | | | $0.00 | 52065 | 95009631 |
| 9 | 02/01/1976 | CD | DNU - Correction Deed | HOSSFELD, WALTER E | HOSSFELD, W E | | | $0.00 | 61159 | 296214 |
| 10 | 01/01/1900 | OTHER | Other - Misc. Documents | Unknown | HOSSFELD, WALTER E | | | $0.00 | 0 | 0 |
Payout Agreement
| No payout information available.. |