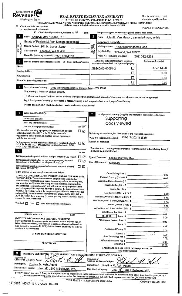
Property
Account |
| Property ID: | 234259 | Abbreviated Legal Description: | COLUMBIA BCH LOT 11 INCL ADJ TIDES |
| Geographic ID: | S6400-00-00011-0 | Agent Code: | |
| Type: | Real | | |
| Tax Area: | 720 - APPRAISER-S Whid Schl Dist, Special District, improved & less than 1 acre | Land Use Code | 11 |
| Open Space: | N | DFL | N |
| Historic Property: | N | Remodel Property: | N |
| Multi-Family Redevelopment: | N | | |
| Township: | | Section: | |
| Range: | |
Location |
| Address: | 6727 COLUMBIA BEACH DR CLINTON, WA 98236 | Mapsco: | |
| Neighborhood: | Cycle 4 | Map ID: | 1001 |
| Neighborhood CD: | 4 |
Owner |
| Name: | BUCKINGHAM, KAREN A | Owner ID: | 295744 |
| Mailing Address: | BOYD F BUCKINGHAM 6727 COLUMBIA BEACH DR CLINTON, WA 98236 | % Ownership: | 100.0000000000% |
| | | Exemptions: | |
Taxes and Assessment Details
Values
| (+) Improvement Homesite Value: | + | $0 | |
| (+) Improvement Non-Homesite Value: | + | $294,527 | |
| (+) Land Homesite Value: | + | $0 | |
| (+) Land Non-Homesite Value: | + | $850,500 | |
| (+) Curr Use (HS): | + | $0 | $0 |
| (+) Curr Use (NHS): | + | $0 | $0 |
| | | -------------------------- | |
| (=) Market Value: | = | $1,145,027 | |
| (–) Productivity Loss: | – | $0 | |
| | | -------------------------- | |
| (=) Subtotal: | = | $1,145,027 | |
| (+) Senior Appraised Value: | + | $0 | |
| (+) Non-Senior Appraised Value: | + | $1,145,027 | |
| | | -------------------------- | |
| (=) Total Appraised Value: | = | $1,145,027 | |
| (–) Senior Exemption Loss: | – | $0 | |
| (–) Exemption Loss: | – | $0 | |
| | | -------------------------- | |
| (=) Taxable Value: | = | $1,145,027 | |
Taxing Jurisdiction
| Owner: | BUCKINGHAM, KAREN A | | |
| % Ownership: | 100.0000000000% | | |
| Total Value: | $1,145,027 | | |
| Tax Area: | 720 - APPRAISER-S Whid Schl Dist, Special District, improved & less than 1 acre |
| CF | Conservation Futures | 0.0316035091 | $1,145,027 | $1,145,027 | $36.19 | | |
| FIRE3 | Fire & Rescue Dist #3 S Whidbey GEN | 1.2004855531 | $1,145,027 | $1,145,027 | $1,374.59 | | |
| HOBOND | Hospital BOND | 0.1910887512 | $1,145,027 | $1,145,027 | $218.80 | | |
| HOGEN | Hospital GEN | 0.3902502903 | $1,145,027 | $1,145,027 | $446.85 | | |
| CE | County Current Expense | 0.3708482477 | $1,145,027 | $1,145,027 | $424.63 | | |
| CR | County Roads | 0.4584763726 | $1,145,027 | $1,145,027 | $524.97 | | |
| ISLANDEMS | Hospital GEN (EMS) | 0.5000000000 | $1,145,027 | $1,145,027 | $572.51 | | |
| LIB | Library Sno-Isle GEN | 0.3153421757 | $1,145,027 | $1,145,027 | $361.08 | | |
| PORTWHID | Port of S Whidbey GEN | 0.1094540357 | $1,145,027 | $1,145,027 | $125.33 | | |
| SCH206BOND | School 206 BOND | 0.3161759235 | $1,145,027 | $1,145,027 | $362.03 | | |
| SCH206MO | School 206 Enrichment | 0.4547169547 | $1,145,027 | $1,145,027 | $520.66 | | |
| ST | State School | 1.3035497053 | $1,145,027 | $1,145,027 | $1,492.60 | | |
| ST2 | State School Part 2 | 0.8169543533 | $1,145,027 | $1,145,027 | $935.43 | | |
| SWHIDPRBD | P & R S Whidbey BOND | 0.0152817568 | $1,145,027 | $1,145,027 | $17.50 | | |
| SWHIDPRBD2 | P & R S Whidbey BOND2 | 0.0138911264 | $1,145,027 | $1,145,027 | $15.91 | | |
| SWHIDPRMT | P & R S Whidbey GEN | 0.2053334452 | $1,145,027 | $1,145,027 | $235.11 | | |
| | Total Tax Rate: | 6.6934522006 | | | | | |
| | | | | Taxes w/Current Exemptions: | $7,664.19 | | |
| | | | | Taxes w/o Exemptions: | $7,664.19 | | |
Improvement / Building
| Improvement #1: | RESIDENTIAL | State Code: | Y | 1211.0 sqft | Value: | $294,527 |
| Bathrooms: | 2 | Bedrooms: | 2 | | Ceiling: | DRYWALL PAINTED | Exterior Wall/Cover: | WOOD SIDING | | Floor Covering: | HARDWOOD/CARP 20-80 | Floor Structure: | WOOD W/SUBFLOOR | | Foundation: | CONCRETE | Heating: | FHA GAS | | Interior Finish: | DRYWALL PAINT | Plumbing Fixture Cnt: | 9 | | Roof Slope: | 4" IN 12" | Roof Structure/Cover: | CJ ALUMINIUM HEAVY |
|
| | Type | Description | Class CD | Sub Class CD | Year Built | Area |
| | BAS | BASE/MAIN FLOOR | 3 | 0 | 1967 | 1211.0 |
| | OP4 | OPEN PORCH W/CEILING-ROOF | 3 | 0 | 1967 | 96.0 |
| | AGR | ATTACHED GARAGE | 3 | 0 | 1967 | 540.0 |
| | OWP | OPEN WOOD PORCH W/STEPS | 3 | 0 | 1967 | 468.0 |
Sketch
Property Image
Land
| 1 | LB | LOW BANK | 0.0000 | 0.00 | 50.00 | 0.00 | 1.00 | $850,000 | $0 |
| 2 | 55 | TIDES | 0.0000 | 0.00 | 50.00 | 0.00 | 1.00 | $500 | $0 |
Roll Value History
| 2026 | N/A | N/A | N/A | N/A | N/A |
| 2025 | $294,527 | $850,500 | $0 | $1,145,027 | $1,145,027 |
| 2024 | $298,023 | $800,500 | $0 | $1,098,523 | $1,098,523 |
| 2023 | $301,519 | $800,500 | $0 | $1,102,019 | $1,102,019 |
| 2022 | $276,194 | $750,500 | $0 | $1,026,694 | $1,026,694 |
| 2021 | $242,925 | $675,500 | $0 | $918,425 | $918,425 |
| 2020 | $217,747 | $600,500 | $0 | $818,247 | $818,247 |
| 2019 | $155,330 | $550,500 | $0 | $705,830 | $705,830 |
| 2018 | $155,797 | $450,500 | $0 | $606,297 | $606,297 |
| 2017 | $156,731 | $400,500 | $0 | $557,231 | $557,231 |
| 2016 | $158,597 | $400,500 | $0 | $559,097 | $559,097 |
| 2015 | $160,462 | $400,500 | $0 | $560,962 | $560,962 |
| 2014 | $178,631 | $400,500 | $0 | $579,131 | $579,131 |
| 2013 | $180,641 | $400,500 | $0 | $581,141 | $581,141 |
| 2012 | $182,653 | $440,110 | $0 | $622,763 | $622,763 |
| 2011 | $184,663 | $517,688 | $0 | $702,351 | $702,351 |
| 2010 | $190,460 | $517,688 | $0 | $708,148 | $708,148 |
| 2009 | $198,632 | $644,997 | $0 | $843,629 | $843,629 |
| 2008 | $190,338 | $644,997 | $0 | $835,335 | $835,335 |
| 2007 | $193,126 | $644,647 | $0 | $837,773 | $837,773 |
Deed and Sales History
| 1 | 08/10/2020 | WD | Warranty Deed | LAWRENCE, VERNE E | BUCKINGHAM, KAREN A | | | $925,000.00 | 44360 | 4494472 |
| 2 | 09/13/2002 | WD | Warranty Deed | POLK, GARY A | LAWRENCE, VERNE E | | | $520,000.00 | 23703 | 4031555 |
| 3 | 08/31/2001 | WD | Warranty Deed | SCHELL, JACQUELINE | POLK, GARY A | | | $450,000.00 | 13441 | 20042252 |
| 4 | 06/01/1996 | WD | Warranty Deed | ARNOLD, JOEL M | SCHELL, JACQUELINE | | | $371,000.00 | 62006 | 96009964 |
| 5 | 08/01/1995 | WD | Warranty Deed | MATHEWS, JOHN T | ARNOLD, JOEL M | | | $308,000.00 | 52976 | 95013845 |
| 6 | 01/01/1900 | OTHER | Other - Misc. Documents | Unknown | MATHEWS, JOHN T | | | $0.00 | 0 | 0 |
Payout Agreement
| No payout information available.. |