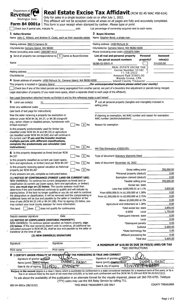
Property
Account |
| Property ID: | 234464 | Abbreviated Legal Description: | COLUMBIA BCH LOT 33 INCL ADJ TIDES |
| Geographic ID: | S6400-00-00033-0 | Agent Code: | |
| Type: | Real | | |
| Tax Area: | 720 - APPRAISER-S Whid Schl Dist, Special District, improved & less than 1 acre | Land Use Code | 11 |
| Open Space: | N | DFL | N |
| Historic Property: | N | Remodel Property: | N |
| Multi-Family Redevelopment: | N | | |
| Township: | | Section: | |
| Range: | |
Location |
| Address: | 6635 COLUMBIA BEACH DR CLINTON, WA 98236 | Mapsco: | |
| Neighborhood: | Cycle 4 | Map ID: | 1001 |
| Neighborhood CD: | 4 |
Owner |
| Name: | CRUMB, PATRICK W | Owner ID: | 299531 |
| Mailing Address: | KAREN CRUMB 8016 FOREST DR NE SEATTLE, WA 98115 | % Ownership: | 100.0000000000% |
| | | Exemptions: | |
Taxes and Assessment Details
Values
| (+) Improvement Homesite Value: | + | $0 | |
| (+) Improvement Non-Homesite Value: | + | $1,045,689 | |
| (+) Land Homesite Value: | + | $0 | |
| (+) Land Non-Homesite Value: | + | $850,500 | |
| (+) Curr Use (HS): | + | $0 | $0 |
| (+) Curr Use (NHS): | + | $0 | $0 |
| | | -------------------------- | |
| (=) Market Value: | = | $1,896,189 | |
| (–) Productivity Loss: | – | $0 | |
| | | -------------------------- | |
| (=) Subtotal: | = | $1,896,189 | |
| (+) Senior Appraised Value: | + | $0 | |
| (+) Non-Senior Appraised Value: | + | $1,896,189 | |
| | | -------------------------- | |
| (=) Total Appraised Value: | = | $1,896,189 | |
| (–) Senior Exemption Loss: | – | $0 | |
| (–) Exemption Loss: | – | $0 | |
| | | -------------------------- | |
| (=) Taxable Value: | = | $1,896,189 | |
Taxing Jurisdiction
| Owner: | CRUMB, PATRICK W | | |
| % Ownership: | 100.0000000000% | | |
| Total Value: | $1,896,189 | | |
| Tax Area: | 720 - APPRAISER-S Whid Schl Dist, Special District, improved & less than 1 acre |
| CF | Conservation Futures | 0.0316035091 | $1,896,189 | $1,896,189 | $59.93 | | |
| FIRE3 | Fire & Rescue Dist #3 S Whidbey GEN | 1.2004855531 | $1,896,189 | $1,896,189 | $2,276.35 | | |
| HOBOND | Hospital BOND | 0.1910887512 | $1,896,189 | $1,896,189 | $362.34 | | |
| HOGEN | Hospital GEN | 0.3902502903 | $1,896,189 | $1,896,189 | $739.99 | | |
| CE | County Current Expense | 0.3708482477 | $1,896,189 | $1,896,189 | $703.20 | | |
| CR | County Roads | 0.4584763726 | $1,896,189 | $1,896,189 | $869.36 | | |
| ISLANDEMS | Hospital GEN (EMS) | 0.5000000000 | $1,896,189 | $1,896,189 | $948.09 | | |
| LIB | Library Sno-Isle GEN | 0.3153421757 | $1,896,189 | $1,896,189 | $597.95 | | |
| PORTWHID | Port of S Whidbey GEN | 0.1094540357 | $1,896,189 | $1,896,189 | $207.55 | | |
| SCH206BOND | School 206 BOND | 0.3161759235 | $1,896,189 | $1,896,189 | $599.53 | | |
| SCH206MO | School 206 Enrichment | 0.4547169547 | $1,896,189 | $1,896,189 | $862.23 | | |
| ST | State School | 1.3035497053 | $1,896,189 | $1,896,189 | $2,471.78 | | |
| ST2 | State School Part 2 | 0.8169543533 | $1,896,189 | $1,896,189 | $1,549.10 | | |
| SWHIDPRBD | P & R S Whidbey BOND | 0.0152817568 | $1,896,189 | $1,896,189 | $28.98 | | |
| SWHIDPRBD2 | P & R S Whidbey BOND2 | 0.0138911264 | $1,896,189 | $1,896,189 | $26.34 | | |
| SWHIDPRMT | P & R S Whidbey GEN | 0.2053334452 | $1,896,189 | $1,896,189 | $389.35 | | |
| | Total Tax Rate: | 6.6934522006 | | | | | |
| | | | | Taxes w/Current Exemptions: | $12,692.07 | | |
| | | | | Taxes w/o Exemptions: | $12,692.07 | | |
Improvement / Building
| Improvement #1: | RESIDENTIAL | State Code: | Y | 3434.0 sqft | Value: | $1,045,689 |
| Bathrooms: | 3 | Bedrooms: | 3 | | Ceiling: | DRYWALL PAINTED | Cooling: | HEAT PUMP/CONV/V | | Exterior Wall/Cover: | SHINGLE | Floor Covering: | HARDWOOD/CARP 80-20 | | Floor Structure: | WOOD W/SUBFLOOR | Foundation: | CONCRETE | | Interior Finish: | DRYWALL PAINT | Plumbing Fixture Cnt: | 16 | | Roof Slope: | 8" IN 12" | Roof Structure/Cover: | CJ ALUMINIUM HEAVY |
|
| | Type | Description | Class CD | Sub Class CD | Year Built | Area |
| | BAS | BASE/MAIN FLOOR | 6 | 0 | 1993 | 1638.0 |
| | OP4 | OPEN PORCH W/CEILING-ROOF | 6 | 0 | 1993 | 106.2 |
| | BIG | BUILT IN GARAGE | 6 | 0 | 1993 | 822.5 |
| | UPS | UPPER STORY | 6 | 0 | 1993 | 771.0 |
| | OWC | OPEN WOOD PORCH W/STEPS/ROOF/C | 6 | 0 | 1993 | 191.9 |
| | OWP | OPEN WOOD PORCH W/STEPS | 6 | 0 | 1993 | 48.0 |
| | OWP | OPEN WOOD PORCH W/STEPS | 6 | 0 | 1993 | 48.0 |
| | OWP | OPEN WOOD PORCH W/STEPS | 6 | 0 | 1993 | 70.0 |
| | OWC | OPEN WOOD PORCH W/STEPS/ROOF/C | 6 | 0 | 1993 | 410.0 |
| | OWC | OPEN WOOD PORCH W/STEPS/ROOF/C | 6 | 0 | 1993 | 20.0 |
| | DWN | DOWNSTAIRS LIVING AREA | 6 | 0 | 1993 | 1025.0 |
Sketch
Property Image
Land
| 1 | LB | LOW BANK | 0.0000 | 0.00 | 50.00 | 0.00 | 1.00 | $850,000 | $0 |
| 2 | 55 | TIDES | 0.0000 | 0.00 | 50.00 | 0.00 | 1.00 | $500 | $0 |
Roll Value History
| 2026 | N/A | N/A | N/A | N/A | N/A |
| 2025 | $1,045,689 | $850,500 | $0 | $1,896,189 | $1,896,189 |
| 2024 | $1,054,475 | $800,500 | $0 | $1,854,975 | $1,854,975 |
| 2023 | $1,063,848 | $800,500 | $0 | $1,864,348 | $1,864,348 |
| 2022 | $970,744 | $750,500 | $0 | $1,721,244 | $1,721,244 |
| 2021 | $826,642 | $675,500 | $0 | $1,502,142 | $1,502,142 |
| 2020 | $717,951 | $600,500 | $0 | $1,318,451 | $1,318,451 |
| 2019 | $666,184 | $550,500 | $0 | $1,216,684 | $1,216,684 |
| 2018 | $668,184 | $450,500 | $0 | $1,118,684 | $1,118,684 |
| 2017 | $672,040 | $400,500 | $0 | $1,072,540 | $1,072,540 |
| 2016 | $680,039 | $400,500 | $0 | $1,080,539 | $1,080,539 |
| 2015 | $688,039 | $400,500 | $0 | $1,088,539 | $1,088,539 |
| 2014 | $588,879 | $400,500 | $0 | $989,379 | $989,379 |
| 2013 | $596,143 | $400,500 | $0 | $996,643 | $996,643 |
| 2012 | $603,408 | $439,610 | $0 | $1,043,018 | $1,043,018 |
| 2011 | $610,676 | $517,188 | $0 | $1,127,864 | $1,127,864 |
| 2010 | $631,689 | $517,188 | $0 | $1,148,877 | $1,148,877 |
| 2009 | $658,808 | $644,497 | $0 | $1,303,305 | $1,303,305 |
| 2008 | $714,982 | $644,497 | $0 | $1,359,479 | $1,359,479 |
| 2007 | $724,290 | $644,497 | $0 | $1,368,787 | $1,368,787 |
Deed and Sales History
| 1 | 05/11/2021 | WD | Warranty Deed | FALLEEN TTEE, PETER C | CRUMB, PATRICK W | | | $2,200,000.00 | 48406 | 4520235 |
|   | |
| 2 | 01/10/2019 | QCD | Quit Claim Deed | FALLEEN, PETER C | FALLEEN TTEE, PETER C | | | $0.00 | 37359 | 4458178 |
| 3 | 08/01/1997 | WD | Warranty Deed | LEAF, NANCY A | FALLEEN, PETER C | | | $650,000.00 | 72753 | 97013126 |
| 4 | 04/01/1992 | OTHER | Other - Misc. Documents | TAYLOR, MELODY A | LEAF, NANCY A | | | $0.00 | 64784 | 92004961 |
| 5 | 04/01/1992 | QCD | Quit Claim Deed | LEAF, ROBERT J | TAYLOR, MELODY A | | | $0.00 | 21217 | 92005907 |
| 6 | 09/01/1982 | CD | DNU - Correction Deed | LEAF, EMILY | LEAF, ROBERT J | | | $0.00 | 22150 | 400341 |
| 7 | 01/01/1900 | OTHER | Other - Misc. Documents | Unknown | LEAF, EMILY | | | $0.00 | 0 | 0 |
Payout Agreement
| No payout information available.. |