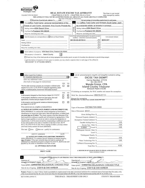
Property
Account |
| Property ID: | 234473 | Abbreviated Legal Description: | COLUMBIA BCH LOT 34 INCL ADJ TIDES |
| Geographic ID: | S6400-00-00034-0 | Agent Code: | |
| Type: | Real | | |
| Tax Area: | 720 - APPRAISER-S Whid Schl Dist, Special District, improved & less than 1 acre | Land Use Code | 99 |
| Open Space: | N | DFL | N |
| Historic Property: | N | Remodel Property: | N |
| Multi-Family Redevelopment: | N | | |
| Township: | | Section: | |
| Range: | |
Location |
| Address: | | Mapsco: | |
| Neighborhood: | Cycle 4 | Map ID: | 1001 |
| Neighborhood CD: | 4 |
Owner |
| Name: | CRUMB, PATRICK W | Owner ID: | 299531 |
| Mailing Address: | KAREN CRUMB 8016 FOREST DR NE SEATTLE, WA 98115 | % Ownership: | 100.0000000000% |
| | | Exemptions: | |
Taxes and Assessment Details
Values
| (+) Improvement Homesite Value: | + | $0 | |
| (+) Improvement Non-Homesite Value: | + | $0 | |
| (+) Land Homesite Value: | + | $0 | |
| (+) Land Non-Homesite Value: | + | $400,500 | |
| (+) Curr Use (HS): | + | $0 | $0 |
| (+) Curr Use (NHS): | + | $0 | $0 |
| | | -------------------------- | |
| (=) Market Value: | = | $400,500 | |
| (–) Productivity Loss: | – | $0 | |
| | | -------------------------- | |
| (=) Subtotal: | = | $400,500 | |
| (+) Senior Appraised Value: | + | $0 | |
| (+) Non-Senior Appraised Value: | + | $400,500 | |
| | | -------------------------- | |
| (=) Total Appraised Value: | = | $400,500 | |
| (–) Senior Exemption Loss: | – | $0 | |
| (–) Exemption Loss: | – | $0 | |
| | | -------------------------- | |
| (=) Taxable Value: | = | $400,500 | |
Taxing Jurisdiction
| Owner: | CRUMB, PATRICK W | | |
| % Ownership: | 100.0000000000% | | |
| Total Value: | $400,500 | | |
| Tax Area: | 720 - APPRAISER-S Whid Schl Dist, Special District, improved & less than 1 acre |
| CF | Conservation Futures | 0.0316035091 | $400,500 | $400,500 | $12.66 | | |
| FIRE3 | Fire & Rescue Dist #3 S Whidbey GEN | 1.2004855531 | $400,500 | $400,500 | $480.79 | | |
| HOBOND | Hospital BOND | 0.1910887512 | $400,500 | $400,500 | $76.53 | | |
| HOGEN | Hospital GEN | 0.3902502903 | $400,500 | $400,500 | $156.30 | | |
| CE | County Current Expense | 0.3708482477 | $400,500 | $400,500 | $148.52 | | |
| CR | County Roads | 0.4584763726 | $400,500 | $400,500 | $183.62 | | |
| ISLANDEMS | Hospital GEN (EMS) | 0.5000000000 | $400,500 | $400,500 | $200.25 | | |
| LIB | Library Sno-Isle GEN | 0.3153421757 | $400,500 | $400,500 | $126.29 | | |
| PORTWHID | Port of S Whidbey GEN | 0.1094540357 | $400,500 | $400,500 | $43.84 | | |
| SCH206BOND | School 206 BOND | 0.3161759235 | $400,500 | $400,500 | $126.63 | | |
| SCH206MO | School 206 Enrichment | 0.4547169547 | $400,500 | $400,500 | $182.11 | | |
| ST | State School | 1.3035497053 | $400,500 | $400,500 | $522.07 | | |
| ST2 | State School Part 2 | 0.8169543533 | $400,500 | $400,500 | $327.19 | | |
| SWHIDPRBD | P & R S Whidbey BOND | 0.0152817568 | $400,500 | $400,500 | $6.12 | | |
| SWHIDPRBD2 | P & R S Whidbey BOND2 | 0.0138911264 | $400,500 | $400,500 | $5.56 | | |
| SWHIDPRMT | P & R S Whidbey GEN | 0.2053334452 | $400,500 | $400,500 | $82.24 | | |
| | Total Tax Rate: | 6.6934522006 | | | | | |
| | | | | Taxes w/Current Exemptions: | $2,680.72 | | |
| | | | | Taxes w/o Exemptions: | $2,680.72 | | |
Improvement / Building
Sketch
| No sketches available for this property. |
Property Image
Land
| 1 | LB | LOW BANK | 0.0000 | 0.00 | 50.00 | 0.00 | 1.00 | $400,000 | $0 |
| 2 | 55 | TIDES | 0.0000 | 0.00 | 50.00 | 0.00 | 1.00 | $500 | $0 |
Roll Value History
| 2026 | N/A | N/A | N/A | N/A | N/A |
| 2025 | $0 | $400,500 | $0 | $400,500 | $400,500 |
| 2024 | $0 | $400,500 | $0 | $400,500 | $400,500 |
| 2023 | $0 | $400,500 | $0 | $400,500 | $400,500 |
| 2022 | $0 | $375,500 | $0 | $375,500 | $375,500 |
| 2021 | $0 | $300,500 | $0 | $300,500 | $300,500 |
| 2020 | $1,000 | $300,500 | $0 | $301,500 | $301,500 |
| 2019 | $1,000 | $300,500 | $0 | $301,500 | $301,500 |
| 2018 | $1,000 | $300,500 | $0 | $301,500 | $301,500 |
| 2017 | $1,000 | $300,500 | $0 | $301,500 | $301,500 |
| 2016 | $1,000 | $300,500 | $0 | $301,500 | $301,500 |
| 2015 | $1,000 | $300,500 | $0 | $301,500 | $301,500 |
| 2014 | $1,028 | $300,500 | $0 | $301,528 | $301,528 |
| 2013 | $1,028 | $300,500 | $0 | $301,528 | $301,528 |
| 2012 | $1,028 | $331,898 | $0 | $332,926 | $332,926 |
| 2011 | $1,028 | $390,380 | $0 | $391,408 | $391,408 |
| 2010 | $1,028 | $390,380 | $0 | $391,408 | $391,408 |
| 2009 | $1,028 | $484,271 | $0 | $485,299 | $485,299 |
| 2008 | $9,698 | $644,997 | $0 | $654,695 | $654,695 |
| 2007 | $9,698 | $644,647 | $0 | $654,345 | $654,345 |
Deed and Sales History
| 1 | 05/11/2021 | WD | Warranty Deed | FALLEEN TTEE, PETER C | CRUMB, PATRICK W | | | $2,200,000.00 | 48406 | 4520235 |
|   | |
| 2 | 01/10/2019 | QCD | Quit Claim Deed | FALLEEN, PETER C | FALLEEN TTEE, PETER C | | | $0.00 | 37359 | 4458178 |
| 3 | 08/01/1997 | WD | Warranty Deed | FOWLER, MARIAN A | FALLEEN, PETER C | | | $155,000.00 | 73097 | 97014576 |
| 4 | 06/01/1990 | QCD | Quit Claim Deed | FOWLER, MARIAN A | FOWLER, MARIAN A | | | $0.00 | 3300 | 90010715 |
| 5 | 09/01/1982 | CD | DNU - Correction Deed | LEAF, ROBERT J | FOWLER, MARIAN A | | | $0.00 | 22149 | 400342 |
| 6 | 01/01/1900 | OTHER | Other - Misc. Documents | Unknown | LEAF, ROBERT J | | | $0.00 | 0 | 0 |
Payout Agreement
| No payout information available.. |