Property
Account |
| Property ID: | 234552 | Abbreviated Legal Description: | COLUMBIA BCH LOT 42 INCL ADJ TIDES EX PT LOT 42 DESC: SLY 2.57' OF SD LOT 42 LY E OF PT 127.38'E OF SWCR SD LOT 42 MEAS ALG SLN & EXT ELY 36.93' TO END OF EXIST CONCRETE BULKHEAD |
| Geographic ID: | S6400-00-00042-0 | Agent Code: | |
| Type: | Real | | |
| Tax Area: | 720 - APPRAISER-S Whid Schl Dist, Special District, improved & less than 1 acre | Land Use Code | 11 |
| Open Space: | N | DFL | N |
| Historic Property: | N | Remodel Property: | N |
| Multi-Family Redevelopment: | N | | |
| Township: | | Section: | |
| Range: | |
Location |
| Address: | 6603 COLUMBIA BEACH DR CLINTON, WA 98236 | Mapsco: | |
| Neighborhood: | Cycle 4 | Map ID: | 1001 |
| Neighborhood CD: | 4 |
Owner |
| Name: | ZHANG, QING | Owner ID: | 289591 |
| Mailing Address: | QING RUAN 18341 8TH AVE NW SHORELINE, WA 98177 | % Ownership: | 100.0000000000% |
| | | Exemptions: | |
Taxes and Assessment Details
Values
| (+) Improvement Homesite Value: | + | $0 | |
| (+) Improvement Non-Homesite Value: | + | $117,208 | |
| (+) Land Homesite Value: | + | $0 | |
| (+) Land Non-Homesite Value: | + | $850,500 | |
| (+) Curr Use (HS): | + | $0 | $0 |
| (+) Curr Use (NHS): | + | $0 | $0 |
| | | -------------------------- | |
| (=) Market Value: | = | $967,708 | |
| (–) Productivity Loss: | – | $0 | |
| | | -------------------------- | |
| (=) Subtotal: | = | $967,708 | |
| (+) Senior Appraised Value: | + | $0 | |
| (+) Non-Senior Appraised Value: | + | $967,708 | |
| | | -------------------------- | |
| (=) Total Appraised Value: | = | $967,708 | |
| (–) Senior Exemption Loss: | – | $0 | |
| (–) Exemption Loss: | – | $0 | |
| | | -------------------------- | |
| (=) Taxable Value: | = | $967,708 | |
Taxing Jurisdiction
| Owner: | ZHANG, QING | | |
| % Ownership: | 100.0000000000% | | |
| Total Value: | $967,708 | | |
| Tax Area: | 720 - APPRAISER-S Whid Schl Dist, Special District, improved & less than 1 acre |
| CF | Conservation Futures | 0.0316035091 | $967,708 | $967,708 | $30.58 | | |
| FIRE3 | Fire & Rescue Dist #3 S Whidbey GEN | 1.2004855531 | $967,708 | $967,708 | $1,161.72 | | |
| HOBOND | Hospital BOND | 0.1910887512 | $967,708 | $967,708 | $184.92 | | |
| HOGEN | Hospital GEN | 0.3902502903 | $967,708 | $967,708 | $377.65 | | |
| CE | County Current Expense | 0.3708482477 | $967,708 | $967,708 | $358.87 | | |
| CR | County Roads | 0.4584763726 | $967,708 | $967,708 | $443.67 | | |
| ISLANDEMS | Hospital GEN (EMS) | 0.5000000000 | $967,708 | $967,708 | $483.85 | | |
| LIB | Library Sno-Isle GEN | 0.3153421757 | $967,708 | $967,708 | $305.16 | | |
| PORTWHID | Port of S Whidbey GEN | 0.1094540357 | $967,708 | $967,708 | $105.92 | | |
| SCH206BOND | School 206 BOND | 0.3161759235 | $967,708 | $967,708 | $305.97 | | |
| SCH206MO | School 206 Enrichment | 0.4547169547 | $967,708 | $967,708 | $440.03 | | |
| ST | State School | 1.3035497053 | $967,708 | $967,708 | $1,261.46 | | |
| ST2 | State School Part 2 | 0.8169543533 | $967,708 | $967,708 | $790.57 | | |
| SWHIDPRBD | P & R S Whidbey BOND | 0.0152817568 | $967,708 | $967,708 | $14.79 | | |
| SWHIDPRBD2 | P & R S Whidbey BOND2 | 0.0138911264 | $967,708 | $967,708 | $13.44 | | |
| SWHIDPRMT | P & R S Whidbey GEN | 0.2053334452 | $967,708 | $967,708 | $198.70 | | |
| | Total Tax Rate: | 6.6934522006 | | | | | |
| | | | | Taxes w/Current Exemptions: | $6,477.30 | | |
| | | | | Taxes w/o Exemptions: | $6,477.30 | | |
Improvement / Building
| Improvement #1: | RESIDENTIAL | State Code: | Y | 696.0 sqft | Value: | $117,208 |
| Bathrooms: | 1 | Bedrooms: | 3 | | Ceiling: | PLYWOOD PAINTED | Cooling: | HEAT PUMP/CONV/V | | Exterior Wall/Cover: | WOOD SIDING | Floor Covering: | VINYL 100% | | Floor Structure: | WOOD W/SUBFLOOR | Foundation: | CONCRETE BLOCKS | | Interior Finish: | DRYWALL PAINT | Plumbing Fixture Cnt: | 5 | | Roof Slope: | 4" IN 12" | Roof Structure/Cover: | CJ ALUMINIUM HEAVY |
|
| | Type | Description | Class CD | Sub Class CD | Year Built | Area |
| | BAS | BASE/MAIN FLOOR | 3 | 0 | 1939 | 696.0 |
| | OWR | OPEN WOOD PORCH W/STEPS/ROOF | 3 | 0 | 1939 | 24.0 |
| | ENP | ENCLOSED PORCH | 3 | 0 | 1939 | 24.0 |
Sketch
Property Image
Land
| 1 | LB | LOW BANK | 0.0000 | 0.00 | 50.00 | 0.00 | 1.00 | $850,000 | $0 |
| 2 | 55 | TIDES | 0.0000 | 0.00 | 53.43 | 0.00 | 1.00 | $500 | $0 |
Roll Value History
| 2026 | N/A | N/A | N/A | N/A | N/A |
| 2025 | $117,208 | $850,500 | $0 | $967,708 | $967,708 |
| 2024 | $118,901 | $800,500 | $0 | $919,401 | $919,401 |
| 2023 | $120,593 | $800,500 | $0 | $921,093 | $921,093 |
| 2022 | $110,734 | $750,500 | $0 | $861,234 | $861,234 |
| 2021 | $97,621 | $675,500 | $0 | $773,121 | $773,121 |
| 2020 | $52,665 | $600,500 | $0 | $653,165 | $653,165 |
| 2019 | $37,680 | $550,500 | $0 | $588,180 | $588,180 |
| 2018 | $37,909 | $801,060 | $0 | $838,969 | $838,969 |
| 2017 | $35,923 | $801,060 | $0 | $836,983 | $836,983 |
| 2016 | $36,778 | $801,060 | $0 | $837,838 | $837,838 |
| 2015 | $37,634 | $801,060 | $0 | $838,694 | $838,694 |
| 2014 | $42,271 | $801,060 | $0 | $843,331 | $843,331 |
| 2013 | $43,125 | $801,060 | $0 | $844,185 | $844,185 |
| 2012 | $43,982 | $833,503 | $0 | $877,485 | $877,485 |
| 2011 | $44,836 | $980,405 | $0 | $1,025,241 | $1,025,241 |
| 2010 | $53,787 | $980,405 | $0 | $1,034,192 | $1,034,192 |
| 2009 | $56,241 | $1,221,474 | $0 | $1,277,715 | $1,277,715 |
| 2008 | $57,203 | $1,221,474 | $0 | $1,278,677 | $1,278,677 |
| 2007 | $58,187 | $1,220,732 | $0 | $1,278,919 | $1,278,919 |
Deed and Sales History
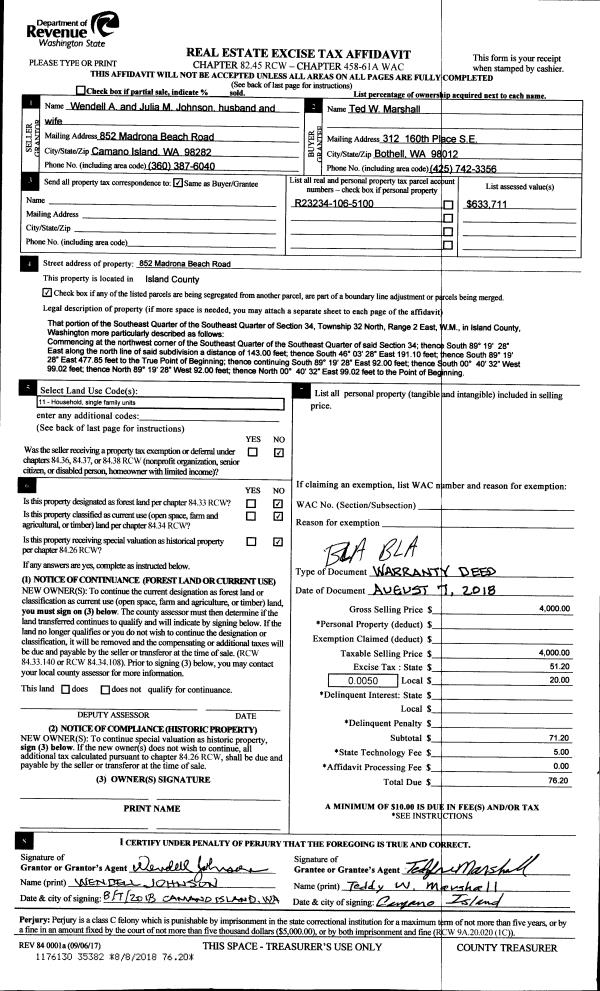
| 1 | 05/01/2019 | WD | Warranty Deed | GOUGH, FRANCES | ZHANG, QING | | | $815,000.00 | 38279 | 4462346 |
|   | |
| 2 | 08/15/2018 | PRD | Personal Representatives Deed | STEPHENS, RUBY H | GOUGH, FRANCES | | | $0.00 | 35631 | 4450633 |
| 3 | 05/01/2018 | PRD | Personal Representatives Deed | GOUGH, JAMES R | STEPHENS, RUBY H | | | $0.00 | 34266 | 4445229 |
| 4 | 05/01/2015 | CHGOFIDENT | DNU - Change In Identity | GOUGH, JAMES R | GOUGH, JAMES R | | | $0.00 | 20170 | 4380925 |
| 5 | 05/08/2015 | CHGOFIDENT | DNU - Change In Identity | GOUGH, JAMES R | GOUGH, JAMES R | | | $0.00 | 19993 | 4381360 |
| 6 | 05/08/2015 | CHGOFIDENT | DNU - Change In Identity | GOUGH ET AL, J R | GOUGH, JAMES R | | | $0.00 | 19829 | 4379472 |
| 7 | 11/19/2001 | QCD | Quit Claim Deed | GOUGH ET AL, J R | | | | | 60431 | 4161253 |
| 8 | 12/31/2001 | WD | Warranty Deed | GOUGH ET AL, J R | GOUGH ET AL, J R | | | $0.00 | 11945 | 20033542 |
| 9 | 02/01/2001 | WD | Warranty Deed | GOUGH ET AL, J R | GOUGH ET AL, J R | | | $0.00 | 12040 | 20033952 |
| 10 | 02/01/2001 | WD | Warranty Deed | GOUGH ET AL, J R | GOUGH ET AL, J R | | | $0.00 | 11944 | 20033544 |
| 11 | 02/01/2001 | QCD | Quit Claim Deed | GOUGH ET AL, J R | GOUGH ET AL, J R | | | $0.00 | 11118 | 20032448 |
| 12 | 02/01/2001 | QCD | Quit Claim Deed | GOUGH ET AL, J R | GOUGH ET AL, J R | | | $0.00 | 11717 | 20032446 |
| 13 | 02/01/2001 | WD | Warranty Deed | GOUGH ET AL, J R | GOUGH ET AL, J R | | | $0.00 | 11716 | 20032444 |
| 14 | 12/31/2000 | WD | Warranty Deed | GOUGH ET AL, J R | GOUGH ET AL, J R | | | $0.00 | 11946 | 20033543 |
| 15 | 12/31/2000 | WD | Warranty Deed | GOUGH ET AL, J R | GOUGH ET AL, J R | | | $0.00 | 11943 | 20033545 |
| 16 | 12/31/2000 | WD | Warranty Deed | GOUGH ET AL, J R | GOUGH ET AL, J R | | | $0.00 | 11714 | 20032447 |
| 17 | 12/31/2000 | WD | Warranty Deed | GOUGH ET AL, J R | GOUGH ET AL, J R | | | $0.00 | 11713 | 20032443 |
| 18 | 04/01/1998 | QCD | Quit Claim Deed | GOUGH ET AL, J R | GOUGH ET AL, J R | | | $0.00 | 81280 | 98006986 |
Payout Agreement
| No payout information available.. |