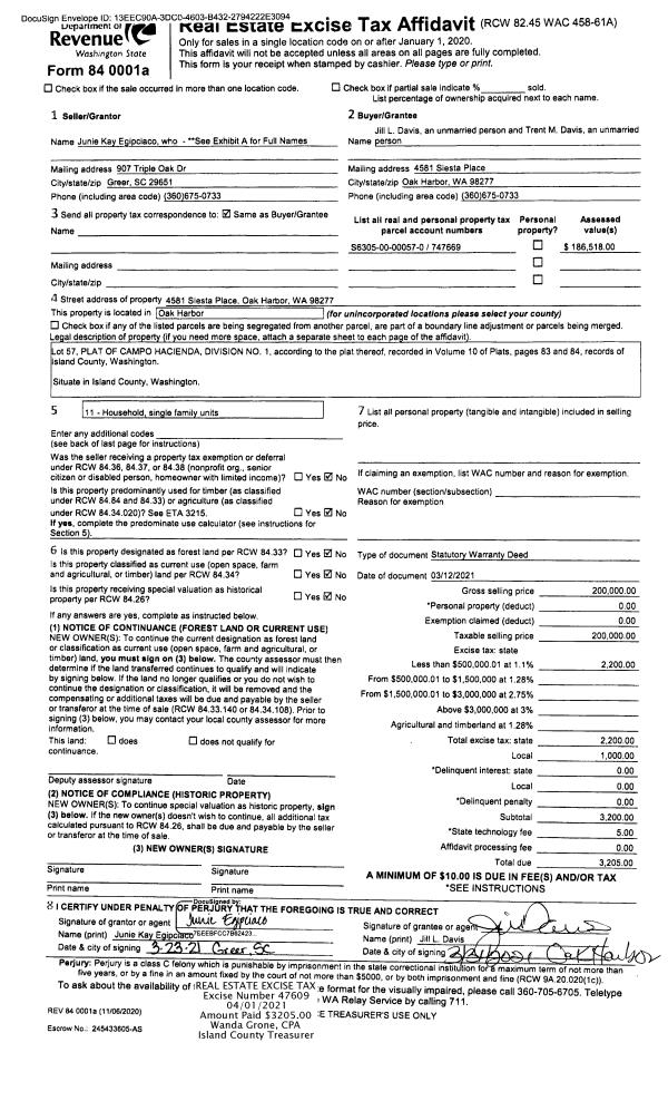
Property
Account |
| Property ID: | 234589 | Abbreviated Legal Description: | Columbia Beach,s Lot 59,s Blk 0 & PT RESERVE 3 & PT TR D;s LOT A BLA 374-16 AF# 4413910s |
| Geographic ID: | S6400-00-00059-0 | Agent Code: | |
| Type: | Real | | |
| Tax Area: | 720 - APPRAISER-S Whid Schl Dist, Special District, improved & less than 1 acre | Land Use Code | 11 |
| Open Space: | N | DFL | N |
| Historic Property: | N | Remodel Property: | N |
| Multi-Family Redevelopment: | N | | |
| Township: | | Section: | |
| Range: | |
Location |
| Address: | 4869 HELLAND VIEW LN CLINTON, WA 98236 | Mapsco: | |
| Neighborhood: | Cycle 4 | Map ID: | 1001 |
| Neighborhood CD: | 4 |
Owner |
| Name: | COCKLIN-MILLS, SUSANNE | Owner ID: | 254415 |
| Mailing Address: | 4869 HELLAND VIEW LANE CLINTON, WA 98236 | % Ownership: | 100.0000000000% |
| | | Exemptions: | |
Taxes and Assessment Details
Values
| (+) Improvement Homesite Value: | + | $0 | |
| (+) Improvement Non-Homesite Value: | + | $508,948 | |
| (+) Land Homesite Value: | + | $0 | |
| (+) Land Non-Homesite Value: | + | $400,000 | |
| (+) Curr Use (HS): | + | $0 | $0 |
| (+) Curr Use (NHS): | + | $0 | $0 |
| | | -------------------------- | |
| (=) Market Value: | = | $908,948 | |
| (–) Productivity Loss: | – | $0 | |
| | | -------------------------- | |
| (=) Subtotal: | = | $908,948 | |
| (+) Senior Appraised Value: | + | $0 | |
| (+) Non-Senior Appraised Value: | + | $908,948 | |
| | | -------------------------- | |
| (=) Total Appraised Value: | = | $908,948 | |
| (–) Senior Exemption Loss: | – | $0 | |
| (–) Exemption Loss: | – | $0 | |
| | | -------------------------- | |
| (=) Taxable Value: | = | $908,948 | |
Taxing Jurisdiction
| Owner: | COCKLIN-MILLS, SUSANNE | | |
| % Ownership: | 100.0000000000% | | |
| Total Value: | $908,948 | | |
| Tax Area: | 720 - APPRAISER-S Whid Schl Dist, Special District, improved & less than 1 acre |
| CF | Conservation Futures | 0.0316035091 | $908,948 | $908,948 | $28.73 | | |
| FIRE3 | Fire & Rescue Dist #3 S Whidbey GEN | 1.2004855531 | $908,948 | $908,948 | $1,091.18 | | |
| HOBOND | Hospital BOND | 0.1910887512 | $908,948 | $908,948 | $173.69 | | |
| HOGEN | Hospital GEN | 0.3902502903 | $908,948 | $908,948 | $354.72 | | |
| CE | County Current Expense | 0.3708482477 | $908,948 | $908,948 | $337.08 | | |
| CR | County Roads | 0.4584763726 | $908,948 | $908,948 | $416.73 | | |
| ISLANDEMS | Hospital GEN (EMS) | 0.5000000000 | $908,948 | $908,948 | $454.47 | | |
| LIB | Library Sno-Isle GEN | 0.3153421757 | $908,948 | $908,948 | $286.63 | | |
| PORTWHID | Port of S Whidbey GEN | 0.1094540357 | $908,948 | $908,948 | $99.49 | | |
| SCH206BOND | School 206 BOND | 0.3161759235 | $908,948 | $908,948 | $287.39 | | |
| SCH206MO | School 206 Enrichment | 0.4547169547 | $908,948 | $908,948 | $413.31 | | |
| ST | State School | 1.3035497053 | $908,948 | $908,948 | $1,184.86 | | |
| ST2 | State School Part 2 | 0.8169543533 | $908,948 | $908,948 | $742.57 | | |
| SWHIDPRBD | P & R S Whidbey BOND | 0.0152817568 | $908,948 | $908,948 | $13.89 | | |
| SWHIDPRBD2 | P & R S Whidbey BOND2 | 0.0138911264 | $908,948 | $908,948 | $12.63 | | |
| SWHIDPRMT | P & R S Whidbey GEN | 0.2053334452 | $908,948 | $908,948 | $186.64 | | |
| | Total Tax Rate: | 6.6934522006 | | | | | |
| | | | | Taxes w/Current Exemptions: | $6,084.01 | | |
| | | | | Taxes w/o Exemptions: | $6,084.01 | | |
Improvement / Building
| Improvement #1: | RESIDENTIAL | State Code: | Y | 2584.0 sqft | Value: | $508,948 |
| Bathrooms: | 2 | Bedrooms: | 2 | | Ceiling: | DRYWALL PAINTED | Cooling: | HEAT PUMP/CONV/V | | Exterior Wall/Cover: | SHINGLE | Floor Covering: | HARDWOOD/CARP 60-40 | | Floor Structure: | WOOD W/SUBFLOOR | Foundation: | CONCRETE | | Interior Finish: | DRYWALL PAINT | Plumbing Fixture Cnt: | 10 | | Roof Slope: | 8" IN 12" | Roof Structure/Cover: | ALUM LIGHT |
|
| | Type | Description | Class CD | Sub Class CD | Year Built | Area |
| | BAS | BASE/MAIN FLOOR | 4 | 0 | 2017 | 1912.0 |
| | UPS | UPPER STORY | 4 | 0 | 2017 | 672.0 |
| | BIG | BUILT IN GARAGE | 4 | 0 | 2017 | 650.0 |
| | BAW | BALCONY WOOD RAIL | 4 | 0 | 2017 | 40.0 |
Sketch
Property Image
Land
| 1 | 16 | AC (00.51-01.00) | 0.5600 | 24393.60 | 0.00 | 0.00 | 1.00 | $400,000 | $0 |
Roll Value History
| 2026 | N/A | N/A | N/A | N/A | N/A |
| 2025 | $508,948 | $400,000 | $0 | $908,948 | $908,948 |
| 2024 | $513,120 | $330,000 | $0 | $843,120 | $843,120 |
| 2023 | $517,291 | $330,000 | $0 | $847,291 | $847,291 |
| 2022 | $472,184 | $310,000 | $0 | $782,184 | $782,184 |
| 2021 | $408,885 | $250,000 | $0 | $658,885 | $658,885 |
| 2020 | $409,805 | $230,000 | $0 | $639,805 | $639,805 |
| 2019 | $317,375 | $300,000 | $0 | $617,375 | $617,375 |
| 2018 | $318,183 | $250,000 | $0 | $568,183 | $568,183 |
| 2017 | $323,028 | $250,000 | $0 | $573,028 | $573,028 |
| 2016 | $0 | $150,000 | $0 | $150,000 | $150,000 |
| 2015 | $0 | $125,005 | $0 | $125,005 | $125,005 |
| 2014 | $0 | $17 | $0 | $17 | $0 |
| 2013 | $0 | $17 | $0 | $17 | $0 |
| 2012 | $0 | $17 | $0 | $17 | $0 |
| 2011 | $0 | $20 | $0 | $20 | $0 |
| 2010 | $0 | $20 | $0 | $20 | $0 |
| 2009 | $0 | $20 | $0 | $20 | $0 |
| 2007 | $0 | $20 | $0 | $20 | $0 |
Deed and Sales History
| 1 | 05/26/2017 | QCD | Quit Claim Deed | HAMMOND, ROBERT C | COCKLIN-MILLS, SUSANNE | | | $0.00 | 29491 | 4423329 |
| 2 | 04/11/2016 | WD | Warranty Deed | DOLGOFF, TODD | COCKLIN-MILLS, SUSANNE | | | $165,000.00 | 23879 | 4397509 |
| 3 | 08/21/2008 | WD | Warranty Deed | HELLAND, GALEN MILLER | DOLGOFF, TODD | | | $0.00 | 82752 | 4238677 |
| 4 | 07/14/2008 | PRD | Personal Representatives Deed | HELLAND, MILLER | HELLAND, GALEN MILLER | | | $0.00 | 81833 | 4232740 |
| 5 | 01/01/1900 | OTHER | Other - Misc. Documents | Unknown | HELLAND, MILLER | | | $0.00 | 0 | 0 |
Payout Agreement
| No payout information available.. |