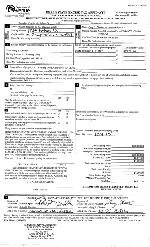
Property
Account |
| Property ID: | 235597 | Abbreviated Legal Description: | CORNET BAY HTS 3 LOT 45 TGW PT TR F: BG PT 118' SELY MEAS ALG ELN RD OF SOUTHERNMOST CR LOT 19 CORNET BAY HTS 2 ELY TO NW CR LOT 45 SD PLAT S11*E109 .45' S73*W TO ELY LN CANYON RD NLY ALG ELN CANYON RD TPB |
| Geographic ID: | S6410-03-00045-0 | Agent Code: | |
| Type: | Real | | |
| Tax Area: | 110 - APPRAISER-OH Schl Dist, outside OH, improved & 1 acre or less | Land Use Code | 11 |
| Open Space: | N | DFL | N |
| Historic Property: | N | Remodel Property: | N |
| Multi-Family Redevelopment: | N | | |
| Township: | | Section: | |
| Range: | |
Location |
| Address: | 5135 ALTO LN OAK HARBOR, WA 98277 | Mapsco: | |
| Neighborhood: | Cycle 6 | Map ID: | 280 |
| Neighborhood CD: | 6 |
Owner |
| Name: | SCHMITT, ANTHONY | Owner ID: | 287276 |
| Mailing Address: | LUCINDA SCHMITT PO BOX 65966 UNIVERSITY PLACE, WA 98464 | % Ownership: | 100.0000000000% |
| | | Exemptions: | |
Taxes and Assessment Details
Values
| (+) Improvement Homesite Value: | + | $0 | |
| (+) Improvement Non-Homesite Value: | + | $470,831 | |
| (+) Land Homesite Value: | + | $0 | |
| (+) Land Non-Homesite Value: | + | $200,000 | |
| (+) Curr Use (HS): | + | $0 | $0 |
| (+) Curr Use (NHS): | + | $0 | $0 |
| | | -------------------------- | |
| (=) Market Value: | = | $670,831 | |
| (–) Productivity Loss: | – | $0 | |
| | | -------------------------- | |
| (=) Subtotal: | = | $670,831 | |
| (+) Senior Appraised Value: | + | $0 | |
| (+) Non-Senior Appraised Value: | + | $670,831 | |
| | | -------------------------- | |
| (=) Total Appraised Value: | = | $670,831 | |
| (–) Senior Exemption Loss: | – | $0 | |
| (–) Exemption Loss: | – | $0 | |
| | | -------------------------- | |
| (=) Taxable Value: | = | $670,831 | |
Taxing Jurisdiction
| Owner: | SCHMITT, ANTHONY | | |
| % Ownership: | 100.0000000000% | | |
| Total Value: | $670,831 | | |
| Tax Area: | 110 - APPRAISER-OH Schl Dist, outside OH, improved & 1 acre or less |
| CF | Conservation Futures | 0.0316035091 | $670,831 | $670,831 | $21.20 | | |
| CEM1 | Cemetery #1 | 0.0040320932 | $670,831 | $670,831 | $2.70 | | |
| FIRE2 | Fire & Rescue Dist #2 N Whidbey GEN | 0.5475949600 | $670,831 | $670,831 | $367.34 | | |
| HOBOND | Hospital BOND | 0.1910887512 | $670,831 | $670,831 | $128.19 | | |
| HOGEN | Hospital GEN | 0.3902502903 | $670,831 | $670,831 | $261.79 | | |
| CE | County Current Expense | 0.3708482477 | $670,831 | $670,831 | $248.78 | | |
| CR | County Roads | 0.4584763726 | $670,831 | $670,831 | $307.56 | | |
| ISLANDEMS | Hospital GEN (EMS) | 0.5000000000 | $670,831 | $670,831 | $335.42 | | |
| LIB | Library Sno-Isle GEN | 0.3153421757 | $670,831 | $670,831 | $211.54 | | |
| NWHIDPRMT | P & R N Whidbey GEN | 0.2004466701 | $670,831 | $670,831 | $134.47 | | |
| SCH201MO | School 201 Enrichment | 1.8559231640 | $670,831 | $670,831 | $1,245.01 | | |
| ST | State School | 1.3035497053 | $670,831 | $670,831 | $874.46 | | |
| ST2 | State School Part 2 | 0.8169543533 | $670,831 | $670,831 | $548.04 | | |
| | Total Tax Rate: | 6.9861102925 | | | | | |
| | | | | Taxes w/Current Exemptions: | $4,686.50 | | |
| | | | | Taxes w/o Exemptions: | $4,686.50 | | |
Improvement / Building
| Improvement #1: | RESIDENTIAL | State Code: | Y | 3307.0 sqft | Value: | $470,831 |
| Bathrooms: | 2 | Bedrooms: | 3 | | Ceiling: | DRYWALL PAINTED | Exterior Wall/Cover: | WOOD SIDING | | Floor Covering: | CERAMIC TILE/HWD 40/60 | Floor Structure: | WOOD W/SUBFLOOR | | Foundation: | CONCRETE BLOCKS | Heating: | FHA GAS | | Interior Finish: | DRYWALL PAINT | Plumbing Fixture Cnt: | 10 | | Roof Slope: | 3" IN 12" | Roof Structure/Cover: | CJ ASPHALT |
|
| | Type | Description | Class CD | Sub Class CD | Year Built | Area |
| | BAS | BASE/MAIN FLOOR | 4 | 0 | 1966 | 1376.0 |
| | DGR | DETACHED GARAGE | 4 | 0 | 1966 | 484.4 |
| | UTY | STORAGE/UTILITY | 4 | 0 | 1966 | 129.3 |
| | OWC | OPEN WOOD PORCH W/STEPS/ROOF/C | 4 | 0 | 1966 | 71.6 |
| | OWP | OPEN WOOD PORCH W/STEPS | 4 | 0 | 1966 | 322.2 |
| | OWR | OPEN WOOD PORCH W/STEPS/ROOF | 4 | 0 | 1966 | 172.0 |
| | ENP | ENCLOSED PORCH | 4 | 0 | 1966 | 306.0 |
| | DWN | DOWNSTAIRS LIVING AREA | 4 | 0 | 1966 | 1931.0 |
Sketch
Property Image
Land
| 1 | 15 | SQ (12001-21780) | 0.0000 | 0.00 | 0.00 | 0.00 | 1.00 | $200,000 | $0 |
Roll Value History
| 2026 | N/A | N/A | N/A | N/A | N/A |
| 2025 | $470,831 | $200,000 | $0 | $670,831 | $670,831 |
| 2024 | $477,087 | $170,000 | $0 | $647,087 | $647,087 |
| 2023 | $483,346 | $170,000 | $0 | $653,346 | $653,346 |
| 2022 | $406,575 | $100,000 | $0 | $506,575 | $506,575 |
| 2021 | $358,174 | $75,000 | $0 | $433,174 | $433,174 |
| 2020 | $350,375 | $75,000 | $0 | $425,375 | $425,375 |
| 2019 | $270,287 | $110,000 | $0 | $380,287 | $380,287 |
| 2018 | $223,088 | $110,000 | $0 | $333,088 | $333,088 |
| 2017 | $224,627 | $110,000 | $0 | $334,627 | $334,627 |
| 2016 | $181,745 | $85,000 | $0 | $266,745 | $266,745 |
| 2015 | $184,826 | $65,000 | $0 | $249,826 | $249,826 |
| 2014 | $187,906 | $55,000 | $0 | $242,906 | $242,906 |
| 2013 | $190,987 | $63,750 | $0 | $254,737 | $254,737 |
| 2012 | $194,067 | $63,750 | $0 | $257,817 | $257,817 |
| 2011 | $197,148 | $75,000 | $0 | $272,148 | $272,148 |
| 2010 | $216,993 | $75,000 | $0 | $291,993 | $291,993 |
| 2009 | $226,778 | $90,000 | $0 | $316,778 | $316,778 |
| 2008 | $230,196 | $87,980 | $0 | $318,176 | $318,176 |
| 2007 | $233,617 | $87,980 | $0 | $321,597 | $321,597 |
Deed and Sales History
| 1 | 09/26/2018 | WD | Warranty Deed | PACE, KEITH P | SCHMITT, ANTHONY | | | $387,500.00 | 36118 | 4452699 |
| 2 | 10/15/2001 | WD | Warranty Deed | HERRIGSTAD, HARVEY W | PACE, KEITH P | | | $250,000.00 | 14104 | 4000901 |
| 3 | 03/01/1980 | WD | Warranty Deed | URBICK, LEO P | HERRIGSTAD, HARVEY W | | | $92,000.00 | 893 | 366419 |
| 4 | 11/01/1978 | OTHER | Other - Misc. Documents | Unknown | URBICK, LEO P | | | $0.00 | 85865 | 343954 |
Payout Agreement
| No payout information available.. |