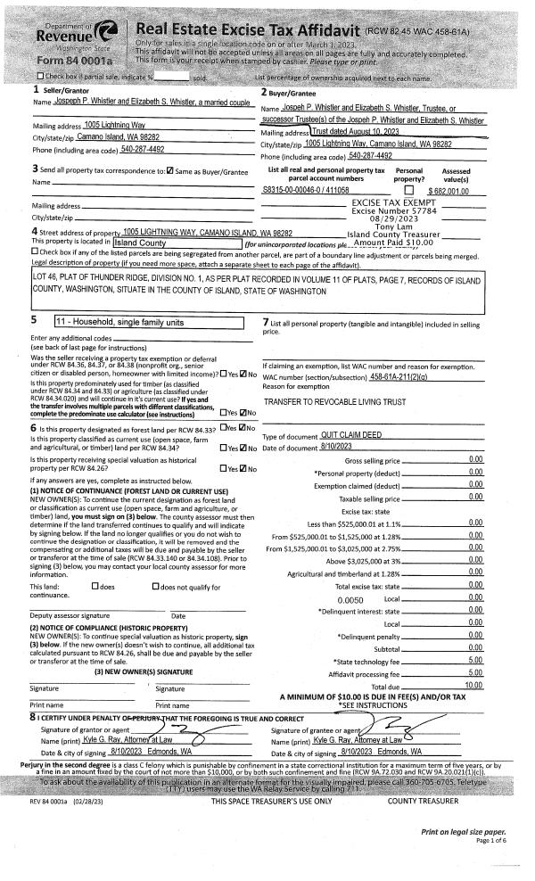
Property
Account |
| Property ID: | 235604 | Abbreviated Legal Description: | CORNET BAY HTS #3 LOT 46 & PT TR F: BG NWCR LOT 45 N36*W150' S43*W87.72 SELY ALG CANYON RD 118' ELY TPB |
| Geographic ID: | S6410-03-00046-0 | Agent Code: | |
| Type: | Real | | |
| Tax Area: | 110 - APPRAISER-OH Schl Dist, outside OH, improved & 1 acre or less | Land Use Code | 11 |
| Open Space: | N | DFL | N |
| Historic Property: | N | Remodel Property: | N |
| Multi-Family Redevelopment: | N | | |
| Township: | | Section: | |
| Range: | |
Location |
| Address: | 5139 ALTO LN OAK HARBOR, WA 98277 | Mapsco: | |
| Neighborhood: | Cycle 6 | Map ID: | 280 |
| Neighborhood CD: | 6 |
Owner |
| Name: | HENDERSON, KELLY M | Owner ID: | 30046 |
| Mailing Address: | 5139 ALTO LN OAK HARBOR, WA 98277 | % Ownership: | 100.0000000000% |
| | | Exemptions: | |
Taxes and Assessment Details
Values
| (+) Improvement Homesite Value: | + | $0 | |
| (+) Improvement Non-Homesite Value: | + | $327,959 | |
| (+) Land Homesite Value: | + | $0 | |
| (+) Land Non-Homesite Value: | + | $200,000 | |
| (+) Curr Use (HS): | + | $0 | $0 |
| (+) Curr Use (NHS): | + | $0 | $0 |
| | | -------------------------- | |
| (=) Market Value: | = | $527,959 | |
| (–) Productivity Loss: | – | $0 | |
| | | -------------------------- | |
| (=) Subtotal: | = | $527,959 | |
| (+) Senior Appraised Value: | + | $0 | |
| (+) Non-Senior Appraised Value: | + | $527,959 | |
| | | -------------------------- | |
| (=) Total Appraised Value: | = | $527,959 | |
| (–) Senior Exemption Loss: | – | $0 | |
| (–) Exemption Loss: | – | $0 | |
| | | -------------------------- | |
| (=) Taxable Value: | = | $527,959 | |
Taxing Jurisdiction
| Owner: | HENDERSON, KELLY M | | |
| % Ownership: | 100.0000000000% | | |
| Total Value: | $527,959 | | |
| Tax Area: | 110 - APPRAISER-OH Schl Dist, outside OH, improved & 1 acre or less |
| CF | Conservation Futures | 0.0316035091 | $527,959 | $527,959 | $16.69 | | |
| CEM1 | Cemetery #1 | 0.0040320932 | $527,959 | $527,959 | $2.13 | | |
| FIRE2 | Fire & Rescue Dist #2 N Whidbey GEN | 0.5475949600 | $527,959 | $527,959 | $289.11 | | |
| HOBOND | Hospital BOND | 0.1910887512 | $527,959 | $527,959 | $100.89 | | |
| HOGEN | Hospital GEN | 0.3902502903 | $527,959 | $527,959 | $206.04 | | |
| CE | County Current Expense | 0.3708482477 | $527,959 | $527,959 | $195.79 | | |
| CR | County Roads | 0.4584763726 | $527,959 | $527,959 | $242.06 | | |
| ISLANDEMS | Hospital GEN (EMS) | 0.5000000000 | $527,959 | $527,959 | $263.98 | | |
| LIB | Library Sno-Isle GEN | 0.3153421757 | $527,959 | $527,959 | $166.49 | | |
| NWHIDPRMT | P & R N Whidbey GEN | 0.2004466701 | $527,959 | $527,959 | $105.83 | | |
| SCH201MO | School 201 Enrichment | 1.8559231640 | $527,959 | $527,959 | $979.85 | | |
| ST | State School | 1.3035497053 | $527,959 | $527,959 | $688.22 | | |
| ST2 | State School Part 2 | 0.8169543533 | $527,959 | $527,959 | $431.32 | | |
| | Total Tax Rate: | 6.9861102925 | | | | | |
| | | | | Taxes w/Current Exemptions: | $3,688.40 | | |
| | | | | Taxes w/o Exemptions: | $3,688.40 | | |
Improvement / Building
| Improvement #1: | RESIDENTIAL | State Code: | Y | 2711.1 sqft | Value: | $327,959 |
| Bathrooms: | 4 | Bedrooms: | 3 | | Ceiling: | DRY WALL SPRAYED | Exterior Wall/Cover: | PLY/HARDBOARD T-111 | | Floor Covering: | CARPET/VINYL 80-20 | Floor Structure: | WOOD W/SUBFLOOR | | Foundation: | CONCRETE | Heating: | FHA OIL | | Interior Finish: | DRYWALL PAINT | Plumbing Fixture Cnt: | 13 | | Roof Slope: | 6" IN 12" | Roof Structure/Cover: | CJ ASPHALT |
|
| | Type | Description | Class CD | Sub Class CD | Year Built | Area |
| | BAS | BASE/MAIN FLOOR | 3 | 0 | 1971 | 1721.1 |
| | OP3 | OPEN PORCH W/ROOF | 3 | 0 | 1971 | 75.0 |
| | OP4 | OPEN PORCH W/CEILING-ROOF | 3 | 0 | 1971 | 45.5 |
| | AGR | ATTACHED GARAGE | 3 | 0 | 1971 | 497.2 |
| | OWP | OPEN WOOD PORCH W/STEPS | 3 | 0 | 1971 | 556.0 |
| | DWN | DOWNSTAIRS LIVING AREA | 3 | 0 | 1971 | 990.0 |
Sketch
Property Image
Land
| 1 | 15 | SQ (12001-21780) | 0.0000 | 0.00 | 0.00 | 0.00 | 1.00 | $200,000 | $0 |
Roll Value History
| 2026 | N/A | N/A | N/A | N/A | N/A |
| 2025 | $327,959 | $200,000 | $0 | $527,959 | $527,959 |
| 2024 | $332,629 | $170,000 | $0 | $502,629 | $502,629 |
| 2023 | $337,296 | $170,000 | $0 | $507,296 | $507,296 |
| 2022 | $292,751 | $100,000 | $0 | $392,751 | $392,751 |
| 2021 | $258,238 | $75,000 | $0 | $333,238 | $333,238 |
| 2020 | $252,528 | $75,000 | $0 | $327,528 | $327,528 |
| 2019 | $198,544 | $110,000 | $0 | $308,544 | $308,544 |
| 2018 | $199,232 | $110,000 | $0 | $309,232 | $309,232 |
| 2017 | $200,605 | $110,000 | $0 | $310,605 | $310,605 |
| 2016 | $175,506 | $85,000 | $0 | $260,506 | $260,506 |
| 2015 | $178,431 | $65,000 | $0 | $243,431 | $243,431 |
| 2014 | $181,356 | $55,000 | $0 | $236,356 | $236,356 |
| 2013 | $184,281 | $63,750 | $0 | $248,031 | $248,031 |
| 2012 | $187,206 | $63,750 | $0 | $250,956 | $250,956 |
| 2011 | $190,131 | $75,000 | $0 | $265,131 | $265,131 |
| 2010 | $205,472 | $75,000 | $0 | $280,472 | $280,472 |
| 2009 | $214,588 | $90,000 | $0 | $304,588 | $304,588 |
| 2008 | $217,546 | $87,980 | $0 | $305,526 | $305,526 |
| 2007 | $220,505 | $87,980 | $0 | $308,485 | $308,485 |
Deed and Sales History
| 1 | 01/29/2001 | WD | Warranty Deed | MAIER, ROBERT O | HENDERSON, KELLY M | | | $205,000.00 | 10331 | 20024541 |
| 2 | 01/01/1991 | QCD | Quit Claim Deed | MAIER, ROBERT O | MAIER, ROBERT O | | | $0.00 | 10701 | 91003159 |
| 3 | 09/01/1989 | WD | Warranty Deed | SCHAEFFER, JOAN L | MAIER, ROBERT O | | | $169,000.00 | 94260 | 89013979 |
| 4 | 01/01/1900 | OTHER | Other - Misc. Documents | Unknown | SCHAEFFER, JOAN L | | | $0.00 | 74759 | 0 |
Payout Agreement
| No payout information available.. |