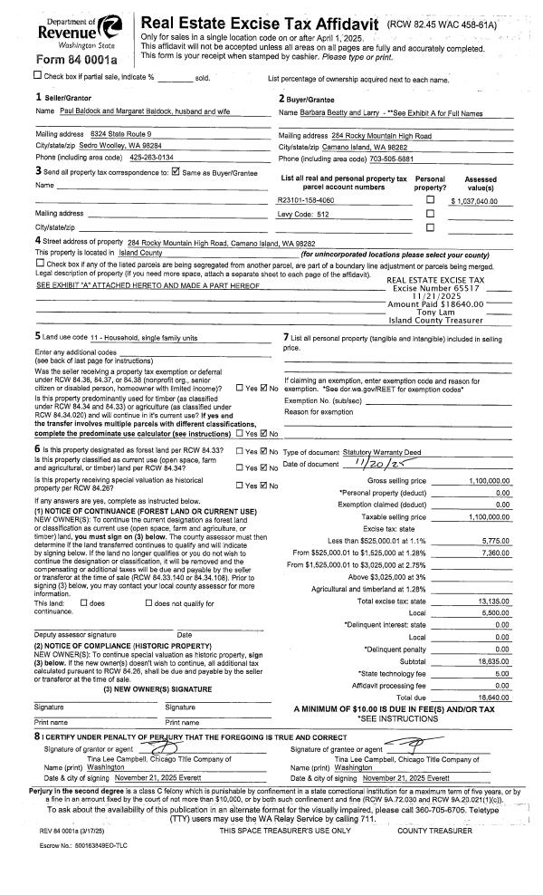
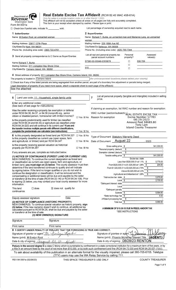
Property
Account |
| Property ID: | 235613 | Abbreviated Legal Description: | CORNET BAY HTS 3 LOT 47 |
| Geographic ID: | S6410-03-00047-0 | Agent Code: | |
| Type: | Real | | |
| Tax Area: | 110 - APPRAISER-OH Schl Dist, outside OH, improved & 1 acre or less | Land Use Code | 11 |
| Open Space: | N | DFL | N |
| Historic Property: | N | Remodel Property: | N |
| Multi-Family Redevelopment: | N | | |
| Township: | | Section: | |
| Range: | |
Location |
| Address: | 5141 ALTO LN OAK HARBOR, WA 98277 | Mapsco: | |
| Neighborhood: | Cycle 6 | Map ID: | 280 |
| Neighborhood CD: | 6 |
Owner |
| Name: | ACK HOMES LLC | Owner ID: | 315823 |
| Mailing Address: | 1040 NE 154TH ST SHORELINE, WA 98155 | % Ownership: | 100.0000000000% |
| | | Exemptions: | |
Taxes and Assessment Details
Values
| (+) Improvement Homesite Value: | + | $0 | |
| (+) Improvement Non-Homesite Value: | + | $335,164 | |
| (+) Land Homesite Value: | + | $0 | |
| (+) Land Non-Homesite Value: | + | $200,000 | |
| (+) Curr Use (HS): | + | $0 | $0 |
| (+) Curr Use (NHS): | + | $0 | $0 |
| | | -------------------------- | |
| (=) Market Value: | = | $535,164 | |
| (–) Productivity Loss: | – | $0 | |
| | | -------------------------- | |
| (=) Subtotal: | = | $535,164 | |
| (+) Senior Appraised Value: | + | $0 | |
| (+) Non-Senior Appraised Value: | + | $535,164 | |
| | | -------------------------- | |
| (=) Total Appraised Value: | = | $535,164 | |
| (–) Senior Exemption Loss: | – | $0 | |
| (–) Exemption Loss: | – | $0 | |
| | | -------------------------- | |
| (=) Taxable Value: | = | $535,164 | |
Taxing Jurisdiction
| Owner: | ACK HOMES LLC | | |
| % Ownership: | 100.0000000000% | | |
| Total Value: | $535,164 | | |
| Tax Area: | 110 - APPRAISER-OH Schl Dist, outside OH, improved & 1 acre or less |
| CF | Conservation Futures | 0.0316035091 | $535,164 | $535,164 | $16.91 | | |
| CEM1 | Cemetery #1 | 0.0040320932 | $535,164 | $535,164 | $2.16 | | |
| FIRE2 | Fire & Rescue Dist #2 N Whidbey GEN | 0.5475949600 | $535,164 | $535,164 | $293.05 | | |
| HOBOND | Hospital BOND | 0.1910887512 | $535,164 | $535,164 | $102.26 | | |
| HOGEN | Hospital GEN | 0.3902502903 | $535,164 | $535,164 | $208.85 | | |
| CE | County Current Expense | 0.3708482477 | $535,164 | $535,164 | $198.46 | | |
| CR | County Roads | 0.4584763726 | $535,164 | $535,164 | $245.36 | | |
| ISLANDEMS | Hospital GEN (EMS) | 0.5000000000 | $535,164 | $535,164 | $267.58 | | |
| LIB | Library Sno-Isle GEN | 0.3153421757 | $535,164 | $535,164 | $168.76 | | |
| NWHIDPRMT | P & R N Whidbey GEN | 0.2004466701 | $535,164 | $535,164 | $107.27 | | |
| SCH201MO | School 201 Enrichment | 1.8559231640 | $535,164 | $535,164 | $993.22 | | |
| ST | State School | 1.3035497053 | $535,164 | $535,164 | $697.61 | | |
| ST2 | State School Part 2 | 0.8169543533 | $535,164 | $535,164 | $437.20 | | |
| | Total Tax Rate: | 6.9861102925 | | | | | |
| | | | | Taxes w/Current Exemptions: | $3,738.69 | | |
| | | | | Taxes w/o Exemptions: | $3,738.69 | | |
Improvement / Building
| Improvement #1: | RESIDENTIAL | State Code: | Y | 2397.0 sqft | Value: | $335,164 |
| Bathrooms: | 2 | Bedrooms: | 2 | | Ceiling: | TONGUE & GROOVE | Cooling: | HEAT PUMP/CONV/V | | Exterior Wall/Cover: | PLY/HARDBOARD T-111 | Floor Covering: | CARPET/VINYL 80-20 | | Floor Structure: | WOOD W/SUBFLOOR | Foundation: | CONCRETE | | Interior Finish: | DRYWALL PAINT | Plumbing Fixture Cnt: | 10 | | Roof Slope: | FLAT | Roof Structure/Cover: | BEAM ASPHALT |
|
| | Type | Description | Class CD | Sub Class CD | Year Built | Area |
| | BAS | BASE/MAIN FLOOR | 3 | 0 | 1983 | 1292.0 |
| | BGR | BASEMENT GARAGE | 3 | 0 | 1983 | 576.0 |
| | UPS | UPPER STORY | 3 | 0 | 1983 | 769.0 |
| | BAW | BALCONY WOOD RAIL | 3 | 0 | 1983 | 87.5 |
| | OWP | OPEN WOOD PORCH W/STEPS | 3 | 0 | 1983 | 86.0 |
| | OWP | OPEN WOOD PORCH W/STEPS | 3 | 0 | 1983 | 182.0 |
| | DWN | DOWNSTAIRS LIVING AREA | 3 | 0 | 1983 | 336.0 |
| | OWP | OPEN WOOD PORCH W/STEPS | 3 | 0 | 1983 | 100.0 |
Sketch
Property Image
Land
| 1 | 15 | SQ (12001-21780) | 0.5800 | 25264.80 | 0.00 | 0.00 | 1.00 | $200,000 | $0 |
Roll Value History
| 2026 | N/A | N/A | N/A | N/A | N/A |
| 2025 | $335,164 | $200,000 | $0 | $535,164 | $535,164 |
| 2024 | $339,561 | $170,000 | $0 | $509,561 | $509,561 |
| 2023 | $343,956 | $170,000 | $0 | $513,956 | $513,956 |
| 2022 | $318,460 | $100,000 | $0 | $418,460 | $418,460 |
| 2021 | $280,421 | $75,000 | $0 | $355,421 | $355,421 |
| 2020 | $273,998 | $75,000 | $0 | $348,998 | $348,998 |
| 2019 | $213,623 | $110,000 | $0 | $323,623 | $323,623 |
| 2018 | $214,272 | $110,000 | $0 | $324,272 | $324,272 |
| 2017 | $215,570 | $110,000 | $0 | $325,570 | $325,570 |
| 2016 | $190,079 | $85,000 | $0 | $275,079 | $275,079 |
| 2015 | $192,516 | $65,000 | $0 | $257,516 | $257,516 |
| 2014 | $194,954 | $55,000 | $0 | $249,954 | $249,954 |
| 2013 | $197,391 | $63,750 | $0 | $261,141 | $261,141 |
| 2012 | $199,828 | $63,750 | $0 | $263,578 | $263,578 |
| 2011 | $181,260 | $75,000 | $0 | $256,260 | $256,260 |
| 2010 | $189,993 | $75,000 | $0 | $264,993 | $264,993 |
| 2009 | $198,201 | $90,000 | $0 | $288,201 | $288,201 |
| 2008 | $200,713 | $126,140 | $0 | $326,853 | $326,853 |
| 2007 | $203,227 | $126,140 | $0 | $329,367 | $329,367 |
Deed and Sales History
| 1 | 03/13/2025 | QCD | Quit Claim Deed | KEYES, KENDAL | ACK HOMES LLC | | | $0.00 | 62840 | 4583375 |
| 2 | 03/28/2022 | WD | Warranty Deed | MACK, KEITH A | KEYES, KENDAL | | | $920,000.00 | 52596 | 4542786 |
| 3 | 07/07/2000 | WD | Warranty Deed | BULWICZ, STEVEN | MACK, KEITH A | | | $215,000.00 | 2558 | 20012175 |
| 4 | 03/01/1983 | WD | Warranty Deed | OVERTON, CHRISTOPHER G | BULWICZ, STEVEN | | | $17,000.00 | 31036 | 408602 |
| 5 | 01/01/1900 | OTHER | Other - Misc. Documents | Unknown | OVERTON, CHRISTOPHER G | | | $0.00 | 0 | 0 |
Payout Agreement
| No payout information available.. |