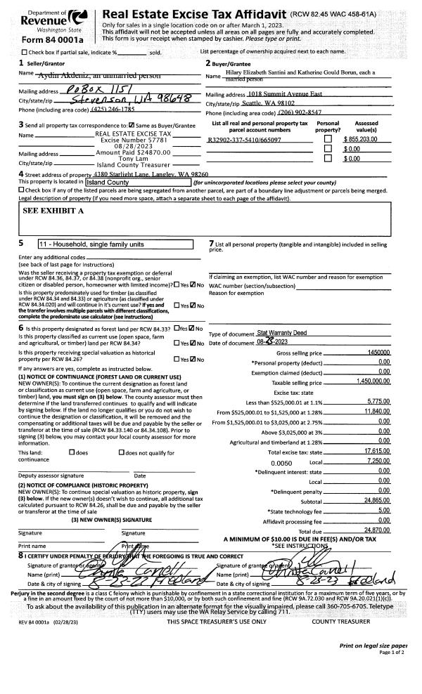
Property
Account |
| Property ID: | 235659 | Abbreviated Legal Description: | CORNET BAY HTS 3 PT LOTS 50 & 51 DESC: BG NWCR LOT 52 S79*E112.42' N10*E15' S79*E30' N175' N76*W110.58' S45*E40' TO NECR LOT 49 S36*W83.95' TP CUR TO SE ON SD CUR 67.85' S36*W43.38' TPB SUB EZS |
| Geographic ID: | S6410-03-00051-0 | Agent Code: | |
| Type: | Real | | |
| Tax Area: | 110 - APPRAISER-OH Schl Dist, outside OH, improved & 1 acre or less | Land Use Code | 11 |
| Open Space: | N | DFL | N |
| Historic Property: | N | Remodel Property: | N |
| Multi-Family Redevelopment: | N | | |
| Township: | | Section: | |
| Range: | |
Location |
| Address: | 5158 ALTO LN OAK HARBOR, WA 98277 | Mapsco: | |
| Neighborhood: | Cycle 6 | Map ID: | 280 |
| Neighborhood CD: | 6 |
Owner |
| Name: | TRUJILLO, CRAIG G | Owner ID: | 312276 |
| Mailing Address: | 5158 ALTO LN OAK HARBOR, WA 98277 | % Ownership: | 100.0000000000% |
| | | Exemptions: | |
Taxes and Assessment Details
Values
| (+) Improvement Homesite Value: | + | $0 | |
| (+) Improvement Non-Homesite Value: | + | $272,442 | |
| (+) Land Homesite Value: | + | $0 | |
| (+) Land Non-Homesite Value: | + | $170,000 | |
| (+) Curr Use (HS): | + | $0 | $0 |
| (+) Curr Use (NHS): | + | $0 | $0 |
| | | -------------------------- | |
| (=) Market Value: | = | $442,442 | |
| (–) Productivity Loss: | – | $0 | |
| | | -------------------------- | |
| (=) Subtotal: | = | $442,442 | |
| (+) Senior Appraised Value: | + | $0 | |
| (+) Non-Senior Appraised Value: | + | $442,442 | |
| | | -------------------------- | |
| (=) Total Appraised Value: | = | $442,442 | |
| (–) Senior Exemption Loss: | – | $0 | |
| (–) Exemption Loss: | – | $0 | |
| | | -------------------------- | |
| (=) Taxable Value: | = | $442,442 | |
Taxing Jurisdiction
| Owner: | TRUJILLO, CRAIG G | | |
| % Ownership: | 100.0000000000% | | |
| Total Value: | $442,442 | | |
| Tax Area: | 110 - APPRAISER-OH Schl Dist, outside OH, improved & 1 acre or less |
| CF | Conservation Futures | 0.0316035091 | $442,442 | $442,442 | $13.98 | | |
| CEM1 | Cemetery #1 | 0.0040320932 | $442,442 | $442,442 | $1.78 | | |
| FIRE2 | Fire & Rescue Dist #2 N Whidbey GEN | 0.5475949600 | $442,442 | $442,442 | $242.28 | | |
| HOBOND | Hospital BOND | 0.1910887512 | $442,442 | $442,442 | $84.55 | | |
| HOGEN | Hospital GEN | 0.3902502903 | $442,442 | $442,442 | $172.66 | | |
| CE | County Current Expense | 0.3708482477 | $442,442 | $442,442 | $164.08 | | |
| CR | County Roads | 0.4584763726 | $442,442 | $442,442 | $202.85 | | |
| ISLANDEMS | Hospital GEN (EMS) | 0.5000000000 | $442,442 | $442,442 | $221.22 | | |
| LIB | Library Sno-Isle GEN | 0.3153421757 | $442,442 | $442,442 | $139.52 | | |
| NWHIDPRMT | P & R N Whidbey GEN | 0.2004466701 | $442,442 | $442,442 | $88.69 | | |
| SCH201MO | School 201 Enrichment | 1.8559231640 | $442,442 | $442,442 | $821.14 | | |
| ST | State School | 1.3035497053 | $442,442 | $442,442 | $576.75 | | |
| ST2 | State School Part 2 | 0.8169543533 | $442,442 | $442,442 | $361.45 | | |
| | Total Tax Rate: | 6.9861102925 | | | | | |
| | | | | Taxes w/Current Exemptions: | $3,090.95 | | |
| | | | | Taxes w/o Exemptions: | $3,090.95 | | |
Improvement / Building
| Improvement #1: | RESIDENTIAL | State Code: | Y | 1225.1 sqft | Value: | $272,442 |
| Bathrooms: | 1 | Bedrooms: | 0 | | Ceiling: | TONGUE & GROOVE | Exterior Wall/Cover: | WOOD SIDING | | Floor Covering: | VINYL/HARDWOOD 20-80 | Floor Structure: | WOOD W/SUBFLOOR | | Foundation: | CONCRETE | Heating: | FHA GAS | | Interior Finish: | DRYWALL PAINT | Plumbing Fixture Cnt: | 7 | | Roof Slope: | 12" IN 12" | Roof Structure/Cover: | BEAM ASPHALT |
|
| | Type | Description | Class CD | Sub Class CD | Year Built | Area |
| | BAS | BASE/MAIN FLOOR | 3 | 0 | 1992 | 867.1 |
| | BIG | BUILT IN GARAGE | 3 | 0 | 1992 | 1014.8 |
| | UPS | UPPER STORY | 3 | 0 | 1992 | 358.0 |
| | OWP | OPEN WOOD PORCH W/STEPS | 3 | 0 | 1992 | 463.0 |
| | OWP | OPEN WOOD PORCH W/STEPS | 3 | 0 | 1992 | 147.6 |
Sketch
Property Image
Land
| 1 | 16 | AC (00.51-01.00) | 0.0000 | 0.00 | 0.00 | 0.00 | 1.00 | $170,000 | $0 |
Roll Value History
| 2026 | N/A | N/A | N/A | N/A | N/A |
| 2025 | $272,442 | $170,000 | $0 | $442,442 | $442,442 |
| 2024 | $276,063 | $170,000 | $0 | $446,063 | $446,063 |
| 2023 | $279,684 | $170,000 | $0 | $449,684 | $449,684 |
| 2022 | $203,780 | $125,000 | $0 | $328,780 | $328,780 |
| 2021 | $179,730 | $95,000 | $0 | $274,730 | $274,730 |
| 2020 | $175,679 | $95,000 | $0 | $270,679 | $270,679 |
| 2019 | $126,166 | $125,000 | $0 | $251,166 | $251,166 |
| 2018 | $126,596 | $125,000 | $0 | $251,596 | $251,596 |
| 2017 | $127,457 | $125,000 | $0 | $252,457 | $252,457 |
| 2016 | $133,393 | $100,000 | $0 | $233,393 | $233,393 |
| 2015 | $135,169 | $75,000 | $0 | $210,169 | $210,169 |
| 2014 | $136,949 | $75,000 | $0 | $211,949 | $211,949 |
| 2013 | $138,727 | $76,500 | $0 | $215,227 | $215,227 |
| 2012 | $140,507 | $76,500 | $0 | $217,007 | $217,007 |
| 2011 | $142,285 | $90,000 | $0 | $232,285 | $232,285 |
| 2010 | $146,627 | $90,000 | $0 | $236,627 | $236,627 |
| 2009 | $152,930 | $126,140 | $0 | $279,070 | $279,070 |
| 2008 | $154,720 | $126,140 | $0 | $280,860 | $280,860 |
| 2007 | $156,534 | $126,140 | $0 | $282,674 | $282,674 |
Deed and Sales History
| 1 | 04/19/2024 | QCD | Quit Claim Deed | TRUJILLO, KELLI LYNN | TRUJILLO, CRAIG G | | | $0.00 | 59888 | 4572093 |
| 2 | 04/19/2024 | QCD | Quit Claim Deed | TRUJILLO TTEE, CRAIG G | TRUJILLO, CRAIG G | | | $0.00 | 59887 | 4572093 |
| 3 | 02/24/2022 | WD | Warranty Deed | TRUJILLO, CRAIG G | TRUJILLO TTEE, CRAIG G | | | $0.00 | 53582 | 4547142 |
| 4 | 07/28/2020 | WD | Warranty Deed | GUERRANT, AMANDA M | TRUJILLO, CRAIG G | | | $267,700.00 | 44012 | 4492593 |
| 5 | 07/24/2020 | QCD | Quit Claim Deed | COLEMAN JTWROS, MARTIN L | GUERRANT, AMANDA M | | | $0.00 | 43998 | 4492529 |
| 6 | 07/07/2017 | QCD | Quit Claim Deed | COLEMAN, MARTIN L | COLEMAN JTWROS, MARTIN L | | | $0.00 | 30110 | 4425845 |
| 7 | 09/25/2014 | QCD | Quit Claim Deed | COLEMAN, MARTIN L / PRISCILLA | COLEMAN, MARTIN L | | | $0.00 | 16937 | 4366043 |
| 8 | 06/01/1991 | WD | Warranty Deed | ADKINS, JOYCE A | COLEMAN, MARTIN L | | | $0.00 | 11935 | 91008017 |
| 9 | 05/01/1991 | OTHER | Other - Misc. Documents | COLEMAN, MARTIN L | ADKINS, JOYCE A | | | $0.00 | 64224 | 91005368 |
| 10 | 05/01/1991 | REC | Real Estate Contract | ADKINS, JOYCE A | COLEMAN, MARTIN L | | | $45,000.00 | 11739 | 91007438 |
| 11 | 06/01/1990 | DECREE | Divorce Decree/Legal Separation | HULBERT, EDWARD H | ADKINS, JOYCE A | | | $0.00 | 3372 | 90010979 |
| 12 | 10/01/1986 | QCD | Quit Claim Deed | HULBERT, EDWARD H | HULBERT, EDWARD H | | | $0.00 | 62785 | 86012569 |
| 13 | 07/01/1985 | REC | Real Estate Contract | MCKINLEY, DONALD E | HULBERT, EDWARD H | | | $3,100.00 | 52005 | 85007875 |
| 14 | 01/01/1900 | OTHER | Other - Misc. Documents | Unknown | MCKINLEY, DONALD E | | | $0.00 | 0 | 0 |
Payout Agreement
| No payout information available.. |