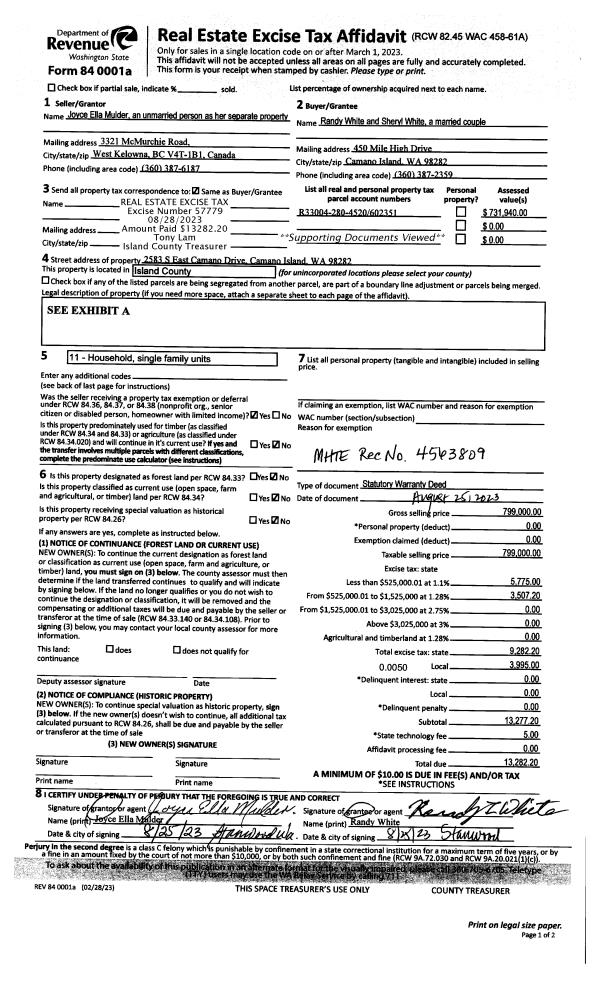
Property
Account |
| Property ID: | 235695 | Abbreviated Legal Description: | CORNET BAY HTS 3 LOT 54 & S/2 LOT 53 |
| Geographic ID: | S6410-03-00054-0 | Agent Code: | |
| Type: | Real | | |
| Tax Area: | 110 - APPRAISER-OH Schl Dist, outside OH, improved & 1 acre or less | Land Use Code | 11 |
| Open Space: | N | DFL | N |
| Historic Property: | N | Remodel Property: | N |
| Multi-Family Redevelopment: | N | | |
| Township: | | Section: | |
| Range: | |
Location |
| Address: | 5126 ALTO LN OAK HARBOR, WA 98277 | Mapsco: | |
| Neighborhood: | Cycle 6 | Map ID: | 280 |
| Neighborhood CD: | 6 |
Owner |
| Name: | DAVIS, RANDIE | Owner ID: | 191437 |
| Mailing Address: | SHERRI DAVIS 5126 ALTO LN OAK HARBOR, WA 98277 | % Ownership: | 100.0000000000% |
| | | Exemptions: | |
Taxes and Assessment Details
Values
| (+) Improvement Homesite Value: | + | $0 | |
| (+) Improvement Non-Homesite Value: | + | $194,369 | |
| (+) Land Homesite Value: | + | $0 | |
| (+) Land Non-Homesite Value: | + | $200,000 | |
| (+) Curr Use (HS): | + | $0 | $0 |
| (+) Curr Use (NHS): | + | $0 | $0 |
| | | -------------------------- | |
| (=) Market Value: | = | $394,369 | |
| (–) Productivity Loss: | – | $0 | |
| | | -------------------------- | |
| (=) Subtotal: | = | $394,369 | |
| (+) Senior Appraised Value: | + | $0 | |
| (+) Non-Senior Appraised Value: | + | $394,369 | |
| | | -------------------------- | |
| (=) Total Appraised Value: | = | $394,369 | |
| (–) Senior Exemption Loss: | – | $0 | |
| (–) Exemption Loss: | – | $0 | |
| | | -------------------------- | |
| (=) Taxable Value: | = | $394,369 | |
Taxing Jurisdiction
| Owner: | DAVIS, RANDIE | | |
| % Ownership: | 100.0000000000% | | |
| Total Value: | $394,369 | | |
| Tax Area: | 110 - APPRAISER-OH Schl Dist, outside OH, improved & 1 acre or less |
| CF | Conservation Futures | 0.0316035091 | $394,369 | $394,369 | $12.46 | | |
| CEM1 | Cemetery #1 | 0.0040320932 | $394,369 | $394,369 | $1.59 | | |
| FIRE2 | Fire & Rescue Dist #2 N Whidbey GEN | 0.5475949600 | $394,369 | $394,369 | $215.95 | | |
| HOBOND | Hospital BOND | 0.1910887512 | $394,369 | $394,369 | $75.36 | | |
| HOGEN | Hospital GEN | 0.3902502903 | $394,369 | $394,369 | $153.90 | | |
| CE | County Current Expense | 0.3708482477 | $394,369 | $394,369 | $146.25 | | |
| CR | County Roads | 0.4584763726 | $394,369 | $394,369 | $180.81 | | |
| ISLANDEMS | Hospital GEN (EMS) | 0.5000000000 | $394,369 | $394,369 | $197.18 | | |
| LIB | Library Sno-Isle GEN | 0.3153421757 | $394,369 | $394,369 | $124.36 | | |
| NWHIDPRMT | P & R N Whidbey GEN | 0.2004466701 | $394,369 | $394,369 | $79.05 | | |
| SCH201MO | School 201 Enrichment | 1.8559231640 | $394,369 | $394,369 | $731.92 | | |
| ST | State School | 1.3035497053 | $394,369 | $394,369 | $514.08 | | |
| ST2 | State School Part 2 | 0.8169543533 | $394,369 | $394,369 | $322.18 | | |
| | Total Tax Rate: | 6.9861102925 | | | | | |
| | | | | Taxes w/Current Exemptions: | $2,755.09 | | |
| | | | | Taxes w/o Exemptions: | $2,755.09 | | |
Improvement / Building
| Improvement #1: | RESIDENTIAL | State Code: | Y | 1123.2 sqft | Value: | $194,369 |
| Bathrooms: | 1.5 | Bedrooms: | 1 | | Ceiling: | TONGUE & GROOVE | Cooling: | HEAT PUMP/CONV/V | | Exterior Wall/Cover: | WOOD SIDING | Floor Covering: | CARPET/VINYL 60-40 | | Floor Structure: | WOOD W/SUBFLOOR | Foundation: | CONCRETE | | Interior Finish: | DRYWALL PAINT | Plumbing Fixture Cnt: | 8 | | Roof Slope: | 12" IN 12" | Roof Structure/Cover: | CJ ASPHALT |
|
| | Type | Description | Class CD | Sub Class CD | Year Built | Area |
| | BAS | BASE/MAIN FLOOR | 3 | 0 | 1967 | 819.2 |
| | OP3 | OPEN PORCH W/ROOF | 3 | 0 | 1967 | 24.0 |
| | OP3 | OPEN PORCH W/ROOF | 3 | 0 | 1967 | 361.5 |
| | LOF | LOFT | 3 | 0 | 1967 | 304.0 |
| | DGR | DETACHED GARAGE | 3 | 0 | 1967 | 676.0 |
Sketch
| No sketches available for this property. |
Property Image
Land
| 1 | 15 | SQ (12001-21780) | 0.0000 | 0.00 | 0.00 | 0.00 | 1.00 | $200,000 | $0 |
Roll Value History
| 2026 | N/A | N/A | N/A | N/A | N/A |
| 2025 | $194,369 | $200,000 | $0 | $394,369 | $394,369 |
| 2024 | $197,259 | $170,000 | $0 | $367,259 | $367,259 |
| 2023 | $200,149 | $170,000 | $0 | $370,149 | $370,149 |
| 2022 | $160,292 | $100,000 | $0 | $260,292 | $260,292 |
| 2021 | $141,554 | $75,000 | $0 | $216,554 | $216,554 |
| 2020 | $138,257 | $75,000 | $0 | $213,257 | $213,257 |
| 2019 | $93,201 | $110,000 | $0 | $203,201 | $203,201 |
| 2018 | $93,548 | $110,000 | $0 | $203,548 | $203,548 |
| 2017 | $94,240 | $110,000 | $0 | $204,240 | $204,240 |
| 2016 | $72,850 | $85,000 | $0 | $157,850 | $157,850 |
| 2015 | $74,224 | $65,000 | $0 | $139,224 | $139,224 |
| 2014 | $75,600 | $55,000 | $0 | $130,600 | $130,600 |
| 2013 | $76,974 | $63,750 | $0 | $140,724 | $140,724 |
| 2012 | $84,973 | $63,750 | $0 | $148,723 | $148,723 |
| 2011 | $86,463 | $75,000 | $0 | $161,463 | $161,463 |
| 2010 | $96,139 | $75,000 | $0 | $171,139 | $171,139 |
| 2009 | $100,153 | $87,980 | $0 | $188,133 | $188,133 |
| 2008 | $101,703 | $87,980 | $0 | $189,683 | $189,683 |
| 2007 | $103,253 | $87,980 | $0 | $191,233 | $191,233 |
Deed and Sales History
| 1 | 10/20/2003 | QCD | Quit Claim Deed | DAVIS, ANITA | DAVIS, RANDIE | | | $500.00 | 34761 | 4080069 |
| 2 | 10/02/2001 | BLA | DNU - Boundary Line Adjustment | DAVIS, ANITA | DAVIS, ANITA | | | $0.00 | 69115 | 20024593 |
| 3 | 01/29/2001 | OTHER | Other - Misc. Documents | DAVIS, JAMES B | DAVIS, ANITA | | | $0.00 | 68944 | 96020589 |
| 4 | 01/01/1900 | OTHER | Other - Misc. Documents | Unknown | DAVIS, JAMES B | | | $0.00 | 0 | 0 |
Payout Agreement
| No payout information available.. |