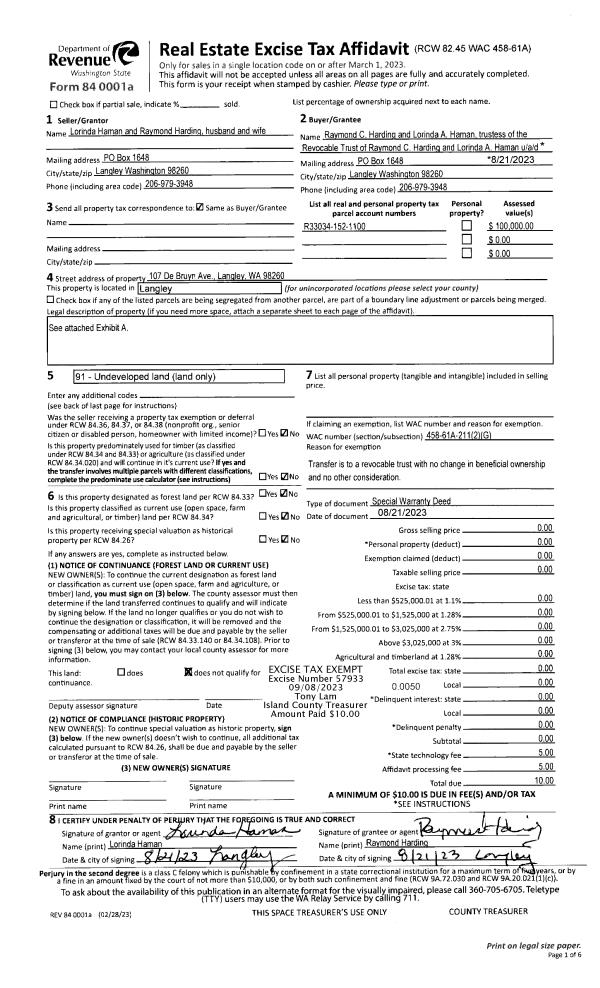
Property
Account |
| Property ID: | 236391 | Abbreviated Legal Description: | COUPEVILLE LOTS 7 & 8 BLK 15 EX N13' AF#358141 L/C A#30087 AF#404698 |
| Geographic ID: | S6415-00-15007-0 | Agent Code: | |
| Type: | Real | | |
| Tax Area: | 300 - APPRAISER-Cpvl Schl Dist, in Cpvl | Land Use Code | 11 |
| Open Space: | N | DFL | N |
| Historic Property: | N | Remodel Property: | N |
| Multi-Family Redevelopment: | N | | |
| Township: | | Section: | |
| Range: | |
Location |
| Address: | 402 NE 8TH ST COUPEVILLE, WA 98239 | Mapsco: | |
| Neighborhood: | Cycle 2 | Map ID: | 175 |
| Neighborhood CD: | 2 |
Owner |
| Name: | BRICKER TTEE, LAURENCE J | Owner ID: | 312747 |
| Mailing Address: | LYNN DEE BRICKER TTEE 9305 SW 50TH AVE PORTLAND, WA 97219 | % Ownership: | 100.0000000000% |
| | | Exemptions: | |
Taxes and Assessment Details
Values
| (+) Improvement Homesite Value: | + | $0 | |
| (+) Improvement Non-Homesite Value: | + | $303,094 | |
| (+) Land Homesite Value: | + | $0 | |
| (+) Land Non-Homesite Value: | + | $260,000 | |
| (+) Curr Use (HS): | + | $0 | $0 |
| (+) Curr Use (NHS): | + | $0 | $0 |
| | | -------------------------- | |
| (=) Market Value: | = | $563,094 | |
| (–) Productivity Loss: | – | $0 | |
| | | -------------------------- | |
| (=) Subtotal: | = | $563,094 | |
| (+) Senior Appraised Value: | + | $0 | |
| (+) Non-Senior Appraised Value: | + | $563,094 | |
| | | -------------------------- | |
| (=) Total Appraised Value: | = | $563,094 | |
| (–) Senior Exemption Loss: | – | $0 | |
| (–) Exemption Loss: | – | $0 | |
| | | -------------------------- | |
| (=) Taxable Value: | = | $563,094 | |
Taxing Jurisdiction
| Owner: | BRICKER TTEE, LAURENCE J | | |
| % Ownership: | 100.0000000000% | | |
| Total Value: | $563,094 | | |
| Tax Area: | 300 - APPRAISER-Cpvl Schl Dist, in Cpvl |
| CF | Conservation Futures | 0.0316035091 | $563,094 | $563,094 | $17.80 | | |
| CEM2 | Cemetery #2 | 0.0095056933 | $563,094 | $563,094 | $5.35 | | |
| COUP | City: Town of Coupeville | 0.8426414490 | $563,094 | $563,094 | $474.49 | | |
| FIRE5 | Fire & Rescue Dist #5 C Whidbey GEN | 1.2008080668 | $563,094 | $563,094 | $676.17 | | |
| FIRE5BOND | Fire & Rescue Dist #5 C Whidbey BOND | 0.1400090713 | $563,094 | $563,094 | $78.84 | | |
| HOBOND | Hospital BOND | 0.1910887512 | $563,094 | $563,094 | $107.60 | | |
| HOGEN | Hospital GEN | 0.3902502903 | $563,094 | $563,094 | $219.75 | | |
| CE | County Current Expense | 0.3708482477 | $563,094 | $563,094 | $208.82 | | |
| ISLANDEMS | Hospital GEN (EMS) | 0.5000000000 | $563,094 | $563,094 | $281.55 | | |
| LIB | Library Sno-Isle GEN | 0.3153421757 | $563,094 | $563,094 | $177.57 | | |
| LIBCAP | Library Sno-Isle BOND (Cap Fac Imp Area) | 0.0543427938 | $563,094 | $563,094 | $30.60 | | |
| POCOUP | Port of Coupeville GEN | 0.1093371703 | $563,094 | $563,094 | $61.57 | | |
| POCOUPIDD | Port of Coupeville IDD | 0.3409740022 | $563,094 | $563,094 | $192.00 | | |
| COUPSDTECH | School 204 CP (TECH) | 0.7545480007 | $563,094 | $563,094 | $424.88 | | |
| SCH204MO | School 204 Enrichment | 0.6716186034 | $563,094 | $563,094 | $378.18 | | |
| ST | State School | 1.3035497053 | $563,094 | $563,094 | $734.02 | | |
| ST2 | State School Part 2 | 0.8169543533 | $563,094 | $563,094 | $460.02 | | |
| | Total Tax Rate: | 8.0434218834 | | | | | |
| | | | | Taxes w/Current Exemptions: | $4,529.21 | | |
| | | | | Taxes w/o Exemptions: | $4,529.21 | | |
Improvement / Building
| Improvement #1: | RESIDENTIAL | State Code: | Y | 1556.7 sqft | Value: | $303,094 |
| Bathrooms: | 2 | Bedrooms: | 3 | | Ceiling: | TONGUE & GROOVE | Exterior Wall/Cover: | WOOD SIDING | | Floor Covering: | VINYL TILE/HARWD 20-80 | Floor Structure: | WOOD W/SUBFLOOR | | Foundation: | CONCRETE | Heating: | FHA GAS | | Interior Finish: | DRYWALL PAINT | Plumbing Fixture Cnt: | 10 | | Roof Slope: | 5" IN 12" | Roof Structure/Cover: | CJ ASPHALT |
|
| | Type | Description | Class CD | Sub Class CD | Year Built | Area |
| | BAS | BASE/MAIN FLOOR | 3 | 0 | 1983 | 868.7 |
| | OP1 | OPEN PORCH SLAB | 3 | 0 | 1983 | 189.0 |
| | OP1 | OPEN PORCH SLAB | 3 | 0 | 1983 | 597.4 |
| | OP4 | OPEN PORCH W/CEILING-ROOF | 3 | 0 | 1983 | 54.0 |
| | AGR | ATTACHED GARAGE | 3 | 0 | 1983 | 463.2 |
| | UPS | UPPER STORY | 3 | 0 | 1983 | 688.0 |
| | OWP | OPEN WOOD PORCH W/STEPS | 3 | 0 | 1983 | 412.4 |
| | OWR | OPEN WOOD PORCH W/STEPS/ROOF | 3 | 0 | 1983 | 52.3 |
Sketch
| No sketches available for this property. |
Property Image
Land
| 1 | HS | HOMESITE | 0.1997 | 8698.93 | 0.00 | 0.00 | 1.00 | $260,000 | $0 |
Roll Value History
| 2026 | N/A | N/A | N/A | N/A | N/A |
| 2025 | $303,094 | $260,000 | $0 | $563,094 | $563,094 |
| 2024 | $299,065 | $240,000 | $0 | $539,065 | $539,065 |
| 2023 | $303,094 | $240,000 | $0 | $543,094 | $543,094 |
| 2022 | $278,094 | $200,000 | $0 | $478,094 | $478,094 |
| 2021 | $244,991 | $150,000 | $0 | $394,991 | $394,991 |
| 2020 | $238,967 | $130,000 | $0 | $368,967 | $368,967 |
| 2019 | $174,441 | $170,000 | $0 | $344,441 | $344,441 |
| 2018 | $156,986 | $150,000 | $0 | $306,986 | $306,986 |
| 2017 | $158,023 | $125,000 | $0 | $283,023 | $283,023 |
| 2016 | $160,343 | $115,000 | $0 | $275,343 | $275,343 |
| 2015 | $162,662 | $90,000 | $0 | $252,662 | $252,662 |
| 2014 | $164,982 | $85,000 | $0 | $249,982 | $249,982 |
| 2013 | $167,300 | $85,000 | $0 | $252,300 | $252,300 |
| 2012 | $173,523 | $89,250 | $0 | $262,773 | $262,773 |
| 2011 | $175,841 | $105,000 | $0 | $280,841 | $280,841 |
| 2010 | $188,671 | $105,000 | $0 | $293,671 | $293,671 |
| 2009 | $197,134 | $125,000 | $0 | $322,134 | $322,134 |
| 2008 | $200,128 | $134,000 | $0 | $334,128 | $334,128 |
| 2007 | $203,140 | $105,000 | $0 | $308,140 | $308,140 |
Deed and Sales History
| 1 | 06/12/2024 | QCD | Quit Claim Deed | BRICKER, LAURENCE | BRICKER TTEE, LAURENCE J | | | $0.00 | 60307 | 4573399 |
| 2 | 08/28/2022 | PRD | Personal Representatives Deed | BRICKER, J A | BRICKER, LAURENCE | | | $0.00 | 55686 | 4556056 |
| 3 | 08/07/2013 | OTHER | Other - Misc. Documents | BRICKER, J A | BRICKER, J A | | | $0.00 | 12326 | 4346014 |
| 4 | 11/14/2005 | 5 | DNU - Marriage License/Name Change | BRICKER, J A | BRICKER, J A | | | $0.00 | 70745 | 0 |
| 5 | 07/01/1994 | WD | Warranty Deed | NIEDER, MICHAEL | BRICKER, J A | | | $169,000.00 | 43077 | 94016674 |
| 6 | 12/01/1982 | QCD | Quit Claim Deed | CANADAY, RICHARD E | NIEDER, MICHAEL | | | $0.00 | 22938 | 403495 |
| 7 | 12/01/1982 | WD | Warranty Deed | NIEDER, MICHAEL | CANADAY, RICHARD E | | | $14,000.00 | 22939 | 403496 |
| 8 | 07/01/1981 | TRUSTEED | Trustee's Deed | IRVING, TIM | NIEDER, MICHAEL | | | $5,972.00 | 59281 | 0 |
| 9 | 10/01/1979 | EXECUTORD | Executor Deed | IRVING, TIM | IRVING, TIM | | | $12,500.00 | 94927 | 359968 |
| 10 | 10/01/1979 | REC | Real Estate Contract | MARSH, KENNETH A | IRVING, TIM | | | $12,500.00 | 2880 | 359968 |
| 11 | 01/01/1900 | OTHER | Other - Misc. Documents | Unknown | MARSH, KENNETH A | | | $0.00 | 0 | 0 |
Payout Agreement
| No payout information available.. |