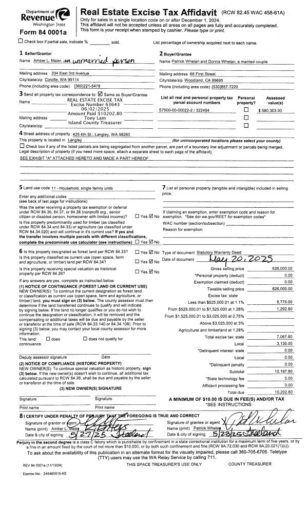
Property
Account |
| Property ID: | 236792 | Abbreviated Legal Description: | COUPEVILLE LOT 1 BLK 27 |
| Geographic ID: | S6415-00-27001-0 | Agent Code: | |
| Type: | Real | | |
| Tax Area: | 300 - APPRAISER-Cpvl Schl Dist, in Cpvl | Land Use Code | 12 |
| Open Space: | N | DFL | N |
| Historic Property: | N | Remodel Property: | N |
| Multi-Family Redevelopment: | N | | |
| Township: | | Section: | |
| Range: | |
Location |
| Address: | 505 NE KINNEY ST COUPEVILLE, WA 98239 | Mapsco: | |
| Neighborhood: | Cycle 2 | Map ID: | 175 |
| Neighborhood CD: | 2 |
Owner |
| Name: | MC KENNA, MICHELE A | Owner ID: | 9788 |
| Mailing Address: | 4711 N OAK ST SPOKANE, WA 99205 | % Ownership: | 100.0000000000% |
| | | Exemptions: | |
Taxes and Assessment Details
Values
| (+) Improvement Homesite Value: | + | $0 | |
| (+) Improvement Non-Homesite Value: | + | $171,926 | |
| (+) Land Homesite Value: | + | $0 | |
| (+) Land Non-Homesite Value: | + | $240,000 | |
| (+) Curr Use (HS): | + | $0 | $0 |
| (+) Curr Use (NHS): | + | $0 | $0 |
| | | -------------------------- | |
| (=) Market Value: | = | $411,926 | |
| (–) Productivity Loss: | – | $0 | |
| | | -------------------------- | |
| (=) Subtotal: | = | $411,926 | |
| (+) Senior Appraised Value: | + | $0 | |
| (+) Non-Senior Appraised Value: | + | $411,926 | |
| | | -------------------------- | |
| (=) Total Appraised Value: | = | $411,926 | |
| (–) Senior Exemption Loss: | – | $0 | |
| (–) Exemption Loss: | – | $0 | |
| | | -------------------------- | |
| (=) Taxable Value: | = | $411,926 | |
Taxing Jurisdiction
| Owner: | MC KENNA, MICHELE A | | |
| % Ownership: | 100.0000000000% | | |
| Total Value: | $411,926 | | |
| Tax Area: | 300 - APPRAISER-Cpvl Schl Dist, in Cpvl |
| CF | Conservation Futures | 0.0316035091 | $411,926 | $411,926 | $13.02 | | |
| CEM2 | Cemetery #2 | 0.0095056933 | $411,926 | $411,926 | $3.92 | | |
| COUP | City: Town of Coupeville | 0.8426414490 | $411,926 | $411,926 | $347.11 | | |
| FIRE5 | Fire & Rescue Dist #5 C Whidbey GEN | 1.2008080668 | $411,926 | $411,926 | $494.64 | | |
| FIRE5BOND | Fire & Rescue Dist #5 C Whidbey BOND | 0.1400090713 | $411,926 | $411,926 | $57.67 | | |
| HOBOND | Hospital BOND | 0.1910887512 | $411,926 | $411,926 | $78.71 | | |
| HOGEN | Hospital GEN | 0.3902502903 | $411,926 | $411,926 | $160.75 | | |
| CE | County Current Expense | 0.3708482477 | $411,926 | $411,926 | $152.76 | | |
| ISLANDEMS | Hospital GEN (EMS) | 0.5000000000 | $411,926 | $411,926 | $205.96 | | |
| LIB | Library Sno-Isle GEN | 0.3153421757 | $411,926 | $411,926 | $129.90 | | |
| LIBCAP | Library Sno-Isle BOND (Cap Fac Imp Area) | 0.0543427938 | $411,926 | $411,926 | $22.39 | | |
| POCOUP | Port of Coupeville GEN | 0.1093371703 | $411,926 | $411,926 | $45.04 | | |
| POCOUPIDD | Port of Coupeville IDD | 0.3409740022 | $411,926 | $411,926 | $140.46 | | |
| COUPSDTECH | School 204 CP (TECH) | 0.7545480007 | $411,926 | $411,926 | $310.82 | | |
| SCH204MO | School 204 Enrichment | 0.6716186034 | $411,926 | $411,926 | $276.66 | | |
| ST | State School | 1.3035497053 | $411,926 | $411,926 | $536.97 | | |
| ST2 | State School Part 2 | 0.8169543533 | $411,926 | $411,926 | $336.52 | | |
| | Total Tax Rate: | 8.0434218834 | | | | | |
| | | | | Taxes w/Current Exemptions: | $3,313.30 | | |
| | | | | Taxes w/o Exemptions: | $3,313.30 | | |
Improvement / Building
| Improvement #1: | RESIDENTIAL/COMMERCIAL | State Code: | B2 | 1134.0 sqft | Value: | $171,926 |
| Bathrooms: | 2 | Bedrooms: | 4 | | Ceiling: | DRYWALL PAINTED | Exterior Wall/Cover: | WOOD SIDING | | Floor Covering: | CARPET/VINYL 60-40 | Floor Structure: | WOOD W/SUBFLOOR | | Foundation: | CONCRETE | Heating: | BASEBOARD ELECTRIC | | Interior Finish: | DRYWALL PAINT | Plumbing Fixture Cnt: | 12 | | Roof Slope: | 5" IN 12" | Roof Structure/Cover: | CJ ASPHALT |
|
| | Type | Description | Class CD | Sub Class CD | Year Built | Area |
| | BAS | BASE/MAIN FLOOR | 3 | 0 | 1942 | 1134.0 |
| | OWP | OPEN WOOD PORCH W/STEPS | 3 | 0 | 1942 | 200.0 |
| | OP3 | OPEN PORCH W/ROOF | 3 | 0 | 1942 | 16.0 |
| | OP3 | OPEN PORCH W/ROOF | 3 | 0 | 1942 | 16.0 |
Sketch
Property Image
Land
| 1 | 12 | SQ (00000-06000) | 0.1148 | 5000.69 | 0.00 | 0.00 | 1.00 | $240,000 | $0 |
Roll Value History
| 2026 | N/A | N/A | N/A | N/A | N/A |
| 2025 | $171,926 | $240,000 | $0 | $411,926 | $411,926 |
| 2024 | $86,000 | $240,000 | $0 | $326,000 | $326,000 |
| 2023 | $88,981 | $200,000 | $0 | $288,981 | $288,981 |
| 2022 | $73,917 | $130,000 | $0 | $203,917 | $203,917 |
| 2021 | $73,451 | $130,000 | $0 | $203,451 | $203,451 |
| 2020 | $73,351 | $130,000 | $0 | $203,351 | $203,351 |
| 2019 | $67,539 | $170,000 | $0 | $237,539 | $237,539 |
| 2018 | $62,994 | $150,000 | $0 | $212,994 | $212,994 |
| 2017 | $63,514 | $85,000 | $0 | $148,514 | $148,514 |
| 2016 | $64,556 | $85,000 | $0 | $149,556 | $149,556 |
| 2015 | $65,596 | $85,000 | $0 | $150,596 | $150,596 |
| 2014 | $66,637 | $85,000 | $0 | $151,637 | $151,637 |
| 2013 | $67,679 | $85,000 | $0 | $152,679 | $152,679 |
| 2012 | $66,637 | $127,950 | $0 | $194,587 | $194,587 |
| 2011 | $66,637 | $127,950 | $0 | $194,587 | $194,587 |
| 2010 | $71,647 | $127,950 | $0 | $199,597 | $199,597 |
| 2009 | $74,926 | $140,600 | $0 | $215,526 | $215,526 |
| 2008 | $75,996 | $140,600 | $0 | $216,596 | $216,596 |
| 2007 | $77,067 | $140,600 | $0 | $217,667 | $217,667 |
Deed and Sales History
| 1 | 04/29/2003 | WD | Warranty Deed | DUFFY, SUSAN C | MC KENNA, MICHELE A | | | $118,000.00 | 31831 | 4057219 |
| 2 | 04/01/1994 | WD | Warranty Deed | ROBERTS, GEORGE T | DUFFY, SUSAN C | | | $86,725.00 | 41978 | 94011585 |
| 3 | 07/01/1987 | WD | Warranty Deed | STAAL, ALBERT | ROBERTS, GEORGE T | | | $39,000.00 | 72228 | 87010138 |
| 4 | 07/01/1978 | OTHER | Other - Misc. Documents | Unknown | STAAL, ALBERT | | | $32,900.00 | 83272 | 336019 |
Payout Agreement
| No payout information available.. |