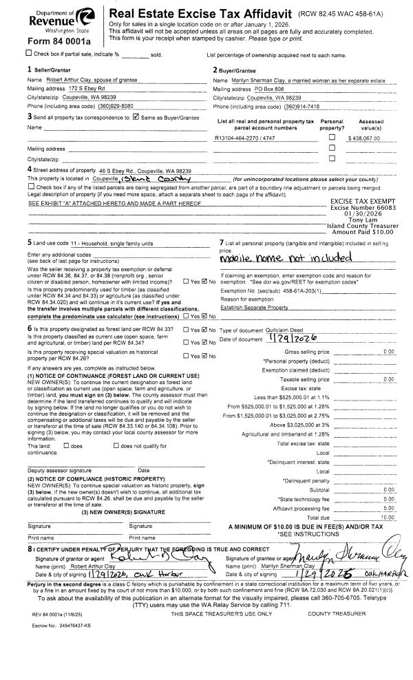
Property
Account |
| Property ID: | 236836 | Abbreviated Legal Description: | COUPEVILLE S80'LOT 5 & 6 BLK 27 |
| Geographic ID: | S6415-00-27005-2 | Agent Code: | |
| Type: | Real | | |
| Tax Area: | 300 - APPRAISER-Cpvl Schl Dist, in Cpvl | Land Use Code | 11 |
| Open Space: | N | DFL | N |
| Historic Property: | N | Remodel Property: | N |
| Multi-Family Redevelopment: | N | | |
| Township: | | Section: | |
| Range: | |
Location |
| Address: | 304 NE FIFTH ST COUPEVILLE, WA 98239 | Mapsco: | |
| Neighborhood: | Cycle 2 | Map ID: | 175 |
| Neighborhood CD: | 2 |
Owner |
| Name: | TASOFF, CONNOR | Owner ID: | 310568 |
| Mailing Address: | PO BOX 24 COUPEVILLE, WA 98239 | % Ownership: | 100.0000000000% |
| | | Exemptions: | |
Taxes and Assessment Details
Values
| (+) Improvement Homesite Value: | + | $0 | |
| (+) Improvement Non-Homesite Value: | + | $30,560 | |
| (+) Land Homesite Value: | + | $0 | |
| (+) Land Non-Homesite Value: | + | $162,500 | |
| (+) Curr Use (HS): | + | $0 | $0 |
| (+) Curr Use (NHS): | + | $0 | $0 |
| | | -------------------------- | |
| (=) Market Value: | = | $193,060 | |
| (–) Productivity Loss: | – | $0 | |
| | | -------------------------- | |
| (=) Subtotal: | = | $193,060 | |
| (+) Senior Appraised Value: | + | $0 | |
| (+) Non-Senior Appraised Value: | + | $193,060 | |
| | | -------------------------- | |
| (=) Total Appraised Value: | = | $193,060 | |
| (–) Senior Exemption Loss: | – | $0 | |
| (–) Exemption Loss: | – | $0 | |
| | | -------------------------- | |
| (=) Taxable Value: | = | $193,060 | |
Taxing Jurisdiction
| Owner: | TASOFF, CONNOR | | |
| % Ownership: | 100.0000000000% | | |
| Total Value: | $193,060 | | |
| Tax Area: | 300 - APPRAISER-Cpvl Schl Dist, in Cpvl |
| CF | Conservation Futures | 0.0316035091 | $193,060 | $193,060 | $6.10 | | |
| CEM2 | Cemetery #2 | 0.0095056933 | $193,060 | $193,060 | $1.84 | | |
| COUP | City: Town of Coupeville | 0.8426414490 | $193,060 | $193,060 | $162.68 | | |
| FIRE5 | Fire & Rescue Dist #5 C Whidbey GEN | 1.2008080668 | $193,060 | $193,060 | $231.83 | | |
| FIRE5BOND | Fire & Rescue Dist #5 C Whidbey BOND | 0.1400090713 | $193,060 | $193,060 | $27.03 | | |
| HOBOND | Hospital BOND | 0.1910887512 | $193,060 | $193,060 | $36.89 | | |
| HOGEN | Hospital GEN | 0.3902502903 | $193,060 | $193,060 | $75.34 | | |
| CE | County Current Expense | 0.3708482477 | $193,060 | $193,060 | $71.60 | | |
| ISLANDEMS | Hospital GEN (EMS) | 0.5000000000 | $193,060 | $193,060 | $96.53 | | |
| LIB | Library Sno-Isle GEN | 0.3153421757 | $193,060 | $193,060 | $60.88 | | |
| LIBCAP | Library Sno-Isle BOND (Cap Fac Imp Area) | 0.0543427938 | $193,060 | $193,060 | $10.49 | | |
| POCOUP | Port of Coupeville GEN | 0.1093371703 | $193,060 | $193,060 | $21.11 | | |
| POCOUPIDD | Port of Coupeville IDD | 0.3409740022 | $193,060 | $193,060 | $65.83 | | |
| COUPSDTECH | School 204 CP (TECH) | 0.7545480007 | $193,060 | $193,060 | $145.67 | | |
| SCH204MO | School 204 Enrichment | 0.6716186034 | $193,060 | $193,060 | $129.66 | | |
| ST | State School | 1.3035497053 | $193,060 | $193,060 | $251.66 | | |
| ST2 | State School Part 2 | 0.8169543533 | $193,060 | $193,060 | $157.72 | | |
| | Total Tax Rate: | 8.0434218834 | | | | | |
| | | | | Taxes w/Current Exemptions: | $1,552.86 | | |
| | | | | Taxes w/o Exemptions: | $1,552.86 | | |
Improvement / Building
| Improvement #1: | RESIDENTIAL/COMMERCIAL | State Code: | F1 | 508.0 sqft | Value: | $30,560 |
| Bathrooms: | 1 | Bedrooms: | 1 | | Ceiling: | DRYWALL PAINTED | Exterior Wall/Cover: | WOOD SIDING | | Floor Covering: | SOFTWOOD 100% | Floor Structure: | WOOD W/SUBFLOOR | | Foundation: | PIERS/CONCRETE | Heating: | (NONE) | | Interior Finish: | DRYWALL PAINT | Plumbing Fixture Cnt: | 5 | | Roof Slope: | 8" IN 12" | Roof Structure/Cover: | CJ ASPHALT |
|
Sketch
| No sketches available for this property. |
Property Image
Land
| 1 | 14 | SQ (08001-12000) | 0.1800 | 7840.80 | 0.00 | 0.00 | 1.00 | $162,500 | $0 |
Roll Value History
| 2026 | N/A | N/A | N/A | N/A | N/A |
| 2025 | $30,560 | $162,500 | $0 | $193,060 | $193,060 |
| 2024 | $0 | $110,000 | $0 | $110,000 | $110,000 |
| 2023 | $0 | $110,000 | $0 | $110,000 | $110,000 |
| 2022 | $0 | $110,000 | $0 | $110,000 | $110,000 |
| 2021 | $0 | $90,000 | $0 | $90,000 | $90,000 |
| 2020 | $0 | $90,000 | $0 | $90,000 | $90,000 |
| 2019 | $0 | $90,000 | $0 | $90,000 | $90,000 |
| 2018 | $0 | $75,000 | $0 | $75,000 | $75,000 |
| 2017 | $0 | $75,000 | $0 | $75,000 | $75,000 |
| 2016 | $0 | $75,000 | $0 | $75,000 | $75,000 |
| 2015 | $0 | $75,000 | $0 | $75,000 | $75,000 |
| 2014 | $0 | $75,000 | $0 | $75,000 | $75,000 |
| 2013 | $0 | $75,000 | $0 | $75,000 | $75,000 |
| 2012 | $0 | $75,000 | $0 | $75,000 | $75,000 |
| 2011 | $0 | $75,000 | $0 | $75,000 | $75,000 |
| 2010 | $0 | $75,000 | $0 | $75,000 | $75,000 |
| 2009 | $0 | $85,000 | $0 | $85,000 | $85,000 |
| 2008 | $0 | $90,000 | $0 | $90,000 | $90,000 |
| 2007 | $0 | $90,000 | $0 | $90,000 | $90,000 |
Deed and Sales History
| 1 | 11/02/2023 | WD | Warranty Deed | LARSON TRUSTEE, KIRSTEN JENNETH GRIFFIN | TASOFF, CONNOR | | | $110,000.00 | 58416 | 4566375 |
| 2 | 07/20/2016 | TRUSTEED | Trustee's Deed | LARSON, KIRSTEN J GRIFFIN | LARSON TRUSTEE, KIRSTEN JENNETH GRIFFIN | | | $0.00 | 26920 | 4411510 |
| 3 | 07/20/2016 | QCD | Quit Claim Deed | LARSON TRUSTEE, KIRSTEN JENNETH GRIFFIN | LARSON, KIRSTEN J GRIFFIN | | | $0.00 | 25726 | 4405346 |
| 4 | 10/12/2007 | OTHER | Other - Misc. Documents | GRIFFIN, KIRSTEN J | LARSON, KIRSTEN G | | | $0.00 | 80397 | 0 |
| 5 | 12/01/1980 | CD | DNU - Correction Deed | GRIFFIN, JOHN E | GRIFFIN, KIRSTEN J | | | $0.00 | 4129 | 377429 |
Payout Agreement
| No payout information available.. |