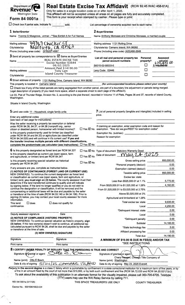
Property
Account |
| Property ID: | 236854 | Abbreviated Legal Description: | COUPEVILLE LOT 8 BLK 27 |
| Geographic ID: | S6415-00-27008-0 | Agent Code: | |
| Type: | Real | | |
| Tax Area: | 300 - APPRAISER-Cpvl Schl Dist, in Cpvl | Land Use Code | 12 |
| Open Space: | N | DFL | N |
| Historic Property: | N | Remodel Property: | N |
| Multi-Family Redevelopment: | N | | |
| Township: | | Section: | |
| Range: | |
Location |
| Address: | 501 NE KINNEY ST COUPEVILLE, WA 98239 | Mapsco: | |
| Neighborhood: | Cycle 2 | Map ID: | 175 |
| Neighborhood CD: | 2 |
Owner |
| Name: | MOORE, CHRISTOPHER J | Owner ID: | 24107 |
| Mailing Address: | 17212 NEWBERG RD SNOHOMISH, WA 98290-0909 | % Ownership: | 100.0000000000% |
| | | Exemptions: | |
Taxes and Assessment Details
Values
| (+) Improvement Homesite Value: | + | $0 | |
| (+) Improvement Non-Homesite Value: | + | $182,790 | |
| (+) Land Homesite Value: | + | $0 | |
| (+) Land Non-Homesite Value: | + | $240,000 | |
| (+) Curr Use (HS): | + | $0 | $0 |
| (+) Curr Use (NHS): | + | $0 | $0 |
| | | -------------------------- | |
| (=) Market Value: | = | $422,790 | |
| (–) Productivity Loss: | – | $0 | |
| | | -------------------------- | |
| (=) Subtotal: | = | $422,790 | |
| (+) Senior Appraised Value: | + | $0 | |
| (+) Non-Senior Appraised Value: | + | $422,790 | |
| | | -------------------------- | |
| (=) Total Appraised Value: | = | $422,790 | |
| (–) Senior Exemption Loss: | – | $0 | |
| (–) Exemption Loss: | – | $0 | |
| | | -------------------------- | |
| (=) Taxable Value: | = | $422,790 | |
Taxing Jurisdiction
| Owner: | MOORE, CHRISTOPHER J | | |
| % Ownership: | 100.0000000000% | | |
| Total Value: | $422,790 | | |
| Tax Area: | 300 - APPRAISER-Cpvl Schl Dist, in Cpvl |
| CF | Conservation Futures | 0.0316035091 | $422,790 | $422,790 | $13.36 | | |
| CEM2 | Cemetery #2 | 0.0095056933 | $422,790 | $422,790 | $4.02 | | |
| COUP | City: Town of Coupeville | 0.8426414490 | $422,790 | $422,790 | $356.26 | | |
| FIRE5 | Fire & Rescue Dist #5 C Whidbey GEN | 1.2008080668 | $422,790 | $422,790 | $507.69 | | |
| FIRE5BOND | Fire & Rescue Dist #5 C Whidbey BOND | 0.1400090713 | $422,790 | $422,790 | $59.19 | | |
| HOBOND | Hospital BOND | 0.1910887512 | $422,790 | $422,790 | $80.79 | | |
| HOGEN | Hospital GEN | 0.3902502903 | $422,790 | $422,790 | $164.99 | | |
| CE | County Current Expense | 0.3708482477 | $422,790 | $422,790 | $156.79 | | |
| ISLANDEMS | Hospital GEN (EMS) | 0.5000000000 | $422,790 | $422,790 | $211.40 | | |
| LIB | Library Sno-Isle GEN | 0.3153421757 | $422,790 | $422,790 | $133.32 | | |
| LIBCAP | Library Sno-Isle BOND (Cap Fac Imp Area) | 0.0543427938 | $422,790 | $422,790 | $22.98 | | |
| POCOUP | Port of Coupeville GEN | 0.1093371703 | $422,790 | $422,790 | $46.23 | | |
| POCOUPIDD | Port of Coupeville IDD | 0.3409740022 | $422,790 | $422,790 | $144.16 | | |
| COUPSDTECH | School 204 CP (TECH) | 0.7545480007 | $422,790 | $422,790 | $319.02 | | |
| SCH204MO | School 204 Enrichment | 0.6716186034 | $422,790 | $422,790 | $283.95 | | |
| ST | State School | 1.3035497053 | $422,790 | $422,790 | $551.13 | | |
| ST2 | State School Part 2 | 0.8169543533 | $422,790 | $422,790 | $345.40 | | |
| | Total Tax Rate: | 8.0434218834 | | | | | |
| | | | | Taxes w/Current Exemptions: | $3,400.68 | | |
| | | | | Taxes w/o Exemptions: | $3,400.68 | | |
Improvement / Building
| Improvement #1: | RESIDENTIAL/COMMERCIAL | State Code: | B2 | 1134.0 sqft | Value: | $182,790 |
| Bathrooms: | 2 | Bedrooms: | 4 | | Ceiling: | DRYWALL PAINTED | Exterior Wall/Cover: | PLY/HARDBOARD T-111 | | Floor Covering: | CARPET/VINYL 80-20 | Floor Structure: | WOOD W/SUBFLOOR | | Foundation: | CONCRETE | Heating: | BASEBOARD ELECTRIC | | Interior Finish: | DRYWALL PAINT | Plumbing Fixture Cnt: | 14 | | Roof Slope: | 5" IN 12" | Roof Structure/Cover: | CJ ASPHALT |
|
| | Type | Description | Class CD | Sub Class CD | Year Built | Area |
| | BAS | BASE/MAIN FLOOR | 3 | 0 | 1941 | 1134.0 |
| | OP2 | OPEN PORCH W/STEPS | 3 | 0 | 1941 | 24.0 |
| | OP2 | OPEN PORCH W/STEPS | 3 | 0 | 1941 | 24.0 |
| | UTY | STORAGE/UTILITY | 3 | 0 | 1941 | 150.0 |
| | OWP | OPEN WOOD PORCH W/STEPS | 3 | 0 | 1941 | 16.0 |
| | OWP | OPEN WOOD PORCH W/STEPS | 3 | 0 | 1941 | 16.0 |
| | OWP | OPEN WOOD PORCH W/STEPS | 3 | 0 | 1941 | 60.0 |
| | OWP | OPEN WOOD PORCH W/STEPS | 3 | 0 | 1941 | 60.0 |
Sketch
Property Image
Land
| 1 | 12 | SQ (00000-06000) | 0.1148 | 5000.69 | 0.00 | 0.00 | 1.00 | $240,000 | $0 |
Roll Value History
| 2026 | N/A | N/A | N/A | N/A | N/A |
| 2025 | $182,790 | $240,000 | $0 | $422,790 | $422,790 |
| 2024 | $117,138 | $240,000 | $0 | $357,138 | $357,138 |
| 2023 | $118,954 | $200,000 | $0 | $318,954 | $318,954 |
| 2022 | $96,801 | $130,000 | $0 | $226,801 | $226,801 |
| 2021 | $95,830 | $130,000 | $0 | $225,830 | $225,830 |
| 2020 | $95,608 | $130,000 | $0 | $225,608 | $225,608 |
| 2019 | $86,362 | $170,000 | $0 | $256,362 | $256,362 |
| 2018 | $78,981 | $150,000 | $0 | $228,981 | $228,981 |
| 2017 | $79,646 | $85,000 | $0 | $164,646 | $164,646 |
| 2016 | $80,974 | $85,000 | $0 | $165,974 | $165,974 |
| 2015 | $82,300 | $85,000 | $0 | $167,300 | $167,300 |
| 2014 | $83,628 | $85,000 | $0 | $168,628 | $168,628 |
| 2013 | $84,954 | $85,000 | $0 | $169,954 | $169,954 |
| 2012 | $87,611 | $127,950 | $0 | $215,561 | $215,561 |
| 2011 | $87,611 | $127,950 | $0 | $215,561 | $215,561 |
| 2010 | $91,439 | $127,950 | $0 | $219,389 | $219,389 |
| 2009 | $95,592 | $140,600 | $0 | $236,192 | $236,192 |
| 2008 | $96,919 | $140,600 | $0 | $237,519 | $237,519 |
| 2007 | $98,247 | $140,600 | $0 | $238,847 | $238,847 |
Deed and Sales History
| 1 | 05/17/2005 | QCD | Quit Claim Deed | MOORE, CHRISTOPHER J | MOORE, CHRISTOPHER J | | | $0.00 | 52765 | 4137553 |
| 2 | 03/24/2005 | ESTSEPPROP | Establish Separate Property | MOORE, CHRISTOPHER J | MOORE, CHRISTOPHER J | | | $0.00 | 51315 | 4129880 |
| 3 | 03/23/2005 | WD | Warranty Deed | BITTS, TODD M | MOORE, CHRISTOPHER J | | | $180,000.00 | 51316 | 4129881 |
| 4 | 08/23/2000 | QCD | Quit Claim Deed | BITTS, PATRICK T | BITTS, TODD M | | | $100,000.00 | 3178 | 20014878 |
| 5 | 01/01/1995 | WD | Warranty Deed | PAYNE, KATHLEEN | BITTS, PATRICK T | | | $106,000.00 | 50244 | 95001162 |
| 6 | 12/01/1991 | DECREE | Divorce Decree/Legal Separation | PAYNE, KARL N | PAYNE, KATHLEEN | | | $0.00 | 20049 | 92000152 |
| 7 | 11/01/1989 | WD | Warranty Deed | KROON, DOUGLAS R | PAYNE, KARL N | | | $43,000.00 | 22 | 90000069 |
| 8 | 01/01/1900 | OTHER | Other - Misc. Documents | Unknown | KROON, DOUGLAS R | | | $0.00 | 0 | 0 |
Payout Agreement
| No payout information available.. |