Property
Account |
| Property ID: | 237112 | Abbreviated Legal Description: | COUPEVILLE LOTS 7 & 8 BLK 33 |
| Geographic ID: | S6415-00-33007-0 | Agent Code: | |
| Type: | Real | | |
| Tax Area: | 300 - APPRAISER-Cpvl Schl Dist, in Cpvl | Land Use Code | 11 |
| Open Space: | N | DFL | N |
| Historic Property: | N | Remodel Property: | N |
| Multi-Family Redevelopment: | N | | |
| Township: | | Section: | |
| Range: | |
Location |
| Address: | 202 NE 4TH ST COUPEVILLE, WA 98239 | Mapsco: | |
| Neighborhood: | Cycle 2 | Map ID: | 173 |
| Neighborhood CD: | 2 |
Owner |
| Name: | HALVERSON, GAY | Owner ID: | 291877 |
| Mailing Address: | 202 NE 4TH ST COUPEVILLE, WA 98239 | % Ownership: | 100.0000000000% |
| | | Exemptions: | SNR/DSBL |
Taxes and Assessment Details
Values
| (+) Improvement Homesite Value: | + | $318,687 | |
| (+) Improvement Non-Homesite Value: | + | $0 | |
| (+) Land Homesite Value: | + | $320,000 | |
| (+) Land Non-Homesite Value: | + | $0 | |
| (+) Curr Use (HS): | + | $0 | $0 |
| (+) Curr Use (NHS): | + | $0 | $0 |
| | | -------------------------- | |
| (=) Market Value: | = | $638,687 | |
| (–) Productivity Loss: | – | $0 | |
| | | -------------------------- | |
| (=) Subtotal: | = | $638,687 | |
| (+) Senior Appraised Value: | + | $518,807 | |
| (+) Non-Senior Appraised Value: | + | $0 | |
| | | -------------------------- | |
| (=) Total Appraised Value: | = | $518,807 | |
| (–) Senior Exemption Loss: | – | $0 | |
| (–) Exemption Loss: | – | $0 | |
| | | -------------------------- | |
| (=) Taxable Value: | = | $518,807 | |
Taxing Jurisdiction
| Owner: | HALVERSON, GAY | | |
| % Ownership: | 100.0000000000% | | |
| Total Value: | $638,687 | | |
| Tax Area: | 300 - APPRAISER-Cpvl Schl Dist, in Cpvl |
| CF | Conservation Futures | 0.0316035091 | $638,687 | $518,807 | $16.40 | | |
| CEM2 | Cemetery #2 | 0.0095056933 | $638,687 | $518,807 | $4.93 | | |
| COUP | City: Town of Coupeville | 0.8426414490 | $638,687 | $518,807 | $437.17 | | |
| FIRE5 | Fire & Rescue Dist #5 C Whidbey GEN | 1.2008080668 | $638,687 | $518,807 | $622.99 | | |
| FIRE5BOND | Fire & Rescue Dist #5 C Whidbey BOND | 0.0000000000 | $638,687 | $0 | $0.00 | | |
| HOBOND | Hospital BOND | 0.0000000000 | $638,687 | $0 | $0.00 | | |
| HOGEN | Hospital GEN | 0.3902502903 | $638,687 | $518,807 | $202.46 | | |
| CE | County Current Expense | 0.3708482477 | $638,687 | $518,807 | $192.40 | | |
| ISLANDEMS | Hospital GEN (EMS) | 0.5000000000 | $638,687 | $518,807 | $259.40 | | |
| LIB | Library Sno-Isle GEN | 0.3153421757 | $638,687 | $518,807 | $163.60 | | |
| LIBCAP | Library Sno-Isle BOND (Cap Fac Imp Area) | 0.0000000000 | $638,687 | $0 | $0.00 | | |
| POCOUP | Port of Coupeville GEN | 0.1093371703 | $638,687 | $518,807 | $56.72 | | |
| POCOUPIDD | Port of Coupeville IDD | 0.3409740022 | $638,687 | $518,807 | $176.90 | | |
| COUPSDTECH | School 204 CP (TECH) | 0.0000000000 | $638,687 | $0 | $0.00 | | |
| SCH204MO | School 204 Enrichment | 0.0000000000 | $638,687 | $0 | $0.00 | | |
| ST | State School | 1.3035497053 | $638,687 | $518,807 | $676.29 | | |
| ST2 | State School Part 2 | 0.0000000000 | $638,687 | $0 | $0.00 | | |
| | Total Tax Rate: | 5.4148603097 | | | | | |
| | | | | Taxes w/Current Exemptions: | $2,809.26 | | |
| | | | | Taxes w/o Exemptions: | $5,137.22 | | |
Improvement / Building
| Improvement #1: | RESIDENTIAL | State Code: | Y | 1065.0 sqft | Value: | $318,687 |
| Bathrooms: | 2 | Bedrooms: | 2 | | Ceiling: | DRYWALL PAINTED | Cooling: | HEAT PUMP/CONV/V | | Exterior Wall/Cover: | WOOD SIDING | Floor Covering: | HARDWOOD 100% | | Floor Structure: | WOOD W/SUBFLOOR | Foundation: | CONCRETE | | Interior Finish: | DRYWALL PAINT | Plumbing Fixture Cnt: | 10 | | Roof Slope: | 4" IN 12" | Roof Structure/Cover: | CJ ASPHALT |
|
| | Type | Description | Class CD | Sub Class CD | Year Built | Area |
| | BAS | BASE/MAIN FLOOR | 4 | 0 | 1968 | 1065.0 |
| | OWP | OPEN WOOD PORCH W/STEPS | 4 | 0 | 1968 | 65.0 |
| | AGR | ATTACHED GARAGE | 4 | 0 | 1968 | 402.0 |
| | OP1 | OPEN PORCH SLAB | 4 | 0 | 1968 | 607.0 |
| | OP3 | OPEN PORCH W/ROOF | 4 | 0 | 1968 | 132.0 |
Sketch
Property Image
Land
| 1 | HS | HOMESITE | 0.2296 | 10001.38 | 0.00 | 0.00 | 1.00 | $320,000 | $0 |
Roll Value History
| 2026 | N/A | N/A | N/A | N/A | N/A |
| 2025 | $318,687 | $320,000 | $0 | $638,687 | $518,807 |
| 2024 | $311,716 | $300,000 | $0 | $611,716 | $518,807 |
| 2023 | $315,329 | $300,000 | $0 | $615,329 | $518,807 |
| 2022 | $288,807 | $230,000 | $0 | $518,807 | $448,807 |
| 2021 | $253,976 | $180,000 | $0 | $433,976 | $405,635 |
| 2020 | $245,635 | $160,000 | $0 | $405,635 | $405,635 |
| 2019 | $171,809 | $200,000 | $0 | $371,809 | $371,809 |
| 2018 | $96,248 | $180,000 | $0 | $276,248 | $276,248 |
| 2017 | $82,328 | $125,000 | $0 | $207,328 | $207,328 |
| 2016 | $83,700 | $115,000 | $0 | $198,700 | $198,700 |
| 2015 | $85,071 | $90,000 | $0 | $175,071 | $175,071 |
| 2014 | $86,444 | $85,000 | $0 | $171,444 | $171,444 |
| 2013 | $87,815 | $85,000 | $0 | $172,815 | $172,815 |
| 2012 | $91,109 | $89,250 | $0 | $180,359 | $180,359 |
| 2011 | $92,509 | $105,000 | $0 | $197,509 | $197,509 |
| 2010 | $101,799 | $105,000 | $0 | $206,799 | $206,799 |
| 2009 | $106,441 | $125,000 | $0 | $231,441 | $231,441 |
| 2008 | $108,025 | $134,000 | $0 | $242,025 | $242,025 |
| 2007 | $109,608 | $105,000 | $0 | $214,608 | $214,608 |
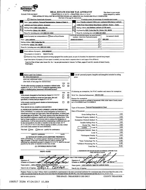
Deed and Sales History
| 1 | 09/19/2019 | WD | Warranty Deed | CORNELL, DANIEL | HALVERSON, GAY | | | $415,000.00 | 40395 | 4471949 |
| 2 | 11/21/2017 | QCD | Quit Claim Deed | SEAS HOLDING, LLC | CORNELL, DANIEL | | | $0.00 | 32077 | 4434898 |
| 3 | 05/30/2017 | WD | Warranty Deed | BUCHHOLZ, MELINDA K | SEAS HOLDING, LLC | | | $272,500.00 | 29519 | 4423423 |
| 4 | 08/10/2001 | WD | Warranty Deed | ARNOLD, PEGGY J | BUCHHOLZ, MELINDA K | | | $125,000.00 | 12571 | 20036807 |
| 5 | 07/01/1993 | QCD | Quit Claim Deed | ARNOLD, PEGGY J | ARNOLD, PEGGY J | | | $0.00 | 32968 | 93015330 |
| 6 | 01/01/1900 | OTHER | Other - Misc. Documents | Unknown | ARNOLD, PEGGY J | | | $0.00 | 0 | 0 |
Payout Agreement
| No payout information available.. |