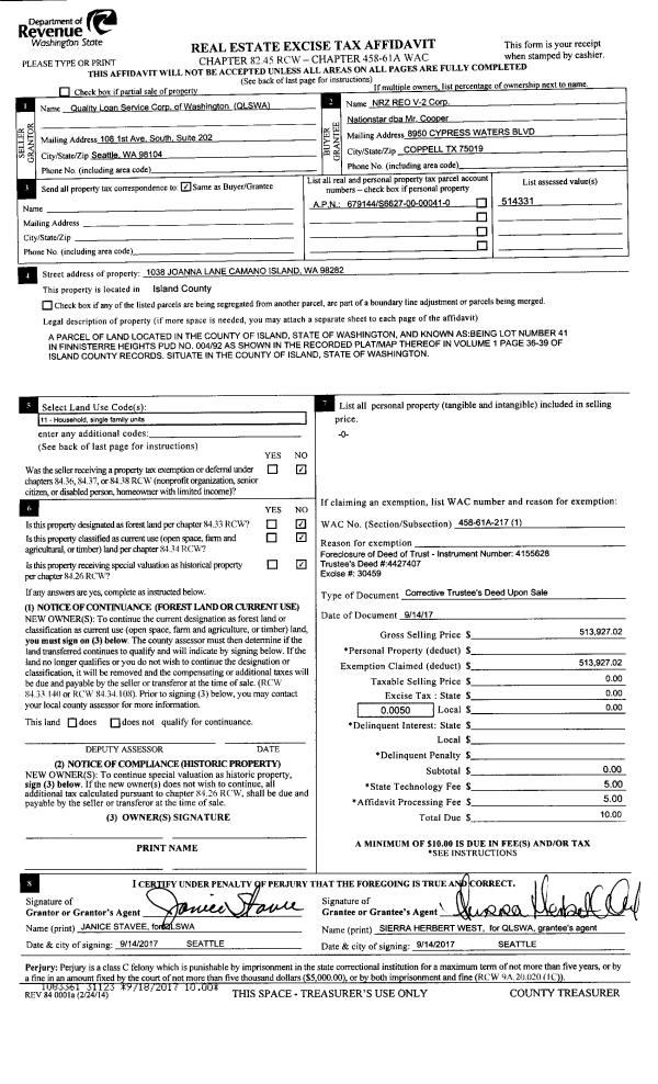
Property
Account |
| Property ID: | 237470 | Abbreviated Legal Description: | COUPEVILLE LOT 6 BLK 39 |
| Geographic ID: | S6415-00-39006-0 | Agent Code: | |
| Type: | Real | | |
| Tax Area: | 300 - APPRAISER-Cpvl Schl Dist, in Cpvl | Land Use Code | 11 |
| Open Space: | N | DFL | N |
| Historic Property: | N | Remodel Property: | N |
| Multi-Family Redevelopment: | N | | |
| Township: | | Section: | |
| Range: | |
Location |
| Address: | 304 NE HALLER ST COUPEVILLE, WA 98239 | Mapsco: | |
| Neighborhood: | Cycle 2 | Map ID: | 173 |
| Neighborhood CD: | 2 |
Owner |
| Name: | TRAMMEL, NICOLE DALPIAS | Owner ID: | 312127 |
| Mailing Address: | BRADLEY ANDERSON TRAMMEL 304 NE HALLER ST COUPEVILLE, WA 98239 | % Ownership: | 100.0000000000% |
| | | Exemptions: | |
Taxes and Assessment Details
Values
| (+) Improvement Homesite Value: | + | $0 | |
| (+) Improvement Non-Homesite Value: | + | $157,863 | |
| (+) Land Homesite Value: | + | $0 | |
| (+) Land Non-Homesite Value: | + | $320,000 | |
| (+) Curr Use (HS): | + | $0 | $0 |
| (+) Curr Use (NHS): | + | $0 | $0 |
| | | -------------------------- | |
| (=) Market Value: | = | $477,863 | |
| (–) Productivity Loss: | – | $0 | |
| | | -------------------------- | |
| (=) Subtotal: | = | $477,863 | |
| (+) Senior Appraised Value: | + | $0 | |
| (+) Non-Senior Appraised Value: | + | $477,863 | |
| | | -------------------------- | |
| (=) Total Appraised Value: | = | $477,863 | |
| (–) Senior Exemption Loss: | – | $0 | |
| (–) Exemption Loss: | – | $0 | |
| | | -------------------------- | |
| (=) Taxable Value: | = | $477,863 | |
Taxing Jurisdiction
| Owner: | TRAMMEL, NICOLE DALPIAS | | |
| % Ownership: | 100.0000000000% | | |
| Total Value: | $477,863 | | |
| Tax Area: | 300 - APPRAISER-Cpvl Schl Dist, in Cpvl |
| CF | Conservation Futures | 0.0316035091 | $477,863 | $477,863 | $15.10 | | |
| CEM2 | Cemetery #2 | 0.0095056933 | $477,863 | $477,863 | $4.54 | | |
| COUP | City: Town of Coupeville | 0.8426414490 | $477,863 | $477,863 | $402.67 | | |
| FIRE5 | Fire & Rescue Dist #5 C Whidbey GEN | 1.2008080668 | $477,863 | $477,863 | $573.82 | | |
| FIRE5BOND | Fire & Rescue Dist #5 C Whidbey BOND | 0.1400090713 | $477,863 | $477,863 | $66.91 | | |
| HOBOND | Hospital BOND | 0.1910887512 | $477,863 | $477,863 | $91.31 | | |
| HOGEN | Hospital GEN | 0.3902502903 | $477,863 | $477,863 | $186.49 | | |
| CE | County Current Expense | 0.3708482477 | $477,863 | $477,863 | $177.21 | | |
| ISLANDEMS | Hospital GEN (EMS) | 0.5000000000 | $477,863 | $477,863 | $238.93 | | |
| LIB | Library Sno-Isle GEN | 0.3153421757 | $477,863 | $477,863 | $150.69 | | |
| LIBCAP | Library Sno-Isle BOND (Cap Fac Imp Area) | 0.0543427938 | $477,863 | $477,863 | $25.97 | | |
| POCOUP | Port of Coupeville GEN | 0.1093371703 | $477,863 | $477,863 | $52.25 | | |
| POCOUPIDD | Port of Coupeville IDD | 0.3409740022 | $477,863 | $477,863 | $162.94 | | |
| COUPSDTECH | School 204 CP (TECH) | 0.7545480007 | $477,863 | $477,863 | $360.57 | | |
| SCH204MO | School 204 Enrichment | 0.6716186034 | $477,863 | $477,863 | $320.94 | | |
| ST | State School | 1.3035497053 | $477,863 | $477,863 | $622.92 | | |
| ST2 | State School Part 2 | 0.8169543533 | $477,863 | $477,863 | $390.39 | | |
| | Total Tax Rate: | 8.0434218834 | | | | | |
| | | | | Taxes w/Current Exemptions: | $3,843.65 | | |
| | | | | Taxes w/o Exemptions: | $3,843.65 | | |
Improvement / Building
| Improvement #1: | MANUFACTURED HOME | State Code: | Y | 1485.0 sqft | Value: | $157,863 |
| Bathrooms: | 2 | Bedrooms: | 3 | | Ceiling: | PLASTER PAINTED | Cooling: | EVAP NO DUCT | | Exterior Wall/Cover: | VINYL | Floor Covering: | CARPET 100% | | Floor Structure: | SLAB ON GRADE | Foundation: | SLAB | | Heating: | FHA ELECTRIC | Interior Finish: | PLASTER | | Roof Slope: | FLAT | Roof Structure/Cover: | CJ ALUMINIUM HEAVY |
|
| | Type | Description | Class CD | Sub Class CD | Year Built | Area |
| | BAS | BASE/MAIN FLOOR | 4 | 0 | 2019 | 1485.0 |
| | OWP | OPEN WOOD PORCH W/STEPS | 4 | 0 | 2019 | 32.0 |
| | OWP | OPEN WOOD PORCH W/STEPS | 4 | 0 | 2019 | 200.0 |
Sketch
| No sketches available for this property. |
Property Image
Land
| 1 | HS | HOMESITE | 0.1148 | 5000.69 | 0.00 | 0.00 | 1.00 | $320,000 | $0 |
Roll Value History
| 2026 | N/A | N/A | N/A | N/A | N/A |
| 2025 | $157,863 | $320,000 | $0 | $477,863 | $477,863 |
| 2024 | $155,884 | $300,000 | $0 | $455,884 | $455,884 |
| 2023 | $138,436 | $300,000 | $0 | $438,436 | $438,436 |
| 2022 | $126,664 | $230,000 | $0 | $356,664 | $356,664 |
| 2021 | $111,279 | $180,000 | $0 | $291,279 | $291,279 |
| 2020 | $109,087 | $180,000 | $0 | $289,087 | $289,087 |
| 2019 | $85,986 | $210,000 | $0 | $295,986 | $295,986 |
| 2018 | $0 | $60,000 | $0 | $60,000 | $60,000 |
| 2017 | $0 | $55,000 | $0 | $55,000 | $55,000 |
| 2016 | $0 | $55,000 | $0 | $55,000 | $55,000 |
| 2015 | $0 | $55,000 | $0 | $55,000 | $55,000 |
| 2014 | $0 | $55,000 | $0 | $55,000 | $55,000 |
| 2013 | $0 | $55,000 | $0 | $55,000 | $55,000 |
| 2012 | $0 | $105,000 | $0 | $105,000 | $105,000 |
| 2011 | $0 | $105,000 | $0 | $105,000 | $105,000 |
| 2010 | $0 | $105,000 | $0 | $105,000 | $105,000 |
| 2009 | $0 | $120,000 | $0 | $120,000 | $120,000 |
| 2008 | $0 | $120,000 | $0 | $120,000 | $120,000 |
| 2007 | $0 | $120,000 | $0 | $120,000 | $120,000 |
Deed and Sales History
| 1 | 04/25/2024 | WD | Warranty Deed | COMMET, ZACHARIAH | TRAMMEL, NICOLE DALPIAS | | | $454,900.00 | 59765 | 4571662 |
| 2 | 08/29/2019 | WD | Warranty Deed | JOHNSTON, WILLIAM F | COMMET, ZACHARIAH | | | $296,000.00 | 40077 | 4470539 |
| 3 | 06/25/2018 | WD | Warranty Deed | JONES JR, ROBERT EDWARD | JOHNSTON, WILLIAM F | | | $79,900.00 | 34832 | 4447320 |
| 4 | 07/10/2017 | QCD | Quit Claim Deed | JONES JR, ROBERT EDWARD | JONES JR, ROBERT EDWARD | | | $0.00 | 30190 | 4426232 |
| 5 | 07/10/2017 | WD | Warranty Deed | ZIMMERMAN, DALE H | JONES JR, ROBERT EDWARD | | | $55,000.00 | 30185 | 4426231 |
| 6 | 05/01/1989 | WD | Warranty Deed | CHROMY, CANDANCE A | ZIMMERMAN, DALE H | | | $9,000.00 | 91828 | 89006345 |
| 7 | 01/01/1900 | OTHER | Other - Misc. Documents | Unknown | CHROMY, CANDANCE A | | | $0.00 | 0 | 0 |
Payout Agreement
| No payout information available.. |