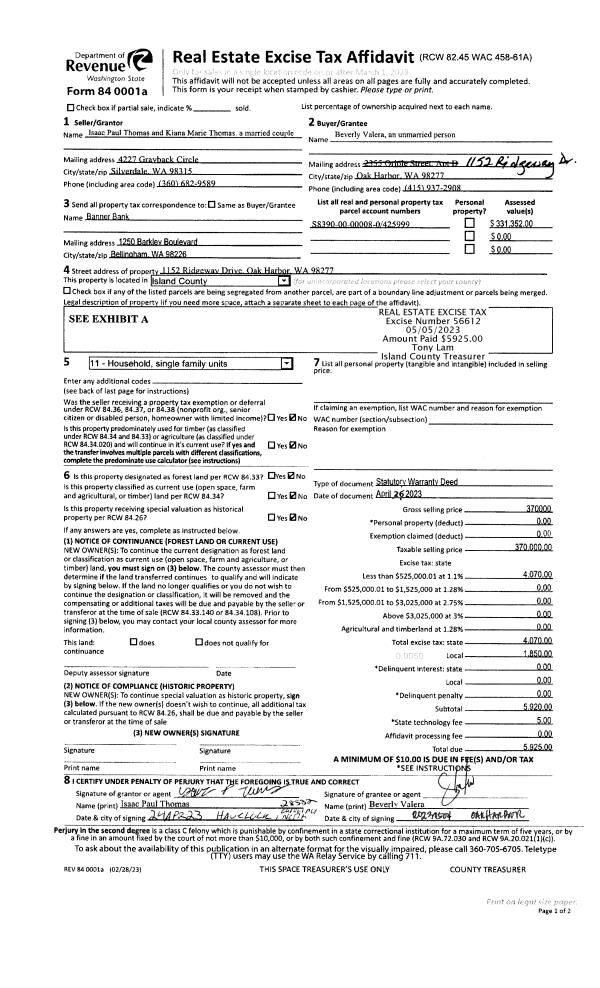
Property
Account |
| Property ID: | 237657 | Abbreviated Legal Description: | CRESCENT AC LOT 3 |
| Geographic ID: | S6430-00-00003-0 | Agent Code: | |
| Type: | Real | | |
| Tax Area: | 112 - APPRAISER-OH Schl Dist, outside OH, improved, greater than 1 acre | Land Use Code | 11 |
| Open Space: | N | DFL | N |
| Historic Property: | N | Remodel Property: | N |
| Multi-Family Redevelopment: | N | | |
| Township: | | Section: | |
| Range: | |
Location |
| Address: | 2753 CRESCENT ACRES RD OAK HARBOR, WA 98277 | Mapsco: | |
| Neighborhood: | Cycle 6 | Map ID: | 646 |
| Neighborhood CD: | 6 |
Owner |
| Name: | HAUN, ACHSAH MAE | Owner ID: | 310523 |
| Mailing Address: | IAN R MERRILL 2753 CRECENT ACRES DR OAK HARBOR, WA 98277 | % Ownership: | 100.0000000000% |
| | | Exemptions: | |
Taxes and Assessment Details
Values
| (+) Improvement Homesite Value: | + | $0 | |
| (+) Improvement Non-Homesite Value: | + | $43,576 | |
| (+) Land Homesite Value: | + | $0 | |
| (+) Land Non-Homesite Value: | + | $250,000 | |
| (+) Curr Use (HS): | + | $0 | $0 |
| (+) Curr Use (NHS): | + | $0 | $0 |
| | | -------------------------- | |
| (=) Market Value: | = | $293,576 | |
| (–) Productivity Loss: | – | $0 | |
| | | -------------------------- | |
| (=) Subtotal: | = | $293,576 | |
| (+) Senior Appraised Value: | + | $0 | |
| (+) Non-Senior Appraised Value: | + | $293,576 | |
| | | -------------------------- | |
| (=) Total Appraised Value: | = | $293,576 | |
| (–) Senior Exemption Loss: | – | $0 | |
| (–) Exemption Loss: | – | $0 | |
| | | -------------------------- | |
| (=) Taxable Value: | = | $293,576 | |
Taxing Jurisdiction
| Owner: | HAUN, ACHSAH MAE | | |
| % Ownership: | 100.0000000000% | | |
| Total Value: | $293,576 | | |
| Tax Area: | 112 - APPRAISER-OH Schl Dist, outside OH, improved, greater than 1 acre |
| CF | Conservation Futures | 0.0316035091 | $293,576 | $293,576 | $9.28 | | |
| CEM1 | Cemetery #1 | 0.0040320932 | $293,576 | $293,576 | $1.18 | | |
| FIRE2 | Fire & Rescue Dist #2 N Whidbey GEN | 0.5475949600 | $293,576 | $293,576 | $160.76 | | |
| HOBOND | Hospital BOND | 0.1910887512 | $293,576 | $293,576 | $56.10 | | |
| HOGEN | Hospital GEN | 0.3902502903 | $293,576 | $293,576 | $114.57 | | |
| CE | County Current Expense | 0.3708482477 | $293,576 | $293,576 | $108.87 | | |
| CR | County Roads | 0.4584763726 | $293,576 | $293,576 | $134.60 | | |
| ISLANDEMS | Hospital GEN (EMS) | 0.5000000000 | $293,576 | $293,576 | $146.79 | | |
| LIB | Library Sno-Isle GEN | 0.3153421757 | $293,576 | $293,576 | $92.58 | | |
| NWHIDPRMT | P & R N Whidbey GEN | 0.2004466701 | $293,576 | $293,576 | $58.85 | | |
| SCH201MO | School 201 Enrichment | 1.8559231640 | $293,576 | $293,576 | $544.85 | | |
| ST | State School | 1.3035497053 | $293,576 | $293,576 | $382.69 | | |
| ST2 | State School Part 2 | 0.8169543533 | $293,576 | $293,576 | $239.84 | | |
| | Total Tax Rate: | 6.9861102925 | | | | | |
| | | | | Taxes w/Current Exemptions: | $2,050.96 | | |
| | | | | Taxes w/o Exemptions: | $2,050.96 | | |
Improvement / Building
| Improvement #1: | MANUFACTURED HOME | State Code: | Y | 1344.0 sqft | Value: | $43,576 |
| Bathrooms: | 0 | Bedrooms: | 0 | | Ceiling: | PLASTER PAINTED | Cooling: | EVAP NO DUCT | | Exterior Wall/Cover: | VINYL | Floor Covering: | CARPET 100% | | Floor Structure: | SLAB ON GRADE | Foundation: | SLAB | | Heating: | FHA ELECTRIC | Interior Finish: | PLASTER | | Plumbing Fixture Cnt: | 1 | Roof Slope: | FLAT | | Roof Structure/Cover: | CJ ALUMINIUM HEAVY |   |   |
|
| | Type | Description | Class CD | Sub Class CD | Year Built | Area |
| | BAS | BASE/MAIN FLOOR | 3 | 0 | 1968 | 1344.0 |
| | DGR | DETACHED GARAGE | 3 | 0 | 1968 | 864.0 |
| | OWR | OPEN WOOD PORCH W/STEPS/ROOF | 3 | 0 | 1968 | 174.0 |
| | OWR | OPEN WOOD PORCH W/STEPS/ROOF | 3 | 0 | 1968 | 126.0 |
| | OCP | OPEN CARPORT | 3 | 0 | 1968 | 192.0 |
Sketch
Property Image
Land
| 1 | 18 | AC (02.01-03.00) | 2.2100 | 96267.60 | 0.00 | 0.00 | 1.00 | $250,000 | $0 |
Roll Value History
| 2026 | N/A | N/A | N/A | N/A | N/A |
| 2025 | $43,576 | $250,000 | $0 | $293,576 | $293,576 |
| 2024 | $46,387 | $230,000 | $0 | $276,387 | $276,387 |
| 2023 | $49,199 | $220,000 | $0 | $269,199 | $269,199 |
| 2022 | $12,100 | $210,000 | $0 | $222,100 | $222,100 |
| 2021 | $12,100 | $160,000 | $0 | $172,100 | $172,100 |
| 2020 | $12,100 | $140,000 | $0 | $152,100 | $152,100 |
| 2019 | $12,100 | $200,000 | $0 | $212,100 | $212,100 |
| 2018 | $12,100 | $170,000 | $0 | $182,100 | $182,100 |
| 2017 | $12,100 | $150,000 | $0 | $162,100 | $162,100 |
| 2016 | $13,340 | $120,000 | $0 | $133,340 | $133,340 |
| 2015 | $13,340 | $100,000 | $0 | $113,340 | $113,340 |
| 2014 | $13,340 | $100,000 | $0 | $113,340 | $113,340 |
| 2013 | $20,430 | $80,000 | $0 | $100,430 | $100,430 |
| 2012 | $21,616 | $108,000 | $0 | $129,616 | $129,616 |
| 2011 | $22,803 | $120,000 | $0 | $142,803 | $142,803 |
| 2010 | $34,855 | $120,000 | $0 | $154,855 | $154,855 |
| 2009 | $35,760 | $105,000 | $0 | $140,760 | $140,760 |
| 2008 | $36,000 | $105,000 | $0 | $141,000 | $141,000 |
| 2007 | $36,454 | $80,000 | $0 | $116,454 | $116,454 |
Deed and Sales History
| 1 | 11/25/2013 | WD | Warranty Deed | HAUN, ACHSAH M | HAUN, ACHSAH MAE | | | $129,570.00 | 13560 | 4351936 |
| 2 | 02/22/2005 | 5 | DNU - Marriage License/Name Change | HAUN, JOHN J | HAUN, ACHSAH M | | | $0.00 | 70480 | 0 |
| 3 | 10/01/1990 | DECREE | Divorce Decree/Legal Separation | HAUN, JOHN J | HAUN, JOHN J | | | $0.00 | 63925 | 0 |
| 4 | 11/01/1986 | OTHER | Other - Misc. Documents | HAUN, JOHN J | HAUN, JOHN J | | | $0.00 | 63310 | 0 |
| 5 | 06/01/1980 | CD | DNU - Correction Deed | HAUN, JOHN J | HAUN, JOHN J | | | $0.00 | 1942 | 369714 |
| 6 | 06/01/1980 | CD | DNU - Correction Deed | HAWN, JOHN J | HAUN, JOHN J | | | $0.00 | 1942 | 369714 |
| 7 | 01/01/1900 | OTHER | Other - Misc. Documents | HAUN, JOHN J | HAWN, JOHN J | | | $0.00 | 0 | 0 |
| 8 | 01/01/1900 | OTHER | Other - Misc. Documents | Unknown | HAUN, JOHN J | | | $0.00 | 0 | 0 |
Payout Agreement
| No payout information available.. |