Property
Account |
| Property ID: | 237675 | Abbreviated Legal Description: | CRESCENT AC LOT 5 |
| Geographic ID: | S6430-00-00005-0 | Agent Code: | |
| Type: | Real | | |
| Tax Area: | 112 - APPRAISER-OH Schl Dist, outside OH, improved, greater than 1 acre | Land Use Code | 11 |
| Open Space: | N | DFL | N |
| Historic Property: | N | Remodel Property: | N |
| Multi-Family Redevelopment: | N | | |
| Township: | | Section: | |
| Range: | |
Location |
| Address: | 239 VALLEY RD OAK HARBOR, WA 98277 | Mapsco: | |
| Neighborhood: | Cycle 6 | Map ID: | 646 |
| Neighborhood CD: | 6 |
Owner |
| Name: | SEASE, HAROLD L & SUZANNE E | Owner ID: | 75400 |
| Mailing Address: | PO BOX 2148 OAK HARBOR, WA 98277-6148 | % Ownership: | 100.0000000000% |
| | | Exemptions: | |
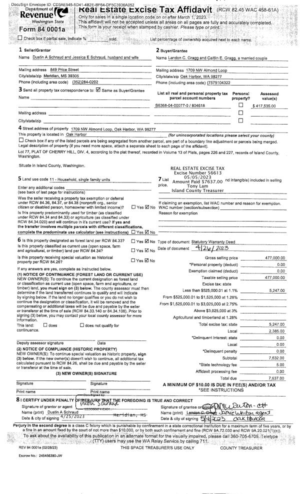
Taxes and Assessment Details
Values
| (+) Improvement Homesite Value: | + | $0 | |
| (+) Improvement Non-Homesite Value: | + | $342,992 | |
| (+) Land Homesite Value: | + | $0 | |
| (+) Land Non-Homesite Value: | + | $250,000 | |
| (+) Curr Use (HS): | + | $0 | $0 |
| (+) Curr Use (NHS): | + | $0 | $0 |
| | | -------------------------- | |
| (=) Market Value: | = | $592,992 | |
| (–) Productivity Loss: | – | $0 | |
| | | -------------------------- | |
| (=) Subtotal: | = | $592,992 | |
| (+) Senior Appraised Value: | + | $0 | |
| (+) Non-Senior Appraised Value: | + | $592,992 | |
| | | -------------------------- | |
| (=) Total Appraised Value: | = | $592,992 | |
| (–) Senior Exemption Loss: | – | $0 | |
| (–) Exemption Loss: | – | $0 | |
| | | -------------------------- | |
| (=) Taxable Value: | = | $592,992 | |
Taxing Jurisdiction
| Owner: | SEASE, HAROLD L & SUZANNE E | | |
| % Ownership: | 100.0000000000% | | |
| Total Value: | $592,992 | | |
| Tax Area: | 112 - APPRAISER-OH Schl Dist, outside OH, improved, greater than 1 acre |
| CF | Conservation Futures | 0.0316035091 | $592,992 | $592,992 | $18.74 | | |
| CEM1 | Cemetery #1 | 0.0040320932 | $592,992 | $592,992 | $2.39 | | |
| FIRE2 | Fire & Rescue Dist #2 N Whidbey GEN | 0.5475949600 | $592,992 | $592,992 | $324.72 | | |
| HOBOND | Hospital BOND | 0.1910887512 | $592,992 | $592,992 | $113.31 | | |
| HOGEN | Hospital GEN | 0.3902502903 | $592,992 | $592,992 | $231.42 | | |
| CE | County Current Expense | 0.3708482477 | $592,992 | $592,992 | $219.91 | | |
| CR | County Roads | 0.4584763726 | $592,992 | $592,992 | $271.87 | | |
| ISLANDEMS | Hospital GEN (EMS) | 0.5000000000 | $592,992 | $592,992 | $296.50 | | |
| LIB | Library Sno-Isle GEN | 0.3153421757 | $592,992 | $592,992 | $187.00 | | |
| NWHIDPRMT | P & R N Whidbey GEN | 0.2004466701 | $592,992 | $592,992 | $118.86 | | |
| SCH201MO | School 201 Enrichment | 1.8559231640 | $592,992 | $592,992 | $1,100.55 | | |
| ST | State School | 1.3035497053 | $592,992 | $592,992 | $772.99 | | |
| ST2 | State School Part 2 | 0.8169543533 | $592,992 | $592,992 | $484.45 | | |
| | Total Tax Rate: | 6.9861102925 | | | | | |
| | | | | Taxes w/Current Exemptions: | $4,142.71 | | |
| | | | | Taxes w/o Exemptions: | $4,142.71 | | |
Improvement / Building
| Improvement #1: | RESIDENTIAL | State Code: | Y | 2282.0 sqft | Value: | $342,992 |
| Bathrooms: | 2 | Bedrooms: | 2 | | Ceiling: | BEAM PAINTED | Exterior Wall/Cover: | PLY/HARDBOARD T-111 | | Floor Covering: | CARPET/VINYL 80-20 | Floor Structure: | WOOD W/SUBFLOOR | | Foundation: | CONCRETE | Heating: | FHA GAS | | Interior Finish: | DRYWALL PAINT | Plumbing Fixture Cnt: | 9 | | Roof Slope: | 12" IN 12" | Roof Structure/Cover: | BEAM ASPHALT |
|
| | Type | Description | Class CD | Sub Class CD | Year Built | Area |
| | BAS | BASE/MAIN FLOOR | 3 | 0 | 1971 | 1762.0 |
| | DGR | DETACHED GARAGE | 3 | 0 | 1971 | 600.0 |
| | BAW | BALCONY WOOD RAIL | 3 | 0 | 1971 | 64.0 |
| | OWP | OPEN WOOD PORCH W/STEPS | 3 | 0 | 1971 | 857.0 |
| | UPH | HALF STORY | 3 | 0 | 1971 | 520.0 |
| | DGR | DETACHED GARAGE | 3 | 0 | 1971 | 720.0 |
| | BAW | BALCONY WOOD RAIL | 3 | 0 | 1971 | 198.4 |
Sketch
Property Image
Land
| 1 | 18 | AC (02.01-03.00) | 2.3900 | 104108.40 | 0.00 | 0.00 | 1.00 | $250,000 | $0 |
Roll Value History
| 2026 | N/A | N/A | N/A | N/A | N/A |
| 2025 | $342,992 | $250,000 | $0 | $592,992 | $592,992 |
| 2024 | $341,724 | $230,000 | $0 | $571,724 | $571,724 |
| 2023 | $346,658 | $220,000 | $0 | $566,658 | $566,658 |
| 2022 | $277,723 | $210,000 | $0 | $487,723 | $487,723 |
| 2021 | $245,054 | $160,000 | $0 | $405,054 | $405,054 |
| 2020 | $240,259 | $140,000 | $0 | $380,259 | $380,259 |
| 2019 | $189,758 | $200,000 | $0 | $389,758 | $389,758 |
| 2018 | $190,385 | $170,000 | $0 | $360,385 | $360,385 |
| 2017 | $191,641 | $150,000 | $0 | $341,641 | $341,641 |
| 2016 | $176,865 | $120,000 | $0 | $296,865 | $296,865 |
| 2015 | $186,893 | $100,000 | $0 | $286,893 | $286,893 |
| 2014 | $189,406 | $100,000 | $0 | $289,406 | $289,406 |
| 2013 | $192,297 | $80,000 | $0 | $272,297 | $272,297 |
| 2012 | $194,850 | $108,000 | $0 | $302,850 | $302,850 |
| 2011 | $197,403 | $120,000 | $0 | $317,403 | $317,403 |
| 2010 | $198,501 | $120,000 | $0 | $318,501 | $318,501 |
| 2009 | $207,603 | $155,000 | $0 | $362,603 | $362,603 |
| 2008 | $218,617 | $125,000 | $0 | $343,617 | $343,617 |
| 2007 | $219,465 | $80,000 | $0 | $299,465 | $299,465 |
Deed and Sales History
| 1 | 05/01/1991 | WD | Warranty Deed | WARD, GILFORD S | SEASE, HAROLD L | | | $142,000.00 | 11636 | 91006926 |
| 2 | 05/01/1983 | OTHER | Other - Misc. Documents | EMERY, IONE J | WARD, GILFORD S | | | $0.00 | 59975 | 0 |
| 3 | 04/01/1981 | WD | Warranty Deed | MCCUSKER, JAMES J | EMERY, IONE J | | | $68,500.00 | 11179 | 382028 |
| 4 | 10/01/1978 | OTHER | Other - Misc. Documents | Unknown | MCCUSKER, JAMES J | | | $59,000.00 | 85285 | 342025 |
Payout Agreement
| No payout information available.. |