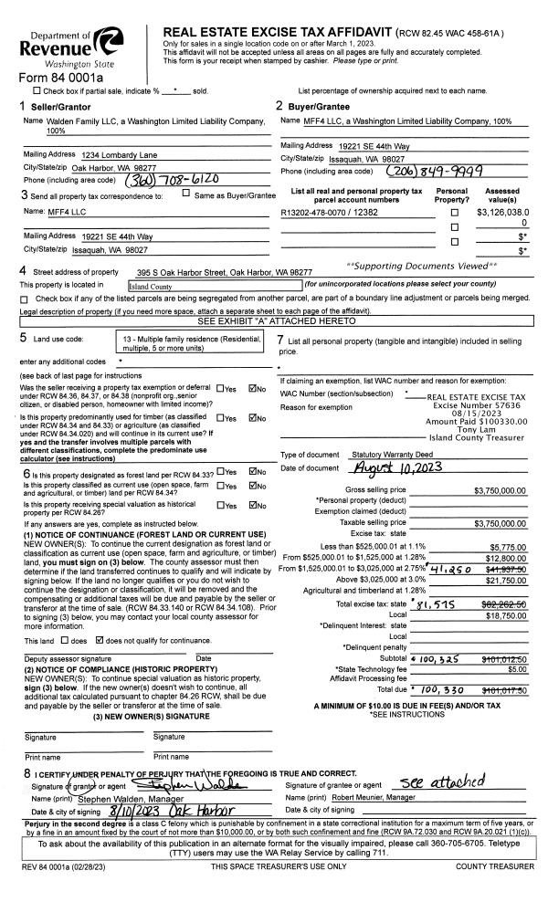
Property
Account |
| Property ID: | 237791 | Abbreviated Legal Description: | CRESCENT AC LOT 15 |
| Geographic ID: | S6430-00-00015-0 | Agent Code: | |
| Type: | Real | | |
| Tax Area: | 112 - APPRAISER-OH Schl Dist, outside OH, improved, greater than 1 acre | Land Use Code | 11 |
| Open Space: | N | DFL | N |
| Historic Property: | N | Remodel Property: | N |
| Multi-Family Redevelopment: | N | | |
| Township: | | Section: | |
| Range: | |
Location |
| Address: | 339 MOUNTS RD OAK HARBOR, WA 98277 | Mapsco: | |
| Neighborhood: | Cycle 6 | Map ID: | 640 |
| Neighborhood CD: | 6 |
Owner |
| Name: | SMITH, DELBERT L | Owner ID: | 190767 |
| Mailing Address: | 316 SE PIONEER WAY #560 OAK HARBOR, WA 98277-5716 | % Ownership: | 100.0000000000% |
| | | Exemptions: | |
Taxes and Assessment Details
Values
| (+) Improvement Homesite Value: | + | $0 | |
| (+) Improvement Non-Homesite Value: | + | $223,310 | |
| (+) Land Homesite Value: | + | $0 | |
| (+) Land Non-Homesite Value: | + | $250,000 | |
| (+) Curr Use (HS): | + | $0 | $0 |
| (+) Curr Use (NHS): | + | $0 | $0 |
| | | -------------------------- | |
| (=) Market Value: | = | $473,310 | |
| (–) Productivity Loss: | – | $0 | |
| | | -------------------------- | |
| (=) Subtotal: | = | $473,310 | |
| (+) Senior Appraised Value: | + | $0 | |
| (+) Non-Senior Appraised Value: | + | $473,310 | |
| | | -------------------------- | |
| (=) Total Appraised Value: | = | $473,310 | |
| (–) Senior Exemption Loss: | – | $0 | |
| (–) Exemption Loss: | – | $0 | |
| | | -------------------------- | |
| (=) Taxable Value: | = | $473,310 | |
Taxing Jurisdiction
| Owner: | SMITH, DELBERT L | | |
| % Ownership: | 100.0000000000% | | |
| Total Value: | $473,310 | | |
| Tax Area: | 112 - APPRAISER-OH Schl Dist, outside OH, improved, greater than 1 acre |
| CF | Conservation Futures | 0.0316035091 | $473,310 | $473,310 | $14.96 | | |
| CEM1 | Cemetery #1 | 0.0040320932 | $473,310 | $473,310 | $1.91 | | |
| FIRE2 | Fire & Rescue Dist #2 N Whidbey GEN | 0.5475949600 | $473,310 | $473,310 | $259.18 | | |
| HOBOND | Hospital BOND | 0.1910887512 | $473,310 | $473,310 | $90.44 | | |
| HOGEN | Hospital GEN | 0.3902502903 | $473,310 | $473,310 | $184.71 | | |
| CE | County Current Expense | 0.3708482477 | $473,310 | $473,310 | $175.53 | | |
| CR | County Roads | 0.4584763726 | $473,310 | $473,310 | $217.00 | | |
| ISLANDEMS | Hospital GEN (EMS) | 0.5000000000 | $473,310 | $473,310 | $236.66 | | |
| LIB | Library Sno-Isle GEN | 0.3153421757 | $473,310 | $473,310 | $149.25 | | |
| NWHIDPRMT | P & R N Whidbey GEN | 0.2004466701 | $473,310 | $473,310 | $94.87 | | |
| SCH201MO | School 201 Enrichment | 1.8559231640 | $473,310 | $473,310 | $878.43 | | |
| ST | State School | 1.3035497053 | $473,310 | $473,310 | $616.98 | | |
| ST2 | State School Part 2 | 0.8169543533 | $473,310 | $473,310 | $386.67 | | |
| | Total Tax Rate: | 6.9861102925 | | | | | |
| | | | | Taxes w/Current Exemptions: | $3,306.59 | | |
| | | | | Taxes w/o Exemptions: | $3,306.59 | | |
Improvement / Building
| Improvement #1: | RESIDENTIAL | State Code: | Y | 1698.0 sqft | Value: | $223,310 |
| Bathrooms: | 2.5 | Bedrooms: | 3 | | Ceiling: | DRY WALL SPRAYED | Exterior Wall/Cover: | PLY/HARDBOARD T-111 | | Floor Covering: | CARPET/VINYL 80-20 | Floor Structure: | WOOD W/SUBFLOOR | | Foundation: | CONCRETE | Heating: | BASEBOARD ELECTRIC | | Interior Finish: | DRYWALL PAINT | Plumbing Fixture Cnt: | 11 | | Roof Slope: | 4" IN 12" | Roof Structure/Cover: | CJ WOOD SHAKES |
|
| | Type | Description | Class CD | Sub Class CD | Year Built | Area |
| | BAS | BASE/MAIN FLOOR | 3 | 0 | 1971 | 1698.0 |
| | OP1 | OPEN PORCH SLAB | 3 | 0 | 1971 | 400.0 |
| | OP3 | OPEN PORCH W/ROOF | 3 | 0 | 1971 | 214.0 |
| | AGR | ATTACHED GARAGE | 3 | 0 | 1971 | 546.0 |
Sketch
Property Image
Land
| 1 | 18 | AC (02.01-03.00) | 2.6000 | 113256.00 | 0.00 | 0.00 | 1.00 | $250,000 | $0 |
Roll Value History
| 2026 | N/A | N/A | N/A | N/A | N/A |
| 2025 | $223,310 | $250,000 | $0 | $473,310 | $473,310 |
| 2024 | $231,416 | $230,000 | $0 | $461,416 | $461,416 |
| 2023 | $234,806 | $220,000 | $0 | $454,806 | $454,806 |
| 2022 | $194,670 | $210,000 | $0 | $404,670 | $404,670 |
| 2021 | $171,829 | $160,000 | $0 | $331,829 | $331,829 |
| 2020 | $168,128 | $140,000 | $0 | $308,128 | $308,128 |
| 2019 | $123,338 | $200,000 | $0 | $323,338 | $323,338 |
| 2018 | $123,781 | $170,000 | $0 | $293,781 | $293,781 |
| 2017 | $124,673 | $150,000 | $0 | $274,673 | $274,673 |
| 2016 | $115,120 | $120,000 | $0 | $235,120 | $235,120 |
| 2015 | $117,038 | $100,000 | $0 | $217,038 | $217,038 |
| 2014 | $118,957 | $100,000 | $0 | $218,957 | $218,957 |
| 2013 | $120,876 | $80,000 | $0 | $200,876 | $200,876 |
| 2012 | $122,795 | $108,000 | $0 | $230,795 | $230,795 |
| 2011 | $124,714 | $120,000 | $0 | $244,714 | $244,714 |
| 2010 | $129,091 | $120,000 | $0 | $249,091 | $249,091 |
| 2009 | $134,960 | $155,000 | $0 | $289,960 | $289,960 |
| 2008 | $142,873 | $125,000 | $0 | $267,873 | $267,873 |
| 2007 | $144,965 | $80,000 | $0 | $224,965 | $224,965 |
Deed and Sales History
Payout Agreement
| No payout information available.. |