Property
Account |
| Property ID: | 237826 | Abbreviated Legal Description: | CRESCENT AC LOT 18 |
| Geographic ID: | S6430-00-00018-0 | Agent Code: | |
| Type: | Real | | |
| Tax Area: | 112 - APPRAISER-OH Schl Dist, outside OH, improved, greater than 1 acre | Land Use Code | 11 |
| Open Space: | N | DFL | N |
| Historic Property: | N | Remodel Property: | N |
| Multi-Family Redevelopment: | N | | |
| Township: | | Section: | |
| Range: | |
Location |
| Address: | 400 MOUNTS RD OAK HARBOR, WA 98277 | Mapsco: | |
| Neighborhood: | Cycle 6 | Map ID: | 646 |
| Neighborhood CD: | 6 |
Owner |
| Name: | STORY, JEAN A | Owner ID: | 283839 |
| Mailing Address: | 680 SW 53RD ST CORVALLIS, OR 97333-2930 | % Ownership: | 100.0000000000% |
| | | Exemptions: | |
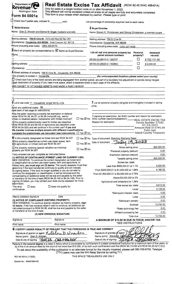
Taxes and Assessment Details
Values
| (+) Improvement Homesite Value: | + | $0 | |
| (+) Improvement Non-Homesite Value: | + | $282,719 | |
| (+) Land Homesite Value: | + | $0 | |
| (+) Land Non-Homesite Value: | + | $210,000 | |
| (+) Curr Use (HS): | + | $0 | $0 |
| (+) Curr Use (NHS): | + | $0 | $0 |
| | | -------------------------- | |
| (=) Market Value: | = | $492,719 | |
| (–) Productivity Loss: | – | $0 | |
| | | -------------------------- | |
| (=) Subtotal: | = | $492,719 | |
| (+) Senior Appraised Value: | + | $0 | |
| (+) Non-Senior Appraised Value: | + | $492,719 | |
| | | -------------------------- | |
| (=) Total Appraised Value: | = | $492,719 | |
| (–) Senior Exemption Loss: | – | $0 | |
| (–) Exemption Loss: | – | $0 | |
| | | -------------------------- | |
| (=) Taxable Value: | = | $492,719 | |
Taxing Jurisdiction
| Owner: | STORY, JEAN A | | |
| % Ownership: | 100.0000000000% | | |
| Total Value: | $492,719 | | |
| Tax Area: | 112 - APPRAISER-OH Schl Dist, outside OH, improved, greater than 1 acre |
| CF | Conservation Futures | 0.0316035091 | $492,719 | $492,719 | $15.57 | | |
| CEM1 | Cemetery #1 | 0.0040320932 | $492,719 | $492,719 | $1.99 | | |
| FIRE2 | Fire & Rescue Dist #2 N Whidbey GEN | 0.5475949600 | $492,719 | $492,719 | $269.81 | | |
| HOBOND | Hospital BOND | 0.1910887512 | $492,719 | $492,719 | $94.15 | | |
| HOGEN | Hospital GEN | 0.3902502903 | $492,719 | $492,719 | $192.28 | | |
| CE | County Current Expense | 0.3708482477 | $492,719 | $492,719 | $182.72 | | |
| CR | County Roads | 0.4584763726 | $492,719 | $492,719 | $225.90 | | |
| ISLANDEMS | Hospital GEN (EMS) | 0.5000000000 | $492,719 | $492,719 | $246.36 | | |
| LIB | Library Sno-Isle GEN | 0.3153421757 | $492,719 | $492,719 | $155.38 | | |
| NWHIDPRMT | P & R N Whidbey GEN | 0.2004466701 | $492,719 | $492,719 | $98.76 | | |
| SCH201MO | School 201 Enrichment | 1.8559231640 | $492,719 | $492,719 | $914.45 | | |
| ST | State School | 1.3035497053 | $492,719 | $492,719 | $642.28 | | |
| ST2 | State School Part 2 | 0.8169543533 | $492,719 | $492,719 | $402.53 | | |
| | Total Tax Rate: | 6.9861102925 | | | | | |
| | | | | Taxes w/Current Exemptions: | $3,442.18 | | |
| | | | | Taxes w/o Exemptions: | $3,442.18 | | |
Improvement / Building
| Improvement #1: | RESIDENTIAL | State Code: | Y | 1943.4 sqft | Value: | $282,719 |
| Bathrooms: | 2 | Bedrooms: | 3 | | Ceiling: | DRY WALL SPRAYED | Exterior Wall/Cover: | WOOD SIDING | | Floor Covering: | CARPET/VINYL 80-20 | Floor Structure: | WOOD W/SUBFLOOR | | Foundation: | CONCRETE | Heating: | FHA GAS | | Interior Finish: | DRYWALL PAINT | Plumbing Fixture Cnt: | 9 | | Roof Slope: | 4" IN 12" | Roof Structure/Cover: | CJ ASPHALT |
|
| | Type | Description | Class CD | Sub Class CD | Year Built | Area |
| | BAS | BASE/MAIN FLOOR | 3 | 0 | 1986 | 1943.4 |
| | DGR | DETACHED GARAGE | 3 | 0 | 1986 | 864.0 |
| | UTY | STORAGE/UTILITY | 3 | 0 | 1986 | 248.0 |
| | DGR | DETACHED GARAGE | 3 | 0 | 1986 | 1728.0 |
| | CPD | OPEN CARPORT DIRT FLOOR | 3 | 0 | 1986 | 576.0 |
| | OP4 | OPEN PORCH W/CEILING-ROOF | 3 | 0 | 1986 | 164.0 |
Sketch
Property Image
Land
| 1 | 17 | AC (01.01-02.00) | 0.0000 | 0.00 | 0.00 | 0.00 | 1.00 | $210,000 | $0 |
Roll Value History
| 2026 | N/A | N/A | N/A | N/A | N/A |
| 2025 | $282,719 | $210,000 | $0 | $492,719 | $492,719 |
| 2024 | $286,432 | $210,000 | $0 | $496,432 | $496,432 |
| 2023 | $290,147 | $210,000 | $0 | $500,147 | $500,147 |
| 2022 | $258,696 | $200,000 | $0 | $458,696 | $458,696 |
| 2021 | $232,124 | $130,000 | $0 | $362,124 | $362,124 |
| 2020 | $227,783 | $130,000 | $0 | $357,783 | $357,783 |
| 2019 | $180,025 | $185,000 | $0 | $365,025 | $365,025 |
| 2018 | $180,543 | $165,000 | $0 | $345,543 | $345,543 |
| 2017 | $181,548 | $150,000 | $0 | $331,548 | $331,548 |
| 2016 | $189,362 | $90,000 | $0 | $279,362 | $279,362 |
| 2015 | $191,550 | $85,000 | $0 | $276,550 | $276,550 |
| 2014 | $193,738 | $80,000 | $0 | $273,738 | $273,738 |
| 2013 | $195,926 | $80,000 | $0 | $275,926 | $275,926 |
| 2012 | $198,114 | $108,000 | $0 | $306,114 | $306,114 |
| 2011 | $200,302 | $120,000 | $0 | $320,302 | $320,302 |
| 2010 | $203,754 | $120,000 | $0 | $323,754 | $323,754 |
| 2009 | $212,537 | $120,000 | $0 | $332,537 | $332,537 |
| 2008 | $220,262 | $120,000 | $0 | $340,262 | $340,262 |
| 2007 | $223,967 | $75,000 | $0 | $298,967 | $298,967 |
Deed and Sales History
| 1 | 02/02/2018 | PRD | Personal Representatives Deed | STORY, MERLE W | STORY, JEAN A | | | $0.00 | 32880 | 4438825 |
| 2 | 11/01/1986 | WD | Warranty Deed | SELLGREN, & C | STORY, MERLE W | | | $88,700.00 | 63307 | 86014943 |
| 3 | 06/01/1986 | WD | Warranty Deed | KOETJE, EDWARD L | SELLGREN, & C | | | $15,500.00 | 61600 | 86007560 |
| 4 | 01/01/1900 | OTHER | Other - Misc. Documents | Unknown | KOETJE, EDWARD L | | | $0.00 | 0 | 0 |
Payout Agreement
| No payout information available.. |