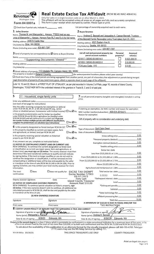
Property
Account |
| Property ID: | 237844 | Abbreviated Legal Description: | CRESCENT AC LOT 20 |
| Geographic ID: | S6430-00-00020-0 | Agent Code: | |
| Type: | Real | | |
| Tax Area: | 112 - APPRAISER-OH Schl Dist, outside OH, improved, greater than 1 acre | Land Use Code | 11 |
| Open Space: | N | DFL | N |
| Historic Property: | N | Remodel Property: | N |
| Multi-Family Redevelopment: | N | | |
| Township: | | Section: | |
| Range: | |
Location |
| Address: | 360 MOUNTS RD OAK HARBOR, WA 98277 | Mapsco: | |
| Neighborhood: | Cycle 6 | Map ID: | 646 |
| Neighborhood CD: | 6 |
Owner |
| Name: | DINGER TTEE, JOHN P | Owner ID: | 304664 |
| Mailing Address: | DEBORAH E DINGER TTEE 360 MOUNTS RD OAK HARBOR, WA 98277 | % Ownership: | 100.0000000000% |
| | | Exemptions: | |
Taxes and Assessment Details
Values
| (+) Improvement Homesite Value: | + | $0 | |
| (+) Improvement Non-Homesite Value: | + | $232,690 | |
| (+) Land Homesite Value: | + | $0 | |
| (+) Land Non-Homesite Value: | + | $250,000 | |
| (+) Curr Use (HS): | + | $0 | $0 |
| (+) Curr Use (NHS): | + | $0 | $0 |
| | | -------------------------- | |
| (=) Market Value: | = | $482,690 | |
| (–) Productivity Loss: | – | $0 | |
| | | -------------------------- | |
| (=) Subtotal: | = | $482,690 | |
| (+) Senior Appraised Value: | + | $0 | |
| (+) Non-Senior Appraised Value: | + | $482,690 | |
| | | -------------------------- | |
| (=) Total Appraised Value: | = | $482,690 | |
| (–) Senior Exemption Loss: | – | $0 | |
| (–) Exemption Loss: | – | $0 | |
| | | -------------------------- | |
| (=) Taxable Value: | = | $482,690 | |
Taxing Jurisdiction
| Owner: | DINGER TTEE, JOHN P | | |
| % Ownership: | 100.0000000000% | | |
| Total Value: | $482,690 | | |
| Tax Area: | 112 - APPRAISER-OH Schl Dist, outside OH, improved, greater than 1 acre |
| CF | Conservation Futures | 0.0316035091 | $482,690 | $482,690 | $15.25 | | |
| CEM1 | Cemetery #1 | 0.0040320932 | $482,690 | $482,690 | $1.95 | | |
| FIRE2 | Fire & Rescue Dist #2 N Whidbey GEN | 0.5475949600 | $482,690 | $482,690 | $264.32 | | |
| HOBOND | Hospital BOND | 0.1910887512 | $482,690 | $482,690 | $92.24 | | |
| HOGEN | Hospital GEN | 0.3902502903 | $482,690 | $482,690 | $188.37 | | |
| CE | County Current Expense | 0.3708482477 | $482,690 | $482,690 | $179.00 | | |
| CR | County Roads | 0.4584763726 | $482,690 | $482,690 | $221.30 | | |
| ISLANDEMS | Hospital GEN (EMS) | 0.5000000000 | $482,690 | $482,690 | $241.35 | | |
| LIB | Library Sno-Isle GEN | 0.3153421757 | $482,690 | $482,690 | $152.21 | | |
| NWHIDPRMT | P & R N Whidbey GEN | 0.2004466701 | $482,690 | $482,690 | $96.75 | | |
| SCH201MO | School 201 Enrichment | 1.8559231640 | $482,690 | $482,690 | $895.84 | | |
| ST | State School | 1.3035497053 | $482,690 | $482,690 | $629.21 | | |
| ST2 | State School Part 2 | 0.8169543533 | $482,690 | $482,690 | $394.34 | | |
| | Total Tax Rate: | 6.9861102925 | | | | | |
| | | | | Taxes w/Current Exemptions: | $3,372.13 | | |
| | | | | Taxes w/o Exemptions: | $3,372.13 | | |
Improvement / Building
| Improvement #1: | RESIDENTIAL | State Code: | Y | 1480.0 sqft | Value: | $232,690 |
| Bathrooms: | 2 | Bedrooms: | 3 | | Ceiling: | DRY WALL SPRAYED | Exterior Wall/Cover: | WOOD SIDING | | Floor Covering: | CARPET/VINYL 80-20 | Floor Structure: | WOOD W/SUBFLOOR | | Foundation: | CONCRETE | Heating: | BASEBOARD ELECTRIC | | Interior Finish: | DRYWALL PAINT | Plumbing Fixture Cnt: | 9 | | Roof Slope: | 6" IN 12" | Roof Structure/Cover: | CJ WOOD SHAKES |
|
| | Type | Description | Class CD | Sub Class CD | Year Built | Area |
| | BAS | BASE/MAIN FLOOR | 3 | 0 | 1976 | 1172.0 |
| | OWC | OPEN WOOD PORCH W/STEPS/ROOF/C | 3 | 0 | 1976 | 24.0 |
| | BIG | BUILT IN GARAGE | 3 | 0 | 1976 | 440.0 |
| | UPH | HALF STORY | 3 | 0 | 1976 | 308.0 |
| | OWP | OPEN WOOD PORCH W/STEPS | 3 | 0 | 1976 | 704.0 |
| | DGR | DETACHED GARAGE | 3 | 0 | 1976 | 620.0 |
| | UTY | STORAGE/UTILITY | 3 | 0 | 1976 | 1296.0 |
Sketch
Property Image
Land
| 1 | 18 | AC (02.01-03.00) | 2.5100 | 109335.60 | 0.00 | 0.00 | 1.00 | $250,000 | $0 |
Roll Value History
| 2026 | N/A | N/A | N/A | N/A | N/A |
| 2025 | $232,690 | $250,000 | $0 | $482,690 | $482,690 |
| 2024 | $240,253 | $230,000 | $0 | $470,253 | $470,253 |
| 2023 | $243,494 | $220,000 | $0 | $463,494 | $463,494 |
| 2022 | $208,399 | $210,000 | $0 | $418,399 | $418,399 |
| 2021 | $186,932 | $160,000 | $0 | $346,932 | $346,932 |
| 2020 | $182,990 | $140,000 | $0 | $322,990 | $322,990 |
| 2019 | $137,133 | $200,000 | $0 | $337,133 | $337,133 |
| 2018 | $137,577 | $170,000 | $0 | $307,577 | $307,577 |
| 2017 | $138,466 | $150,000 | $0 | $288,466 | $288,466 |
| 2016 | $117,966 | $120,000 | $0 | $237,966 | $237,966 |
| 2015 | $119,656 | $100,000 | $0 | $219,656 | $219,656 |
| 2014 | $121,348 | $100,000 | $0 | $221,348 | $221,348 |
| 2013 | $123,040 | $80,000 | $0 | $203,040 | $203,040 |
| 2012 | $124,731 | $108,000 | $0 | $232,731 | $232,731 |
| 2011 | $122,941 | $120,000 | $0 | $242,941 | $242,941 |
| 2010 | $135,020 | $120,000 | $0 | $255,020 | $255,020 |
| 2009 | $141,060 | $155,000 | $0 | $296,060 | $296,060 |
| 2008 | $149,074 | $125,000 | $0 | $274,074 | $274,074 |
| 2007 | $151,903 | $80,000 | $0 | $231,903 | $231,903 |
Deed and Sales History
| 1 | 04/21/2022 | QCD | Quit Claim Deed | DINGER, JOHN P | DINGER TTEE, JOHN P | | | $0.00 | 52926 | 4544403 |
| 2 | 08/01/1978 | OTHER | Other - Misc. Documents | Unknown | DINGER, JOHN P | | | $62,000.00 | 84131 | 338723 |
Payout Agreement
| No payout information available.. |