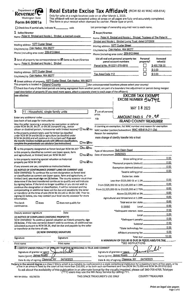
Property
Account |
| Property ID: | 237880 | Abbreviated Legal Description: | CRESCENT AC LOT 24 |
| Geographic ID: | S6430-00-00024-0 | Agent Code: | |
| Type: | Real | | |
| Tax Area: | 112 - APPRAISER-OH Schl Dist, outside OH, improved, greater than 1 acre | Land Use Code | 11 |
| Open Space: | N | DFL | N |
| Historic Property: | N | Remodel Property: | N |
| Multi-Family Redevelopment: | N | | |
| Township: | | Section: | |
| Range: | |
Location |
| Address: | 334 VALLEY RD OAK HARBOR, WA 98277 | Mapsco: | |
| Neighborhood: | Cycle 6 | Map ID: | 646 |
| Neighborhood CD: | 6 |
Owner |
| Name: | FENTON, JUSTIN W | Owner ID: | 281523 |
| Mailing Address: | ELYSIA FENTON 334 VALLEY RD OAK HARBOR, WA 98277 | % Ownership: | 100.0000000000% |
| | | Exemptions: | |
Taxes and Assessment Details
Values
| (+) Improvement Homesite Value: | + | $0 | |
| (+) Improvement Non-Homesite Value: | + | $245,227 | |
| (+) Land Homesite Value: | + | $0 | |
| (+) Land Non-Homesite Value: | + | $250,000 | |
| (+) Curr Use (HS): | + | $0 | $0 |
| (+) Curr Use (NHS): | + | $0 | $0 |
| | | -------------------------- | |
| (=) Market Value: | = | $495,227 | |
| (–) Productivity Loss: | – | $0 | |
| | | -------------------------- | |
| (=) Subtotal: | = | $495,227 | |
| (+) Senior Appraised Value: | + | $0 | |
| (+) Non-Senior Appraised Value: | + | $495,227 | |
| | | -------------------------- | |
| (=) Total Appraised Value: | = | $495,227 | |
| (–) Senior Exemption Loss: | – | $0 | |
| (–) Exemption Loss: | – | $0 | |
| | | -------------------------- | |
| (=) Taxable Value: | = | $495,227 | |
Taxing Jurisdiction
| Owner: | FENTON, JUSTIN W | | |
| % Ownership: | 100.0000000000% | | |
| Total Value: | $495,227 | | |
| Tax Area: | 112 - APPRAISER-OH Schl Dist, outside OH, improved, greater than 1 acre |
| CF | Conservation Futures | 0.0316035091 | $495,227 | $495,227 | $15.65 | | |
| CEM1 | Cemetery #1 | 0.0040320932 | $495,227 | $495,227 | $2.00 | | |
| FIRE2 | Fire & Rescue Dist #2 N Whidbey GEN | 0.5475949600 | $495,227 | $495,227 | $271.18 | | |
| HOBOND | Hospital BOND | 0.1910887512 | $495,227 | $495,227 | $94.63 | | |
| HOGEN | Hospital GEN | 0.3902502903 | $495,227 | $495,227 | $193.26 | | |
| CE | County Current Expense | 0.3708482477 | $495,227 | $495,227 | $183.65 | | |
| CR | County Roads | 0.4584763726 | $495,227 | $495,227 | $227.05 | | |
| ISLANDEMS | Hospital GEN (EMS) | 0.5000000000 | $495,227 | $495,227 | $247.61 | | |
| LIB | Library Sno-Isle GEN | 0.3153421757 | $495,227 | $495,227 | $156.17 | | |
| NWHIDPRMT | P & R N Whidbey GEN | 0.2004466701 | $495,227 | $495,227 | $99.27 | | |
| SCH201MO | School 201 Enrichment | 1.8559231640 | $495,227 | $495,227 | $919.10 | | |
| ST | State School | 1.3035497053 | $495,227 | $495,227 | $645.55 | | |
| ST2 | State School Part 2 | 0.8169543533 | $495,227 | $495,227 | $404.58 | | |
| | Total Tax Rate: | 6.9861102925 | | | | | |
| | | | | Taxes w/Current Exemptions: | $3,459.70 | | |
| | | | | Taxes w/o Exemptions: | $3,459.70 | | |
Improvement / Building
| Improvement #1: | RESIDENTIAL | State Code: | Y | 2132.0 sqft | Value: | $245,227 |
| Bathrooms: | 2 | Bedrooms: | 3 | | Ceiling: | DRYWALL PAINTED | Exterior Wall/Cover: | WOOD SIDING | | Floor Covering: | VINYL TILE | Floor Structure: | WOOD W/SUBFLOOR | | Foundation: | CONCRETE | Heating: | FHA GAS | | Interior Finish: | DRYWALL PAINT | Plumbing Fixture Cnt: | 9 | | Roof Slope: | 3" IN 12" | Roof Structure/Cover: | CJ ASPHALT |
|
| | Type | Description | Class CD | Sub Class CD | Year Built | Area |
| | BAS | BASE/MAIN FLOOR | 3 | 0 | 1974 | 1066.0 |
| | DWN | DOWNSTAIRS LIVING AREA | 3 | 0 | 1974 | 1066.0 |
| | AGR | ATTACHED GARAGE | 3 | 0 | 1974 | 484.0 |
| | UTY | STORAGE/UTILITY | 3 | 0 | 1974 | 250.0 |
| | OWR | OPEN WOOD PORCH W/STEPS/ROOF | 3 | 0 | 1974 | 66.8 |
| | OWP | OPEN WOOD PORCH W/STEPS | 3 | 0 | 1974 | 484.0 |
Sketch
Property Image
Land
| 1 | 18 | AC (02.01-03.00) | 0.0000 | 0.00 | 0.00 | 0.00 | 1.00 | $250,000 | $0 |
Roll Value History
| 2026 | N/A | N/A | N/A | N/A | N/A |
| 2025 | $245,227 | $250,000 | $0 | $495,227 | $495,227 |
| 2024 | $248,928 | $230,000 | $0 | $478,928 | $478,928 |
| 2023 | $252,629 | $220,000 | $0 | $472,629 | $472,629 |
| 2022 | $203,093 | $210,000 | $0 | $413,093 | $413,093 |
| 2021 | $195,458 | $160,000 | $0 | $355,458 | $355,458 |
| 2020 | $190,436 | $140,000 | $0 | $330,436 | $330,436 |
| 2019 | $133,309 | $200,000 | $0 | $333,309 | $333,309 |
| 2018 | $133,790 | $170,000 | $0 | $303,790 | $303,790 |
| 2017 | $134,747 | $150,000 | $0 | $284,747 | $284,747 |
| 2016 | $129,110 | $120,000 | $0 | $249,110 | $249,110 |
| 2015 | $131,008 | $100,000 | $0 | $231,008 | $231,008 |
| 2014 | $117,718 | $100,000 | $0 | $217,718 | $217,718 |
| 2013 | $119,616 | $80,000 | $0 | $199,616 | $199,616 |
| 2012 | $121,515 | $108,000 | $0 | $229,515 | $229,515 |
| 2011 | $123,414 | $120,000 | $0 | $243,414 | $243,414 |
| 2010 | $126,311 | $120,000 | $0 | $246,311 | $246,311 |
| 2009 | $132,022 | $155,000 | $0 | $287,022 | $287,022 |
| 2008 | $139,619 | $125,000 | $0 | $264,619 | $264,619 |
| 2007 | $141,524 | $80,000 | $0 | $221,524 | $221,524 |
Deed and Sales History
| 1 | 08/11/2017 | QCD | Quit Claim Deed | FENTON, JUSTIN W. | FENTON, JUSTIN W | | | $0.00 | 30723 | 4428509 |
| 2 | 05/29/2014 | QCD | Quit Claim Deed | FENTON, JUSTIN W. | FENTON, JUSTIN W. | | | $0.00 | 15527 | 4360369 |
| 3 | 05/29/2014 | WD | Warranty Deed | WOLFF, CLARENCE J | FENTON, JUSTIN W. | | | $231,000.00 | 15526 | 4360368 |
| 4 | 05/01/1987 | WD | Warranty Deed | BROADBENT, HARVEY J | WOLFF, CLARENCE J | | | $75,000.00 | 71383 | 87006754 |
| 5 | 05/01/1985 | DECREE | Divorce Decree/Legal Separation | BROADBENT, HARVEY J | BROADBENT, HARVEY J | | | $0.00 | 51336 | 85005435 |
| 6 | 07/01/1978 | OTHER | Other - Misc. Documents | Unknown | BROADBENT, HARVEY J | | | $55,400.00 | 83275 | 336059 |
Payout Agreement
| No payout information available.. |