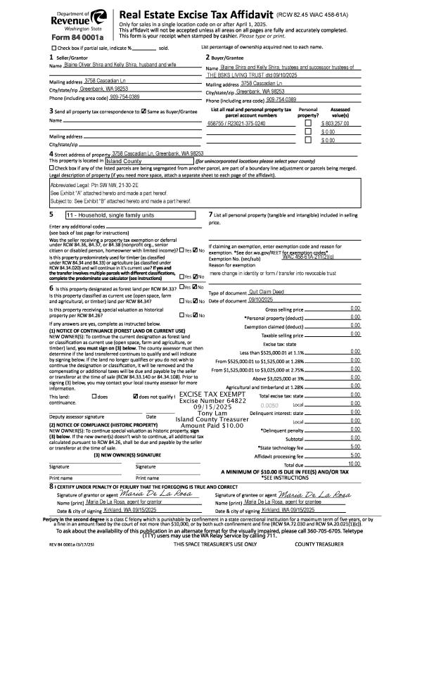
Property
Account |
| Property ID: | 238157 | Abbreviated Legal Description: | CROCKETT LK EST LOT 5-SL3C: BG SELY CR LOT 5 N31*W177.30' S55*W139.65' S32*E177.19' N55*E137.55' TPB TGW EZ |
| Geographic ID: | S6435-00-00005-3 | Agent Code: | |
| Type: | Real | | |
| Tax Area: | 380 - APPRAISER-Cpvl Schl Dist, Special Dist, improved & less than 1 acre | Land Use Code | 11 |
| Open Space: | N | DFL | N |
| Historic Property: | N | Remodel Property: | N |
| Multi-Family Redevelopment: | N | | |
| Township: | | Section: | |
| Range: | |
Location |
| Address: | 580 WANAMAKER RD COUPEVILLE, WA 98239 | Mapsco: | |
| Neighborhood: | Cycle 2 | Map ID: | 65 |
| Neighborhood CD: | 2 |
Owner |
| Name: | ENCINAS TTEE, GILBERT | Owner ID: | 293206 |
| Mailing Address: | 3616 COLBY AVE #331 EVERETT, WA 98201 | % Ownership: | 100.0000000000% |
| | | Exemptions: | |
Taxes and Assessment Details
Values
| (+) Improvement Homesite Value: | + | $0 | |
| (+) Improvement Non-Homesite Value: | + | $4,000 | |
| (+) Land Homesite Value: | + | $0 | |
| (+) Land Non-Homesite Value: | + | $140,000 | |
| (+) Curr Use (HS): | + | $0 | $0 |
| (+) Curr Use (NHS): | + | $0 | $0 |
| | | -------------------------- | |
| (=) Market Value: | = | $144,000 | |
| (–) Productivity Loss: | – | $0 | |
| | | -------------------------- | |
| (=) Subtotal: | = | $144,000 | |
| (+) Senior Appraised Value: | + | $0 | |
| (+) Non-Senior Appraised Value: | + | $144,000 | |
| | | -------------------------- | |
| (=) Total Appraised Value: | = | $144,000 | |
| (–) Senior Exemption Loss: | – | $0 | |
| (–) Exemption Loss: | – | $0 | |
| | | -------------------------- | |
| (=) Taxable Value: | = | $144,000 | |
Taxing Jurisdiction
| Owner: | ENCINAS TTEE, GILBERT | | |
| % Ownership: | 100.0000000000% | | |
| Total Value: | $144,000 | | |
| Tax Area: | 380 - APPRAISER-Cpvl Schl Dist, Special Dist, improved & less than 1 acre |
| CF | Conservation Futures | 0.0316035091 | $144,000 | $144,000 | $4.55 | | |
| CEM2 | Cemetery #2 | 0.0095056933 | $144,000 | $144,000 | $1.37 | | |
| FIRE5 | Fire & Rescue Dist #5 C Whidbey GEN | 1.2008080668 | $144,000 | $144,000 | $172.92 | | |
| FIRE5BOND | Fire & Rescue Dist #5 C Whidbey BOND | 0.1400090713 | $144,000 | $144,000 | $20.16 | | |
| HOBOND | Hospital BOND | 0.1910887512 | $144,000 | $144,000 | $27.52 | | |
| HOGEN | Hospital GEN | 0.3902502903 | $144,000 | $144,000 | $56.20 | | |
| CE | County Current Expense | 0.3708482477 | $144,000 | $144,000 | $53.40 | | |
| CR | County Roads | 0.4584763726 | $144,000 | $144,000 | $66.02 | | |
| ISLANDEMS | Hospital GEN (EMS) | 0.5000000000 | $144,000 | $144,000 | $72.00 | | |
| LIB | Library Sno-Isle GEN | 0.3153421757 | $144,000 | $144,000 | $45.41 | | |
| LIBCAP | Library Sno-Isle BOND (Cap Fac Imp Area) | 0.0543427938 | $144,000 | $144,000 | $7.83 | | |
| POCOUP | Port of Coupeville GEN | 0.1093371703 | $144,000 | $144,000 | $15.74 | | |
| POCOUPIDD | Port of Coupeville IDD | 0.3409740022 | $144,000 | $144,000 | $49.10 | | |
| COUPSDTECH | School 204 CP (TECH) | 0.7545480007 | $144,000 | $144,000 | $108.65 | | |
| SCH204MO | School 204 Enrichment | 0.6716186034 | $144,000 | $144,000 | $96.71 | | |
| ST | State School | 1.3035497053 | $144,000 | $144,000 | $187.71 | | |
| ST2 | State School Part 2 | 0.8169543533 | $144,000 | $144,000 | $117.64 | | |
| | Total Tax Rate: | 7.6592568070 | | | | | |
| | | | | Taxes w/Current Exemptions: | $1,102.93 | | |
| | | | | Taxes w/o Exemptions: | $1,102.93 | | |
Improvement / Building
| Improvement #1: | RESIDENTIAL | State Code: | Y | 940.0 sqft | Value: | $4,000 |
| Bathrooms: | 1 | Bedrooms: | 3 | | Ceiling: | DRYWALL PAINTED | Exterior Wall/Cover: | PLY/HARDBOARD T-111 | | Floor Covering: | VINYL 100% | Floor Structure: | WOOD W/SUBFLOOR | | Foundation: | CONCRETE | Heating: | BASEBOARD ELECTRIC | | Interior Finish: | DRYWALL PAINT | Plumbing Fixture Cnt: | 6 | | Roof Slope: | 4" IN 12" | Roof Structure/Cover: | CJ ALUMINIUM HEAVY |
|
| | Type | Description | Class CD | Sub Class CD | Year Built | Area |
| | BAS | BASE/MAIN FLOOR | 3 | 0 | 1972 | 940.0 |
| | AGR | ATTACHED GARAGE | 3 | 0 | 1972 | 288.0 |
| | OWP | OPEN WOOD PORCH W/STEPS | 3 | 0 | 1972 | 208.0 |
| | oSEP | SEPTIC | 3 | 0 | 1972 | 208.0 |
Sketch
Property Image
Land
| 1 | 16 | AC (00.51-01.00) | 0.5600 | 24393.60 | 0.00 | 0.00 | 1.00 | $140,000 | $0 |
Roll Value History
| 2026 | N/A | N/A | N/A | N/A | N/A |
| 2025 | $4,000 | $140,000 | $0 | $144,000 | $144,000 |
| 2024 | $4,000 | $130,000 | $0 | $134,000 | $134,000 |
| 2023 | $4,000 | $130,000 | $0 | $134,000 | $134,000 |
| 2022 | $182,348 | $210,000 | $0 | $392,348 | $392,348 |
| 2021 | $161,929 | $140,000 | $0 | $301,929 | $301,929 |
| 2020 | $157,718 | $110,000 | $0 | $267,718 | $267,718 |
| 2019 | $103,483 | $150,000 | $0 | $253,483 | $253,483 |
| 2018 | $91,623 | $140,000 | $0 | $231,623 | $231,623 |
| 2017 | $92,205 | $120,000 | $0 | $212,205 | $212,205 |
| 2016 | $93,373 | $100,000 | $0 | $193,373 | $193,373 |
| 2015 | $94,540 | $85,000 | $0 | $179,540 | $179,540 |
| 2014 | $95,707 | $85,000 | $0 | $180,707 | $180,707 |
| 2013 | $96,874 | $85,000 | $0 | $181,874 | $181,874 |
| 2012 | $72,451 | $68,000 | $0 | $140,451 | $140,451 |
| 2011 | $73,584 | $80,000 | $0 | $153,584 | $153,584 |
| 2010 | $79,067 | $80,000 | $0 | $159,067 | $159,067 |
| 2009 | $82,621 | $94,400 | $0 | $177,021 | $177,021 |
| 2008 | $83,768 | $94,400 | $0 | $178,168 | $178,168 |
| 2007 | $84,915 | $80,000 | $0 | $164,915 | $164,915 |
Deed and Sales History
| 1 | 12/19/2019 | QCD | Quit Claim Deed | ENCINAS, GILBERT G | ENCINAS TTEE, GILBERT | | | $0.00 | 41788 | 4479184 |
| 2 | 09/16/2019 | WD | Warranty Deed | ROOS, ALIX L | ENCINAS, GILBERT G | | | $299,000.00 | 40701 | 4473425 |
| 3 | 05/26/2010 | WD | Warranty Deed | BROWN, DAVID B | ROOS, ALIX L | | | $190,000.00 | 1337 | 4274745 |
| 4 | 08/21/2008 | WD | Warranty Deed | BUCKINGHAM, SALLY ELIZABETH | BROWN, DAVID B | | | $150,000.00 | 82336 | 4236146 |
| 5 | 12/18/2001 | DECREE | Divorce Decree/Legal Separation | ALLBRITTON, GLEN W | BUCKINGHAM, SALLY ELIZABETH | | | $0.00 | 14840 | 4006688 |
| 6 | 04/01/1995 | WD | Warranty Deed | BERNARD, LOUISE M | ALLBRITTON, GLEN W | | | $97,000.00 | 51287 | 95006093 |
| 7 | 01/01/1900 | OTHER | Other - Misc. Documents | Unknown | BERNARD, LOUISE M | | | $0.00 | 0 | 0 |
Payout Agreement
| No payout information available.. |