Property
Account |
| Property ID: | 23824 | Abbreviated Legal Description: | 1 - S219.82' OF GL5 TGW & SUBJ TO EZ |
| Geographic ID: | R13221-407-2910 | Agent Code: | |
| Type: | Real | | |
| Tax Area: | 112 - APPRAISER-OH Schl Dist, outside OH, improved, greater than 1 acre | Land Use Code | 11 |
| Open Space: | N | DFL | N |
| Historic Property: | N | Remodel Property: | N |
| Multi-Family Redevelopment: | N | | |
| Township: | 32 | Section: | 21 |
| Range: | R1 |
Location |
| Address: | 1104 HARRISON ST OAK HARBOR, WA 98277 | Mapsco: | |
| Neighborhood: | Cycle 2 | Map ID: | 152 |
| Neighborhood CD: | 2 |
Owner |
| Name: | PIERZCHALA, JAMES A | Owner ID: | 184030 |
| Mailing Address: | TABITHA D PIERZCHALA 1104 HARRISON ST OAK HARBOR, WA 98277-8208 | % Ownership: | 100.0000000000% |
| | | Exemptions: | |
Taxes and Assessment Details
Values
| (+) Improvement Homesite Value: | + | $0 | |
| (+) Improvement Non-Homesite Value: | + | $330,535 | |
| (+) Land Homesite Value: | + | $0 | |
| (+) Land Non-Homesite Value: | + | $312,063 | |
| (+) Curr Use (HS): | + | $0 | $0 |
| (+) Curr Use (NHS): | + | $0 | $0 |
| | | -------------------------- | |
| (=) Market Value: | = | $642,598 | |
| (–) Productivity Loss: | – | $0 | |
| | | -------------------------- | |
| (=) Subtotal: | = | $642,598 | |
| (+) Senior Appraised Value: | + | $0 | |
| (+) Non-Senior Appraised Value: | + | $642,598 | |
| | | -------------------------- | |
| (=) Total Appraised Value: | = | $642,598 | |
| (–) Senior Exemption Loss: | – | $0 | |
| (–) Exemption Loss: | – | $0 | |
| | | -------------------------- | |
| (=) Taxable Value: | = | $642,598 | |
Taxing Jurisdiction
| Owner: | PIERZCHALA, JAMES A | | |
| % Ownership: | 100.0000000000% | | |
| Total Value: | $642,598 | | |
| Tax Area: | 112 - APPRAISER-OH Schl Dist, outside OH, improved, greater than 1 acre |
| CF | Conservation Futures | 0.0316035091 | $642,598 | $642,598 | $20.31 | | |
| CEM1 | Cemetery #1 | 0.0040320932 | $642,598 | $642,598 | $2.59 | | |
| FIRE2 | Fire & Rescue Dist #2 N Whidbey GEN | 0.5475949600 | $642,598 | $642,598 | $351.88 | | |
| HOBOND | Hospital BOND | 0.1910887512 | $642,598 | $642,598 | $122.79 | | |
| HOGEN | Hospital GEN | 0.3902502903 | $642,598 | $642,598 | $250.77 | | |
| CE | County Current Expense | 0.3708482477 | $642,598 | $642,598 | $238.31 | | |
| CR | County Roads | 0.4584763726 | $642,598 | $642,598 | $294.62 | | |
| ISLANDEMS | Hospital GEN (EMS) | 0.5000000000 | $642,598 | $642,598 | $321.30 | | |
| LIB | Library Sno-Isle GEN | 0.3153421757 | $642,598 | $642,598 | $202.64 | | |
| NWHIDPRMT | P & R N Whidbey GEN | 0.2004466701 | $642,598 | $642,598 | $128.81 | | |
| SCH201MO | School 201 Enrichment | 1.8559231640 | $642,598 | $642,598 | $1,192.61 | | |
| ST | State School | 1.3035497053 | $642,598 | $642,598 | $837.66 | | |
| ST2 | State School Part 2 | 0.8169543533 | $642,598 | $642,598 | $524.97 | | |
| | Total Tax Rate: | 6.9861102925 | | | | | |
| | | | | Taxes w/Current Exemptions: | $4,489.26 | | |
| | | | | Taxes w/o Exemptions: | $4,489.26 | | |
Improvement / Building
| Improvement #1: | RESIDENTIAL | State Code: | Y | 1616.0 sqft | Value: | $330,535 |
| Bathrooms: | 2 | Bedrooms: | 3 | | Ceiling: | DRYWALL PAINTED | Exterior Wall/Cover: | PLY/HARDBOARD T-111 | | Floor Covering: | CARPET/VINYL 80-20 | Floor Structure: | WOOD W/SUBFLOOR | | Foundation: | CONCRETE | Heating: | FHA GAS | | Interior Finish: | DRYWALL PAINT | Plumbing Fixture Cnt: | 10 | | Roof Slope: | 4" IN 12" | Roof Structure/Cover: | CJ ASPHALT |
|
| | Type | Description | Class CD | Sub Class CD | Year Built | Area |
| | BAS | BASE/MAIN FLOOR | 3 | 0 | 1994 | 1616.0 |
| | OP4 | OPEN PORCH W/CEILING-ROOF | 3 | 0 | 1994 | 252.0 |
| | AGR | ATTACHED GARAGE | 3 | 0 | 1994 | 396.0 |
| | DGR | DETACHED GARAGE | 3 | 0 | 1994 | 1488.0 |
| | DGR | DETACHED GARAGE | 3 | 0 | 1994 | 720.0 |
Sketch
| No sketches available for this property. |
Property Image
Land
| 1 | 91 | UNDEVELOPED LAND-METES AND BOUNDS | 1.6900 | 73616.40 | 0.00 | 0.00 | 1.00 | $92,063 | $0 |
| 2 | HS | HOMESITE | 1.0000 | 43560.00 | 0.00 | 0.00 | 1.00 | $220,000 | $0 |
Roll Value History
| 2026 | N/A | N/A | N/A | N/A | N/A |
| 2025 | $330,535 | $312,063 | $0 | $642,598 | $642,598 |
| 2024 | $323,137 | $300,000 | $0 | $623,137 | $623,137 |
| 2023 | $327,609 | $270,000 | $0 | $597,609 | $597,609 |
| 2022 | $300,707 | $250,000 | $0 | $550,707 | $550,707 |
| 2021 | $265,013 | $170,000 | $0 | $435,013 | $435,013 |
| 2020 | $258,422 | $150,000 | $0 | $408,422 | $408,422 |
| 2019 | $186,381 | $180,000 | $0 | $366,381 | $366,381 |
| 2018 | $188,930 | $160,000 | $0 | $348,930 | $348,930 |
| 2017 | $155,505 | $150,000 | $0 | $305,505 | $305,505 |
| 2016 | $157,278 | $120,000 | $0 | $277,278 | $277,278 |
| 2015 | $159,049 | $90,000 | $0 | $249,049 | $249,049 |
| 2014 | $143,541 | $90,000 | $0 | $233,541 | $233,541 |
| 2013 | $145,315 | $102,000 | $0 | $247,315 | $247,315 |
| 2012 | $148,796 | $102,000 | $0 | $250,796 | $250,796 |
| 2011 | $150,623 | $120,000 | $0 | $270,623 | $270,623 |
| 2010 | $152,233 | $120,000 | $0 | $272,233 | $272,233 |
| 2009 | $158,881 | $105,000 | $0 | $263,881 | $263,881 |
| 2008 | $164,719 | $115,200 | $0 | $279,919 | $279,919 |
| 2007 | $166,832 | $115,200 | $0 | $282,032 | $282,032 |
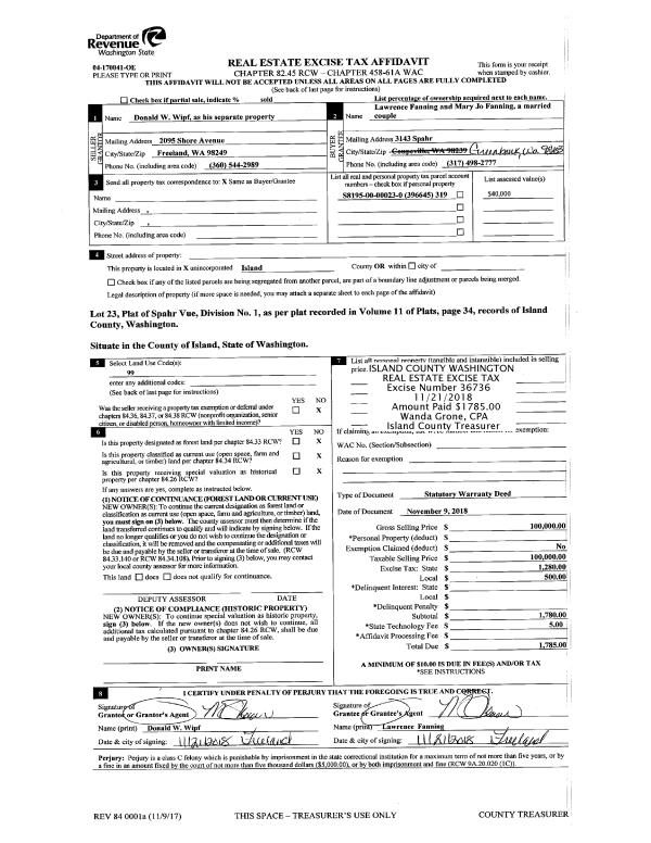
Deed and Sales History
| 1 | 08/21/2000 | WD | Warranty Deed | VETERANS ADMINISTRATION, | PIERZCHALA, JAMES A | | | $142,145.00 | 3335 | 20015550 |
| 2 | 01/19/2000 | WD | Warranty Deed | NORWEST MORT, INC, | VETERANS ADMINISTRATION, | | | $0.00 | 268 | 20001424 |
| 3 | 01/19/2000 | TRUSTEED | Trustee's Deed | PILAND, CHESTER D | NORWEST MORT, INC, | | | $136,161.00 | 267 | 20001423 |
| 4 | 07/01/1994 | WD | Warranty Deed | SOCHA, RICHARD & | PILAND, CHESTER D | | | $142,000.00 | 42997 | 94016257 |
| 5 | 03/01/1994 | WD | Warranty Deed | MADDICK, LINA | SOCHA, RICHARD & | | | $35,000.00 | 41183 | 94007485 |
| 6 | 06/01/1985 | QCD | Quit Claim Deed | MADDICK, DERYLE F | MADDICK, LINA | | | $0.00 | 81445 | 88005420 |
| 7 | 04/01/1981 | REC | Real Estate Contract | WALDEN, STEPHEN M | MADDICK, DERYLE F | | | $21,850.00 | 10999 | 381420 |
| 8 | 05/01/1979 | OTHER | Other - Misc. Documents | Unknown | WALDEN, STEPHEN M | | | $0.00 | 92483 | 352855 |
Payout Agreement
| No payout information available.. |