Property
Account |
| Property ID: | 238353 | Abbreviated Legal Description: | CROCKETT LK EST LOT 11-SL 3C OF SP 71-003 |
| Geographic ID: | S6435-00-00011-3 | Agent Code: | |
| Type: | Real | | |
| Tax Area: | 380 - APPRAISER-Cpvl Schl Dist, Special Dist, improved & less than 1 acre | Land Use Code | 11 |
| Open Space: | N | DFL | N |
| Historic Property: | N | Remodel Property: | N |
| Multi-Family Redevelopment: | N | | |
| Township: | | Section: | |
| Range: | |
Location |
| Address: | 621 CROCKETT LAKE DR COUPEVILLE, WA 98239 | Mapsco: | |
| Neighborhood: | Cycle 2 | Map ID: | 64 |
| Neighborhood CD: | 2 |
Owner |
| Name: | WATSON, CALEB | Owner ID: | 307205 |
| Mailing Address: | 18407 36TH AVE WEST A204 LYNNWOOD, WA 98037 | % Ownership: | 100.0000000000% |
| | | Exemptions: | |
Taxes and Assessment Details
Values
| (+) Improvement Homesite Value: | + | $0 | |
| (+) Improvement Non-Homesite Value: | + | $226,778 | |
| (+) Land Homesite Value: | + | $0 | |
| (+) Land Non-Homesite Value: | + | $270,000 | |
| (+) Curr Use (HS): | + | $0 | $0 |
| (+) Curr Use (NHS): | + | $0 | $0 |
| | | -------------------------- | |
| (=) Market Value: | = | $496,778 | |
| (–) Productivity Loss: | – | $0 | |
| | | -------------------------- | |
| (=) Subtotal: | = | $496,778 | |
| (+) Senior Appraised Value: | + | $0 | |
| (+) Non-Senior Appraised Value: | + | $496,778 | |
| | | -------------------------- | |
| (=) Total Appraised Value: | = | $496,778 | |
| (–) Senior Exemption Loss: | – | $0 | |
| (–) Exemption Loss: | – | $0 | |
| | | -------------------------- | |
| (=) Taxable Value: | = | $496,778 | |
Taxing Jurisdiction
| Owner: | WATSON, CALEB | | |
| % Ownership: | 100.0000000000% | | |
| Total Value: | $496,778 | | |
| Tax Area: | 380 - APPRAISER-Cpvl Schl Dist, Special Dist, improved & less than 1 acre |
| CF | Conservation Futures | 0.0316035091 | $496,778 | $496,778 | $15.70 | | |
| CEM2 | Cemetery #2 | 0.0095056933 | $496,778 | $496,778 | $4.72 | | |
| FIRE5 | Fire & Rescue Dist #5 C Whidbey GEN | 1.2008080668 | $496,778 | $496,778 | $596.54 | | |
| FIRE5BOND | Fire & Rescue Dist #5 C Whidbey BOND | 0.1400090713 | $496,778 | $496,778 | $69.55 | | |
| HOBOND | Hospital BOND | 0.1910887512 | $496,778 | $496,778 | $94.93 | | |
| HOGEN | Hospital GEN | 0.3902502903 | $496,778 | $496,778 | $193.87 | | |
| CE | County Current Expense | 0.3708482477 | $496,778 | $496,778 | $184.23 | | |
| CR | County Roads | 0.4584763726 | $496,778 | $496,778 | $227.76 | | |
| ISLANDEMS | Hospital GEN (EMS) | 0.5000000000 | $496,778 | $496,778 | $248.39 | | |
| LIB | Library Sno-Isle GEN | 0.3153421757 | $496,778 | $496,778 | $156.66 | | |
| LIBCAP | Library Sno-Isle BOND (Cap Fac Imp Area) | 0.0543427938 | $496,778 | $496,778 | $27.00 | | |
| POCOUP | Port of Coupeville GEN | 0.1093371703 | $496,778 | $496,778 | $54.32 | | |
| POCOUPIDD | Port of Coupeville IDD | 0.3409740022 | $496,778 | $496,778 | $169.39 | | |
| COUPSDTECH | School 204 CP (TECH) | 0.7545480007 | $496,778 | $496,778 | $374.84 | | |
| SCH204MO | School 204 Enrichment | 0.6716186034 | $496,778 | $496,778 | $333.65 | | |
| ST | State School | 1.3035497053 | $496,778 | $496,778 | $647.57 | | |
| ST2 | State School Part 2 | 0.8169543533 | $496,778 | $496,778 | $405.84 | | |
| | Total Tax Rate: | 7.6592568070 | | | | | |
| | | | | Taxes w/Current Exemptions: | $3,804.96 | | |
| | | | | Taxes w/o Exemptions: | $3,804.96 | | |
Improvement / Building
| Improvement #1: | RESIDENTIAL | State Code: | Y | 1296.0 sqft | Value: | $226,778 |
| Bathrooms: | 1.75 | Bedrooms: | 3 | | Ceiling: | DRY WALL SPRAYED | Cooling: | HEAT PUMP/CONV/V | | Exterior Wall/Cover: | VINYL | Floor Covering: | VINYL TILE/HARWD 20-80 | | Floor Structure: | WOOD W/SUBFLOOR | Foundation: | CONCRETE | | Interior Finish: | DRYWALL PAINT | Plumbing Fixture Cnt: | 9 | | Roof Slope: | 5" IN 12" | Roof Structure/Cover: | CJ ASPHALT |
|
| | Type | Description | Class CD | Sub Class CD | Year Built | Area |
| | BAS | BASE/MAIN FLOOR | 3 | 0 | 1971 | 1296.0 |
| | OWP | OPEN WOOD PORCH W/STEPS | 3 | 0 | 1971 | 288.0 |
Sketch
Property Image
Land
| 1 | 16 | AC (00.51-01.00) | 0.5500 | 23958.00 | 0.00 | 0.00 | 1.00 | $270,000 | $0 |
Roll Value History
| 2026 | N/A | N/A | N/A | N/A | N/A |
| 2025 | $226,778 | $270,000 | $0 | $496,778 | $496,778 |
| 2024 | $226,778 | $250,000 | $0 | $476,778 | $476,778 |
| 2023 | $229,568 | $220,000 | $0 | $449,568 | $449,568 |
| 2022 | $187,025 | $210,000 | $0 | $397,025 | $397,025 |
| 2021 | $164,707 | $140,000 | $0 | $304,707 | $304,707 |
| 2020 | $160,433 | $110,000 | $0 | $270,433 | $270,433 |
| 2019 | $113,850 | $150,000 | $0 | $263,850 | $263,850 |
| 2018 | $104,454 | $140,000 | $0 | $244,454 | $244,454 |
| 2017 | $105,155 | $120,000 | $0 | $225,155 | $225,155 |
| 2016 | $106,556 | $100,000 | $0 | $206,556 | $206,556 |
| 2015 | $107,959 | $75,000 | $0 | $182,959 | $182,959 |
| 2014 | $109,361 | $75,000 | $0 | $184,361 | $184,361 |
| 2013 | $110,763 | $75,000 | $0 | $185,763 | $185,763 |
| 2012 | $85,260 | $76,500 | $0 | $161,760 | $161,760 |
| 2011 | $86,579 | $90,000 | $0 | $176,579 | $176,579 |
| 2010 | $91,193 | $90,000 | $0 | $181,193 | $181,193 |
| 2009 | $95,303 | $94,400 | $0 | $189,703 | $189,703 |
| 2008 | $96,631 | $94,400 | $0 | $191,031 | $191,031 |
| 2007 | $97,959 | $80,000 | $0 | $177,959 | $177,959 |
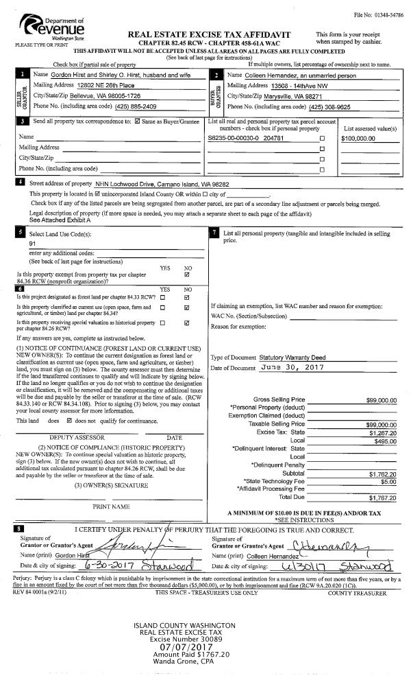
Deed and Sales History
| 1 | 06/15/2022 | WD | Warranty Deed | POTTS, JOSHUA G | WATSON, CALEB | | | $452,500.00 | 53608 | 4547251 |
| 2 | 06/06/2017 | WD | Warranty Deed | LINN, LLOYD R | POTTS, JOSHUA G | | | $248,750.00 | 29658 | 4423954 |
| 3 | 08/27/2013 | ESTSEPPROP | Establish Separate Property | LINN, LAURA W | LINN, LLOYD R | | | $0.00 | 12532 | 4347004 |
| 4 | 01/21/2005 | 5 | DNU - Marriage License/Name Change | LINN, LAURA W | LINN, LAURA W | | | $0.00 | 50262 | 4123775 |
| 5 | 04/05/2002 | QCD | Quit Claim Deed | LINN, LAURA W | LINN, LAURA W | | | $0.00 | 21500 | 4017723 |
| 6 | 12/01/1996 | 5 | DNU - Marriage License/Name Change | KIRK, LAURA W | LINN, LAURA W | | | $0.00 | 67183 | 0 |
| 7 | 08/01/1980 | CD | DNU - Correction Deed | MCGEE, WILLIAM T | KIRK, LAURA W | | | $0.00 | 3013 | 373527 |
| 8 | 01/01/1900 | OTHER | Other - Misc. Documents | Unknown | MCGEE, WILLIAM T | | | $0.00 | 0 | 0 |
Payout Agreement
| No payout information available.. |