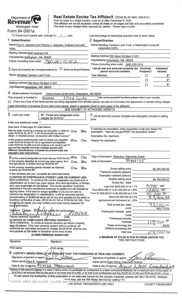
Property
Account |
| Property ID: | 238371 | Abbreviated Legal Description: | CROCKETT LK EST TR 12 EX S125' ALSO EX E200' AKA LOT 12 SL 1A OF SP 70-019 |
| Geographic ID: | S6435-00-00012-1 | Agent Code: | |
| Type: | Real | | |
| Tax Area: | 380 - APPRAISER-Cpvl Schl Dist, Special Dist, improved & less than 1 acre | Land Use Code | 11 |
| Open Space: | N | DFL | N |
| Historic Property: | N | Remodel Property: | N |
| Multi-Family Redevelopment: | N | | |
| Township: | | Section: | |
| Range: | |
Location |
| Address: | 661 CROCKETT LAKE DR COUPEVILLE, WA 98239 | Mapsco: | |
| Neighborhood: | Cycle 2 | Map ID: | 64 |
| Neighborhood CD: | 2 |
Owner |
| Name: | BRYNER, GARY E | Owner ID: | 53940 |
| Mailing Address: | DEBRA J BRYNER JTWRS 661 CROCKETT LAKE DR COUPEVILLE, WA 98239-9598 | % Ownership: | 100.0000000000% |
| | | Exemptions: | |
Taxes and Assessment Details
Values
| (+) Improvement Homesite Value: | + | $0 | |
| (+) Improvement Non-Homesite Value: | + | $327,387 | |
| (+) Land Homesite Value: | + | $0 | |
| (+) Land Non-Homesite Value: | + | $270,000 | |
| (+) Curr Use (HS): | + | $0 | $0 |
| (+) Curr Use (NHS): | + | $0 | $0 |
| | | -------------------------- | |
| (=) Market Value: | = | $597,387 | |
| (–) Productivity Loss: | – | $0 | |
| | | -------------------------- | |
| (=) Subtotal: | = | $597,387 | |
| (+) Senior Appraised Value: | + | $0 | |
| (+) Non-Senior Appraised Value: | + | $597,387 | |
| | | -------------------------- | |
| (=) Total Appraised Value: | = | $597,387 | |
| (–) Senior Exemption Loss: | – | $0 | |
| (–) Exemption Loss: | – | $0 | |
| | | -------------------------- | |
| (=) Taxable Value: | = | $597,387 | |
Taxing Jurisdiction
| Owner: | BRYNER, GARY E | | |
| % Ownership: | 100.0000000000% | | |
| Total Value: | $597,387 | | |
| Tax Area: | 380 - APPRAISER-Cpvl Schl Dist, Special Dist, improved & less than 1 acre |
| CF | Conservation Futures | 0.0316035091 | $597,387 | $597,387 | $18.88 | | |
| CEM2 | Cemetery #2 | 0.0095056933 | $597,387 | $597,387 | $5.68 | | |
| FIRE5 | Fire & Rescue Dist #5 C Whidbey GEN | 1.2008080668 | $597,387 | $597,387 | $717.35 | | |
| FIRE5BOND | Fire & Rescue Dist #5 C Whidbey BOND | 0.1400090713 | $597,387 | $597,387 | $83.64 | | |
| HOBOND | Hospital BOND | 0.1910887512 | $597,387 | $597,387 | $114.15 | | |
| HOGEN | Hospital GEN | 0.3902502903 | $597,387 | $597,387 | $233.13 | | |
| CE | County Current Expense | 0.3708482477 | $597,387 | $597,387 | $221.54 | | |
| CR | County Roads | 0.4584763726 | $597,387 | $597,387 | $273.89 | | |
| ISLANDEMS | Hospital GEN (EMS) | 0.5000000000 | $597,387 | $597,387 | $298.69 | | |
| LIB | Library Sno-Isle GEN | 0.3153421757 | $597,387 | $597,387 | $188.38 | | |
| LIBCAP | Library Sno-Isle BOND (Cap Fac Imp Area) | 0.0543427938 | $597,387 | $597,387 | $32.46 | | |
| POCOUP | Port of Coupeville GEN | 0.1093371703 | $597,387 | $597,387 | $65.32 | | |
| POCOUPIDD | Port of Coupeville IDD | 0.3409740022 | $597,387 | $597,387 | $203.69 | | |
| COUPSDTECH | School 204 CP (TECH) | 0.7545480007 | $597,387 | $597,387 | $450.76 | | |
| SCH204MO | School 204 Enrichment | 0.6716186034 | $597,387 | $597,387 | $401.22 | | |
| ST | State School | 1.3035497053 | $597,387 | $597,387 | $778.72 | | |
| ST2 | State School Part 2 | 0.8169543533 | $597,387 | $597,387 | $488.04 | | |
| | Total Tax Rate: | 7.6592568070 | | | | | |
| | | | | Taxes w/Current Exemptions: | $4,575.54 | | |
| | | | | Taxes w/o Exemptions: | $4,575.54 | | |
Improvement / Building
| Improvement #1: | RESIDENTIAL | State Code: | Y | 2160.0 sqft | Value: | $327,387 |
| Bathrooms: | 2 | Bedrooms: | 3 | | Ceiling: | DRY WALL SPRAYED | Exterior Wall/Cover: | PLY/HARDBOARD T-111 | | Floor Covering: | CARPET/VINYL 80-20 | Floor Structure: | WOOD W/SUBFLOOR | | Foundation: | CONCRETE | Heating: | FHA GAS | | Interior Finish: | DRYWALL PAINT | Plumbing Fixture Cnt: | 9 | | Roof Slope: | 4" IN 12" | Roof Structure/Cover: | CJ ASPHALT |
|
| | Type | Description | Class CD | Sub Class CD | Year Built | Area |
| | BAS | BASE/MAIN FLOOR | 3 | 0 | 1971 | 2160.0 |
| | AGR | ATTACHED GARAGE | 3 | 0 | 1971 | 720.0 |
Sketch
Property Image
Land
| 1 | 15 | SQ (12001-21780) | 0.4500 | 19602.00 | 0.00 | 0.00 | 1.00 | $270,000 | $0 |
Roll Value History
| 2026 | N/A | N/A | N/A | N/A | N/A |
| 2025 | $327,387 | $270,000 | $0 | $597,387 | $597,387 |
| 2024 | $315,589 | $250,000 | $0 | $565,589 | $565,589 |
| 2023 | $319,522 | $220,000 | $0 | $539,522 | $539,522 |
| 2022 | $292,873 | $210,000 | $0 | $502,873 | $502,873 |
| 2021 | $257,784 | $140,000 | $0 | $397,784 | $397,784 |
| 2020 | $251,678 | $110,000 | $0 | $361,678 | $361,678 |
| 2019 | $194,268 | $150,000 | $0 | $344,268 | $344,268 |
| 2018 | $188,168 | $115,000 | $0 | $303,168 | $303,168 |
| 2017 | $189,322 | $100,000 | $0 | $289,322 | $289,322 |
| 2016 | $191,632 | $75,000 | $0 | $266,632 | $266,632 |
| 2015 | $193,940 | $65,000 | $0 | $258,940 | $258,940 |
| 2014 | $196,249 | $65,000 | $0 | $261,249 | $261,249 |
| 2013 | $198,558 | $65,000 | $0 | $263,558 | $263,558 |
| 2012 | $145,540 | $76,500 | $0 | $222,040 | $222,040 |
| 2011 | $147,710 | $90,000 | $0 | $237,710 | $237,710 |
| 2010 | $155,807 | $90,000 | $0 | $245,807 | $245,807 |
| 2009 | $162,779 | $80,000 | $0 | $242,779 | $242,779 |
| 2008 | $165,074 | $80,000 | $0 | $245,074 | $245,074 |
| 2007 | $167,375 | $80,000 | $0 | $247,375 | $247,375 |
Deed and Sales History
| 1 | 04/01/1987 | WD | Warranty Deed | BELL, DONNA G | BRYNER, GARY E | | | $55,000.00 | 71036 | 87005234 |
| 2 | 11/01/1982 | OTHER | Other - Misc. Documents | LOSEY, WILLIAM E | BELL, DONNA G | | | $0.00 | 59738 | 0 |
| 3 | 01/01/1900 | OTHER | Other - Misc. Documents | Unknown | LOSEY, WILLIAM E | | | $0.00 | 0 | 0 |
Payout Agreement
| No payout information available.. |