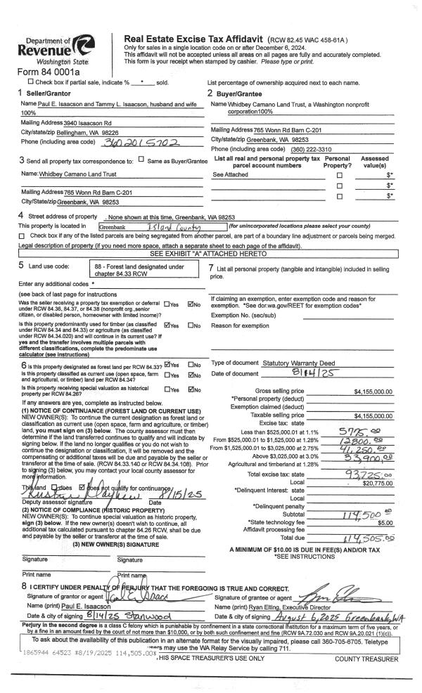
Property
Account |
| Property ID: | 238399 | Abbreviated Legal Description: | CROCKETT LAKE EST LOT 12-SL 3C OF SP 70-019 W100'OF E200'OF LOT 12 |
| Geographic ID: | S6435-00-00012-3 | Agent Code: | |
| Type: | Real | | |
| Tax Area: | 380 - APPRAISER-Cpvl Schl Dist, Special Dist, improved & less than 1 acre | Land Use Code | 11 |
| Open Space: | N | DFL | N |
| Historic Property: | N | Remodel Property: | N |
| Multi-Family Redevelopment: | N | | |
| Township: | | Section: | |
| Range: | |
Location |
| Address: | 651 CROCKETT LAKE DR COUPEVILLE, WA 98239 | Mapsco: | |
| Neighborhood: | Cycle 2 | Map ID: | 64 |
| Neighborhood CD: | 2 |
Owner |
| Name: | BILLER, JOSEPH R | Owner ID: | 2915 |
| Mailing Address: | 651 CROCKETT LAKE DR COUPEVILLE, WA 98239-9598 | % Ownership: | 100.0000000000% |
| | | Exemptions: | |
Taxes and Assessment Details
Values
| (+) Improvement Homesite Value: | + | $0 | |
| (+) Improvement Non-Homesite Value: | + | $391,913 | |
| (+) Land Homesite Value: | + | $0 | |
| (+) Land Non-Homesite Value: | + | $270,000 | |
| (+) Curr Use (HS): | + | $0 | $0 |
| (+) Curr Use (NHS): | + | $0 | $0 |
| | | -------------------------- | |
| (=) Market Value: | = | $661,913 | |
| (–) Productivity Loss: | – | $0 | |
| | | -------------------------- | |
| (=) Subtotal: | = | $661,913 | |
| (+) Senior Appraised Value: | + | $0 | |
| (+) Non-Senior Appraised Value: | + | $661,913 | |
| | | -------------------------- | |
| (=) Total Appraised Value: | = | $661,913 | |
| (–) Senior Exemption Loss: | – | $0 | |
| (–) Exemption Loss: | – | $0 | |
| | | -------------------------- | |
| (=) Taxable Value: | = | $661,913 | |
Taxing Jurisdiction
| Owner: | BILLER, JOSEPH R | | |
| % Ownership: | 100.0000000000% | | |
| Total Value: | $661,913 | | |
| Tax Area: | 380 - APPRAISER-Cpvl Schl Dist, Special Dist, improved & less than 1 acre |
| CF | Conservation Futures | 0.0316035091 | $661,913 | $661,913 | $20.92 | | |
| CEM2 | Cemetery #2 | 0.0095056933 | $661,913 | $661,913 | $6.29 | | |
| FIRE5 | Fire & Rescue Dist #5 C Whidbey GEN | 1.2008080668 | $661,913 | $661,913 | $794.83 | | |
| FIRE5BOND | Fire & Rescue Dist #5 C Whidbey BOND | 0.1400090713 | $661,913 | $661,913 | $92.67 | | |
| HOBOND | Hospital BOND | 0.1910887512 | $661,913 | $661,913 | $126.48 | | |
| HOGEN | Hospital GEN | 0.3902502903 | $661,913 | $661,913 | $258.31 | | |
| CE | County Current Expense | 0.3708482477 | $661,913 | $661,913 | $245.47 | | |
| CR | County Roads | 0.4584763726 | $661,913 | $661,913 | $303.47 | | |
| ISLANDEMS | Hospital GEN (EMS) | 0.5000000000 | $661,913 | $661,913 | $330.96 | | |
| LIB | Library Sno-Isle GEN | 0.3153421757 | $661,913 | $661,913 | $208.73 | | |
| LIBCAP | Library Sno-Isle BOND (Cap Fac Imp Area) | 0.0543427938 | $661,913 | $661,913 | $35.97 | | |
| POCOUP | Port of Coupeville GEN | 0.1093371703 | $661,913 | $661,913 | $72.37 | | |
| POCOUPIDD | Port of Coupeville IDD | 0.3409740022 | $661,913 | $661,913 | $225.70 | | |
| COUPSDTECH | School 204 CP (TECH) | 0.7545480007 | $661,913 | $661,913 | $499.45 | | |
| SCH204MO | School 204 Enrichment | 0.6716186034 | $661,913 | $661,913 | $444.55 | | |
| ST | State School | 1.3035497053 | $661,913 | $661,913 | $862.84 | | |
| ST2 | State School Part 2 | 0.8169543533 | $661,913 | $661,913 | $540.75 | | |
| | Total Tax Rate: | 7.6592568070 | | | | | |
| | | | | Taxes w/Current Exemptions: | $5,069.76 | | |
| | | | | Taxes w/o Exemptions: | $5,069.76 | | |
Improvement / Building
| Improvement #1: | RESIDENTIAL | State Code: | Y | 2992.0 sqft | Value: | $391,913 |
| Bathrooms: | 3 | Bedrooms: | 3 | | Ceiling: | DRYWALL PAINTED | Cooling: | HEAT PUMP/CONV/V | | Exterior Wall/Cover: | WOOD SIDING | Floor Covering: | CARPET/VINYL 80-20 | | Floor Structure: | WOOD W/SUBFLOOR | Foundation: | CONCRETE | | Interior Finish: | DRYWALL PAINT | Plumbing Fixture Cnt: | 12 | | Roof Slope: | 4" IN 12" | Roof Structure/Cover: | CJ ASPHALT |
|
| | Type | Description | Class CD | Sub Class CD | Year Built | Area |
| | BAS | BASE/MAIN FLOOR | 3 | 0 | 1983 | 1496.0 |
| | AGR | ATTACHED GARAGE | 3 | 0 | 1983 | 1750.0 |
| | OWP | OPEN WOOD PORCH W/STEPS | 3 | 0 | 1983 | 96.0 |
| | OWP | OPEN WOOD PORCH W/STEPS | 3 | 0 | 1983 | 480.0 |
| | OWC | OPEN WOOD PORCH W/STEPS/ROOF/C | 3 | 0 | 1983 | 72.0 |
| | DWN | DOWNSTAIRS LIVING AREA | 3 | 0 | 1983 | 1496.0 |
| | OCP | OPEN CARPORT | 3 | 0 | 1983 | 400.0 |
Sketch
Property Image
Land
| 1 | 16 | AC (00.51-01.00) | 0.5900 | 25700.40 | 0.00 | 0.00 | 1.00 | $270,000 | $0 |
Roll Value History
| 2026 | N/A | N/A | N/A | N/A | N/A |
| 2025 | $391,913 | $270,000 | $0 | $661,913 | $661,913 |
| 2024 | $381,896 | $250,000 | $0 | $631,896 | $631,896 |
| 2023 | $386,904 | $220,000 | $0 | $606,904 | $606,904 |
| 2022 | $354,889 | $210,000 | $0 | $564,889 | $564,889 |
| 2021 | $312,531 | $140,000 | $0 | $452,531 | $452,531 |
| 2020 | $305,451 | $110,000 | $0 | $415,451 | $415,451 |
| 2019 | $245,191 | $150,000 | $0 | $395,191 | $395,191 |
| 2018 | $216,928 | $160,000 | $0 | $376,928 | $376,928 |
| 2017 | $218,381 | $150,000 | $0 | $368,381 | $368,381 |
| 2016 | $221,290 | $135,000 | $0 | $356,290 | $356,290 |
| 2015 | $224,203 | $75,000 | $0 | $299,203 | $299,203 |
| 2014 | $227,114 | $75,000 | $0 | $302,114 | $302,114 |
| 2013 | $230,026 | $75,000 | $0 | $305,026 | $305,026 |
| 2012 | $217,299 | $68,000 | $0 | $285,299 | $285,299 |
| 2011 | $220,295 | $80,000 | $0 | $300,295 | $300,295 |
| 2010 | $233,867 | $80,000 | $0 | $313,867 | $313,867 |
| 2009 | $244,036 | $94,400 | $0 | $338,436 | $338,436 |
| 2008 | $255,094 | $94,400 | $0 | $349,494 | $349,494 |
| 2007 | $255,263 | $80,000 | $0 | $335,263 | $335,263 |
Deed and Sales History
| 1 | 06/01/1989 | WD | Warranty Deed | LOSEY, WILLIAM E | BILLER, JOSEPH R | | | $98,500.00 | 92276 | 89007786 |
| 2 | 02/01/1981 | CD | DNU - Correction Deed | CUMMINGS, ROBERT D | LOSEY, WILLIAM E | | | $0.00 | 10532 | 379763 |
| 3 | 02/01/1981 | TRUSTEED | Trustee's Deed | LOSEY, WILLIAM E | CUMMINGS, ROBERT D | | | $14,000.00 | 10533 | 379764 |
| 4 | 01/01/1900 | OTHER | Other - Misc. Documents | Unknown | LOSEY, WILLIAM E | | | $0.00 | 0 | 0 |
Payout Agreement
| No payout information available.. |