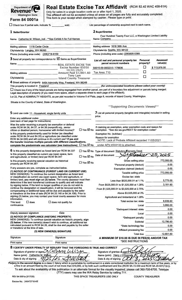
Property
Account |
| Property ID: | 238415 | Abbreviated Legal Description: | CROCKETT LAKE EST LOT 13-SL 1A; LOT 13 EX ELY 200' |
| Geographic ID: | S6435-00-00013-1 | Agent Code: | |
| Type: | Real | | |
| Tax Area: | 380 - APPRAISER-Cpvl Schl Dist, Special Dist, improved & less than 1 acre | Land Use Code | 11 |
| Open Space: | N | DFL | N |
| Historic Property: | N | Remodel Property: | N |
| Multi-Family Redevelopment: | N | | |
| Township: | | Section: | |
| Range: | |
Location |
| Address: | 909 PRAIRIE VIEW AVE COUPEVILLE, WA 98239 | Mapsco: | |
| Neighborhood: | Cycle 2 | Map ID: | 64 |
| Neighborhood CD: | 2 |
Owner |
| Name: | HARADA, LESLIE K | Owner ID: | 251637 |
| Mailing Address: | 909 PRAIRIE VIEW AVE COUPEVILLE, WA 98239 | % Ownership: | 100.0000000000% |
| | | Exemptions: | |
Taxes and Assessment Details
Values
| (+) Improvement Homesite Value: | + | $0 | |
| (+) Improvement Non-Homesite Value: | + | $287,559 | |
| (+) Land Homesite Value: | + | $0 | |
| (+) Land Non-Homesite Value: | + | $320,000 | |
| (+) Curr Use (HS): | + | $0 | $0 |
| (+) Curr Use (NHS): | + | $0 | $0 |
| | | -------------------------- | |
| (=) Market Value: | = | $607,559 | |
| (–) Productivity Loss: | – | $0 | |
| | | -------------------------- | |
| (=) Subtotal: | = | $607,559 | |
| (+) Senior Appraised Value: | + | $0 | |
| (+) Non-Senior Appraised Value: | + | $607,559 | |
| | | -------------------------- | |
| (=) Total Appraised Value: | = | $607,559 | |
| (–) Senior Exemption Loss: | – | $0 | |
| (–) Exemption Loss: | – | $0 | |
| | | -------------------------- | |
| (=) Taxable Value: | = | $607,559 | |
Taxing Jurisdiction
| Owner: | HARADA, LESLIE K | | |
| % Ownership: | 100.0000000000% | | |
| Total Value: | $607,559 | | |
| Tax Area: | 380 - APPRAISER-Cpvl Schl Dist, Special Dist, improved & less than 1 acre |
| CF | Conservation Futures | 0.0316035091 | $607,559 | $607,559 | $19.20 | | |
| CEM2 | Cemetery #2 | 0.0095056933 | $607,559 | $607,559 | $5.78 | | |
| FIRE5 | Fire & Rescue Dist #5 C Whidbey GEN | 1.2008080668 | $607,559 | $607,559 | $729.56 | | |
| FIRE5BOND | Fire & Rescue Dist #5 C Whidbey BOND | 0.1400090713 | $607,559 | $607,559 | $85.06 | | |
| HOBOND | Hospital BOND | 0.1910887512 | $607,559 | $607,559 | $116.10 | | |
| HOGEN | Hospital GEN | 0.3902502903 | $607,559 | $607,559 | $237.10 | | |
| CE | County Current Expense | 0.3708482477 | $607,559 | $607,559 | $225.31 | | |
| CR | County Roads | 0.4584763726 | $607,559 | $607,559 | $278.55 | | |
| ISLANDEMS | Hospital GEN (EMS) | 0.5000000000 | $607,559 | $607,559 | $303.78 | | |
| LIB | Library Sno-Isle GEN | 0.3153421757 | $607,559 | $607,559 | $191.59 | | |
| LIBCAP | Library Sno-Isle BOND (Cap Fac Imp Area) | 0.0543427938 | $607,559 | $607,559 | $33.02 | | |
| POCOUP | Port of Coupeville GEN | 0.1093371703 | $607,559 | $607,559 | $66.43 | | |
| POCOUPIDD | Port of Coupeville IDD | 0.3409740022 | $607,559 | $607,559 | $207.16 | | |
| COUPSDTECH | School 204 CP (TECH) | 0.7545480007 | $607,559 | $607,559 | $458.43 | | |
| SCH204MO | School 204 Enrichment | 0.6716186034 | $607,559 | $607,559 | $408.05 | | |
| ST | State School | 1.3035497053 | $607,559 | $607,559 | $791.98 | | |
| ST2 | State School Part 2 | 0.8169543533 | $607,559 | $607,559 | $496.35 | | |
| | Total Tax Rate: | 7.6592568070 | | | | | |
| | | | | Taxes w/Current Exemptions: | $4,653.45 | | |
| | | | | Taxes w/o Exemptions: | $4,653.45 | | |
Improvement / Building
| Improvement #1: | RESIDENTIAL | State Code: | Y | 2285.0 sqft | Value: | $287,559 |
| Bathrooms: | 2 | Bedrooms: | 3 | | Ceiling: | DRY WALL SPRAYED | Exterior Wall/Cover: | WOOD SIDING | | Floor Covering: | CARPET/VINYL 60-40 | Floor Structure: | WOOD W/SUBFLOOR | | Foundation: | CONCRETE | Heating: | BASEBOARD ELECTRIC | | Interior Finish: | DRYWALL PAINT | Plumbing Fixture Cnt: | 9 | | Roof Slope: | 4" IN 12" | Roof Structure/Cover: | CJ ASPHALT |
|
| | Type | Description | Class CD | Sub Class CD | Year Built | Area |
| | BAS | BASE/MAIN FLOOR | 3 | 0 | 1975 | 1193.0 |
| | OCP | OPEN CARPORT | 3 | 0 | 1975 | 792.0 |
| | OWP | OPEN WOOD PORCH W/STEPS | 3 | 0 | 1975 | 66.0 |
| | OWP | OPEN WOOD PORCH W/STEPS | 3 | 0 | 1975 | 224.0 |
| | DWN | DOWNSTAIRS LIVING AREA | 3 | 0 | 1975 | 1092.0 |
| | oUTI | UTILITY | 3 | 0 | 1975 | 896.0 |
| | oUTI | UTILITY | 2 | 0 | 1975 | 216.0 |
Sketch
Property Image
Land
| 1 | 16 | AC (00.51-01.00) | 0.8800 | 38332.80 | 0.00 | 0.00 | 1.00 | $320,000 | $0 |
Roll Value History
| 2026 | N/A | N/A | N/A | N/A | N/A |
| 2025 | $287,559 | $320,000 | $0 | $607,559 | $607,559 |
| 2024 | $312,506 | $300,000 | $0 | $612,506 | $612,506 |
| 2023 | $316,606 | $300,000 | $0 | $616,606 | $616,606 |
| 2022 | $290,400 | $280,000 | $0 | $570,400 | $570,400 |
| 2021 | $255,749 | $155,000 | $0 | $410,749 | $410,749 |
| 2020 | $249,952 | $150,000 | $0 | $399,952 | $399,952 |
| 2019 | $194,192 | $180,000 | $0 | $374,192 | $374,192 |
| 2018 | $165,157 | $160,000 | $0 | $325,157 | $325,157 |
| 2017 | $166,163 | $150,000 | $0 | $316,163 | $316,163 |
| 2016 | $168,178 | $135,000 | $0 | $303,178 | $303,178 |
| 2015 | $170,193 | $100,000 | $0 | $270,193 | $270,193 |
| 2014 | $172,206 | $100,000 | $0 | $272,206 | $272,206 |
| 2013 | $170,193 | $100,000 | $0 | $270,193 | $270,193 |
| 2012 | $162,126 | $102,000 | $0 | $264,126 | $264,126 |
| 2011 | $164,240 | $120,000 | $0 | $284,240 | $284,240 |
| 2010 | $170,406 | $120,000 | $0 | $290,406 | $290,406 |
| 2009 | $175,338 | $130,000 | $0 | $305,338 | $305,338 |
| 2008 | $177,455 | $130,000 | $0 | $307,455 | $307,455 |
| 2007 | $179,573 | $130,000 | $0 | $309,573 | $309,573 |
Deed and Sales History
| 1 | 09/01/2010 | QCD | Quit Claim Deed | TASKER, TAMMY QUINN | HARADA, LESLIE K | | | $162,500.00 | 2279 | 4280993 |
| 2 | 07/24/2006 | WD | Warranty Deed | ASTROM, ROLF | TASKER, TAMMY QUINN | | | $375,000.00 | 63310 | 4177687 |
| 3 | 08/26/2002 | WD | Warranty Deed | STOLTZFUS, ERNIE | ASTROM, ROLF | | | $162,500.00 | 23497 | 4030109 |
| 4 | 05/04/2001 | PRD | Personal Representatives Deed | PAYNE, HAROLD | PAYNE, HAROLD | | | $0.00 | 11593 | 20031655 |
| 5 | 05/04/2001 | QCD | Quit Claim Deed | PAYNE, HAROLD | STOLTZFUS, ERNIE | | | $0.00 | 11572 | 20031656 |
| 6 | 01/01/1900 | OTHER | Other - Misc. Documents | Unknown | PAYNE, HAROLD | | | $0.00 | 0 | 0 |
Payout Agreement
| No payout information available.. |